賃貸マンション
ベンリッジの賃貸物件情報(1LDK/2階)
| 家賃 | 管理費等 | 敷金 | 礼金 | 間取り | 専有面積 |
|---|---|---|---|---|---|
| 7.1万円 | 7,000円 | 5万円 | 5万円 | 1LDK | 34.89m2 |
入居決定でお祝い金最大100,000円
- 保証金
- -
- 償却・敷引
- -
- 築年数
- 築12年
- 所在階
- 2階
- 向き
- 東
Point
歩いて6分の場所に、ツルハドラッグ 伏見舞台店があります。収納はクロゼット・シューズボックスなど豊富なので、広々と空間を利用することも可能です。この物件はBSアンテナ工事が既に済んでおります。お部屋の情報から周辺地域の情報までお任せください。当社では、地域に詳しい熟練スタッフが京都市伏見区や近鉄京都
提供:株式会社ユナイテッド・ウィル・キョウト 本店(賃貸スモッカ経由)

詳細情報 ベンリッジ
物件紹介
ベンリッジは近鉄京都線伏見駅から徒歩5分にあり、駅近で通勤通学に便利なマンションです。
このお部屋は2階以上に位置しているので通行人や周囲の住人からの視線が気になりにくく、建物のエントランスはオートロックがついているので防犯性が高くなっています。
おしゃれなデザイナーズ物件!フローリングのお部屋なのでお掃除もラクラク。キッチンはシステムキッチン仕様になっていますので、お料理好きの方にもぴったり。バス・トイレは別なので、のんびりお風呂タイムも楽しめるでしょう。また、雨の日でも浴室乾燥機を使えば、お洗濯も問題ありません。
通信設備面では、インターネット接続が可能です。また、BSアンテナもありますので、おうち時間も充実するでしょう(別途工事、契約料が必要な場合あり)。
床暖房があり、冬も足元から暖かく快適に過ごすことができます。
このお部屋は2階以上に位置しているので通行人や周囲の住人からの視線が気になりにくく、建物のエントランスはオートロックがついているので防犯性が高くなっています。
おしゃれなデザイナーズ物件!フローリングのお部屋なのでお掃除もラクラク。キッチンはシステムキッチン仕様になっていますので、お料理好きの方にもぴったり。バス・トイレは別なので、のんびりお風呂タイムも楽しめるでしょう。また、雨の日でも浴室乾燥機を使えば、お洗濯も問題ありません。
通信設備面では、インターネット接続が可能です。また、BSアンテナもありますので、おうち時間も充実するでしょう(別途工事、契約料が必要な場合あり)。
床暖房があり、冬も足元から暖かく快適に過ごすことができます。
お金・契約の情報
※「-」と表示されているものは、実際は料金が発生するものもございます。詳細はお問い合わせください。
| 家賃 | 7.1万円 | 管理費・共益費 | 7,000円 |
|---|---|---|---|
| 敷金 | 5万円 | 礼金 | 5万円 |
| 入居決定でお祝い金最大100,000円 | |||
| 保証金 | - | 償却・敷引 | - |
| 住宅保険料 | 住宅保険料あり | 更新料 | - |
| 契約形態 | - | 契約期間 | 1年 |
| 入居・引渡期間 | 即時 | 現況 | 空室 |
| 契約備考 | 歩いて98mのところに伏見竹田口郵便局があります。セキュリティ面は、TVインターホン・オートロックなどを設置しているので安全面でも優れております。室内設備は浴室乾燥機・洗面化粧台など充実した設備を備え付けています。京都市伏見区や近鉄京都線伏見付近での新生活をご検討するなら、当社でお部屋探しをしてください。まずはお問い合わせからお待ちしております。 更新料:30,000円 保証会社:利用必須 初回保証料:総賃料50% その他設備/条件:IT重説 対応物件、防犯カメラ、コンロ2口以上、独立洗面台、TVドアホン、即入居可、敷地内ゴミ置場 | ||
部屋の情報
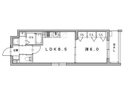
| 間取り | 1LDK | 専有面積 | 34.89m2 |
|---|---|---|---|
| 間取り詳細 | LDK(8.5帖)、洋室(6帖) | ||
| 所在階 / 向き | 2階 / 東 | バルコニー面積 | - |
| 水道 / ガス | ガス【都市】 | ||
| 設備 | バス・トイレ別、2階以上、オートロック、浴室乾燥機、インターネット対応、システムキッチン、エアコン、温水洗浄便座、バルコニー、フローリング、床暖房、コンロ:ガス、デザイナーズ、BSアンテナ、洗濯機:室内 | ||
| 当社物件ID | 160148076 | ||
建物の情報
| 建物名 | ベンリッジ | ||
|---|---|---|---|
| 所在地 | 京都府京都市伏見区加賀屋町 | ||
| 交通 | 近鉄京都線 伏見駅(京都) 徒歩5分 京阪電気鉄道京阪線 墨染駅 徒歩17分 京都市烏丸線 竹田駅(京都) 徒歩18分 | ||
| 階数 | 4階建 | 総戸数 | - |
| 築年月 | 2014年10月 / 築12年 | エレベーター | - |
| 駐車場 | - | バイク置き場 | - |
| 駐輪場 | あり | 管理人/管理会社 | - |
| 建物種別 | マンション | 建物構造 | RC(鉄筋コンクリート) |
この部屋の取扱い不動産会社
| 会社名 | 株式会社ユナイテッド・ウィル・キョウト 本店(賃貸スモッカ経由) | ||
|---|---|---|---|
| 所在地 | 京都府京都市伏見区深草大亀谷大山町21-1 | 交通 | - |
| 営業時間 | - | 定休日 | - |
| 免許番号 | 京都府知事免許(1)第14506号 | 取引態様 | 仲介 |
| 不動産会社管理番号 | uwkkyoto_321350001502309 | 当社管理番号 | 463 |
| 所属団体 | (公社)全国宅地建物取引業協会連合会\n(公社)京都府宅地建物取引業協会\n公益社団法人近畿地区不動産公正取引協議会 | ||
| 公正取引協議会 | (公社)全国宅地建物取引業保証協会 | ||
| 取扱い物件情報 | 物件詳細へ | ||
※各種情報と現状に差異がある場合は、現状優先となります。問い合わせをすることで、より詳しい条件、情報を確認する事ができます。
提供:株式会社ユナイテッド・ウィル・キョウト 本店(賃貸スモッカ経由)
この物件が気になったら掲載期限まであと6日
ベンリッジに条件(家賃・エリア)が近い物件一覧
| 写真 | 家賃 管理費等 | 敷金 礼金 | 間取り 専有面積 | 築年数 | 最寄り駅 所在地 | キープ | 詳細 |
|---|---|---|---|---|---|---|---|
アパート 阪急電鉄京都線 西山天王山駅 徒歩10分 築1年(1LDK/2階) | |||||||
![]() | 8.2万円 5,000円 | なし 12.3万円 | 1LDK 34.78m2 | 築1年 | 阪急電鉄京都線 西山天王山駅 徒歩10分 東海道本線 長岡京駅 徒歩22分 京都府長岡京市調子1丁目 | 詳細を見る | |
マンション 京都市東西線 六地蔵駅(京都市営) 徒歩3分 築1年(1LDK/1階) | |||||||
![]() | 7.6万円 5,000円 | なし 11.4万円 | 1LDK 31.77m2 | 築1年 | 京都市東西線 六地蔵駅(京都市営) 徒歩3分 奈良線 六地蔵駅(JR) 徒歩4分 京都府宇治市六地蔵 | 詳細を見る | |
アパート 近鉄京都線 伏見駅(京都) 徒歩6分 築8年(1K/2階) | |||||||
![]() | 6.3万円 4,000円 | なし 6.3万円 | 1K 22.62m2 | 築8年 | 近鉄京都線 伏見駅(京都) 徒歩6分 京阪電気鉄道京阪線 丹波橋駅 徒歩14分 京都府京都市伏見区上神泉苑町 | 詳細を見る | |
マンション 京都市東西線 六地蔵駅(京都市営) 徒歩3分 築1年(1LDK/2階) | |||||||
![]() | 7.8万円 5,000円 | なし 11.7万円 | 1LDK 30.18m2 | 築1年 | 京都市東西線 六地蔵駅(京都市営) 徒歩3分 奈良線 六地蔵駅(JR) 徒歩4分 京都府宇治市六地蔵 | 詳細を見る | |
一戸建て 京阪電気鉄道京阪線 淀駅 徒歩26分 築46年(3DK) | |||||||
![]() | 5.9万円 なし | なし なし | 3DK 60.61m2 | 築46年 | 京阪電気鉄道京阪線 淀駅 徒歩26分 東海道本線 長岡京駅 徒歩29分 阪急電鉄京都線 長岡天神駅 徒歩64分 京都府京都市伏見区淀樋爪町 | 詳細を見る | |
アパート 近鉄京都線 伏見駅(京都) 徒歩10分 築6年(1LDK/3階) | |||||||
![]() | 9.2万円 8,000円 | なし 10万円 | 1LDK 39.6m2 | 築6年 | 近鉄京都線 伏見駅(京都) 徒歩10分 京阪電気鉄道京阪線 丹波橋駅 徒歩13分 京都府京都市伏見区舞台町 | 詳細を見る | |
マンション 京阪電気鉄道宇治線 観月橋駅 徒歩8分 築36年(2LDK/3階) | |||||||
![]() | 6.7万円 9,000円 | なし 6.7万円 | 2LDK 54.14m2 | 築36年 | 京阪電気鉄道宇治線 観月橋駅 徒歩8分 近鉄京都線 向島駅 徒歩17分 京都府京都市伏見区向島本丸町 | 詳細を見る | |
マンション 近鉄京都線 伏見駅(京都) 徒歩1分 築9年(1K/2階) | |||||||
![]() | 6万円 5,000円 | なし 6万円 | 1K 24.7m2 | 築9年 | 近鉄京都線 伏見駅(京都) 徒歩1分 京阪電気鉄道京阪線 墨染駅 徒歩12分 京都府京都市伏見区深草柴田屋敷町 | 詳細を見る | |








