賃貸マンション
シャーメゾン相生通の賃貸物件情報(2LDK/3階)
| 家賃 | 管理費等 | 敷金 | 礼金 | 間取り | 専有面積 |
|---|---|---|---|---|---|
| 11.2万円 | 8,000円 | 3万円 | 20万円 | 2LDK | 59.07m2 |
入居決定でお祝い金最大100,000円
- 保証金
- -
- 償却・敷引
- -
- 築年数
- 築20年
- 所在階
- 3階
- 向き
- 南
Point
お部屋探しはツインホーム本店にお任せください!当店専任物件です!
提供:ツインホーム(株)本店(SUUMO経由)

詳細情報 シャーメゾン相生通
物件紹介
シャーメゾン相生通は阪堺電気軌道上町線北畠駅から徒歩6分にあり、駅近で通勤通学に便利なマンションです。
このお部屋は2階以上に位置しているので、通行人や周囲の住人からの視線が気になりにくく、防犯面でも安心。建物のエントランスはオートロックがついており、インターホンにはTVモニタもついているため、相手の顔を確認してから来客対応することができます。
人気の南向きのお部屋。また、フローリングなのでお掃除もラクラク。キッチンはシステムキッチン仕様になっていますので、お料理好きの方にもぴったり。バス・トイレは別なので、のんびりお風呂タイムも楽しめるでしょう。また、雨の日でも浴室乾燥機を使えば、お洗濯も問題ありません。
通信設備面では、インターネット接続が可能です。また、BSアンテナがありCATVにも対応しているので、おうち時間も充実するでしょう(別途工事、契約料が必要な場合あり)。
建物にはエレベーターがついているので、重い荷物があっても安心。共用部には宅配ボックスが設定されているので、不在の時にも荷物を受け取ることができます。
このお部屋は2階以上に位置しているので、通行人や周囲の住人からの視線が気になりにくく、防犯面でも安心。建物のエントランスはオートロックがついており、インターホンにはTVモニタもついているため、相手の顔を確認してから来客対応することができます。
人気の南向きのお部屋。また、フローリングなのでお掃除もラクラク。キッチンはシステムキッチン仕様になっていますので、お料理好きの方にもぴったり。バス・トイレは別なので、のんびりお風呂タイムも楽しめるでしょう。また、雨の日でも浴室乾燥機を使えば、お洗濯も問題ありません。
通信設備面では、インターネット接続が可能です。また、BSアンテナがありCATVにも対応しているので、おうち時間も充実するでしょう(別途工事、契約料が必要な場合あり)。
建物にはエレベーターがついているので、重い荷物があっても安心。共用部には宅配ボックスが設定されているので、不在の時にも荷物を受け取ることができます。
お金・契約の情報
※「-」と表示されているものは、実際は料金が発生するものもございます。詳細はお問い合わせください。
| 家賃 | 11.2万円 | 管理費・共益費 | 8,000円 |
|---|---|---|---|
| 敷金 | 3万円 | 礼金 | 20万円 |
| 入居決定でお祝い金最大100,000円 | |||
| 保証金 | - | 償却・敷引 | - |
| 住宅保険料 | - | 更新料 | - |
| 契約形態 | - | 契約期間 | - |
| 入居・引渡期間 | 即時 | 現況 | - |
| 契約備考 | 2LDK 二人入居可/子供可/ルームシェア相談 損保【要】 バストイレ別、バルコニー、ガスコンロ対応、クロゼット、フローリング、TVインターホン、浴室乾燥機、オートロック、シューズボックス、システムキッチン、追焚機能浴室、温水洗浄便座、脱衣所、エレベーター、洗面所独立、宅配ボックス、CATV、光ファイバー、即入居可、3口以上コンロ、独立型キッチン、全居室洋室、保証人不要、全居室フローリング、2沿線利用可、複層ガラス、クロゼット2ヶ所、ルームシェア相談、ミストサウナ、学生相談、2駅利用可、3駅以上利用可、3沿線以上利用可、駅徒歩10分以内、都市ガス、BS、年内入居可、年度内入居可 | ||
部屋の情報
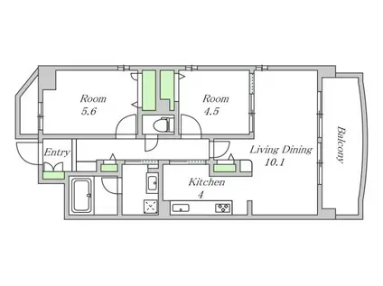
| 間取り | 2LDK | 専有面積 | 59.07m2 |
|---|---|---|---|
| 所在階 / 向き | 3階 / 南 | バルコニー面積 | - |
| 水道 / ガス | - | ||
| 設備 | バス・トイレ別、2階以上、オートロック、テレビドアホン、宅配ボックス、浴室乾燥機、追い焚き、インターネット対応、システムキッチン、エレベーター、温水洗浄便座、南向き、バルコニー、フローリング、洗髪洗面化粧台、2口コンロ、コンロ:ガス、CATV、BSアンテナ | ||
| 当社物件ID | 160215942 | ||
建物の情報
| 建物名 | シャーメゾン相生通 | ||
|---|---|---|---|
| 所在地 | 大阪府大阪市阿倍野区相生通 | ||
| 交通 | 阪堺電気軌道上町線 北畠駅 徒歩6分 阪堺電気軌道阪堺線 天神ノ森駅 徒歩7分 南海本線 岸里玉出駅 徒歩8分 | ||
| 階数 | 5階建 | 総戸数 | - |
| 築年月 | 2006年08月 / 築20年 | エレベーター | あり |
| 駐車場 | 空有 22000円 | バイク置き場 | - |
| 駐輪場 | - | 管理人/管理会社 | - |
| 周辺環境 | その他 かがやきの森保育園あいおい(幼稚園・保育園)まで194m その他 ローソンプラス 岸里東一丁目店(コンビニ)まで556m その他 ファミリーマート 聖天下二丁目店(コンビニ)まで719m その他 ローソン 天神ノ森店(コンビニ)まで506m その他 デイリーカナート 晴明通店(スーパー)まで660m その他 MaxValu(マックスバリュ) 南海岸里店(スーパー)まで741m | ||
| 建物種別 | マンション | 建物構造 | RC(鉄筋コンクリート) |
この部屋の取扱い不動産会社
| 会社名 | ツインホーム(株)本店(SUUMO経由) | ||
|---|---|---|---|
| 所在地 | 大阪府大阪市阿倍野区松崎町4-1-13 | 交通 | - |
| 営業時間 | 10:00~20:00 | 定休日 | なし |
| 免許番号 | 大阪府知事46704 | 取引態様 | 仲介 |
| 不動産会社管理番号 | 100482966159 | 当社管理番号 | 89 |
| 所属団体 | (公社)全日本不動産協会大阪府本部会員 | ||
| 公正取引協議会 | (公社)近畿地区不動産公正取引協議会加盟 | ||
| 取扱い物件情報 | 物件詳細へ | ||
※各種情報と現状に差異がある場合は、現状優先となります。問い合わせをすることで、より詳しい条件、情報を確認する事ができます。
提供:ツインホーム(株)本店(SUUMO経由)
この物件が気になったら掲載期限まであと10日
シャーメゾン相生通に条件(家賃・エリア)が近い物件一覧
| 写真 | 家賃 管理費等 | 敷金 礼金 | 間取り 専有面積 | 築年数 | 最寄り駅 所在地 | キープ | 詳細 |
|---|---|---|---|---|---|---|---|
マンション アパートメンツ江坂(ワンルーム/4階) | |||||||
| 9.1万円 1万円 | 9.1万円 なし | ワンルーム 30.6m2 | 築18年 | 大阪市御堂筋線 江坂駅 徒歩5分 阪急電鉄千里線 豊津駅(大阪) 徒歩24分 阪急電鉄宝塚線 服部天神駅 徒歩30分 大阪府吹田市豊津町16-10 | 詳細を見る | ||
マンション S-FORT江坂垂水町(1K/6階) | |||||||
| 9万円 9,000円 | なし 9万円 | 1K 25.23m2 | 築10年 | 北大阪急行南北線 江坂駅 徒歩10分 阪急電鉄千里線 豊津駅(大阪) 徒歩10分 阪急電鉄千里線 関大前駅 徒歩17分 大阪府吹田市垂水町3丁目5-13 | 詳細を見る | ||
マンション リブネスコート江坂(1DK/7階) | |||||||
| 7.9万円 9,000円 | なし 7.9万円 | 1DK 25.5m2 | 築2年 | 大阪市御堂筋線 江坂駅 徒歩12分 おおさか東線 南吹田駅 徒歩16分 阪急電鉄千里線 豊津駅(大阪) 徒歩20分 大阪府吹田市南吹田5丁目14-23 | 詳細を見る | ||
マンション 堂山コーポ(1SLDK/3階) | |||||||
![]() | 7.4万円 6,000円 | 5万円 25万円 | 1SLDK 51.3m2 | 築42年 | 京阪電気鉄道京阪線 門真市駅 徒歩9分 大阪モノレール本線 門真市駅 徒歩9分 大阪府門真市堂山町 | 詳細を見る | |
アパート GRACE下六万寺町(2LDK/2階) | |||||||
![]() | 9.7万円 7,000円 | なし なし | 2LDK 49m2 | 新築 | 近鉄難波・奈良線 瓢箪山駅(大阪) 徒歩13分 大阪府東大阪市下六万寺町3丁目 | 詳細を見る | |
マンション プレジオ永和ASIAN(1LDK/13階) | |||||||
![]() | 12.1万円 2万円 | なし なし | 1LDK 42.55m2 | 築1年 | 近鉄奈良線 河内永和駅 徒歩5分 JRおおさか東線 JR河内永和駅 徒歩6分 近鉄奈良線 河内小阪駅 徒歩8分 大阪府東大阪市高井田元町 | 詳細を見る | |
マンション ソレイユ八尾(2LDK/3階) | |||||||
![]() | 10.8万円 7,000円 | なし 20万円 | 2LDK 61m2 | 築12年 | 近鉄大阪線 近鉄八尾駅 徒歩11分 関西本線 八尾駅 徒歩12分 近鉄大阪線 久宝寺口駅 徒歩21分 大阪府八尾市光南町1丁目 | 詳細を見る | |
マンション アンフィニⅥ(1K/3階) | |||||||
| 6.8万円 3,000円 | 5万円 15万円 | 1K 29.56m2 | 築24年 | 東海道本線 吹田駅(JR) 徒歩5分 阪急電鉄千里線 吹田駅(阪急) 徒歩15分 阪急電鉄京都線 相川駅 徒歩19分 大阪府吹田市片山町1丁目14-4 | 詳細を見る | ||





