賃貸アパート
リブリ・アデーレの賃貸物件情報(1K/1階)
| 家賃 | 管理費等 | 敷金 | 礼金 | 間取り | 専有面積 |
|---|---|---|---|---|---|
| 6.9万円 | 4,000円 | なし | 6.9万円 | 1K | 22.35m2 |
入居決定でお祝い金最大100,000円
- 保証金
- -
- 償却・敷引
- -
- 築年数
- 築14年
- 所在階
- 1階
- 向き
- 南
Point
入居審査不安な方や初期費用キャンペーン物件(※分割払い対応)他にもインターネット上に公開されてない物件多数取扱有り!【学生様・新社会人様】の方への入居希望時期等についても相談下さい。
提供:(株)OSラテルーム大宮(SUUMO経由)

詳細情報 リブリ・アデーレ
物件紹介
リブリ・アデーレは東武野田線北大宮駅から徒歩2分にあり、駅近で通勤通学に便利なアパートです。
このお部屋のインターホンにはTVモニタがついているため、相手の顔を確認してから来客対応することができます。
おしゃれなデザイナーズ物件!人気の南向き・フローリングのお部屋。角部屋でもあるため、周囲の居住者の生活音も気になりにくい場所です。キッチンはシステムキッチン仕様になっていますので、お料理好きの方にもぴったり。バス・トイレは別なので、のんびりお風呂タイムも楽しめるでしょう。また、雨の日でも浴室乾燥機を使えば、お洗濯も問題ありません。
通信設備面ではBSアンテナがありますので、おうち時間も充実するでしょう(別途工事、契約料が必要な場合あり)。
共用部には宅配ボックスが設定されているので、不在の時にも荷物を受け取ることができます。
このお部屋のインターホンにはTVモニタがついているため、相手の顔を確認してから来客対応することができます。
おしゃれなデザイナーズ物件!人気の南向き・フローリングのお部屋。角部屋でもあるため、周囲の居住者の生活音も気になりにくい場所です。キッチンはシステムキッチン仕様になっていますので、お料理好きの方にもぴったり。バス・トイレは別なので、のんびりお風呂タイムも楽しめるでしょう。また、雨の日でも浴室乾燥機を使えば、お洗濯も問題ありません。
通信設備面ではBSアンテナがありますので、おうち時間も充実するでしょう(別途工事、契約料が必要な場合あり)。
共用部には宅配ボックスが設定されているので、不在の時にも荷物を受け取ることができます。
お金・契約の情報
※「-」と表示されているものは、実際は料金が発生するものもございます。詳細はお問い合わせください。
| 家賃 | 6.9万円 | 管理費・共益費 | 4,000円 |
|---|---|---|---|
| 敷金 | なし | 礼金 | 6.9万円 |
| 入居決定でお祝い金最大100,000円 | |||
| 保証金 | - | 償却・敷引 | - |
| 住宅保険料 | - | 更新料 | - |
| 保証会社利用 | 必須 | 保証会社名 | - |
| 保証会社費用 | - | 保証会社備考 | 保証会社利用必 指定の保証会社【初回100%・月額保証料:月額総額の1.1%】 |
| 契約形態 | 定期借家 | 契約期間 | 2年 |
| 入居・引渡期間 | - | 現況 | - |
| 契約備考 | ※仲介手数料 無料※『ご来店初めてのお客様・当物件を契約に限る』掲載の物件写真は実際の設備と異なることがありますのでご了承ください。現状優先での貸し出しとなります。※1年未満の解約の場合、総賃料1か月分の短期解約違約金特約有り 合計8.47万円(内訳:退去時クリーニング費3.63万円室内消毒費用1.65万円会費(初回)0.77万円鍵交換代2.42万円) 口座振替手数料 月額330円 1K 定期借家2年 損保【1.9万円2年】 バストイレ別、バルコニー、エアコン、ガスコンロ対応、クロゼット、フローリング、シャワー付洗面台、TVインターホン、浴室乾燥機、室内洗濯置、シューズボックス、システムキッチン、南向き、角住戸、温水洗浄便座、脱衣所、洗面所独立、洗面化粧台、2口コンロ、駐輪場、宅配ボックス、最上階、敷金不要、照明付、全居室洋室、保証人不要、仲介手数料不要、24時間緊急通報システム、全居室フローリング、デザイナーズ、2沿線利用可、ディンプルキー、ダブルロックキー、保証金不要、24時間換気システム、2駅利用可、3駅以上利用可、3沿線以上利用可、駅徒歩5分以内、駅徒歩10分以内、外壁サイディング、敷地内ごみ置き場、セキュリティ会社加入済、南面バルコニー、BS、保証会社利用可、IT重説対応物件、初期費用カード決済可 入居日:'26年3月中旬 | ||
部屋の情報
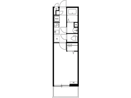
| 間取り | 1K | 専有面積 | 22.35m2 |
|---|---|---|---|
| 所在階 / 向き | 1階 / 南 | バルコニー面積 | - |
| 水道 / ガス | - | ||
| 設備 | バス・トイレ別、テレビドアホン、宅配ボックス、浴室乾燥機、システムキッチン、エアコン、温水洗浄便座、南向き、角部屋、バルコニー、フローリング、洗髪洗面化粧台、2口コンロ、コンロ:ガス、デザイナーズ、BSアンテナ、洗濯機:室内 | ||
| 当社物件ID | 160374332 | ||
建物の情報
| 建物名 | リブリ・アデーレ | ||
|---|---|---|---|
| 所在地 | 埼玉県さいたま市大宮区土手町 | ||
| 交通 | 東武野田線 北大宮駅 徒歩2分 JR京浜東北線 大宮駅(埼玉) 徒歩16分 埼玉新都市交通伊奈線 鉄道博物館駅 徒歩17分 | ||
| 階数 | 3階建 | 総戸数 | - |
| 築年月 | 2012年10月 / 築14年 | エレベーター | - |
| 駐車場 | 近隣 300m13200円/平置駐 | バイク置き場 | - |
| 駐輪場 | あり | 管理人/管理会社 | - |
| 周辺環境 | その他 平成国際大学設置準備室(大学・短大)まで2731m その他 専門学校高崎福祉医療カレッジ大宮キャンパス(その他)まで1216m その他 みたにクリニック(病院)まで382m その他 maruetsu(マルエツ) 大成店(スーパー)まで781m その他 マルヤ 岩槻店(ショッピングセンター)まで1565m その他 セブンイレブン さいたま土手町店(コンビニ)まで259m | ||
| 建物種別 | アパート | 建物構造 | 鉄骨造 |
この部屋の取扱い不動産会社
| 会社名 | (株)OSラテルーム大宮(SUUMO経由) | ||
|---|---|---|---|
| 所在地 | 埼玉県さいたま市大宮区桜木町2-400 東京殖産第3ビル6階 | 交通 | - |
| 営業時間 | 10時~19時 | 定休日 | 水曜日 |
| 免許番号 | 国土交通大臣10788 | 取引態様 | 仲介 |
| 不動産会社管理番号 | 100487677053 | 当社管理番号 | 89 |
| 所属団体 | (公社)埼玉県宅地建物取引業協会会員 | ||
| 公正取引協議会 | (公社)首都圏不動産公正取引協議会加盟 | ||
| 取扱い物件情報 | 物件詳細へ | ||
※各種情報と現状に差異がある場合は、現状優先となります。問い合わせをすることで、より詳しい条件、情報を確認する事ができます。
提供:(株)OSラテルーム大宮(SUUMO経由)
この物件が気になったら掲載期限まであと10日
リブリ・アデーレに条件(家賃・エリア)が近い物件一覧
| 写真 | 家賃 管理費等 | 敷金 礼金 | 間取り 専有面積 | 築年数 | 最寄り駅 所在地 | キープ | 詳細 |
|---|---|---|---|---|---|---|---|
マンション アヴァンス(1K/2階) | |||||||
![]() | 5.7万円 5,000円 | 5.7万円 11.4万円 | 1K 25.8m2 | 築13年 | 東武東上線 鶴瀬駅 徒歩3分 東武東上線 みずほ台駅 徒歩19分 埼玉県富士見市 | 詳細を見る | |
マンション シーワン新宿(1K/3階) | |||||||
![]() | 5.2万円 3,000円 | なし なし | 1K 26.73m2 | 築23年 | 東武東上線 川越駅 徒歩20分 西武新宿線 南大塚駅 徒歩27分 埼玉県川越市新宿町 | 詳細を見る | |
マンション レオパレス岸町(1K/3階) | |||||||
![]() | 6.5万円 7,000円 | なし なし | 1K 19.87m2 | 築16年 | 埼玉県川越市岸町3丁目 | 詳細を見る | |
マンション THE GARLANDS(1K/1階) | |||||||
![]() | 7.2万円 5,000円 | なし なし | 1K 21.94m2 | 築1年 | JR京浜東北線 西川口駅 徒歩7分 JR京浜東北線 川口駅 徒歩20分 埼玉県川口市西川口 | 詳細を見る | |
アパート レオパレスコルレオニスⅠ(1K/1階) | |||||||
![]() | 4.7万円 5,000円 | なし なし | 1K 23.61m2 | 築19年 | 川越線 笠幡駅 徒歩12分 埼玉県川越市大字笠幡 | 詳細を見る | |
マンション メゾングレース川口(2DK/3階) | |||||||
![]() | 6.7万円 3,000円 | なし 6.7万円 | 2DK 45m2 | 築39年 | 埼玉高速鉄道 鳩ケ谷駅 徒歩25分 埼玉高速鉄道 新井宿駅 徒歩36分 JR京浜東北線 蕨駅 徒歩44分 埼玉県川口市前川 | 詳細を見る | |
マンション キャピタルⅡ(2DK/1階) | |||||||
![]() | 6.5万円 なし | 6.5万円 なし | 2DK 40m2 | 築36年 | 東武伊勢崎線 越谷駅 徒歩19分 東武伊勢崎線 北越谷駅 徒歩21分 JR武蔵野線 南越谷駅 徒歩35分 埼玉県越谷市宮本町 | 詳細を見る | |
マンション リブリ・フォーエバー(1K/2階) | |||||||
![]() | 5.8万円 4,000円 | なし なし | 1K 26.08m2 | 築14年 | 東武伊勢崎線 大袋駅 徒歩11分 東武伊勢崎線 せんげん台駅 徒歩27分 東武伊勢崎線 北越谷駅 徒歩29分 埼玉県越谷市大字袋山 | 詳細を見る | |









