賃貸アパート
シンコウハイツの賃貸物件情報(ワンルーム/3階)
| 家賃 | 管理費等 | 敷金 | 礼金 | 間取り | 専有面積 |
|---|---|---|---|---|---|
| 4.3万円 | 3,000円 | 4.3万円 | なし | ワンルーム | 20.66m2 |
入居決定でお祝い金最大100,000円
Point
家賃5万円以下の物件です。ワンルームは、一人暮らしの方からのニーズがあります。
提供:ハウスコム埼玉株式会社 川口店

詳細情報 シンコウハイツ
物件紹介
シンコウハイツは東武伊勢崎・大師線新田駅から徒歩16分にあるアパートです。
こちらの物件は女性限定の物件となっているため、セキュリティ面を重視する女性にも安心してお選びいただけます。また、2階以上に位置しているので、通行人や周囲の住人からの視線が気になりにくいのも安心できるポイントです。
フローリングのお部屋なのでお掃除もラクラク。バス・トイレ別の仕様で、のんびりお風呂タイムも楽しめます。
こちらの物件は女性限定の物件となっているため、セキュリティ面を重視する女性にも安心してお選びいただけます。また、2階以上に位置しているので、通行人や周囲の住人からの視線が気になりにくいのも安心できるポイントです。
フローリングのお部屋なのでお掃除もラクラク。バス・トイレ別の仕様で、のんびりお風呂タイムも楽しめます。
お金・契約の情報
※「-」と表示されているものは、実際は料金が発生するものもございます。詳細はお問い合わせください。
| 家賃 | 4.3万円 | 管理費・共益費 | 3,000円 |
|---|---|---|---|
| 敷金 | 4.3万円 | 礼金 | なし |
| 入居決定でお祝い金最大100,000円 | |||
| 保証金 | - | 償却・敷引 | - |
| 住宅保険料 | 1円 | 更新料 | - |
| 保証会社利用 | 必須 | 保証会社名 | - |
| 保証会社費用 | - | 保証会社備考 | 初回50% |
| 契約形態 | - | 契約期間 | 2年 |
| 入居・引渡期間 | 即時 | 現況 | - |
| 入居可能条件 | 女性限定 | ||
| 契約備考 | クリーニング費33000円 保険16000円 その他設備/条件:室内洗濯機置き場 | ||
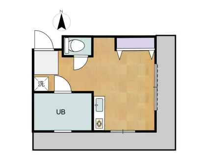
部屋の情報
| 間取り | ワンルーム | 専有面積 | 20.66m2 |
|---|---|---|---|
| 間取り詳細 | 洋室(6帖) | ||
| 所在階 / 向き | 3階 / - | バルコニー面積 | - |
| 水道 / ガス | - | ||
| 設備 | バス・トイレ別、エアコン、バルコニー、フローリング、給湯 | ||
| 当社物件ID | 159162337 | ||
建物の情報
| 建物名 | シンコウハイツ | ||
|---|---|---|---|
| 所在地 | 埼玉県草加市金明町 | ||
| 交通 | 東武伊勢崎・大師線 新田駅(埼玉) 徒歩16分 | ||
| 階数 | 3階建 | 総戸数 | - |
| 築年月 | 1995年01月 / 築31年 | エレベーター | - |
| 駐車場 | - | バイク置き場 | - |
| 駐輪場 | - | 管理人/管理会社 | - |
| 周辺環境 | 中学校 新田中学校 徒歩5分(324m) 小学校 草加市立長栄小学校 徒歩6分(459m) その他 ドラッグストア その他 公園 その他 銀行 その他 * | ||
| 建物種別 | アパート | 建物構造 | 鉄骨造 |
この部屋の取扱い不動産会社
| 会社名 | ハウスコム埼玉株式会社 草加店 | ||
|---|---|---|---|
| 所在地 | 埼玉県草加市2120-6中山ビル1階 | 交通 | - |
| 営業時間 | 10:00~18:00 | 定休日 | - |
| 免許番号 | 埼玉県知事(1)第24888号 | 取引態様 | 仲介 |
| 不動産会社管理番号 | HC2-5025708-302-0147 | 当社管理番号 | 468 |
| 所属団体 | 、 | ||
| 取扱い物件情報 | 物件詳細へ | ||
※各種情報と現状に差異がある場合は、現状優先となります。問い合わせをすることで、より詳しい条件、情報を確認する事ができます。
提供:ハウスコム埼玉株式会社 草加店
この物件が気になったら掲載期限まであと4日
シンコウハイツに条件(家賃・エリア)が近い物件一覧
| 写真 | 家賃 管理費等 | 敷金 礼金 | 間取り 専有面積 | 築年数 | 最寄り駅 所在地 | キープ | 詳細 |
|---|---|---|---|---|---|---|---|
アパート レオパレスWISTERIA(1K/2階) | |||||||
![]() | 4.9万円 7,000円 | なし 4.9万円 | 1K 20.28m2 | 築21年 | 東武伊勢崎線 新田駅(埼玉) 徒歩25分 東武伊勢崎線 蒲生駅 徒歩29分 JR武蔵野線 越谷レイクタウン駅 徒歩34分 埼玉県越谷市伊原 | 詳細を見る | |
アパート DIMORA安行領根岸(1K/1階) | |||||||
![]() | 5.8万円 3,000円 | なし なし | 1K 19.98m2 | 築1年 | 武蔵野線 東浦和駅 徒歩24分 埼玉県川口市大字安行領根岸 | 詳細を見る | |
マンション スカーレットII(1K/3階) | |||||||
![]() | 5.5万円 2,000円 | 5.5万円 なし | 1K 24m2 | 築23年 | 東武伊勢崎線 新田駅(埼玉) 徒歩7分 東武伊勢崎線 獨協大学前駅 徒歩19分 埼玉県草加市旭町 | 詳細を見る | |
マンション リキマンション(2DK/3階) | |||||||
![]() | 5.7万円 3,000円 | 5.7万円 なし | 2DK 45.65m2 | 築33年 | 東武伊勢崎線 新田駅(埼玉) 徒歩13分 埼玉県草加市新善町 | 詳細を見る | |
マンション ティエラ(1K/3階) | |||||||
![]() | 6.7万円 3,000円 | 6.7万円 6.7万円 | 1K 22.27m2 | 築15年 | 京浜東北・根岸線 川口駅 徒歩6分 埼玉高速鉄道 川口元郷駅 徒歩9分 埼玉県川口市本町4丁目 | 詳細を見る | |
アパート レオパレスルミエール東領家(1K/1階) | |||||||
![]() | 5.8万円 5,000円 | なし 5.8万円 | 1K 19.87m2 | 築22年 | 日暮里・舎人ライナー 谷在家駅 徒歩27分 埼玉県川口市東領家 | 詳細を見る | |
アパート レオパレス西川口第30(1DK/2階) | |||||||
![]() | 5.6万円 5,000円 | なし 5.6万円 | 1DK 25.9m2 | 築38年 | 京浜東北・根岸線 西川口駅 徒歩31分 埼玉県川口市上青木2丁目 | 詳細を見る | |
アパート サニープレイス(1K/1階) | |||||||
![]() | 6.4万円 3,000円 | なし 6.7万円 | 1K 26.08m2 | 築5年 | JR武蔵野線 東川口駅 徒歩13分 埼玉高速鉄道 戸塚安行駅 徒歩35分 埼玉高速鉄道 浦和美園駅 徒歩42分 埼玉県川口市東川口 | 詳細を見る | |








