賃貸マンション
ザ・パークハビオ谷町六丁目テラスの賃貸物件情報(1K/12階)
| 家賃 | 管理費等 | 敷金 | 礼金 | 間取り | 専有面積 |
|---|---|---|---|---|---|
| 9.3万円 | 1.2万円 | なし | 9.3万円 | 1K | 25.03m2 |
入居決定でお祝い金最大100,000円
Point
⇒詳細はアパマンショップ上本町店までお問い合わせください!
提供:アパマンショップ上本町店

詳細情報 ザ・パークハビオ谷町六丁目テラス
物件紹介
ザ・パークハビオ谷町六丁目テラスは大阪メトロ谷町線谷町六丁目駅から徒歩5分にあり、駅近で通勤通学に便利なマンションです。
このお部屋は2階以上に位置しているので、通行人や周囲の住人からの視線が気になりにくく、防犯面でも安心。建物のエントランスはオートロックがついており、インターホンにはTVモニタもついているため、相手の顔を確認してから来客対応することができます。
人気の南向きのお部屋。また、フローリングなのでお掃除もラクラク。キッチンはシステムキッチン仕様になっていますので、お料理好きの方にもぴったり。バス・トイレは別なので、のんびりお風呂タイムも楽しめるでしょう。また、雨の日でも浴室乾燥機を使えば、お洗濯も問題ありません。
通信設備面では、インターネットが無料で使えるので、月々の出費を抑えられるのも魅力です。また、BSアンテナ・CSアンテナもありますので、おうち時間も充実するでしょう(別途工事、BS・CSの契約料等が必要な場合あり)。
建物にはエレベーターがついているので、重い荷物があっても安心。共用部には宅配ボックスが設定されているので、不在の時にも荷物を受け取ることができます。また、ペット飼育の相談ができますので、あなたの大切な家族の一員も快適に暮らせるか、ぜひ確認してみてください。
このお部屋は2階以上に位置しているので、通行人や周囲の住人からの視線が気になりにくく、防犯面でも安心。建物のエントランスはオートロックがついており、インターホンにはTVモニタもついているため、相手の顔を確認してから来客対応することができます。
人気の南向きのお部屋。また、フローリングなのでお掃除もラクラク。キッチンはシステムキッチン仕様になっていますので、お料理好きの方にもぴったり。バス・トイレは別なので、のんびりお風呂タイムも楽しめるでしょう。また、雨の日でも浴室乾燥機を使えば、お洗濯も問題ありません。
通信設備面では、インターネットが無料で使えるので、月々の出費を抑えられるのも魅力です。また、BSアンテナ・CSアンテナもありますので、おうち時間も充実するでしょう(別途工事、BS・CSの契約料等が必要な場合あり)。
建物にはエレベーターがついているので、重い荷物があっても安心。共用部には宅配ボックスが設定されているので、不在の時にも荷物を受け取ることができます。また、ペット飼育の相談ができますので、あなたの大切な家族の一員も快適に暮らせるか、ぜひ確認してみてください。
お金・契約の情報
※「-」と表示されているものは、実際は料金が発生するものもございます。詳細はお問い合わせください。
| 家賃 | 9.3万円 | 管理費・共益費 | 1.2万円 |
|---|---|---|---|
| 敷金 | なし | 礼金 | 9.3万円 |
| 入居決定でお祝い金最大100,000円 | |||
| 保証金 | - | 償却・敷引 | - |
| 住宅保険料 | 1.8万円(2年) | 更新料 | - |
| 保証会社利用 | 必須 | 保証会社名 | SBIギャランティ |
| 保証会社費用 | - | 保証会社備考 | 初回:総賃料50% 更新:総賃料1%/月 |
| 契約形態 | - | 契約期間 | 2年 |
| 入居・引渡期間 | 相談 | 現況 | - |
| 入居可能条件 | ペット可 | ||
部屋の情報
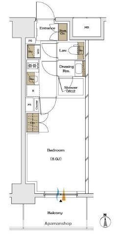
| 間取り | 1K | 専有面積 | 25.03m2 |
|---|---|---|---|
| 間取り詳細 | 洋室(8帖) | ||
| 所在階 / 向き | 12階 / 南 | バルコニー面積 | - |
| 水道 / ガス | ガス【都市】 | ||
| 設備 | バス・トイレ別、オートロック、テレビドアホン、宅配ボックス、浴室乾燥機、光ファイバー対応、システムキッチン、エレベーター、温水洗浄便座、バルコニー、フローリング、コンロ:ガス、CSアンテナ、BSアンテナ、インターネット使用料無料、シャワー、給湯、冷房、洗濯機:室内、閑静な住宅街 | ||
| 当社物件ID | 160102920 | ||
建物の情報
| 建物名 | ザ・パークハビオ谷町六丁目テラス | ||
|---|---|---|---|
| 所在地 | 大阪府大阪市中央区谷町7丁目 | ||
| 交通 | 大阪メトロ谷町線 谷町六丁目駅 徒歩5分 | ||
| 階数 | 14階建 | 総戸数 | 120戸 |
| 築年月 | 2026年02月 / 新築 | エレベーター | あり |
| 駐車場 | 空有 3.63万円/月 バイク置場:8,800円 ミニバイク置場:5,500円 駐輪場:330円or660円 | バイク置き場 | あり |
| 駐輪場 | あり | 管理人/管理会社 | - |
| 建物種別 | マンション | 建物構造 | RC(鉄筋コンクリート) |
この部屋の取扱い不動産会社
| 会社名 | アパマンショップ上本町店 | ||
|---|---|---|---|
| 所在地 | 大阪府大阪市天王寺区上汐3丁目 1-25モリビル1階 | 交通 | 大阪市谷町線谷町九丁目から徒歩2分 |
| 営業時間 | 10:00〜19:00(水曜定休日です。) | 定休日 | 水曜日 |
| 免許番号 | 大阪府知事(2)59130 | 取引態様 | 仲介 |
| 不動産会社管理番号 | 111476916 | 当社管理番号 | 4 |
| 所属団体 | (一社)大阪府宅地建物取引業協会 | ||
| 公正取引協議会 | (公社) 近畿地区不動産公正取引協議会加盟 | ||
| 取扱い物件情報 | 物件詳細へ | ||
※各種情報と現状に差異がある場合は、現状優先となります。問い合わせをすることで、より詳しい条件、情報を確認する事ができます。
提供:アパマンショップ上本町店
この物件が気になったら掲載期限まであと12日
ザ・パークハビオ谷町六丁目テラスの空き部屋一覧
全部で51の空き部屋があります。
ザ・パークハビオ谷町六丁目テラスに条件(家賃・エリア)が近い物件一覧
| 写真 | 家賃 管理費等 | 敷金 礼金 | 間取り 専有面積 | 築年数 | 最寄り駅 所在地 | キープ | 詳細 |
|---|---|---|---|---|---|---|---|
アパート レオパレスパレス三島(1K/2階) | |||||||
| 6万円 5,000円 | なし 6万円 | 1K 19.87m2 | 築22年 | 大阪モノレール本線 摂津駅 徒歩9分 阪急電鉄京都線 正雀駅 徒歩16分 阪急電鉄京都線 摂津市駅 徒歩17分 大阪府摂津市三島2丁目4-33 | 詳細を見る | ||
マンション トップヒルコート(2DK/2階) | |||||||
| 5.8万円 5,000円 | 5万円 15万円 | 2DK 40m2 | 築31年 | 阪急電鉄千里線 山田駅(大阪) 徒歩22分 大阪モノレール本線 万博記念公園駅(大阪) 徒歩25分 阪急電鉄千里線 南千里駅 徒歩30分 大阪府吹田市山田東2丁目17-2 | 詳細を見る | ||
マンション WGB江坂(1K/7階) | |||||||
| 6.8万円 8,000円 | なし なし | 1K 26.02m2 | 築17年 | 北大阪急行南北線 江坂駅 徒歩13分 おおさか東線 南吹田駅 徒歩15分 大阪市御堂筋線 東三国駅 徒歩22分 大阪府吹田市南吹田5丁目16-24 | 詳細を見る | ||
マンション 南海電鉄南海本線 諏訪ノ森駅 徒歩12分 築35年(2LDK/1階) | |||||||
![]() | 9.2万円 8,000円 | なし なし | 2LDK 68.95m2 | 築35年 | 南海電鉄南海本線 諏訪ノ森駅 徒歩12分 南海電鉄南海本線 浜寺公園駅 徒歩18分 阪和線 津久野駅 徒歩22分 大阪府堺市西区浜寺船尾町西4丁 | 詳細を見る | |
マンション リブリ・マノアフォールズ(1K/2階) | |||||||
![]() | 6.4万円 4,000円 | なし 6.4万円 | 1K 26.08m2 | 築8年 | 大阪モノレール本線 門真市駅 徒歩10分 大阪府門真市月出町 | 詳細を見る | |
マンション ユリ乃ヒルズ(ワンルーム/2階) | |||||||
| 7.5万円 7,000円 | なし 10万円 | ワンルーム 27.32m2 | 築9年 | 東海道本線 吹田駅(JR) 徒歩2分 阪急電鉄千里線 吹田駅(阪急) 徒歩9分 阪急電鉄京都線 相川駅 徒歩15分 大阪府吹田市元町5-15 | 詳細を見る | ||
アパート ローエングラム大日(1K/1階) | |||||||
![]() | 6.5万円 3,000円 | 6.5万円 6.5万円 | 1K 31.57m2 | 築9年 | 大阪市谷町線 大日駅 徒歩5分 大阪モノレール本線 大日駅 徒歩5分 大阪府守口市大日東町 | 詳細を見る | |




