賃貸アパート
大町東1丁目 紀陽ビルの賃貸物件情報(1K/2階)
| 家賃 | 管理費等 | 敷金 | 礼金 | 間取り | 専有面積 |
|---|---|---|---|---|---|
| 6.2万円 | 3,000円 | 6.2万円 | 6.2万円 | 1K | 47.96m2 |
入居決定でお祝い金最大100,000円
- 保証金
- -
- 償却・敷引
- -
- 築年数
- 築47年
- 所在階
- 2階
- 向き
- 南
Point
◆ペット相談可能(敷金+1か月)◆リノベーション◆最寄りのスーパーまで徒歩1分◆南向き・3面採光で日当たり・通風良好♪◆オール電化◆ネット使用料無料★◆お気軽に良和ハウスまでお問い合わせください★
提供:(株)良和ハウス安佐南店(SUUMO経由)

詳細情報 大町東1丁目 紀陽ビル
物件紹介
大町東1丁目 紀陽ビルはJR可部線古市橋駅から徒歩7分にあり、駅近で通勤通学に便利なアパートです。
このお部屋は2階以上に位置しているので、通行人や周囲の住人からの視線が気になりにくく、防犯面でも安心です。
人気の南向きのお部屋。また、フローリングなのでお掃除もラクラク。バス・トイレ別の仕様で、のんびりお風呂タイムも楽しめます。
通信設備面では、インターネットが無料で使えるので、月々の出費を抑えられるのも魅力です(別途工事等が必要な場合あり)。
ペット飼育の相談ができますので、あなたの大切な家族の一員も快適に暮らせるか、ぜひ確認してみてください。
このお部屋は2階以上に位置しているので、通行人や周囲の住人からの視線が気になりにくく、防犯面でも安心です。
人気の南向きのお部屋。また、フローリングなのでお掃除もラクラク。バス・トイレ別の仕様で、のんびりお風呂タイムも楽しめます。
通信設備面では、インターネットが無料で使えるので、月々の出費を抑えられるのも魅力です(別途工事等が必要な場合あり)。
ペット飼育の相談ができますので、あなたの大切な家族の一員も快適に暮らせるか、ぜひ確認してみてください。
お金・契約の情報
※「-」と表示されているものは、実際は料金が発生するものもございます。詳細はお問い合わせください。
| 家賃 | 6.2万円 | 管理費・共益費 | 3,000円 |
|---|---|---|---|
| 敷金 | 6.2万円 | 礼金 | 6.2万円 |
| 入居決定でお祝い金最大100,000円 | |||
| 保証金 | - | 償却・敷引 | - |
| 住宅保険料 | - | 更新料 | - |
| 契約形態 | - | 契約期間 | - |
| 入居・引渡期間 | 即時 | 現況 | - |
| 入居可能条件 | 事務所可、ペット相談 | ||
| 契約備考 | 1K ペット相談/事務所利用相談 損保【1.5万円2年】 バストイレ別、バルコニー、エアコン、クロゼット、シャワー付洗面台、室内洗濯置、陽当り良好、南向き、押入、即入居可、2面採光、ペット相談、IHクッキングヒーター、出窓、全居室洋室、単身者相談、二人入居相談、オール電化、全居室フローリング、2沿線利用可、駅まで平坦、ネット使用料不要、キッチンに窓、事務所相談、平坦地、ルームシェア相談、3駅以上利用可、駅徒歩10分以内、24時間ゴミ出し可、敷地内ごみ置き場、三面鏡付洗面化粧台、リノベーション、初期費用カード決済可、通風良好 | ||
部屋の情報
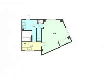
| 間取り | 1K | 専有面積 | 47.96m2 |
|---|---|---|---|
| 所在階 / 向き | 2階 / 南 | バルコニー面積 | - |
| 水道 / ガス | - | ||
| 設備 | バス・トイレ別、2階以上、インターネット対応、エアコン、南向き、バルコニー、フローリング、オール電化、コンロ:IH、インターネット使用料無料、洗濯機:室内 | ||
| 当社物件ID | 37910816 | ||
建物の情報
| 建物名 | 大町東1丁目 紀陽ビル | ||
|---|---|---|---|
| 所在地 | 広島県広島市安佐南区大町東 | ||
| 交通 | JR可部線 古市橋駅 徒歩7分 JR可部線 大町駅(広島) 徒歩12分 広島高速交通アストラムライン 古市駅(広島) 徒歩13分 | ||
| 階数 | 3階建 | 総戸数 | 10戸 |
| 築年月 | 1979年10月 / 築47年 | エレベーター | - |
| 駐車場 | なし | バイク置き場 | - |
| 駐輪場 | - | 管理人/管理会社 | - |
| 周辺環境 | その他 天満屋広島緑井店(ショッピングセンター)まで2073m その他 ゆめマート大町店(スーパー)まで194m その他 セブンイレブン広島古市3丁目店(コンビニ)まで521m その他 ザグザグ古市店(ドラッグストア)まで418m その他 広島市立古市小学校(小学校)まで783m その他 広島医療生活協同組合広島共立病院(病院)まで1440m | ||
| 建物種別 | アパート | 建物構造 | 鉄骨造 |
この部屋の取扱い不動産会社
| 会社名 | (株)良和ハウス横川駅前店(SUUMO経由) | ||
|---|---|---|---|
| 所在地 | 広島県広島市西区横川町3-12-1 | 交通 | - |
| 営業時間 | 10時~18時 | 定休日 | 水曜日 |
| 免許番号 | 国土交通大臣9113 | 取引態様 | 仲介 |
| 不動産会社管理番号 | 100468166772 | 当社管理番号 | 89 |
| 所属団体 | (公社)広島県宅地建物取引業協会会員 | ||
| 公正取引協議会 | 中国地区不動産公正取引協議会加盟 | ||
| 取扱い物件情報 | 物件詳細へ | ||
※各種情報と現状に差異がある場合は、現状優先となります。問い合わせをすることで、より詳しい条件、情報を確認する事ができます。
提供:(株)良和ハウス横川駅前店(SUUMO経由)
この物件が気になったら掲載期限まであと11日
大町東1丁目 紀陽ビルに条件(家賃・エリア)が近い物件一覧
| 写真 | 家賃 管理費等 | 敷金 礼金 | 間取り 専有面積 | 築年数 | 最寄り駅 所在地 | キープ | 詳細 |
|---|---|---|---|---|---|---|---|
マンション ルーエ祇園(1K/2階) | |||||||
![]() | 4.5万円 なし | 9万円 4.5万円 | 1K 29.8m2 | 築24年 | 可部線 下祇園駅 徒歩15分 アストラムライン 西原駅(広島) 徒歩23分 広島県広島市安佐南区祇園5丁目 | 詳細を見る | |
一戸建て 可部線 七軒茶屋駅 徒歩9分 築44年(3LDK) | |||||||
![]() | 5.5万円 なし | 16.5万円 5.5万円 | 3LDK 65.42m2 | 築44年 | 可部線 七軒茶屋駅 徒歩9分 アストラムライン 大町駅(広島) 徒歩29分 広島県広島市安佐南区緑井8丁目 | 詳細を見る | |
マンション スカイシティ5番館(1LDK/2階) | |||||||
![]() | 5.8万円 3,000円 | なし 5.8万円 | 1LDK 38m2 | 築36年 | アストラムライン 西原駅(広島) 徒歩18分 芸備線 戸坂駅 徒歩20分 アストラムライン 中筋駅 徒歩22分 広島県広島市安佐南区東野1丁目 | 詳細を見る | |
アパート リバーサイド川内I(3DK/2階) | |||||||
![]() | 7万円 なし | なし 7万円 | 3DK 60m2 | 築34年 | 芸備線 安芸矢口駅 徒歩15分 可部線 七軒茶屋駅 徒歩22分 広島県広島市安佐南区川内3丁目 | 詳細を見る | |




