賃貸マンション
エルスタンザ恵比寿 14階の賃貸物件情報(1K/14階)
| 家賃 | 管理費等 | 敷金 | 礼金 | 間取り | 専有面積 |
|---|---|---|---|---|---|
| 25.4万円 | 1万円 | 25.4万円 | なし | 1K | 29.2m2 |
入居決定でお祝い金最大100,000円
- 保証金
- -
- 償却・敷引
- -
- 築年数
- 築11年
- 所在階
- 14階
- 向き
- 南西
Point
まずはお問い合わせ!
不動産会社は街のプロ、あなたに合った物件がきっと見つかります。
提供:JTR不動産(株)(SUUMO経由)

詳細情報 エルスタンザ恵比寿 14階
物件紹介
エルスタンザ恵比寿 14階はJR山手線恵比寿駅から徒歩5分にあり、駅近で通勤通学に便利なマンションです。
このお部屋は2階以上に位置しているので、通行人や周囲の住人からの視線が気になりにくく、防犯面でも安心。建物のエントランスはオートロックがついており、インターホンにはTVモニタもついているため、相手の顔を確認してから来客対応することができます。
人気の南向きのお部屋。また、フローリングなのでお掃除もラクラク。キッチンはシステムキッチン仕様になっていますので、お料理好きの方にもぴったり。バス・トイレは別なので、のんびりお風呂タイムも楽しめるでしょう。また、雨の日でも浴室乾燥機を使えば、お洗濯も問題ありません。
通信設備面では、インターネットが無料で使えるので、月々の出費を抑えられるのも魅力です。また、BSアンテナ・CSアンテナもありますので、おうち時間も充実するでしょう(別途工事、BS・CSの契約料等が必要な場合あり)。
床暖房があり、冬も足元から暖かく快適に過ごすことができます。建物にはエレベーターがついているので、重い荷物があっても安心。共用部には宅配ボックスが設定されているので、不在の時にも荷物を受け取ることができます。
このお部屋は2階以上に位置しているので、通行人や周囲の住人からの視線が気になりにくく、防犯面でも安心。建物のエントランスはオートロックがついており、インターホンにはTVモニタもついているため、相手の顔を確認してから来客対応することができます。
人気の南向きのお部屋。また、フローリングなのでお掃除もラクラク。キッチンはシステムキッチン仕様になっていますので、お料理好きの方にもぴったり。バス・トイレは別なので、のんびりお風呂タイムも楽しめるでしょう。また、雨の日でも浴室乾燥機を使えば、お洗濯も問題ありません。
通信設備面では、インターネットが無料で使えるので、月々の出費を抑えられるのも魅力です。また、BSアンテナ・CSアンテナもありますので、おうち時間も充実するでしょう(別途工事、BS・CSの契約料等が必要な場合あり)。
床暖房があり、冬も足元から暖かく快適に過ごすことができます。建物にはエレベーターがついているので、重い荷物があっても安心。共用部には宅配ボックスが設定されているので、不在の時にも荷物を受け取ることができます。
お金・契約の情報
※「-」と表示されているものは、実際は料金が発生するものもございます。詳細はお問い合わせください。
| 家賃 | 25.4万円 | 管理費・共益費 | 1万円 |
|---|---|---|---|
| 敷金 | 25.4万円 | 礼金 | なし |
| 入居決定でお祝い金最大100,000円 | |||
| 保証金 | - | 償却・敷引 | - |
| 住宅保険料 | - | 更新料 | - |
| 保証会社利用 | 必須 | 保証会社名 | - |
| 保証会社費用 | - | 保証会社備考 | 保証会社利用必 初回契約時:25% 更新時:10,000円(個人)/30,000円(法人) |
| 契約形態 | - | 契約期間 | - |
| 入居・引渡期間 | - | 現況 | - |
| 契約備考 | *更新料:新賃料1ヶ月 *解約予告1ヶ月前 *ペット・SOHO・楽器不可 *ハウスクリーニング:借主負担 *エアコンクリーニング:11,000円/台(自動掃除付きエアコンの場合27,500円/台) *鍵交換代:33,000円 *町内会費:月額300円 1K 普通借家2年 損保【1.8万円2年】 バストイレ別、バルコニー、エアコン、クロゼット、フローリング、TVインターホン、浴室乾燥機、オートロック、室内洗濯置、シューズボックス、システムキッチン、追焚機能浴室、温水洗浄便座、エレベーター、洗面所独立、駐輪場、宅配ボックス、光ファイバー、礼金不要、最上階、BS・CS、防犯カメラ、敷金1ヶ月、2沿線利用可、ディンプルキー、ネット使用料不要、床暖房、24時間換気システム、敷地内ごみ置き場、当社管理物件、都市ガス、マルチメディアコンセント 入居日:'26年3月上旬 | ||
部屋の情報
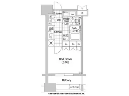
| 間取り | 1K | 専有面積 | 29.2m2 |
|---|---|---|---|
| 所在階 / 向き | 14階 / 南西 | バルコニー面積 | - |
| 水道 / ガス | - | ||
| 設備 | バス・トイレ別、2階以上、オートロック、テレビドアホン、宅配ボックス、浴室乾燥機、追い焚き、インターネット対応、システムキッチン、エアコン、エレベーター、温水洗浄便座、南向き、バルコニー、フローリング、洗髪洗面化粧台、床暖房、CSアンテナ、BSアンテナ、インターネット使用料無料、洗濯機:室内 | ||
| 当社物件ID | 160322657 | ||
建物の情報
| 建物名 | エルスタンザ恵比寿 14階 | ||
|---|---|---|---|
| 所在地 | 東京都渋谷区恵比寿南 | ||
| 交通 | JR山手線 恵比寿駅 徒歩5分 東急東横線 代官山駅 徒歩9分 東急東横線 中目黒駅 徒歩14分 | ||
| 階数 | 地下1地上14階建 | 総戸数 | - |
| 築年月 | 2016年02月 / 築11年 | エレベーター | あり |
| 駐車場 | なし | バイク置き場 | - |
| 駐輪場 | あり | 管理人/管理会社 | - |
| 周辺環境 | その他 無印良品アトレ恵比寿店(ショッピングセンター)まで249m その他 ピーコックストア恵比寿南店(スーパー)まで98m その他 ローソン恵比寿店(コンビニ)まで72m その他 K-PORTホテルエクセレント店(ドラッグストア)まで224m その他 スターバックスコーヒー恵比寿ユニオンビル店(飲食店)まで124m その他 恵比寿駅前郵便局(郵便局)まで128m | ||
| 建物種別 | マンション | 建物構造 | RC(鉄筋コンクリート) |
この部屋の取扱い不動産会社
| 会社名 | JTR不動産(株)(SUUMO経由) | ||
|---|---|---|---|
| 所在地 | 東京都渋谷区恵比寿南1-2-12 | 交通 | - |
| 営業時間 | 10時~19時 | 定休日 | 土日祝(内見ご相談可能です) |
| 免許番号 | 東京都知事93907 | 取引態様 | 仲介 |
| 不動産会社管理番号 | 100485906673 | 当社管理番号 | 89 |
| 取扱い物件情報 | 物件詳細へ | ||
※各種情報と現状に差異がある場合は、現状優先となります。問い合わせをすることで、より詳しい条件、情報を確認する事ができます。
提供:JTR不動産(株)(SUUMO経由)
この物件が気になったら掲載期限まであと4日
エルスタンザ恵比寿 14階に条件(家賃・エリア)が近い物件一覧
| 写真 | 家賃 管理費等 | 敷金 礼金 | 間取り 専有面積 | 築年数 | 最寄り駅 所在地 | キープ | 詳細 |
|---|---|---|---|---|---|---|---|
マンション パークヴィラ恵比寿 旧ベルファース恵比寿ビジュー(2LDK/12階) | |||||||
![]() | 29万円 1.5万円 | 29万円 なし | 2LDK 50.14m2 | 築4年 | 東京メトロ日比谷線 広尾駅 徒歩12分 東京メトロ南北線 白金台駅 徒歩13分 JR山手線 恵比寿駅 徒歩14分 東京都渋谷区恵比寿 | 詳細を見る | |
マンション グランピア四谷(2K/3階) | |||||||
![]() | 18.6万円 1.5万円 | なし なし | 2K 30.1m2 | 築1年 | 東京地下鉄丸ノ内線 四谷三丁目駅 徒歩8分 東京都新宿区大京町 | 詳細を見る | |
マンション HJクラウンI(2LDK/3階) | |||||||
![]() | 30.2万円 1.5万円 | なし なし | 2LDK 41.39m2 | 築1年 | 東京メトロ銀座線 外苑前駅 徒歩10分 都営大江戸線 国立競技場駅 徒歩10分 JR山手線 原宿駅 徒歩13分 東京都渋谷区神宮前 | 詳細を見る | |
マンション 東京メトロ丸ノ内線 新中野駅 徒歩3分 築3年(2LDK/1階) | |||||||
![]() | 21.3万円 6,000円 | 21.3万円 42.6万円 | 2LDK 50.6m2 | 築3年 | 東京メトロ丸ノ内線 新中野駅 徒歩3分 JR中央線 中野駅(東京) 徒歩12分 東京メトロ丸ノ内線 東高円寺駅 徒歩12分 東京都中野区中央 | 詳細を見る | |
アパート シエル西荻北(2LDK/2階) | |||||||
![]() | 21万円 なし | 21万円 21万円 | 2LDK 58.46m2 | 築1年 | JR中央線 西荻窪駅 徒歩13分 JR総武線 西荻窪駅 徒歩13分 東京メトロ丸ノ内線 荻窪駅 徒歩17分 東京都杉並区西荻北 | 詳細を見る | |
マンション GRAND CONCIERGE 恵比寿 グランドコンシェルジュ恵比寿(1DK/3階) | |||||||
![]() | 19.8万円 8,000円 | なし 39.6万円 | 1DK 34.65m2 | 築11年 | JR山手線 恵比寿駅 徒歩8分 東京メトロ日比谷線 広尾駅 徒歩16分 東京メトロ南北線 白金台駅 徒歩23分 東京都渋谷区恵比寿 | 詳細を見る | |
マンション コンフォリア芝浦モク(1LDK/3階) | |||||||
![]() | 30万円 1.5万円 | 30万円 なし | 1LDK 42.92m2 | 築2年 | JR山手線 田町駅(東京) 徒歩9分 都営三田線 三田駅(東京) 徒歩11分 都営浅草線 泉岳寺駅 徒歩16分 東京都港区芝浦 | 詳細を見る | |
マンション メゾンビスタ渋谷宇田川(ワンルーム/2階) | |||||||
![]() | 18.5万円 1.1万円 | なし 18.5万円 | ワンルーム 29.13m2 | 築10年 | JR山手線 渋谷駅 徒歩8分 東京メトロ千代田線 代々木公園駅 徒歩13分 JR山手線 原宿駅 徒歩14分 東京都渋谷区宇田川町 | 詳細を見る | |



/105x80-f1-q70-wp1)





