賃貸マンション
ヴェスタ駒沢の賃貸物件情報(2LDK/1階)
| 家賃 | 管理費等 | 敷金 | 礼金 | 間取り | 専有面積 |
|---|---|---|---|---|---|
| 25.5万円 | 1.2万円 | 25.5万円 | 25.5万円 | 2LDK | 59.83m2 |
入居決定でお祝い金最大100,000円
- 保証金
- -
- 償却・敷引
- -
- 築年数
- 新築
- 所在階
- 1階
- 向き
- 南西
Point
落ち着いた住環境が魅力の新築RCマンション。遮音性・耐久性に優れた安心構造で、子育て世帯も快適。犬・猫と一緒に大切な家族の時間を育める住まいです!モデルルーム内覧11月中旬予定です。
提供:(株)リルセダー(SUUMO経由)

詳細情報 ヴェスタ駒沢
物件紹介
ヴェスタ駒沢は東急田園都市線駒沢大学駅から徒歩10分にあり、駅近で通勤通学に便利なマンションです。
建物のエントランスはオートロックがついており、インターホンにはTVモニタもついているため、相手の顔を確認してから来客対応することができます。
人気の南向き・フローリングのお部屋。角部屋でもあるため、周囲の居住者の生活音も気になりにくい場所です。室内にはウォークインクローゼットがありますので、たくさんの荷物も効率的に収納ができます。キッチンはシステムキッチン仕様になっていますので、お料理好きの方にもぴったり。バス・トイレは別なので、のんびりお風呂タイムも楽しめるでしょう。また、雨の日でも浴室乾燥機を使えば、お洗濯も問題ありません。
通信設備面では、インターネットが無料で使えるので、月々の出費を抑えられるのも魅力です。また、BSアンテナ・CSアンテナがありCATVにも対応しているので、おうち時間も充実するでしょう(別途工事、BS・CS・CATVの契約料等が必要な場合あり)。
建物にはエレベーターがついているので、重い荷物があっても安心。共用部には宅配ボックスが設定されているので、不在の時にも荷物を受け取ることができます。また、ペット飼育の相談ができますので、あなたの大切な家族の一員も快適に暮らせるか、ぜひ確認してみてください。
建物のエントランスはオートロックがついており、インターホンにはTVモニタもついているため、相手の顔を確認してから来客対応することができます。
人気の南向き・フローリングのお部屋。角部屋でもあるため、周囲の居住者の生活音も気になりにくい場所です。室内にはウォークインクローゼットがありますので、たくさんの荷物も効率的に収納ができます。キッチンはシステムキッチン仕様になっていますので、お料理好きの方にもぴったり。バス・トイレは別なので、のんびりお風呂タイムも楽しめるでしょう。また、雨の日でも浴室乾燥機を使えば、お洗濯も問題ありません。
通信設備面では、インターネットが無料で使えるので、月々の出費を抑えられるのも魅力です。また、BSアンテナ・CSアンテナがありCATVにも対応しているので、おうち時間も充実するでしょう(別途工事、BS・CS・CATVの契約料等が必要な場合あり)。
建物にはエレベーターがついているので、重い荷物があっても安心。共用部には宅配ボックスが設定されているので、不在の時にも荷物を受け取ることができます。また、ペット飼育の相談ができますので、あなたの大切な家族の一員も快適に暮らせるか、ぜひ確認してみてください。
お金・契約の情報
※「-」と表示されているものは、実際は料金が発生するものもございます。詳細はお問い合わせください。
| 家賃 | 25.5万円 | 管理費・共益費 | 1.2万円 |
|---|---|---|---|
| 敷金 | 25.5万円 | 礼金 | 25.5万円 |
| 入居決定でお祝い金最大100,000円 | |||
| 保証金 | - | 償却・敷引 | - |
| 住宅保険料 | - | 更新料 | - |
| 保証会社利用 | 必須 | 保証会社名 | - |
| 保証会社費用 | - | 保証会社備考 | 保証会社利用必 エポスRoomiD 保証会社及び連帯保証人必須(初回賃料等の30%、年間保証料14,000円) |
| 契約形態 | - | 契約期間 | - |
| 入居・引渡期間 | - | 現況 | - |
| 入居可能条件 | ペット相談 | ||
| 契約備考 | 禁煙 楽器不可 SOHO不可 バイク置場有り税込月額5,500円 退去時:室内クリーニング費用税込122,100円更新時事務手数料として新賃料の25%+消費税 ペット飼育時、飼育承諾料として賃料の1ヶ月分をお支払いいただきます。 合計8.01万円(内訳:保証委託料8.01万円) バイク置場代5500円/駐輪場代500円/退去時、室内クリーニング費用税込122,100円 2LDK 二人入居可/子供可/ペット相談 損保【2万円2年】 バストイレ別、バルコニー、エアコン、フローリング、シャワー付洗面台、TVインターホン、浴室乾燥機、オートロック、室内洗濯置、陽当り良好、システムキッチン、追焚機能浴室、角住戸、温水洗浄便座、エレベーター、洗面所独立、駐輪場、宅配ボックス、CATV、閑静な住宅地、2面採光、BS・CS、3口以上コンロ、対面式キッチン、防犯カメラ、ペット相談、全居室収納、オートバス、グリル付、全居室洋室、ウォークインクロゼット、敷金1ヶ月、二人入居相談、バイク置場、全居室フローリング、駅まで平坦、ネット使用料不要、エアコン全室、築2年以内、24時間換気システム、エアコン3台、クロゼット2ヶ所、南面リビング、ペット専用設備、高断熱住宅、高気密住宅、駅徒歩10分以内、二重床構造、敷地内ごみ置き場、南西向き、LDK12畳以上、備付食器棚、耐震ラッチ吊戸棚、都市ガス、南面バルコニー、室内物干機、シューズWIC、礼金1ヶ月、IT重説対応物件 入居日:'26年2月初旬 | ||
部屋の情報
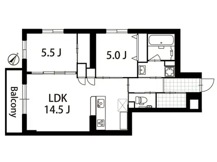
| 間取り | 2LDK | 専有面積 | 59.83m2 |
|---|---|---|---|
| 所在階 / 向き | 1階 / 南西 | バルコニー面積 | - |
| 水道 / ガス | - | ||
| 設備 | バス・トイレ別、オートロック、テレビドアホン、宅配ボックス、浴室乾燥機、ウォークインクローゼット、追い焚き、インターネット対応、システムキッチン、エアコン、エレベーター、温水洗浄便座、南向き、角部屋、バルコニー、フローリング、洗髪洗面化粧台、2口コンロ、CATV、CSアンテナ、BSアンテナ、インターネット使用料無料、洗濯機:室内 | ||
| 当社物件ID | 159531010 | ||
建物の情報
| 建物名 | ヴェスタ駒沢 | ||
|---|---|---|---|
| 所在地 | 東京都目黒区東が丘 | ||
| 交通 | 東急田園都市線 駒沢大学駅 徒歩10分 東急東横線 都立大学駅 徒歩24分 東急田園都市線 三軒茶屋駅 徒歩24分 | ||
| 階数 | 3階建 | 総戸数 | 24戸 |
| 築年月 | 2026年01月 / 新築 | エレベーター | あり |
| 駐車場 | 空有 38500円 | バイク置き場 | あり |
| 駐輪場 | あり | 管理人/管理会社 | - |
| 建物種別 | マンション | 建物構造 | RC(鉄筋コンクリート) |
この部屋の取扱い不動産会社
| 会社名 | (株)リルセダー(SUUMO経由) | ||
|---|---|---|---|
| 所在地 | 東京都目黒区柿の木坂3-2-1 | 交通 | - |
| 営業時間 | AM9:00~PM18:00 | 定休日 | 年中無休 |
| 免許番号 | 東京都知事84571 | 取引態様 | 仲介 |
| 不動産会社管理番号 | 100461241403 | 当社管理番号 | 89 |
| 所属団体 | (公社)東京都宅地建物取引業協会会員 | ||
| 公正取引協議会 | (公社)首都圏不動産公正取引協議会加盟 | ||
| 取扱い物件情報 | 物件詳細へ | ||
※各種情報と現状に差異がある場合は、現状優先となります。問い合わせをすることで、より詳しい条件、情報を確認する事ができます。
提供:(株)リルセダー(SUUMO経由)
この物件が気になったら掲載期限まであと0日
ヴェスタ駒沢に条件(家賃・エリア)が近い物件一覧
| 写真 | 家賃 管理費等 | 敷金 礼金 | 間取り 専有面積 | 築年数 | 最寄り駅 所在地 | キープ | 詳細 |
|---|---|---|---|---|---|---|---|
マンション オーベルグランディオ萩中(2DK/12階) | |||||||
![]() | 18万円 1万円 | 18万円 18万円 | 2DK 50m2 | 築20年 | 京急空港線 糀谷駅 徒歩6分 京急空港線 大鳥居駅 徒歩15分 京急空港線 京急蒲田駅 徒歩17分 東京都大田区萩中 | 詳細を見る | |
マンション フルールメゾン(2LDK/4階) | |||||||
![]() | 16.6万円 7,200円 | 16.6万円 16.6万円 | 2LDK 57.68m2 | 築24年 | 京急本線 六郷土手駅 徒歩1分 京急本線 雑色駅 徒歩17分 京急本線 京急川崎駅 徒歩24分 東京都大田区仲六郷 | 詳細を見る | |
アパート イーストテラス大森東(2SLDK/1階) | |||||||
![]() | 19.7万円 3,000円 | 19.7万円 19.7万円 | 2SLDK 79.91m2 | 築1年 | 京急本線 梅屋敷駅(東京) 徒歩14分 京急本線 大森町駅 徒歩16分 東京都大田区大森東 | 詳細を見る | |
アパート 御殿山テラスⅡ(2LDK/1階) | |||||||
![]() | 23.9万円 3,000円 | 23.9万円 なし | 2LDK 57.6m2 | 築2年 | 山手線 大崎駅 徒歩8分 京浜急行電鉄本線 北品川駅 徒歩14分 東京都品川区北品川5丁目 | 詳細を見る | |
マンション ウエスト315(1SLDK/1階) | |||||||
![]() | 18.2万円 3,000円 | 18.2万円 18.2万円 | 1SLDK 54.07m2 | 築9年 | 京急本線 大森町駅 徒歩4分 京急本線 梅屋敷駅(東京) 徒歩11分 京急本線 京急蒲田駅 徒歩22分 東京都大田区大森西 | 詳細を見る | |
マンション PLUMERIA BLANE プルメリアブラン(1LDK/1階) | |||||||
![]() | 15.3万円 3,000円 | 15.3万円 なし | 1LDK 48.99m2 | 築9年 | 京急本線 大森町駅 徒歩5分 京急本線 平和島駅 徒歩12分 京急本線 梅屋敷駅(東京) 徒歩13分 東京都大田区大森西 | 詳細を見る | |
アパート M SONIA KUGAHARA(2LDK/1階) | |||||||
![]() | 16.5万円 3,000円 | 16.5万円 33万円 | 2LDK 49.27m2 | 築1年 | 東急池上線 久が原駅 徒歩8分 東急池上線 御嶽山駅 徒歩9分 東京都大田区西嶺町 | 詳細を見る | |
マンション ドゥーエ西馬込2(2LDK/1階) | |||||||
![]() | 17.5万円 2万円 | 17.5万円 なし | 2LDK 45.34m2 | 築2年 | 東京都浅草線 西馬込駅 徒歩10分 東京都大田区仲池上1丁目 | 詳細を見る | |









