賃貸アパート
レオパレスサンライズの賃貸物件情報(1K/2階)
| 家賃 | 管理費等 | 敷金 | 礼金 | 間取り | 専有面積 |
|---|---|---|---|---|---|
| 6.1万円 | 5,000円 | なし | 6.1万円 | 1K | 21.84m2 |
入居決定でお祝い金最大100,000円
Point
まずはお問い合わせ!
不動産会社は街のプロ、あなたに合った物件がきっと見つかります。
提供:ハウスコム東海株式会社 豊川店

詳細情報 レオパレスサンライズ
物件紹介
レオパレスサンライズは飯田線東上駅から徒歩18分にあるアパートです。
このお部屋は2階以上に位置しているので、通行人や周囲の住人からの視線が気になりにくく、防犯面でも安心。インターホンにはTVモニタもついているため、相手の顔を確認してから来客対応することができます。
バス・トイレ別の仕様で、のんびりお風呂タイムも楽しめます。
通信設備面では、インターネット接続が可能です(別途工事、契約料が必要な場合あり)。
コンビニまで徒歩11分の場所にあり、日用品や食料品のお買い物にも便利です。
このお部屋は2階以上に位置しているので、通行人や周囲の住人からの視線が気になりにくく、防犯面でも安心。インターホンにはTVモニタもついているため、相手の顔を確認してから来客対応することができます。
バス・トイレ別の仕様で、のんびりお風呂タイムも楽しめます。
通信設備面では、インターネット接続が可能です(別途工事、契約料が必要な場合あり)。
コンビニまで徒歩11分の場所にあり、日用品や食料品のお買い物にも便利です。
お金・契約の情報
※「-」と表示されているものは、実際は料金が発生するものもございます。詳細はお問い合わせください。
| 家賃 | 6.1万円 | 管理費・共益費 | 5,000円 |
|---|---|---|---|
| 敷金 | なし | 礼金 | 6.1万円 |
| 入居決定でお祝い金最大100,000円 | |||
| 保証金 | - | 償却・敷引 | - |
| 住宅保険料 | 1円 | 更新料 | - |
| その他費用 | 抗菌施工(任意):2.376万円 | ||
| 保証会社利用 | 必須 | 保証会社名 | - |
| 保証会社費用 | - | 保証会社備考 | 保証料:51590円(契約内容により100〜120%で変動有)※記載金額は120%の場合 |
| 契約形態 | - | 契約期間 | - |
| 入居・引渡期間 | 即時 | 現況 | - |
| 契約備考 | 抗菌施工(任意)17712円から23328円(税込)、環境維持費540円/月 月額(環境維持費 550円) 鍵交換費用:16500 室内清掃費用:41800 その他設備/条件:室内洗濯機置き場、シューズボックス | ||
部屋の情報
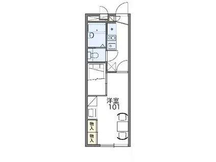
| 間取り | 1K | 専有面積 | 21.84m2 |
|---|---|---|---|
| 所在階 / 向き | 2階 / - | バルコニー面積 | - |
| 水道 / ガス | - | ||
| 設備 | バス・トイレ別、テレビドアホン、光ファイバー対応、エアコン、温水洗浄便座 | ||
| 当社物件ID | 1524407 | ||
建物の情報
| 建物名 | レオパレスサンライズ | ||
|---|---|---|---|
| 所在地 | 愛知県新城市川田字本宮道 | ||
| 交通 | 飯田線 東上駅 徒歩18分 | ||
| 階数 | 2階建 | 総戸数 | 20戸 |
| 築年月 | 2009年02月 / 築18年 | エレベーター | - |
| 駐車場 | 空有 4,950円/月 | バイク置き場 | - |
| 駐輪場 | - | 管理人/管理会社 | - |
| 周辺環境 | コンビニ 徒歩11分(806m) その他 ドラッグストア その他 公園 その他 銀行 その他 * | ||
| 建物種別 | アパート | 建物構造 | 軽量鉄骨造 |
この部屋の取扱い不動産会社
| 会社名 | ハウスコム東海株式会社 豊川店 | ||
|---|---|---|---|
| 所在地 | 愛知県豊川市27-1 | 交通 | - |
| 営業時間 | 10:00~18:00 | 定休日 | - |
| 免許番号 | 国土交通大臣(1)第10227号 | 取引態様 | 仲介 |
| 不動産会社管理番号 | HC5-2001206-206-0216 | 当社管理番号 | 468 |
| 所属団体 | 、 | ||
| 取扱い物件情報 | 物件詳細へ | ||
※各種情報と現状に差異がある場合は、現状優先となります。問い合わせをすることで、より詳しい条件、情報を確認する事ができます。
提供:ハウスコム東海株式会社 豊川店
この物件が気になったら掲載期限まであと4日
レオパレスサンライズに条件(家賃・エリア)が近い物件一覧
| 写真 | 家賃 管理費等 | 敷金 礼金 | 間取り 専有面積 | 築年数 | 最寄り駅 所在地 | キープ | 詳細 |
|---|---|---|---|---|---|---|---|
アパート ボナール シュン(1K/2階) | |||||||
![]() | 4.3万円 3,200円 | なし なし | 1K 30.94m2 | 築18年 | 豊橋鉄道渥美線 高師駅 徒歩38分 愛知県豊橋市一色町天獏 | 詳細を見る | |
マンション ソレイユ豊田(ワンルーム/5階) | |||||||
![]() | 3.7万円 6,000円 | なし なし | ワンルーム 21m2 | 築35年 | 名鉄豊田線 豊田市駅 徒歩10分 名鉄三河線 豊田市駅 徒歩10分 愛知環状鉄道 新豊田駅 徒歩13分 愛知県豊田市元城町 | 詳細を見る | |
アパート モメント(3LDK/2階) | |||||||
![]() | 7.2万円 2,900円 | なし 7.2万円 | 3LDK 62.1m2 | 新築 | JR飯田線 豊川駅(愛知) 徒歩19分 名鉄豊川線 豊川稲荷駅 徒歩20分 名鉄豊川線 稲荷口駅 徒歩29分 愛知県豊川市牧野町柳貝津 | 詳細を見る | |
アパート グラース21(1LDK/2階) | |||||||
![]() | 4.8万円 1,700円 | なし 5.8万円 | 1LDK 49.05m2 | 築18年 | 豊橋鉄道渥美線 芦原駅 徒歩10分 豊橋鉄道渥美線 高師駅 徒歩13分 愛知県豊橋市松井町松井 | 詳細を見る | |
アパート パラッツォ7(1LDK/1階) | |||||||
![]() | 5.63万円 4,500円 | 2.82万円 8.45万円 | 1LDK 45.8m2 | 築15年 | 豊橋鉄道東田本線 前畑駅 徒歩15分 豊橋鉄道東田本線 東田坂上駅 徒歩17分 愛知県豊橋市牛川町北台 | 詳細を見る | |
アパート エアリー若松III(1LDK/1階) | |||||||
![]() | 6.25万円 2,800円 | なし 6.25万円 | 1LDK 43.61m2 | 築1年 | 豊橋鉄道渥美線 南栄駅 徒歩26分 豊橋鉄道渥美線 高師駅 徒歩27分 豊橋鉄道渥美線 愛知大学前駅 徒歩30分 愛知県豊橋市曙町若松 | 詳細を見る | |
アパート 宇緒夢 弐番館(1K/1階) | |||||||
![]() | 4.5万円 4,000円 | なし なし | 1K 26.08m2 | 築18年 | 名鉄名古屋本線 男川駅 徒歩32分 名鉄名古屋本線 美合駅 徒歩38分 愛知県岡崎市庄司田 | 詳細を見る | |
アパート エルディム藤沢(2DK/2階) | |||||||
![]() | 4.2万円 1,500円 | なし なし | 2DK 39.19m2 | 築34年 | 豊橋鉄道渥美線 愛知大学前駅 徒歩21分 愛知県豊橋市藤沢町 | 詳細を見る | |









