賃貸マンション
ヴィエルジュ北13条の賃貸物件情報(1LDK/1階)
| 家賃 | 管理費等 | 敷金 | 礼金 | 間取り | 専有面積 |
|---|---|---|---|---|---|
| 5万円 | 5,000円 | 5万円 | なし | 1LDK | 33m2 |
入居決定でお祝い金最大100,000円
Point
★住替えは今がチャンス!各種キャンペーンあります!★
提供:アパマンショップ北大前店

詳細情報 ヴィエルジュ北13条
物件紹介
ヴィエルジュ北13条は札幌市東豊線環状通東駅から徒歩3分にあり、駅近で通勤通学に便利なマンションです。
建物のエントランスはオートロックがついており、インターホンにはTVモニタもついているため、相手の顔を確認してから来客対応することができます。
おしゃれなデザイナーズ物件!人気の角部屋で周囲の居住者の生活音も気になりにくく、また、フローリングのお部屋なのでお掃除もラクラク。室内にはウォークインクローゼットがありますので、たくさんの荷物も効率的に収納ができます。キッチンはシステムキッチン仕様になっていますので、お料理好きの方にもぴったり。また、バス・トイレは別で、のんびりお風呂タイムも楽しめるでしょう。
通信設備面では、インターネットが無料で使えるので、月々の出費を抑えられるのも魅力です。また、BSアンテナ・CSアンテナもありますので、おうち時間も充実するでしょう(別途工事、BS・CSの契約料等が必要な場合あり)。
また、こちらはガス暖房が可能な物件。ガスファンヒーターの使用も考えている方にはおすすめです。建物にはエレベーターがついているので、重い荷物があっても安心。共用部には宅配ボックスが設定されているので、不在の時にも荷物を受け取ることができます。
建物のエントランスはオートロックがついており、インターホンにはTVモニタもついているため、相手の顔を確認してから来客対応することができます。
おしゃれなデザイナーズ物件!人気の角部屋で周囲の居住者の生活音も気になりにくく、また、フローリングのお部屋なのでお掃除もラクラク。室内にはウォークインクローゼットがありますので、たくさんの荷物も効率的に収納ができます。キッチンはシステムキッチン仕様になっていますので、お料理好きの方にもぴったり。また、バス・トイレは別で、のんびりお風呂タイムも楽しめるでしょう。
通信設備面では、インターネットが無料で使えるので、月々の出費を抑えられるのも魅力です。また、BSアンテナ・CSアンテナもありますので、おうち時間も充実するでしょう(別途工事、BS・CSの契約料等が必要な場合あり)。
また、こちらはガス暖房が可能な物件。ガスファンヒーターの使用も考えている方にはおすすめです。建物にはエレベーターがついているので、重い荷物があっても安心。共用部には宅配ボックスが設定されているので、不在の時にも荷物を受け取ることができます。
お金・契約の情報
※「-」と表示されているものは、実際は料金が発生するものもございます。詳細はお問い合わせください。
| 家賃 | 5万円 | 管理費・共益費 | 5,000円 |
|---|---|---|---|
| 敷金 | 5万円 | 礼金 | なし |
| 入居決定でお祝い金最大100,000円 | |||
| 保証金 | - | 償却・敷引 | - |
| 住宅保険料 | 2万円(2年) | 更新料 | - |
| 保証会社利用 | 利用可 | 保証会社名 | オリコフォレントインシュア |
| 保証会社費用 | - | 保証会社備考 | 初回保証料 50%・月額1.2%・更新料無 |
| 契約形態 | - | 契約期間 | 2年 |
| 入居・引渡期間 | 2026年02月下旬 | 現況 | - |
| 契約備考 | 24時間管理費用 1100円/引落手数料(オリコ利用の場合はなし) 495円/エアコン整備分担料 16500円/水廻り消毒料 27500円、[退去時費用:シリンダー交換料 13,200円 ※故意・過失等別途実費] | ||
部屋の情報
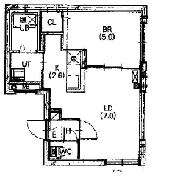
| 間取り | 1LDK | 専有面積 | 33m2 |
|---|---|---|---|
| 間取り詳細 | LD(7帖)、K(2.6帖)、洋室(5帖) | ||
| 所在階 / 向き | 1階 / - | バルコニー面積 | - |
| 水道 / ガス | ガス【都市】 | ||
| 設備 | バス・トイレ別、オートロック、テレビドアホン、宅配ボックス、インターネット対応、システムキッチン、エレベーター、温水洗浄便座、CSアンテナ、BSアンテナ、インターネット使用料無料、シャワー、給湯、ガス暖房、洗濯機:室内 | ||
| 当社物件ID | 29917586 | ||
建物の情報
| 建物名 | ヴィエルジュ北13条 | ||
|---|---|---|---|
| 所在地 | 北海道札幌市東区北十三条東15丁目 | ||
| 交通 | 札幌市東豊線 環状通東駅 徒歩3分 | ||
| 階数 | 5階建 | 総戸数 | 19戸 |
| 築年月 | 2019年03月 / 築7年 | エレベーター | あり |
| 駐車場 | - | バイク置き場 | - |
| 駐輪場 | あり | 管理人/管理会社 | - |
| 周辺環境 | 保育園 元町杉の子保育園 徒歩4分(252m) その他 札幌北十三条東郵便局 徒歩2分(106m) その他 まいばすけっと北14条東15丁目店 徒歩3分(217m) その他 大友公園 徒歩2分(138m) その他 セイコーマート 徒歩4分(301m) その他 GEO 徒歩4分(264m) その他 吉野家 徒歩4分(290m) その他 北海道銀行東区北十五条支店 徒歩5分(388m) | ||
| 建物種別 | マンション | 建物構造 | RC(鉄筋コンクリート) |
この部屋の取扱い不動産会社
| 会社名 | アパマンショップ元町店 | ||
|---|---|---|---|
| 所在地 | 北海道札幌市東区北23条東15丁目 5-25ノーヴル23 1F | 交通 | 札幌市東豊線元町から徒歩1分 |
| 営業時間 | 09:15〜19:15(時間外も事前予約対応可能です。) | 定休日 | - |
| 免許番号 | 北海道知事石狩(2)8280 | 取引態様 | 仲介 |
| 不動産会社管理番号 | 81523744 | 当社管理番号 | 4 |
| 所属団体 | (公社)北海道宅地建物取引業協会 | ||
| 公正取引協議会 | (一社) 北海道不動産公正取引協議会加盟 | ||
| 取扱い物件情報 | 物件詳細へ | ||
※各種情報と現状に差異がある場合は、現状優先となります。問い合わせをすることで、より詳しい条件、情報を確認する事ができます。
提供:アパマンショップ元町店
この物件が気になったら掲載期限まであと12日
ヴィエルジュ北13条に条件(家賃・エリア)が近い物件一覧
| 写真 | 家賃 管理費等 | 敷金 礼金 | 間取り 専有面積 | 築年数 | 最寄り駅 所在地 | キープ | 詳細 |
|---|---|---|---|---|---|---|---|
アパート メゾン朝里267(2LDK/1階) | |||||||
![]() | 5.4万円 550円 | 5.4万円 なし | 2LDK 51.21m2 | 築34年 | 函館本線 朝里駅 徒歩10分 北海道小樽市朝里2丁目 | 詳細を見る | |
マンション タスクMレジデンス錦(1LDK/3階) | |||||||
![]() | 6.7万円 3,000円 | 6.7万円 なし | 1LDK 35.19m2 | 新築 | 千歳線 千歳駅(北海道) 徒歩14分 北海道千歳市錦町1丁目 | 詳細を見る | |
マンション VISTA東雲(1K/2階) | |||||||
![]() | 4.1万円 4,000円 | なし なし | 1K 27.65m2 | 築19年 | JR函館本線 小樽駅 徒歩13分 JR函館本線 南小樽駅 徒歩16分 北海道小樽市東雲町 | 詳細を見る | |
マンション 京泉 ビル(1LDK/4階) | |||||||
![]() | 5.2万円 5,000円 | 5.2万円 なし | 1LDK 29.7m2 | 築18年 | 札幌市東豊線 東区役所前駅 徒歩5分 北海道札幌市東区北九条東6丁目 | 詳細を見る | |
アパート ウイングS&A(1LDK/2階) | |||||||
![]() | 4.4万円 3,500円 | 4.4万円 なし | 1LDK 33.26m2 | 築17年 | 地下鉄東豊線 環状通東駅 徒歩12分 JR函館本線 苗穂駅 徒歩23分 JR千歳線 苗穂駅 徒歩23分 北海道札幌市東区本町二条 | 詳細を見る | |
アパート Y2Kプラス2(2LDK/1階) | |||||||
![]() | 6.5万円 2,000円 | なし 6.5万円 | 2LDK 62.4m2 | 築23年 | 函館本線 小樽駅 徒歩16分 北海道小樽市緑1丁目 | 詳細を見る | |
マンション モアノース40(2LDK/3階) | |||||||
![]() | 5万円 3,500円 | なし なし | 2LDK 53.88m2 | 築36年 | 地下鉄東豊線 栄町駅(札幌) 徒歩10分 地下鉄東豊線 新道東駅 徒歩15分 地下鉄南北線 北34条駅 徒歩28分 北海道札幌市東区北四十条東 | 詳細を見る | |
アパート パルテノン(2LDK/1階) | |||||||
![]() | 4.9万円 2,000円 | 4.9万円 なし | 2LDK 51.16m2 | 築18年 | JR札沼線 篠路駅 徒歩57分 JR札沼線 拓北駅 徒歩57分 JR札沼線 百合が原駅 徒歩72分 北海道石狩市花川東一条 | 詳細を見る | |


/105x80-f1-q70-wp1)





