賃貸マンション
プレ・ド・ラ・ガールの賃貸物件情報(1DK/3階)
| 家賃 | 管理費等 | 敷金 | 礼金 | 間取り | 専有面積 |
|---|---|---|---|---|---|
| 6万円 | 4,000円 | 5万円 | 5万円 | 1DK | 53.82m2 |
入居決定でお祝い金最大100,000円
Point
岩倉エリア設備充実物件 岩倉エリアの設備充実マンションです。
提供:株式会社 京都ライフ 北山店(賃貸スモッカ経由)

詳細情報 プレ・ド・ラ・ガール
物件紹介
プレ・ド・ラ・ガールは叡山電鉄鞍馬線八幡前駅から徒歩2分にあり、駅近で通勤通学に便利なマンションです。
このお部屋は2階以上に位置しているので、通行人や周囲の住人からの視線が気になりにくく、防犯面でも安心。建物のエントランスはオートロックがついており、インターホンにはTVモニタもついているため、相手の顔を確認してから来客対応することができます。
人気の南向き・フローリングのお部屋。角部屋でもあるため、周囲の居住者の生活音も気になりにくい場所です。キッチンはシステムキッチン仕様になっていますので、お料理好きの方にもぴったり。また、バス・トイレは別で、のんびりお風呂タイムも楽しめるでしょう。
通信設備面では、インターネットが無料で使えるので、月々の出費を抑えられるのも魅力です(別途工事等が必要な場合あり)。
このお部屋は2階以上に位置しているので、通行人や周囲の住人からの視線が気になりにくく、防犯面でも安心。建物のエントランスはオートロックがついており、インターホンにはTVモニタもついているため、相手の顔を確認してから来客対応することができます。
人気の南向き・フローリングのお部屋。角部屋でもあるため、周囲の居住者の生活音も気になりにくい場所です。キッチンはシステムキッチン仕様になっていますので、お料理好きの方にもぴったり。また、バス・トイレは別で、のんびりお風呂タイムも楽しめるでしょう。
通信設備面では、インターネットが無料で使えるので、月々の出費を抑えられるのも魅力です(別途工事等が必要な場合あり)。
お金・契約の情報
※「-」と表示されているものは、実際は料金が発生するものもございます。詳細はお問い合わせください。
| 家賃 | 6万円 | 管理費・共益費 | 4,000円 |
|---|---|---|---|
| 敷金 | 5万円 | 礼金 | 5万円 |
| 入居決定でお祝い金最大100,000円 | |||
| 保証金 | - | 償却・敷引 | - |
| 住宅保険料 | 住宅保険料あり | 更新料 | - |
| 契約形態 | - | 契約期間 | 1年 |
| 入居・引渡期間 | 2026年03月下旬 | 現況 | 賃貸中 |
| 契約備考 | 京都市左京区 岩倉エリアのマンションです。 叡山、地下鉄のダブルアクセス。 システムキッチン、温水洗浄便座、独立洗面台など充実の設備。 オートロック、TVフォンでセキュリティも安心です。コンビニ、スーパー、ドラッグストア、ホームセンターなど近くにあって便利ですよ。 インターネットは光対応、無料でご利用いただけます。 水道代:2,000円 更新料:0.5ヶ月 その他設備/条件:最上階の物件、コンロ2口以上、TVドアホン | ||
部屋の情報
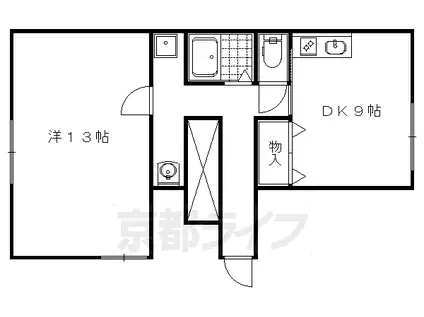
| 間取り | 1DK | 専有面積 | 53.82m2 |
|---|---|---|---|
| 間取り詳細 | 洋室(13帖)、DK(9帖) | ||
| 所在階 / 向き | 3階 / 南 | バルコニー面積 | - |
| 水道 / ガス | ガス【都市】 | ||
| 設備 | バス・トイレ別、2階以上、オートロック、システムキッチン、エアコン、温水洗浄便座、南向き、バルコニー、フローリング、コンロ:IH、洗濯機:室内 | ||
| 当社物件ID | 36769055 | ||
建物の情報
| 建物名 | プレ・ド・ラ・ガール | ||
|---|---|---|---|
| 所在地 | 京都府京都市左京区岩倉三宅町 | ||
| 交通 | 叡山電鉄 岩倉駅(京都) 徒歩12分 京都市烏丸線 国際会館駅 徒歩13分 | ||
| 階数 | 3階建 | 総戸数 | - |
| 築年月 | 2006年08月 / 築20年 | エレベーター | - |
| 駐車場 | - | バイク置き場 | - |
| 駐輪場 | あり | 管理人/管理会社 | - |
| 建物種別 | マンション | 建物構造 | 鉄骨造 |
この部屋の取扱い不動産会社
| 会社名 | 株式会社 京都ライフ 出町柳店(賃貸スモッカ経由) | ||
|---|---|---|---|
| 所在地 | 京都市左京区田中関田町22-13 | 交通 | - |
| 営業時間 | - | 定休日 | - |
| 免許番号 | 京都府知事(11)第6353号 | 取引態様 | 仲介 |
| 不動産会社管理番号 | kyotolife_52319-301 | 当社管理番号 | 463 |
| 所属団体 | 京都府宅地建物取引業協会\n公益社団法人近畿地区不動産公正取引協議会 | ||
| 公正取引協議会 | 全国宅地建物取引業保証協会 | ||
| 取扱い物件情報 | 物件詳細へ | ||
※各種情報と現状に差異がある場合は、現状優先となります。問い合わせをすることで、より詳しい条件、情報を確認する事ができます。
提供:株式会社 京都ライフ 出町柳店(賃貸スモッカ経由)
この物件が気になったら掲載期限まであと5日
プレ・ド・ラ・ガールに条件(家賃・エリア)が近い物件一覧
| 写真 | 家賃 管理費等 | 敷金 礼金 | 間取り 専有面積 | 築年数 | 最寄り駅 所在地 | キープ | 詳細 |
|---|---|---|---|---|---|---|---|
マンション 叡山電鉄 一乗寺駅 徒歩9分 築17年(1K/1階) | |||||||
![]() | 5.6万円 5,000円 | なし 5.6万円 | 1K 26m2 | 築17年 | 叡山電鉄 一乗寺駅 徒歩9分 京阪電気鉄道鴨東線 出町柳駅 徒歩36分 京都府京都市左京区北白川瓜生山町 | 詳細を見る | |
アパート ヒューマンヒルズ3(1K/2階) | |||||||
![]() | 4.8万円 5,000円 | なし なし | 1K 25.42m2 | 築18年 | 山陰本線 園部駅 徒歩20分 京都府南丹市園部町小山西町 | 詳細を見る | |
マンション 京阪電気鉄道鴨東線 出町柳駅 徒歩2分 築40年(1K/2階) | |||||||
![]() | 4万円 3,300円 | なし 4万円 | 1K 21.39m2 | 築40年 | 京阪電気鉄道鴨東線 出町柳駅 徒歩2分 京都市烏丸線 今出川駅 徒歩17分 京都府京都市左京区田中下柳町 | 詳細を見る | |
一戸建て 京阪電気鉄道京阪線 石清水八幡宮駅 徒歩38分 築45年(4DK) | |||||||
![]() | 5.8万円 なし | 5.8万円 5.8万円 | 4DK 59.18m2 | 築45年 | 京阪電気鉄道京阪線 石清水八幡宮駅 徒歩38分 京阪電気鉄道京阪線 橋本駅(京都) 徒歩53分 京都府八幡市八幡小松 | 詳細を見る | |
マンション 京阪電気鉄道鴨東線 出町柳駅 徒歩20分 築44年(ワンルーム/2階) | |||||||
![]() | 4.5万円 なし | なし 4.5万円 | ワンルーム 18m2 | 築44年 | 京阪電気鉄道鴨東線 出町柳駅 徒歩20分 京阪電気鉄道鴨東線 神宮丸太町駅 徒歩34分 京都府京都市左京区浄土寺西田町 | 詳細を見る | |
マンション 近鉄京都線 大久保駅(京都) 徒歩3分 築33年(1DK/4階) | |||||||
![]() | 5.6万円 3,500円 | 5万円 10万円 | 1DK 28.49m2 | 築33年 | 近鉄京都線 大久保駅(京都) 徒歩3分 近鉄京都線 久津川駅 徒歩9分 京都府宇治市大久保町上ノ山 | 詳細を見る | |






