賃貸マンション
LUMEED梅島の賃貸物件情報(2K/5階)
| 家賃 | 管理費等 | 敷金 | 礼金 | 間取り | 専有面積 |
|---|---|---|---|---|---|
| 14.1万円 | 1万円 | 14.1万円 | 14.1万円 | 2K | 39.49m2 |
入居決定でお祝い金最大100,000円
Point
収納はシューズボックス・クロゼットなど豊富なので、衣類や履き物の整理がしやすく便利です。
提供:(株)ウィルマネージメント(SUUMO経由)

詳細情報 LUMEED梅島
物件紹介
LUMEED梅島は東武伊勢崎・大師線梅島駅から徒歩4分にあり、駅近で通勤通学に便利なマンションです。
このお部屋は2階以上に位置しているので、通行人や周囲の住人からの視線が気になりにくく、防犯面でも安心。建物のエントランスはオートロックがついており、インターホンにはTVモニタもついているため、相手の顔を確認してから来客対応することができます。
人気の南向きのお部屋。また、フローリングなのでお掃除もラクラク。キッチンはシステムキッチン仕様になっていますので、お料理好きの方にもぴったり。バス・トイレは別なので、のんびりお風呂タイムも楽しめるでしょう。また、雨の日でも浴室乾燥機を使えば、お洗濯も問題ありません。
通信設備面では、インターネットが無料で使えるので、月々の出費を抑えられるのも魅力です。また、BSアンテナ・CSアンテナがありCATVにも対応しているので、おうち時間も充実するでしょう(別途工事、BS・CS・CATVの契約料等が必要な場合あり)。
建物にはエレベーターがついているので、重い荷物があっても安心。共用部には宅配ボックスが設定されているので、不在の時にも荷物を受け取ることができます。また、ペット飼育の相談ができますので、あなたの大切な家族の一員も快適に暮らせるか、ぜひ確認してみてください。
このお部屋は2階以上に位置しているので、通行人や周囲の住人からの視線が気になりにくく、防犯面でも安心。建物のエントランスはオートロックがついており、インターホンにはTVモニタもついているため、相手の顔を確認してから来客対応することができます。
人気の南向きのお部屋。また、フローリングなのでお掃除もラクラク。キッチンはシステムキッチン仕様になっていますので、お料理好きの方にもぴったり。バス・トイレは別なので、のんびりお風呂タイムも楽しめるでしょう。また、雨の日でも浴室乾燥機を使えば、お洗濯も問題ありません。
通信設備面では、インターネットが無料で使えるので、月々の出費を抑えられるのも魅力です。また、BSアンテナ・CSアンテナがありCATVにも対応しているので、おうち時間も充実するでしょう(別途工事、BS・CS・CATVの契約料等が必要な場合あり)。
建物にはエレベーターがついているので、重い荷物があっても安心。共用部には宅配ボックスが設定されているので、不在の時にも荷物を受け取ることができます。また、ペット飼育の相談ができますので、あなたの大切な家族の一員も快適に暮らせるか、ぜひ確認してみてください。
お金・契約の情報
※「-」と表示されているものは、実際は料金が発生するものもございます。詳細はお問い合わせください。
| 家賃 | 14.1万円 | 管理費・共益費 | 1万円 |
|---|---|---|---|
| 敷金 | 14.1万円 | 礼金 | 14.1万円 |
| 入居決定でお祝い金最大100,000円 | |||
| 保証金 | - | 償却・敷引 | - |
| 住宅保険料 | 1円 | 更新料 | - |
| その他費用 | 事務管理手数料:1.1万円 | ||
| 保証会社利用 | 必須 | 保証会社名 | - |
| 保証会社費用 | - | 保証会社備考 | 初回保証料:総賃料の50% 以降1年毎に1万円 |
| 契約形態 | - | 契約期間 | 2年 |
| 入居・引渡期間 | 即時 | 現況 | - |
| 入居可能条件 | 2人入居可、ペット相談 | ||
| 契約備考 | ペット飼育時飼育料賃料1ヶ月分(償却) 短期解約違約金有 ペット飼育時敷金積み増し料金(償却)有り その他設備/条件:室内洗濯機置き場、独立洗面台、防犯カメラ、クローゼット、シューズボックス | ||
部屋の情報
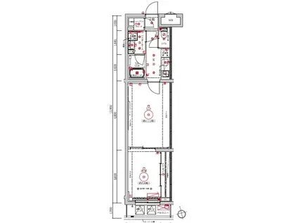
| 間取り | 2K | 専有面積 | 39.49m2 |
|---|---|---|---|
| 間取り詳細 | 洋室(11.1帖)、洋室(5.6帖) | ||
| 所在階 / 向き | 5階 / 南 | バルコニー面積 | - |
| 水道 / ガス | ガス【都市】 | ||
| 設備 | バス・トイレ別、オートロック、テレビドアホン、宅配ボックス、浴室乾燥機、追い焚き、光ファイバー対応、システムキッチン、エアコン、温水洗浄便座、バルコニー、フローリング、2口コンロ、CATV、CSアンテナ、BSアンテナ、シャワー、給湯 | ||
| 当社物件ID | 159934689 | ||
建物の情報
| 建物名 | LUMEED梅島 | ||
|---|---|---|---|
| 所在地 | 東京都足立区梅田8丁目 | ||
| 交通 | 東武伊勢崎・大師線 梅島駅 徒歩4分 東武伊勢崎・大師線 西新井駅 徒歩12分 | ||
| 階数 | 5階建 | 総戸数 | - |
| 築年月 | 2025年12月 / 新築(築1年) | エレベーター | - |
| 駐車場 | - | バイク置き場 | - |
| 駐輪場 | - | 管理人/管理会社 | - |
| 周辺環境 | 販売店 徒歩17分(1327m) その他 ドラッグストア その他 公園 その他 銀行 その他 * | ||
| 建物種別 | マンション | 建物構造 | RC(鉄筋コンクリート) |
この部屋の取扱い不動産会社
| 会社名 | ハウスコム東東京株式会社 綾瀬店 | ||
|---|---|---|---|
| 所在地 | 東京都足立区7-5石﨑ビル1階 | 交通 | - |
| 営業時間 | 10:00~18:00 | 定休日 | 水曜定休 |
| 免許番号 | 東京都知事(1)第108283号 | 取引態様 | 仲介 |
| 不動産会社管理番号 | HC2-5261624-502-0157 | 当社管理番号 | 468 |
| 所属団体 | 、 | ||
| 取扱い物件情報 | 物件詳細へ | ||
※各種情報と現状に差異がある場合は、現状優先となります。問い合わせをすることで、より詳しい条件、情報を確認する事ができます。
提供:ハウスコム東東京株式会社 綾瀬店
この物件が気になったら掲載期限まであと4日
LUMEED梅島の空き部屋一覧
全部で22の空き部屋があります。
LUMEED梅島に条件(家賃・エリア)が近い物件一覧
| 写真 | 家賃 管理費等 | 敷金 礼金 | 間取り 専有面積 | 築年数 | 最寄り駅 所在地 | キープ | 詳細 |
|---|---|---|---|---|---|---|---|
マンション メイクス東向島Ⅱ(1LDK/4階) | |||||||
![]() | 14.2万円 1.2万円 | 14.2万円 14.2万円 | 1LDK 40.86m2 | 築4年 | 東武伊勢崎・大師線 東向島駅 徒歩5分 東京都墨田区東向島5丁目 | 詳細を見る | |
マンション ユナイト(1SLDK/12階) | |||||||
![]() | 20万円 2万円 | 20万円 20万円 | 1SLDK 55.21m2 | 築5年 | 東京メトロ南北線 王子神谷駅 徒歩5分 JR京浜東北線 東十条駅 徒歩15分 東京メトロ南北線 志茂駅 徒歩15分 東京都北区神谷 | 詳細を見る | |
マンション ネオ・プロミネンス(3DK/5階) | |||||||
![]() | 17.2万円 1.5万円 | 17.2万円 17.2万円 | 3DK 61.35m2 | 築32年 | 東京メトロ南北線 志茂駅 徒歩1分 JR京浜東北線 赤羽駅 徒歩17分 JR埼京線 十条駅(東京) 徒歩37分 東京都北区志茂 | 詳細を見る | |
マンション プラウドフラット両国サウス(ワンルーム/9階) | |||||||
![]() | 14.5万円 1万円 | 14.5万円 なし | ワンルーム 25.16m2 | 築5年 | 都営大江戸線 森下駅(東京) 徒歩8分 JR総武線 両国駅 徒歩10分 都営新宿線 浜町駅 徒歩13分 東京都墨田区千歳 | 詳細を見る | |
マンション ハーモニーレジデンス錦糸町♯002(1K/10階) | |||||||
![]() | 10.5万円 1.5万円 | なし 10.5万円 | 1K 25.46m2 | 築12年 | 東京メトロ半蔵門線 錦糸町駅 徒歩4分 JR総武線 錦糸町駅 徒歩4分 都営新宿線 住吉駅(東京) 徒歩8分 東京都墨田区江東橋 | 詳細を見る | |
アパート コンフォートスペース南千住(1DK/2階) | |||||||
![]() | 10.5万円 3,000円 | なし 10.5万円 | 1DK 46.37m2 | 築6年 | 都電荒川線 三ノ輪橋駅 徒歩7分 JR常磐線 南千住駅 徒歩9分 京成本線 千住大橋駅 徒歩12分 東京都荒川区南千住 | 詳細を見る | |
アパート PAUL MAISON(1LDK/2階) | |||||||
![]() | 11.5万円 5,000円 | なし 11.5万円 | 1LDK 44.26m2 | 築5年 | 京成押上線 京成立石駅 徒歩23分 JR総武線 小岩駅 徒歩25分 成田スカイアクセス 青砥駅 徒歩25分 東京都葛飾区奥戸 | 詳細を見る | |
アパート エコステージ王子神谷(1K/3階) | |||||||
![]() | 8.5万円 6,000円 | 8.5万円 8.5万円 | 1K 26.27m2 | 築21年 | 東京メトロ南北線 王子神谷駅 徒歩6分 JR京浜東北線 東十条駅 徒歩22分 JR京浜東北線 王子駅 徒歩23分 東京都北区豊島 | 詳細を見る | |








