賃貸マンション
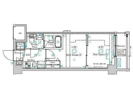
ラフィスタ亀有の賃貸物件情報(2K/4階)
| 家賃 | 管理費等 | 敷金 | 礼金 | 間取り | 専有面積 |
|---|---|---|---|---|---|
| 9.4万円 | 1.4万円 | なし | なし | 2K | 25.62m2 |
入居決定でお祝い金最大100,000円
Point
セキュリティ面は、オートロック・TVインターホンなどを設置しているので安全面でも優れております。収納はクロゼット・シューズボックスなどが備え付けられているので、衣類や日用品の収納に重宝します。
提供:(株)ネクストライフエージェント(SUUMO経由)

詳細情報 ラフィスタ亀有
物件紹介
ラフィスタ亀有はJR常磐線亀有駅から徒歩10分にあり、駅近で通勤通学に便利なマンションです。
このお部屋は2階以上に位置しているので、通行人や周囲の住人からの視線が気になりにくく、防犯面でも安心。建物のエントランスはオートロックがついており、インターホンにはTVモニタもついているため、相手の顔を確認してから来客対応することができます。
フローリングのお部屋なのでお掃除もラクラク。キッチンはシステムキッチン仕様になっていますので、お料理好きの方にもぴったり。バス・トイレは別なので、のんびりお風呂タイムも楽しめるでしょう。また、雨の日でも浴室乾燥機を使えば、お洗濯も問題ありません。
通信設備面では、インターネットが無料で使えるので、月々の出費を抑えられるのも魅力です。また、BSアンテナ・CSアンテナもありますので、おうち時間も充実するでしょう(別途工事、BS・CSの契約料等が必要な場合あり)。
建物にはエレベーターがついているので、重い荷物があっても安心。共用部には宅配ボックスが設定されているので、不在の時にも荷物を受け取ることができます。また、ペット飼育の相談ができますので、あなたの大切な家族の一員も快適に暮らせるか、ぜひ確認してみてください。
このお部屋は2階以上に位置しているので、通行人や周囲の住人からの視線が気になりにくく、防犯面でも安心。建物のエントランスはオートロックがついており、インターホンにはTVモニタもついているため、相手の顔を確認してから来客対応することができます。
フローリングのお部屋なのでお掃除もラクラク。キッチンはシステムキッチン仕様になっていますので、お料理好きの方にもぴったり。バス・トイレは別なので、のんびりお風呂タイムも楽しめるでしょう。また、雨の日でも浴室乾燥機を使えば、お洗濯も問題ありません。
通信設備面では、インターネットが無料で使えるので、月々の出費を抑えられるのも魅力です。また、BSアンテナ・CSアンテナもありますので、おうち時間も充実するでしょう(別途工事、BS・CSの契約料等が必要な場合あり)。
建物にはエレベーターがついているので、重い荷物があっても安心。共用部には宅配ボックスが設定されているので、不在の時にも荷物を受け取ることができます。また、ペット飼育の相談ができますので、あなたの大切な家族の一員も快適に暮らせるか、ぜひ確認してみてください。
お金・契約の情報
※「-」と表示されているものは、実際は料金が発生するものもございます。詳細はお問い合わせください。
| 家賃 | 9.4万円 | 管理費・共益費 | 1.4万円 |
|---|---|---|---|
| 敷金 | なし | 礼金 | なし |
| 入居決定でお祝い金最大100,000円 | |||
| 保証金 | - | 償却・敷引 | - |
| 住宅保険料 | - | 更新料 | - |
| 保証会社利用 | 必須 | 保証会社名 | - |
| 保証会社費用 | - | 保証会社備考 | 保証会社利用必 初回保証料30%から 継続保証料有 |
| 契約形態 | - | 契約期間 | - |
| 入居・引渡期間 | 相談 | 現況 | - |
| 入居可能条件 | ペット相談 | ||
| 契約備考 | 合計2.2万円(内訳:鍵交換代2.2万円) 更新料 新賃料1.50ヶ月分 犬飼育時共益費積み増し 月額3000円 猫飼育時共益費積み増し 月額10000円 2K ペット相談 普通借家2年 損保【2.3万円2年】 バストイレ別、バルコニー、エアコン、ガスコンロ対応、クロゼット、フローリング、TVインターホン、浴室乾燥機、オートロック、室内洗濯置、シューズボックス、システムキッチン、温水洗浄便座、エレベーター、洗面所独立、2口コンロ、駐輪場、宅配ボックス、光ファイバー、礼金不要、BS・CS、敷金不要、ペット相談、保証人不要、バイク置場、全居室フローリング、2沿線利用可、CS、ネット使用料不要、24時間換気システム、2駅利用可、3駅以上利用可、駅徒歩10分以内、築5年以内、都市ガス、BS、年内入居可、年度内入居可、敷金・礼金不要、保証会社利用可 | ||
部屋の情報
| 間取り | 2K | 専有面積 | 25.62m2 |
|---|---|---|---|
| 所在階 / 向き | 4階 / 東 | バルコニー面積 | - |
| 水道 / ガス | - | ||
| 設備 | バス・トイレ別、2階以上、オートロック、テレビドアホン、宅配ボックス、浴室乾燥機、インターネット対応、システムキッチン、エアコン、エレベーター、温水洗浄便座、バルコニー、フローリング、洗髪洗面化粧台、2口コンロ、コンロ:ガス、CSアンテナ、BSアンテナ、インターネット使用料無料、洗濯機:室内 | ||
| 当社物件ID | 107434007 | ||
建物の情報
| 建物名 | ラフィスタ亀有 | ||
|---|---|---|---|
| 所在地 | 東京都葛飾区亀有 | ||
| 交通 | JR常磐線 亀有駅 徒歩10分 京成本線 お花茶屋駅 徒歩23分 京成本線 青砥駅 徒歩27分 | ||
| 階数 | 8階建 | 総戸数 | - |
| 築年月 | 2022年03月 / 築4年 | エレベーター | あり |
| 駐車場 | なし | バイク置き場 | あり |
| 駐輪場 | あり | 管理人/管理会社 | - |
| 周辺環境 | その他 まいばすけっと 亀有2丁目店(スーパー)まで78m その他 コープみらい コープ亀有店(スーパー)まで298m その他 セブンイレブン 葛飾亀有1丁目店(コンビニ)まで18m その他 ローソン 葛飾亀有四丁目店(コンビニ)まで294m その他 あおば薬局 亀有店(ドラッグストア)まで18m その他 立石休日応急診療所・平日夜間こどもクリニック(病院)まで2075m | ||
| 建物種別 | マンション | 建物構造 | RC(鉄筋コンクリート) |
この部屋の取扱い不動産会社
| 会社名 | (株)ネクストライフエージェント(SUUMO経由) | ||
|---|---|---|---|
| 所在地 | 東京都新宿区新宿2-13-16 | 交通 | - |
| 営業時間 | 10:00-19:00 | 定休日 | 年末年始休暇 |
| 免許番号 | 東京都知事95274 | 取引態様 | 仲介 |
| 不動産会社管理番号 | 100440404229 | 当社管理番号 | 89 |
| 所属団体 | (公社)全日本不動産協会東京都本部会員 | ||
| 公正取引協議会 | (公社)首都圏不動産公正取引協議会加盟 | ||
| 取扱い物件情報 | 物件詳細へ | ||
※各種情報と現状に差異がある場合は、現状優先となります。問い合わせをすることで、より詳しい条件、情報を確認する事ができます。
提供:(株)ネクストライフエージェント(SUUMO経由)
この物件が気になったら掲載期限まであと10日
ラフィスタ亀有に条件(家賃・エリア)が近い物件一覧
| 写真 | 家賃 管理費等 | 敷金 礼金 | 間取り 専有面積 | 築年数 | 最寄り駅 所在地 | キープ | 詳細 |
|---|---|---|---|---|---|---|---|
マンション ルクレ両国(1K/4階) | |||||||
![]() | 12万円 1.5万円 | なし なし | 1K 26.68m2 | 築6年 | 東京都大江戸線 両国駅 徒歩5分 東京都新宿線 森下駅(東京) 徒歩5分 総武・中央緩行線 両国駅 徒歩8分 東京都墨田区両国4丁目 | 詳細を見る | |
マンション エストゥルース亀戸(1K/2階) | |||||||
![]() | 9.75万円 1万円 | なし なし | 1K 25.66m2 | 築1年 | 東武鉄道亀戸線 小村井駅 徒歩3分 東武鉄道亀戸線 東あずま駅 徒歩9分 東京都墨田区文花2丁目 | 詳細を見る | |
マンション コンフォリア錦糸町(1K/6階) | |||||||
![]() | 12.1万円 8,000円 | 12.1万円 なし | 1K 25.17m2 | 築12年 | 東京地下鉄半蔵門線 錦糸町駅 徒歩4分 総武・中央緩行線 錦糸町駅 徒歩6分 東京都墨田区太平3丁目 | 詳細を見る | |
マンション 錦糸町コクーン(1K/2階) | |||||||
![]() | 10.5万円 5,800円 | なし 21万円 | 1K 27.42m2 | 築6年 | 東京都新宿線 菊川駅(東京) 徒歩8分 総武・中央緩行線 錦糸町駅 徒歩13分 東京都大江戸線 両国駅 徒歩15分 東京都墨田区緑4丁目 | 詳細を見る | |
マンション ブランシエスタ両国(1K/8階) | |||||||
![]() | 12.9万円 1万円 | 12.9万円 12.9万円 | 1K 25.67m2 | 築5年 | 都営大江戸線 両国駅 徒歩4分 都営大江戸線 森下駅(東京) 徒歩5分 JR総武線 両国駅 徒歩8分 東京都墨田区両国 | 詳細を見る | |
マンション ストーク両国緑(ワンルーム/2階) | |||||||
![]() | 6.9万円 9,000円 | 6.9万円 6.9万円 | ワンルーム 22.05m2 | 築37年 | 東京都大江戸線 両国駅 徒歩4分 東京都墨田区緑1丁目 | 詳細を見る | |
マンション エテルノ両国リバーサイド(1K/4階) | |||||||
![]() | 9万円 1万円 | 9万円 9万円 | 1K 25.51m2 | 築18年 | JR総武線 両国駅 徒歩3分 都営大江戸線 両国駅 徒歩9分 JR総武線 浅草橋駅 徒歩10分 東京都墨田区両国 | 詳細を見る | |
マンション パークハイム駒形(1K/6階) | |||||||
![]() | 6.8万円 8,000円 | 6.8万円 なし | 1K 20.14m2 | 築38年 | 東京地下鉄銀座線 浅草駅(東武・都営・メトロ) 徒歩4分 東京都浅草線 浅草駅(東武・都営・メトロ) 徒歩4分 東京都大江戸線 蔵前駅 徒歩8分 東京都墨田区東駒形1丁目 | 詳細を見る | |







/105x80-f1-q70-wp1)

