賃貸マンション
ビレッジハウス江刺2号棟の賃貸物件情報(3DK/5階)
| 家賃 | 管理費等 | 敷金 | 礼金 | 間取り | 専有面積 |
|---|---|---|---|---|---|
| 4.42万円 | なし | なし | なし | 3DK | 53.08m2 |
入居決定でお祝い金最大100,000円
- 保証金
- -
- 償却・敷引
- -
- 築年数
- 築39年
- 所在階
- 5階
- 向き
- 南
Point
★連帯保証人不要・鍵交換代・敷金・礼金ゼロ★
提供:アパマンショップ姪浜駅前店

詳細情報 ビレッジハウス江刺2号棟
物件紹介
このお部屋は2階以上に位置しているので、通行人や周囲の住人からの視線が気になりにくく、防犯面でも安心です。
人気の南向きのお部屋。また、フローリングなのでお掃除もラクラク。バス・トイレ別の仕様で、のんびりお風呂タイムも楽しめます。
通信設備面では、インターネット接続が可能です(別途工事、契約料が必要な場合あり)。
人気の南向きのお部屋。また、フローリングなのでお掃除もラクラク。バス・トイレ別の仕様で、のんびりお風呂タイムも楽しめます。
通信設備面では、インターネット接続が可能です(別途工事、契約料が必要な場合あり)。
お金・契約の情報
※「-」と表示されているものは、実際は料金が発生するものもございます。詳細はお問い合わせください。
| 家賃 | 4.42万円 | 管理費・共益費 | なし |
|---|---|---|---|
| 敷金 | なし | 礼金 | なし |
| 入居決定でお祝い金最大100,000円 | |||
| 保証金 | - | 償却・敷引 | - |
| 住宅保険料 | 1万円(2年) | 更新料 | - |
| 契約形態 | - | 契約期間 | 2年 |
| 入居・引渡期間 | 相談 | 現況 | - |
| 入居可能条件 | 2人入居可 | ||
| 契約備考 | 保証人・保証会社不要(審査によって連帯保証人が必要の場合あり) 短期解約違約金あり。1年未満の解約で賃料3ヶ月分。2年未満の解約で賃料2ヶ月分。 鍵交換代は貸主負担。 、リノベーション済み、リフォーム済み | ||
部屋の情報
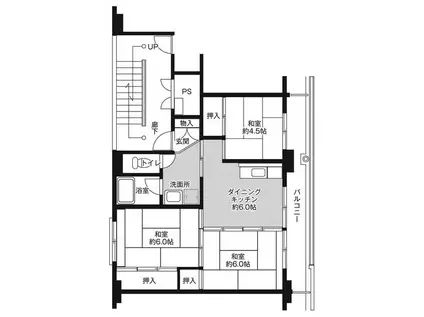
| 間取り | 3DK | 専有面積 | 53.08m2 |
|---|---|---|---|
| 所在階 / 向き | 5階 / 南 | バルコニー面積 | - |
| 水道 / ガス | ガス【プロパン】 | ||
| 設備 | バス・トイレ別、追い焚き、光ファイバー対応、温水洗浄便座、バルコニー、フローリング、コンロ:ガス、シャワー、給湯、冷房、洗濯機:室内、閑静な住宅街 | ||
| 当社物件ID | 159372653 | ||
建物の情報
| 建物名 | ビレッジハウス江刺2号棟 | ||
|---|---|---|---|
| 所在地 | 岩手県奥州市江刺西大通り江刺西大通り | ||
| 交通 | 東北本線 水沢駅 バス乗車時間:20分 岩手県交通バス 江刺病院前バス停で下車 徒歩3分 | ||
| 階数 | 5階建 | 総戸数 | 80戸 |
| 築年月 | 1987年10月 / 築39年 | エレベーター | - |
| 駐車場 | 空有 3,300円/月 | バイク置き場 | あり |
| 駐輪場 | あり | 管理人/管理会社 | - |
| 周辺環境 | その他 駐輪場 徒歩1分(50m) | ||
| 建物種別 | マンション | 建物構造 | RC(鉄筋コンクリート) |
この部屋の取扱い不動産会社
| 会社名 | アパマンショップ姪浜駅前店 | ||
|---|---|---|---|
| 所在地 | 福岡県福岡市西区姪浜駅南1丁目 5-1 | 交通 | 福岡市空港線姪浜から徒歩1分 |
| 営業時間 | 09:30〜17:30(毎週水曜日) | 定休日 | 水曜日 |
| 免許番号 | 福岡県知事(2)19458 | 取引態様 | 仲介 |
| 不動産会社管理番号 | 110872498 | 当社管理番号 | 4 |
| 所属団体 | (公社)福岡県宅地建物取引業協会 | ||
| 公正取引協議会 | (一社) 九州不動産公正取引協議会加盟 | ||
| 取扱い物件情報 | 物件詳細へ | ||
※各種情報と現状に差異がある場合は、現状優先となります。問い合わせをすることで、より詳しい条件、情報を確認する事ができます。
提供:アパマンショップ姪浜駅前店
この物件が気になったら掲載期限まであと7日
ビレッジハウス江刺2号棟に条件(家賃・エリア)が近い物件一覧
| 写真 | 家賃 管理費等 | 敷金 礼金 | 間取り 専有面積 | 築年数 | 最寄り駅 所在地 | キープ | 詳細 |
|---|---|---|---|---|---|---|---|
アパート ワンリッチ金ヶ崎C(1LDK/1階) | |||||||
![]() | 4.5万円 3,500円 | なし なし | 1LDK 30.29m2 | 築1年 | JR東北本線 金ケ崎駅 徒歩3分 岩手県胆沢郡金ケ崎町西根杉土手 | 詳細を見る | |
アパート プリマベーラA(1K/2階) | |||||||
![]() | 4.8万円 3,000円 | なし なし | 1K 32.91m2 | 築3年 | JR東北本線 村崎野駅 徒歩31分 JR北上線 柳原駅(岩手) 徒歩33分 JR東北本線 北上駅 徒歩51分 岩手県北上市堤ケ丘 | 詳細を見る | |
アパート シティハイムサクセスA棟(2DK/1階) | |||||||
![]() | 4万円 なし | なし なし | 2DK 34.78m2 | 築32年 | 東北新幹線 北上駅 徒歩10分 岩手県北上市川岸 | 詳細を見る | |
一戸建て 岩手県北上市 築49年(2K) | |||||||
![]() | 5.2万円 なし | 10.4万円 なし | 2K 36.43m2 | 築49年 | 岩手県北上市常盤台1丁目 | 詳細を見る | |
アパート グランドメゾン桜台(1LDK/2階) | |||||||
![]() | 3.6万円 1,000円 | 7.2万円 なし | 1LDK 30m2 | 築36年 | JR東北本線 花巻駅 徒歩10分 岩手県花巻市桜台 | 詳細を見る | |
アパート ARIETTA金ケ崎(1LDK/1階) | |||||||
![]() | 6万円 1,500円 | 6万円 6万円 | 1LDK 48.3m2 | 築4年 | 東北本線 六原駅 徒歩24分 岩手県胆沢郡金ケ崎町西根荒巻 | 詳細を見る | |
アパート ファミールよこみち(1K/1階) | |||||||
![]() | 4.9万円 4,500円 | なし なし | 1K 25.51m2 | 築19年 | 東北本線 金ケ崎駅 徒歩20分 岩手県胆沢郡金ケ崎町西根前野 | 詳細を見る | |
アパート SUCCEED M(1LDK/1階) | |||||||
| 5.2万円 3,000円 | 5.2万円 5.2万円 | 1LDK 39.77m2 | 築6年 | 岩手県北上市大堤北1丁目 | 詳細を見る | ||





/105x80-f1-q70-wp1)

/105x80-f1-q70-wp1)
/105x80-f1-q70-wp1)