賃貸マンション
パークハビオ渋谷本町レジデンスの賃貸物件情報(2LDK/7階)
| 家賃 | 管理費等 | 敷金 | 礼金 | 間取り | 専有面積 |
|---|---|---|---|---|---|
| 28.3万円 | 1.2万円 | 56.6万円 | なし | 2LDK | 60.6m2 |
入居決定でお祝い金最大100,000円
- 保証金
- -
- 償却・敷引
- -
- 築年数
- 築15年
- 所在階
- 7階
- 向き
- 南
Point
オンライン内見・契約実施!気になる物件はまとめてご案内可能です!お部屋探しはナビホーム赤坂店にお任せください♪
提供:(株)アトリエハウス(SUUMO経由)

詳細情報 パークハビオ渋谷本町レジデンス
物件紹介
パークハビオ渋谷本町レジデンスは都営大江戸線西新宿五丁目駅から徒歩7分にあり、駅近で通勤通学に便利なマンションです。
このお部屋は2階以上に位置しているので、通行人や周囲の住人からの視線が気になりにくく、防犯面でも安心。建物のエントランスはオートロックがついており、インターホンにはTVモニタもついているため、相手の顔を確認してから来客対応することができます。
こちらは楽器相談が可能な物件。楽器演奏をお考えの方はぜひ相談してみてください。人気の南向き・フローリングのお部屋。室内にはウォークインクローゼットがありますので、たくさんの荷物も効率的に収納ができます。キッチンはシステムキッチン仕様になっていますので、お料理好きの方にもぴったり。バス・トイレは別なので、のんびりお風呂タイムも楽しめるでしょう。また、雨の日でも浴室乾燥機を使えば、お洗濯も問題ありません。
通信設備面では、インターネット接続が可能です。また、BSアンテナ・CSアンテナがありCATVにも対応しているので、おうち時間も充実するでしょう(別途工事、契約料が必要な場合あり)。
床暖房があり、冬も足元から暖かく快適に過ごすことができます。建物にはエレベーターがついているので、重い荷物があっても安心。共用部には宅配ボックスが設定されているので、不在の時にも荷物を受け取ることができます。また、ペット飼育の相談ができますので、あなたの大切な家族の一員も快適に暮らせるか、ぜひ確認してみてください。
このお部屋は2階以上に位置しているので、通行人や周囲の住人からの視線が気になりにくく、防犯面でも安心。建物のエントランスはオートロックがついており、インターホンにはTVモニタもついているため、相手の顔を確認してから来客対応することができます。
こちらは楽器相談が可能な物件。楽器演奏をお考えの方はぜひ相談してみてください。人気の南向き・フローリングのお部屋。室内にはウォークインクローゼットがありますので、たくさんの荷物も効率的に収納ができます。キッチンはシステムキッチン仕様になっていますので、お料理好きの方にもぴったり。バス・トイレは別なので、のんびりお風呂タイムも楽しめるでしょう。また、雨の日でも浴室乾燥機を使えば、お洗濯も問題ありません。
通信設備面では、インターネット接続が可能です。また、BSアンテナ・CSアンテナがありCATVにも対応しているので、おうち時間も充実するでしょう(別途工事、契約料が必要な場合あり)。
床暖房があり、冬も足元から暖かく快適に過ごすことができます。建物にはエレベーターがついているので、重い荷物があっても安心。共用部には宅配ボックスが設定されているので、不在の時にも荷物を受け取ることができます。また、ペット飼育の相談ができますので、あなたの大切な家族の一員も快適に暮らせるか、ぜひ確認してみてください。
お金・契約の情報
※「-」と表示されているものは、実際は料金が発生するものもございます。詳細はお問い合わせください。
| 家賃 | 28.3万円 | 管理費・共益費 | 1.2万円 |
|---|---|---|---|
| 敷金 | 56.6万円 | 礼金 | なし |
| 入居決定でお祝い金最大100,000円 | |||
| 保証金 | - | 償却・敷引 | - |
| 住宅保険料 | - | 更新料 | - |
| 保証会社利用 | 必須 | 保証会社名 | - |
| 保証会社費用 | - | 保証会社備考 | 保証会社利用必 当社指定:初期費用は賃料等の50%、月次保証料は賃料等の1%。保証会社条件有 |
| 契約形態 | - | 契約期間 | - |
| 入居・引渡期間 | - | 現況 | - |
| 入居可能条件 | 楽器相談、ペット相談 | ||
| 契約備考 | 去時清掃実費、大手法人保証会社不要、ペットSOHO敷金1ヶ月増、駐車場は要問合せ 入居時鍵交換費用:33000円 MREALプレミアム会費2年:19800円 更新料:新賃料1ヶ月 賃貸保証:加入要当社指定:初期費用は賃料等の50%、月次保証料は賃料等の1%。その他保証会社条件有 合計8.58万円(内訳:入居時鍵交換費用3.3万円MREALプレミアム会費2年1.98万円鍵交換代3.3万円) 更新料 新賃料1.00ヶ月分 2LDK ペット相談/楽器相談 普通借家2年 損保【3.2万円2年】 バストイレ別、バルコニー、エアコン、クロゼット、フローリング、TVインターホン、浴室乾燥機、オートロック、室内洗濯置、シューズボックス、システムキッチン、南向き、追焚機能浴室、温水洗浄便座、脱衣所、エレベーター、洗面所独立、洗面化粧台、宅配ボックス、CATV、光ファイバー、外壁タイル張り、礼金不要、3口以上コンロ、対面式キッチン、防犯カメラ、ペット相談、IHクッキングヒーター、全居室収納、グリル付、全居室洋室、保証人不要、全居室フローリング、2面バルコニー、2沿線利用可、LDK15畳以上、ネット専用回線、敷金2ヶ月、床暖房、エアコン全室、保証金不要、楽器相談、フロントサービス、南面2室、南面リビング、両面バルコニー、耐火構造、2駅利用可、3駅以上利用可、3沿線以上利用可、駅徒歩10分以内、24時間ゴミ出し可、敷地内ごみ置き場、LDK12畳以上、都市ガス、洗面所にドア、南面バルコニー、BS、年内入居可、年度内入居可 入居日:'26年2月下旬 | ||
部屋の情報
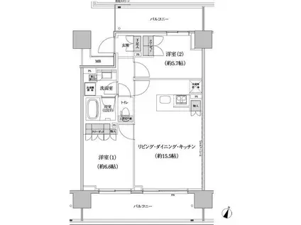
| 間取り | 2LDK | 専有面積 | 60.6m2 |
|---|---|---|---|
| 所在階 / 向き | 7階 / 南 | バルコニー面積 | 20m2 |
| 水道 / ガス | - | ||
| 設備 | バス・トイレ別、2階以上、オートロック、テレビドアホン、宅配ボックス、浴室乾燥機、追い焚き、インターネット対応、システムキッチン、エアコン、エレベーター、温水洗浄便座、南向き、バルコニー、フローリング、洗髪洗面化粧台、床暖房、2口コンロ、コンロ:IH、CATV、BSアンテナ、洗濯機:室内 | ||
| 当社物件ID | 2604397 | ||
建物の情報
| 建物名 | パークハビオ渋谷本町レジデンス | ||
|---|---|---|---|
| 所在地 | 東京都渋谷区本町 | ||
| 交通 | 都営大江戸線 西新宿五丁目駅 徒歩7分 東京メトロ丸ノ内線 中野新橋駅 徒歩12分 京王新線 初台駅 徒歩14分 | ||
| 階数 | 地下1地上13階建 | 総戸数 | 261戸 |
| 築年月 | 2011年05月 / 築15年 | エレベーター | あり |
| 駐車場 | なし | バイク置き場 | - |
| 駐輪場 | - | 管理人/管理会社 | - |
| 周辺環境 | その他 サミットストア 渋谷本町店(スーパー)まで2m その他 mini(ミニ)ピアゴ 渋谷本町3丁目店(スーパー)まで624m その他 ファミリーマート 渋谷本町四丁目店(コンビニ)まで102m その他 セブンイレブン 渋谷本町4丁目店(コンビニ)まで208m その他 ファミリーマート 中野弥生町一丁目店(コンビニ)まで135m その他 スギ薬局 中野南台店(ドラッグストア)まで151m | ||
| 建物種別 | マンション | 建物構造 | RC(鉄筋コンクリート) |
この部屋の取扱い不動産会社
| 会社名 | TR(株)ナビホーム赤坂店(SUUMO経由) | ||
|---|---|---|---|
| 所在地 | 東京都港区赤坂2-19-4 関ビル4階 | 交通 | - |
| 営業時間 | 10時~19時 | 定休日 | - |
| 免許番号 | 東京都知事109457 | 取引態様 | 仲介 |
| 不動産会社管理番号 | 100476903302 | 当社管理番号 | 89 |
| 所属団体 | (公社)東京都宅地建物取引業協会会員 | ||
| 公正取引協議会 | (公社)首都圏不動産公正取引協議会加盟 | ||
| 取扱い物件情報 | 物件詳細へ | ||
※各種情報と現状に差異がある場合は、現状優先となります。問い合わせをすることで、より詳しい条件、情報を確認する事ができます。
提供:TR(株)ナビホーム赤坂店(SUUMO経由)
この物件が気になったら掲載期限まであと10日
パークハビオ渋谷本町レジデンスに条件(家賃・エリア)が近い物件一覧
| 写真 | 家賃 管理費等 | 敷金 礼金 | 間取り 専有面積 | 築年数 | 最寄り駅 所在地 | キープ | 詳細 |
|---|---|---|---|---|---|---|---|
マンション PATH牛込神楽坂(2LDK/2階) | |||||||
![]() | 29万円 1万円 | 29万円 なし | 2LDK 60.55m2 | 築37年 | 都営大江戸線 牛込神楽坂駅 徒歩4分 東京メトロ東西線 神楽坂駅 徒歩9分 東京メトロ南北線 市ケ谷駅 徒歩10分 東京都新宿区北町 | 詳細を見る | |
マンション リベルテ等々力(2LDK/2階) | |||||||
![]() | 29.8万円 なし | 29.8万円 29.8万円 | 2LDK 70.56m2 | 築21年 | 東急大井町線 尾山台駅 徒歩10分 東京都世田谷区等々力6丁目 | 詳細を見る | |
マンション OASE用賀イースト(3LDK/2階) | |||||||
![]() | 29.5万円 1万円 | 59万円 59万円 | 3LDK 76.45m2 | 築20年 | 東急田園都市線 用賀駅 徒歩11分 東急田園都市線 桜新町駅 徒歩14分 東京都世田谷区用賀1丁目 | 詳細を見る | |
マンション ザ・レジデンス駒沢大学(1LDK/1階) | |||||||
![]() | 22.77万円 1.6万円 | なし なし | 1LDK 42.25m2 | 築1年 | 東急田園都市線 駒沢大学駅 徒歩5分 東急世田谷線 松陰神社前駅 徒歩14分 東急世田谷線 若林駅(東京) 徒歩16分 東京都世田谷区駒沢 | 詳細を見る | |
一戸建て 東京地下鉄銀座線 表参道駅 徒歩7分 築40年(3LDK) | |||||||
![]() | 38万円 なし | 76万円 38万円 | 3LDK 89.92m2 | 築40年 | 東京地下鉄銀座線 表参道駅 徒歩7分 東京都渋谷区神宮前3丁目 | 詳細を見る | |
マンション メゾンK(4DK/2階) | |||||||
![]() | 19.7万円 3,000円 | 39.4万円 19.7万円 | 4DK 84.27m2 | 築36年 | 東京メトロ丸ノ内線 新中野駅 徒歩3分 JR総武線 中野駅(東京) 徒歩14分 東京都中野区本町 | 詳細を見る | |
マンション セルフィスタ渋谷(ワンルーム/5階) | |||||||
![]() | 18万円 なし | 36万円 18万円 | ワンルーム 30.37m2 | 築17年 | JR山手線 渋谷駅 徒歩9分 京王井の頭線 神泉駅 徒歩11分 東急東横線 代官山駅 徒歩12分 東京都渋谷区桜丘町 | 詳細を見る | |





/105x80-f1-q70-wp1)

