賃貸マンション
エステムプラザ京都河原町通IIレジデンシャルの賃貸物件情報(2K/8階)
| 家賃 | 管理費等 | 敷金 | 礼金 | 間取り | 専有面積 |
|---|---|---|---|---|---|
| 9.8万円 | 1.02万円 | なし | 9.8万円 | 2K | 31.04m2 |
入居決定でお祝い金最大100,000円
- 保証金
- -
- 償却・敷引
- -
- 築年数
- 築12年
- 所在階
- 8階
- 向き
- 北西
Point
小型犬飼育可能。インターネット無料。Amazon置き配対応しています。浴室乾燥機やシャワートイレ、モニター付インターホンなど設備も充実!
提供:(株)ホームズ京都(SUUMO経由)

詳細情報 エステムプラザ京都河原町通IIレジデンシャル
物件紹介
エステムプラザ京都河原町通IIレジデンシャルは京阪本線七条駅から徒歩5分にあり、駅近で通勤通学に便利なマンションです。
このお部屋は2階以上に位置しているので通行人や周囲の住人からの視線が気になりにくく、建物のエントランスはオートロックがついているので防犯性が高くなっています。
フローリングのお部屋なのでお掃除もラクラク。バス・トイレ別の仕様で、のんびりお風呂タイムも楽しめます。
通信設備面では、インターネットが無料で使えるので、月々の出費を抑えられるのも魅力です。また、BSアンテナ・CSアンテナがありCATVにも対応しているので、おうち時間も充実するでしょう(別途工事、BS・CS・CATVの契約料等が必要な場合あり)。
建物にはエレベーターがついているので、重い荷物があっても安心。また、ペット飼育の相談ができますので、あなたの大切な家族の一員も快適に暮らせるか、ぜひ確認してみてください。
このお部屋は2階以上に位置しているので通行人や周囲の住人からの視線が気になりにくく、建物のエントランスはオートロックがついているので防犯性が高くなっています。
フローリングのお部屋なのでお掃除もラクラク。バス・トイレ別の仕様で、のんびりお風呂タイムも楽しめます。
通信設備面では、インターネットが無料で使えるので、月々の出費を抑えられるのも魅力です。また、BSアンテナ・CSアンテナがありCATVにも対応しているので、おうち時間も充実するでしょう(別途工事、BS・CS・CATVの契約料等が必要な場合あり)。
建物にはエレベーターがついているので、重い荷物があっても安心。また、ペット飼育の相談ができますので、あなたの大切な家族の一員も快適に暮らせるか、ぜひ確認してみてください。
お金・契約の情報
※「-」と表示されているものは、実際は料金が発生するものもございます。詳細はお問い合わせください。
| 家賃 | 9.8万円 | 管理費・共益費 | 1.02万円 |
|---|---|---|---|
| 敷金 | なし | 礼金 | 9.8万円 |
| 入居決定でお祝い金最大100,000円 | |||
| 保証金 | - | 償却・敷引 | - |
| 住宅保険料 | - | 更新料 | - |
| 保証会社利用 | 必須 | 保証会社名 | - |
| 保証会社費用 | - | 保証会社備考 | 保証会社利用必 エステム保証 初回保証料:総賃料の50% 月額更新料:総賃料の1.5% |
| 契約形態 | - | 契約期間 | - |
| 入居・引渡期間 | 相談 | 現況 | - |
| 入居可能条件 | ペット相談 | ||
| 契約備考 | 通勤管理 合計9.73万円(内訳:カギ交換費用:33,000円(税込)室内清掃費用:47,740円(税込) エステム安心クラブ入会金契約時5,500円(税込) 契約事務手数料:11,000円(税込) ペット登録料(ペット飼育時):5,000円(税込)) エステム安心クラブ:月額990円(税込) 更新事務手数料:更新時16,500円(税込)エアコンクリーニング代:(1台につき)退去時13,200円(税込)消毒費:(ペット飼育時)退去時22,000円(税込) 更新料:新賃料の1ヶ月分 2K 二人入居可/ペット相談 普通借家1年 損保【2万円2年】 バストイレ別、バルコニー、エアコン、ガスコンロ対応、クロゼット、フローリング、オートロック、室内洗濯置、シューズボックス、追焚機能浴室、温水洗浄便座、エレベーター、洗面所独立、2口コンロ、駐輪場、CATV、BS・CS、防犯カメラ、ペット相談、分譲賃貸、保証人不要、バイク置場、ネット使用料不要、2駅利用可、3沿線以上利用可、敷地内ごみ置き場、日勤管理、都市ガス | ||
部屋の情報
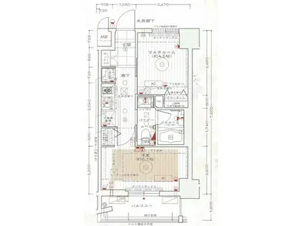
| 間取り | 2K | 専有面積 | 31.04m2 |
|---|---|---|---|
| 所在階 / 向き | 8階 / 北西 | バルコニー面積 | 4m2 |
| 水道 / ガス | - | ||
| 設備 | バス・トイレ別、2階以上、オートロック、追い焚き、インターネット対応、エアコン、エレベーター、温水洗浄便座、バルコニー、フローリング、洗髪洗面化粧台、2口コンロ、コンロ:ガス、CATV、CSアンテナ、BSアンテナ、インターネット使用料無料、洗濯機:室内 | ||
| 当社物件ID | 160082846 | ||
建物の情報
| 建物名 | エステムプラザ京都河原町通IIレジデンシャル | ||
|---|---|---|---|
| 所在地 | 京都府京都市下京区材木町 | ||
| 交通 | 京阪本線 七条駅 徒歩5分 地下鉄烏丸線 京都駅 徒歩7分 JR東海道本線 京都駅 徒歩9分 | ||
| 階数 | 11階建 | 総戸数 | 88戸 |
| 築年月 | 2014年01月 / 築12年 | エレベーター | あり |
| 駐車場 | なし | バイク置き場 | あり |
| 駐輪場 | あり | 管理人/管理会社 | - |
| 周辺環境 | その他 ロピア京都ヨドバシ店(スーパー)まで629m その他 セブンイレブン京都七条大橋店(コンビニ)まで178m その他 ミニストップ七条高倉店(コンビニ)まで201m その他 ヨドバシカメラマルチメディア京都(ホームセンター)まで699m その他 ニトリデコホーム京都ヨドバシ店(ホームセンター)まで631m その他 公立大学法人京都市立芸術大学(大学・短大)まで396m | ||
| 建物種別 | マンション | 建物構造 | RC(鉄筋コンクリート) |
この部屋の取扱い不動産会社
| 会社名 | (株)ホームズ京都(SUUMO経由) | ||
|---|---|---|---|
| 所在地 | 京都府京都市下京区飴屋町 東洞院通七条上る238-1 エスリード京都駅前1階 | 交通 | - |
| 営業時間 | 10:00~20:00 | 定休日 | 火曜・水曜 |
| 免許番号 | 京都府知事10650 | 取引態様 | 仲介 |
| 不動産会社管理番号 | 100478950049 | 当社管理番号 | 89 |
| 所属団体 | (公社)京都府宅地建物取引業協会会員 | ||
| 公正取引協議会 | (公社)近畿地区不動産公正取引協議会加盟 | ||
| 取扱い物件情報 | 物件詳細へ | ||
※各種情報と現状に差異がある場合は、現状優先となります。問い合わせをすることで、より詳しい条件、情報を確認する事ができます。
提供:(株)ホームズ京都(SUUMO経由)
この物件が気になったら掲載期限まであと11日
エステムプラザ京都河原町通IIレジデンシャルに条件(家賃・エリア)が近い物件一覧
| 写真 | 家賃 管理費等 | 敷金 礼金 | 間取り 専有面積 | 築年数 | 最寄り駅 所在地 | キープ | 詳細 |
|---|---|---|---|---|---|---|---|
マンション 京都市烏丸線 五条駅(京都市営) 徒歩5分 築27年(1K/5階) | |||||||
![]() | 6.4万円 6,000円 | 6.4万円 なし | 1K 24m2 | 築27年 | 京都市烏丸線 五条駅(京都市営) 徒歩5分 京都市烏丸線 四条駅(京都市営) 徒歩8分 京都府京都市下京区大江町 | 詳細を見る | |
マンション 京都市烏丸線 十条駅(京都市営) 徒歩4分 新築(1LDK/7階) | |||||||
![]() | 9.65万円 8,470円 | なし なし | 1LDK 32.56m2 | 新築 | 京都市烏丸線 十条駅(京都市営) 徒歩4分 東海道本線 京都駅 徒歩14分 京都府京都市南区東九条柳下町 | 詳細を見る | |
アパート 山陰本線 丹波口駅 徒歩5分 築1年(1LDK/3階) | |||||||
![]() | 12.9万円 8,000円 | なし 12.9万円 | 1LDK 41.23m2 | 築1年 | 山陰本線 丹波口駅 徒歩5分 東海道本線 京都駅 徒歩25分 京都府京都市下京区西新屋敷下之町 | 詳細を見る | |
アパート 山陰本線 丹波口駅 徒歩5分 築1年(1LDK/1階) | |||||||
![]() | 12万円 8,000円 | なし 12万円 | 1LDK 41.43m2 | 築1年 | 山陰本線 丹波口駅 徒歩5分 東海道本線 京都駅 徒歩25分 京都府京都市下京区西新屋敷下之町 | 詳細を見る | |
マンション 阪急電鉄京都線 洛西口駅 徒歩5分 築42年(3DK/5階) | |||||||
![]() | 6.6万円 4,000円 | なし なし | 3DK 51.81m2 | 築42年 | 阪急電鉄京都線 洛西口駅 徒歩5分 東海道本線 桂川駅(京都) 徒歩14分 京都府向日市物集女町五ノ坪 | 詳細を見る | |
アパート 奈良線 黄檗駅(JR) 徒歩10分 築7年(2LDK/1階) | |||||||
![]() | 8.7万円 8,000円 | なし 18万円 | 2LDK 50.42m2 | 築7年 | 奈良線 黄檗駅(JR) 徒歩10分 京阪電気鉄道宇治線 黄檗駅(京阪) 徒歩11分 京都府宇治市五ケ庄日皆田 | 詳細を見る | |
アパート 山陰本線 丹波口駅 徒歩5分 築1年(1LDK/2階) | |||||||
![]() | 11.5万円 8,000円 | なし 11.5万円 | 1LDK 37.81m2 | 築1年 | 山陰本線 丹波口駅 徒歩5分 東海道本線 京都駅 徒歩25分 京都府京都市下京区西新屋敷下之町 | 詳細を見る | |
マンション 東海道本線 京都駅 徒歩1分 築20年(1K/7階) | |||||||
![]() | 7万円 8,000円 | なし 15万円 | 1K 27.88m2 | 築20年 | 東海道本線 京都駅 徒歩1分 京都市烏丸線 九条駅(京都) 徒歩7分 京都府京都市南区東九条室町 | 詳細を見る | |







