賃貸マンション
ジョイフル笹塚の賃貸物件情報(ワンルーム/2階)
| 家賃 | 管理費等 | 敷金 | 礼金 | 間取り | 専有面積 |
|---|---|---|---|---|---|
| 6万円 | 5,000円 | なし | なし | ワンルーム | 13.71m2 |
入居決定でお祝い金最大100,000円
- 保証金
- 6.0万円
- 償却・敷引
- 6万円
- 築年数
- 築42年
- 所在階
- 2階
- 向き
- 南
Point
室内見学承ります・お客様のご都合に合わせてオンラインまたはお近くの店舗でご提案可・初期費用分割払い可・クレジットカード利用可・引越業者割引・初期費用のお見積や入居日のご相談もお気軽にお問合せください
提供:(株)リライフ三軒茶屋店(SUUMO経由)

詳細情報 ジョイフル笹塚
物件紹介
ジョイフル笹塚は京王線笹塚駅から徒歩5分にあり、駅近で通勤通学に便利なマンションです。
このお部屋は2階以上に位置しているので、通行人や周囲の住人からの視線が気になりにくく、防犯面でも安心。インターホンにはTVモニタもついているため、相手の顔を確認してから来客対応することができます。
人気の南向きのお部屋。また、フローリングなのでお掃除もラクラク。
このお部屋は2階以上に位置しているので、通行人や周囲の住人からの視線が気になりにくく、防犯面でも安心。インターホンにはTVモニタもついているため、相手の顔を確認してから来客対応することができます。
人気の南向きのお部屋。また、フローリングなのでお掃除もラクラク。
お金・契約の情報
※「-」と表示されているものは、実際は料金が発生するものもございます。詳細はお問い合わせください。
| 家賃 | 6万円 | 管理費・共益費 | 5,000円 |
|---|---|---|---|
| 敷金 | なし | 礼金 | なし |
| 入居決定でお祝い金最大100,000円 | |||
| 保証金 | 6.0万円 | 償却・敷引 | 6万円 |
| 住宅保険料 | - | 更新料 | - |
| 保証会社利用 | 必須 | 保証会社名 | - |
| 保証会社費用 | - | 保証会社備考 | 保証会社利用必 総賃料50%~ |
| 契約形態 | - | 契約期間 | - |
| 入居・引渡期間 | 即時 | 現況 | - |
| 契約備考 | 当物件は「住まいのリライフ」で取り扱っております。リライフは首都圏24店舗のネットワークで豊富な物件情報をお客様へご提供します。当物件に類似した未公開物件なども合わせてご提案可能です。お気軽にお問合せください。違約金有:1年未満:家賃2ヶ月分、1年以上2年未満:家賃1ヶ月分 合計10.89万円(内訳:鍵交換代金3.3万円契約事務手数料(初回のみ)1.1万円24時間安心サポート(初回のみ)1.65万円消毒消臭抗菌施工(初回のみ)2.2万円マモロッカ(初回のみ)1.32万円SLSC(初回のみ)1.32万円) ワンルーム 損保【2万円2年】 バルコニー、エアコン、フローリング、TVインターホン、シューズボックス、南向き、駐輪場、保証人不要、2沿線利用可、始発駅、3駅以上利用可、敷地内ごみ置き場、都市ガス、保証会社利用可、初期費用カード決済可 | ||
部屋の情報
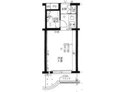
| 間取り | ワンルーム | 専有面積 | 13.71m2 |
|---|---|---|---|
| 所在階 / 向き | 2階 / 南 | バルコニー面積 | - |
| 水道 / ガス | - | ||
| 設備 | 2階以上、テレビドアホン、エアコン、南向き、バルコニー、フローリング | ||
| 当社物件ID | 159418349 | ||
建物の情報
| 建物名 | ジョイフル笹塚 | ||
|---|---|---|---|
| 所在地 | 東京都渋谷区笹塚 | ||
| 交通 | 京王線 笹塚駅 徒歩5分 京王線 代田橋駅 徒歩12分 東京メトロ丸ノ内線 方南町駅 徒歩18分 | ||
| 階数 | 4階建 | 総戸数 | - |
| 築年月 | 1984年03月 / 築42年 | エレベーター | - |
| 駐車場 | なし | バイク置き場 | - |
| 駐輪場 | あり | 管理人/管理会社 | - |
| 周辺環境 | その他 ドラッグストアスマイル 笹塚店(ドラッグストア)まで315m その他 サミットストア 笹塚店(スーパー)まで307m その他 ライフ 笹塚店(スーパー)まで337m その他 セブンイレブン 渋谷笹塚2丁目店(コンビニ)まで253m その他 セブンイレブン 笹塚2丁目10号通り店(コンビニ)まで320m その他 スワローチェーン 笹塚店(その他)まで265m | ||
| 建物種別 | マンション | 建物構造 | RC(鉄筋コンクリート) |
この部屋の取扱い不動産会社
| 会社名 | (株)リライフ練馬店(SUUMO経由) | ||
|---|---|---|---|
| 所在地 | 東京都練馬区豊玉北5-17-8 石山ビル3階 | 交通 | - |
| 営業時間 | 10:00~20:00 | 定休日 | 水曜日(祝日を除く) |
| 免許番号 | 国土交通大臣10792 | 取引態様 | 仲介 |
| 不動産会社管理番号 | 100456986202 | 当社管理番号 | 89 |
| 所属団体 | (公社)東京都宅地建物取引業協会会員 | ||
| 公正取引協議会 | (公社)首都圏不動産公正取引協議会加盟 | ||
| 取扱い物件情報 | 物件詳細へ | ||
※各種情報と現状に差異がある場合は、現状優先となります。問い合わせをすることで、より詳しい条件、情報を確認する事ができます。
提供:(株)リライフ練馬店(SUUMO経由)
この物件が気になったら掲載期限まであと10日
ジョイフル笹塚に条件(家賃・エリア)が近い物件一覧
| 写真 | 家賃 管理費等 | 敷金 礼金 | 間取り 専有面積 | 築年数 | 最寄り駅 所在地 | キープ | 詳細 |
|---|---|---|---|---|---|---|---|
アパート パークハウス碑文谷(1K/1階) | |||||||
![]() | 9.2万円 7,000円 | なし 13.8万円 | 1K 22.68m2 | 築19年 | 東急東横線 学芸大学駅 徒歩9分 東急東横線 都立大学駅 徒歩14分 東京都目黒区碑文谷 | 詳細を見る | |
マンション NKビル(1K/4階) | |||||||
![]() | 7万円 5,000円 | 7万円 なし | 1K 20.5m2 | 築36年 | JR中央線 高円寺駅 徒歩2分 東京メトロ丸ノ内線 新高円寺駅 徒歩14分 東京都杉並区高円寺北 | 詳細を見る | |
マンション クレッセント駒場(1K/4階) | |||||||
![]() | 6.8万円 なし | 6.8万円 6.8万円 | 1K 15m2 | 築36年 | 京王井の頭線 駒場東大前駅 徒歩3分 東急田園都市線 池尻大橋駅 徒歩9分 東急田園都市線 三軒茶屋駅 徒歩25分 東京都目黒区駒場 | 詳細を見る | |
マンション DUO・CREA西五反田(1K/13階) | |||||||
![]() | 8.9万円 4,800円 | 8.9万円 8.9万円 | 1K 20.16m2 | 築23年 | 東急池上線 戸越銀座駅 徒歩6分 都営浅草線 戸越駅 徒歩9分 JR山手線 五反田駅 徒歩12分 東京都品川区西五反田 | 詳細を見る | |
マンション CANAL品川 カナールシナガワ(1K/1階) | |||||||
![]() | 9.5万円 7,000円 | 9.5万円 9.5万円 | 1K 25.5m2 | 築7年 | 京急本線 鮫洲駅 徒歩2分 京急本線 青物横丁駅 徒歩9分 東急大井町線 大井町駅 徒歩12分 東京都品川区東大井 | 詳細を見る | |
マンション 日興パレス大森PARTII(ワンルーム/7階) | |||||||
![]() | 6.4万円 7,000円 | 6.4万円 6.4万円 | ワンルーム 16.15m2 | 築37年 | JR京浜東北線 大森駅(東京) 徒歩8分 京急本線 大森海岸駅 徒歩9分 京急本線 立会川駅 徒歩16分 東京都品川区南大井 | 詳細を見る | |
マンション トップ明大前第三(ワンルーム/5階) | |||||||
![]() | 7万円 4,000円 | なし 7万円 | ワンルーム 22.06m2 | 築41年 | 京王線 下高井戸駅 徒歩5分 京王井の頭線 明大前駅 徒歩7分 東急世田谷線 松原駅(東京) 徒歩14分 東京都世田谷区松原 | 詳細を見る | |







