賃貸アパート
スタンヒル新町ハイツの賃貸物件情報(2LDK/1階)
| 家賃 | 管理費等 | 敷金 | 礼金 | 間取り | 専有面積 |
|---|---|---|---|---|---|
| 9.5万円 | なし | なし | 15万円 | 2LDK | 55.48m2 |
入居決定でお祝い金最大100,000円
- 保証金
- -
- 償却・敷引
- -
- 築年数
- 築1年
- 所在階
- 1階
- 向き
- 西
Point
広々カウンターキッチン付きのリビング!専用庭付き
提供:ホームメイトFC近鉄八尾店(株)ブラザーホーム(SUUMO経由)

詳細情報 スタンヒル新町ハイツ
物件紹介
スタンヒル新町ハイツは近鉄大阪線河内山本駅から徒歩10分にあり、駅近で通勤通学に便利なアパートです。
このお部屋のインターホンにはTVモニタがついているため、相手の顔を確認してから来客対応することができます。
人気の角部屋で周囲の居住者の生活音も気になりにくく、また、フローリングのお部屋なのでお掃除もラクラク。キッチンはシステムキッチン仕様になっていますので、お料理好きの方にもぴったり。また、バス・トイレは別で、のんびりお風呂タイムも楽しめるでしょう。
通信設備面では、インターネットが無料で使えるので、月々の出費を抑えられるのも魅力です(別途工事等が必要な場合あり)。
このお部屋のインターホンにはTVモニタがついているため、相手の顔を確認してから来客対応することができます。
人気の角部屋で周囲の居住者の生活音も気になりにくく、また、フローリングのお部屋なのでお掃除もラクラク。キッチンはシステムキッチン仕様になっていますので、お料理好きの方にもぴったり。また、バス・トイレは別で、のんびりお風呂タイムも楽しめるでしょう。
通信設備面では、インターネットが無料で使えるので、月々の出費を抑えられるのも魅力です(別途工事等が必要な場合あり)。
お金・契約の情報
※「-」と表示されているものは、実際は料金が発生するものもございます。詳細はお問い合わせください。
| 家賃 | 9.5万円 | 管理費・共益費 | なし |
|---|---|---|---|
| 敷金 | なし | 礼金 | 15万円 |
| 入居決定でお祝い金最大100,000円 | |||
| 保証金 | - | 償却・敷引 | - |
| 住宅保険料 | - | 更新料 | - |
| 契約形態 | - | 契約期間 | - |
| 入居・引渡期間 | - | 現況 | - |
| 契約備考 | フォレストモール八尾まで1071m/万代山本店まで649m 2LDK 損保【要】 バストイレ別、バルコニー、クロゼット、フローリング、シャワー付洗面台、TVインターホン、シューズボックス、システムキッチン、追焚機能浴室、角住戸、温水洗浄便座、脱衣所、洗面所独立、洗面化粧台、駐輪場、対面式キッチン、二人入居相談、全居室フローリング、専用庭、駅まで平坦、ネット使用料不要、テラス、駅徒歩10分以内、敷地内ごみ置き場、LDK12畳以上 入居日:'26年3月下旬 | ||
部屋の情報
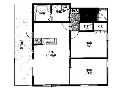
| 間取り | 2LDK | 専有面積 | 55.48m2 |
|---|---|---|---|
| 所在階 / 向き | 1階 / 西 | バルコニー面積 | - |
| 水道 / ガス | - | ||
| 設備 | バス・トイレ別、テレビドアホン、追い焚き、インターネット対応、システムキッチン、温水洗浄便座、角部屋、バルコニー、フローリング、洗髪洗面化粧台、インターネット使用料無料、専用庭 | ||
| 当社物件ID | 154663159 | ||
建物の情報
| 建物名 | スタンヒル新町ハイツ | ||
|---|---|---|---|
| 所在地 | 大阪府八尾市東山本新町 | ||
| 交通 | 近鉄大阪線 河内山本駅 徒歩10分 近鉄大阪線 高安駅 徒歩10分 近鉄信貴線 服部川駅 徒歩23分 | ||
| 階数 | 2階建 | 総戸数 | - |
| 築年月 | 2025年11月 / 築1年 | エレベーター | - |
| 駐車場 | 空有 11000円 | バイク置き場 | - |
| 駐輪場 | あり | 管理人/管理会社 | - |
| 周辺環境 | その他 フォレストモール八尾(ショッピングセンター)まで1071m その他 万代山本店(スーパー)まで649m その他 ハーベス山本店(スーパー)まで942m その他 ローソン八尾東山本新町3丁目店(コンビニ)まで300m その他 セブンイレブン河内山本駅東店(コンビニ)まで651m その他 ホームセンターコーナン外環八尾山本店(ホームセンター)まで947m | ||
| 建物種別 | アパート | 建物構造 | 木造 |
この部屋の取扱い不動産会社
| 会社名 | ホームメイトFC近鉄八尾店(株)ブラザーホーム(SUUMO経由) | ||
|---|---|---|---|
| 所在地 | 大阪府八尾市東本町4-3-15 | 交通 | - |
| 営業時間 | 10:30~18:00 | 定休日 | 水曜日 |
| 免許番号 | 大阪府知事58429 | 取引態様 | 仲介 |
| 不動産会社管理番号 | 100491922030 | 当社管理番号 | 89 |
| 所属団体 | (公社)全日本不動産協会大阪府本部会員 | ||
| 公正取引協議会 | (公社)近畿地区不動産公正取引協議会加盟 | ||
| 取扱い物件情報 | 物件詳細へ | ||
※各種情報と現状に差異がある場合は、現状優先となります。問い合わせをすることで、より詳しい条件、情報を確認する事ができます。
提供:ホームメイトFC近鉄八尾店(株)ブラザーホーム(SUUMO経由)
この物件が気になったら掲載期限まであと11日
スタンヒル新町ハイツに条件(家賃・エリア)が近い物件一覧
| 写真 | 家賃 管理費等 | 敷金 礼金 | 間取り 専有面積 | 築年数 | 最寄り駅 所在地 | キープ | 詳細 |
|---|---|---|---|---|---|---|---|
マンション プレサンス大阪天満リバーシア(1K/8階) | |||||||
| 7.416万円 8,840円 | なし 10万円 | 1K 21.83m2 | 築7年 | 大阪環状線 天満駅 徒歩8分 大阪環状線 桜ノ宮駅 徒歩9分 大阪市堺筋線 扇町駅(大阪) 徒歩9分 大阪府大阪市北区天満橋2丁目3-9 | 詳細を見る | ||
マンション ホワイトハイツカドタ(1DK/4階) | |||||||
| 7.4万円 8,000円 | なし 7.4万円 | 1DK 32.31m2 | 築39年 | 大阪市御堂筋線 新大阪駅 徒歩8分 東海道本線 東淀川駅 徒歩10分 阪急電鉄京都線 崇禅寺駅 徒歩12分 大阪府大阪市東淀川区東中島1丁目18-4 | 詳細を見る | ||
マンション 第二岡本ハイツ(3DK/2階) | |||||||
![]() | 6万円 5,000円 | なし なし | 3DK 52m2 | 築42年 | 近鉄南大阪線 藤井寺駅 徒歩5分 近鉄南大阪線 高鷲駅 徒歩15分 近鉄南大阪線 土師ノ里駅 徒歩20分 大阪府藤井寺市岡1丁目 | 詳細を見る | |
マンション 丸忠ビル(1LDK/4階) | |||||||
![]() | 6.3万円 なし | なし 6.3万円 | 1LDK 40m2 | 築53年 | 阪急電鉄京都線 上新庄駅 徒歩5分 阪急電鉄京都線 相川駅 徒歩12分 大阪市今里筋線 瑞光四丁目駅 徒歩14分 大阪府大阪市東淀川区小松1丁目 | 詳細を見る | |
アパート フジパレス瓜生堂番館(1LDK/1階) | |||||||
![]() | 6.4万円 4,400円 | なし 6万円 | 1LDK 35.4m2 | 新築 | 近鉄難波・奈良線 若江岩田駅 徒歩4分 近鉄難波・奈良線 河内花園駅 徒歩14分 近鉄難波・奈良線 八戸ノ里駅 徒歩21分 大阪府東大阪市瓜生堂1丁目 | 詳細を見る | |
マンション セレニテ梅田北アリエ壱番館(1LDK/6階) | |||||||
| 9.9万円 1.01万円 | なし なし | 1LDK 28.49m2 | 新築 | 大阪市堺筋線 天神橋筋六丁目駅 徒歩12分 大阪市谷町線 中崎町駅 徒歩13分 大阪市御堂筋線 中津駅(大阪メトロ) 徒歩13分 大阪府大阪市北区本庄西3丁目8-12 | 詳細を見る | ||
マンション コンフォリア・リヴ淡路(1LDK/6階) | |||||||
| 9.9万円 1.2万円 | なし 9.9万円 | 1LDK 28.97m2 | 新築 | 阪急電鉄千里線 淡路駅 徒歩5分 阪急電鉄千里線 下新庄駅 徒歩10分 おおさか東線 南吹田駅 徒歩25分 大阪府大阪市東淀川区菅原5丁目以下 | 詳細を見る | ||
マンション プレサンス東淀川駅前プローシェ(1DK/10階) | |||||||
| 8.7万円 6,900円 | なし 8.7万円 | 1DK 25.55m2 | 築1年 | 東海道本線 東淀川駅 徒歩2分 大阪市御堂筋線 新大阪駅 徒歩11分 大阪市御堂筋線 東三国駅 徒歩13分 大阪府大阪市東淀川区西淡路1丁目12-1 | 詳細を見る | ||
八尾市の町名から探す
八尾市の部屋を間取りから探す
八尾市の駅から探す
八尾市と隣接している市区町村から探す
- 八尾市(2,164)
- 大阪市都島区(1,707)
- 大阪市福島区(2,417)
- 大阪市此花区(383)
- 大阪市西区(4,966)
- 大阪市港区(1,305)
- 大阪市大正区(593)
- 大阪市天王寺区(1,590)
- 大阪市浪速区(3,737)
- 大阪市西淀川区(1,852)
- 大阪市東淀川区(4,215)
- 大阪市東成区(2,401)
- 大阪市生野区(1,742)
- 大阪市旭区(2,273)
- 大阪市城東区(2,245)
- 大阪市阿倍野区(1,339)
- 大阪市住吉区(2,059)
- 大阪市東住吉区(1,870)
- 大阪市西成区(639)
- 大阪市淀川区(4,834)
- 大阪市鶴見区(1,032)
- 大阪市住之江区(978)
- 大阪市平野区(1,741)
- 大阪市北区(5,326)
- 大阪市中央区(5,761)
- 松原市(937)
- 柏原市(807)
- 藤井寺市(878)
- 東大阪市(7,614)




