賃貸アパート
エクセル南本庄の賃貸物件情報(1K/2階)
| 家賃 | 管理費等 | 敷金 | 礼金 | 間取り | 専有面積 |
|---|---|---|---|---|---|
| 3.5万円 | 2,000円 | なし | なし | 1K | 22.77m2 |
入居決定でお祝い金最大100,000円
- 保証金
- -
- 償却・敷引
- -
- 築年数
- 築37年
- 所在階
- 2階
- 向き
- 東
Point
まずはお問い合わせ!
不動産会社は街のプロ、あなたに合った物件がきっと見つかります。
提供:佐藤エステート(SUUMO経由)

詳細情報 エクセル南本庄
物件紹介
エクセル南本庄はJR福塩線備後本庄駅から徒歩12分にあるアパートです。
このお部屋は2階以上に位置しているので、通行人や周囲の住人からの視線が気になりにくく、防犯面でも安心。インターホンにはTVモニタもついているため、相手の顔を確認してから来客対応することができます。
バス・トイレ別の仕様で、のんびりお風呂タイムも楽しめます。
通信設備面では、インターネットが無料で使えるので、月々の出費を抑えられるのも魅力です(別途工事等が必要な場合あり)。
このお部屋は2階以上に位置しているので、通行人や周囲の住人からの視線が気になりにくく、防犯面でも安心。インターホンにはTVモニタもついているため、相手の顔を確認してから来客対応することができます。
バス・トイレ別の仕様で、のんびりお風呂タイムも楽しめます。
通信設備面では、インターネットが無料で使えるので、月々の出費を抑えられるのも魅力です(別途工事等が必要な場合あり)。
お金・契約の情報
※「-」と表示されているものは、実際は料金が発生するものもございます。詳細はお問い合わせください。
| 家賃 | 3.5万円 | 管理費・共益費 | 2,000円 |
|---|---|---|---|
| 敷金 | なし | 礼金 | なし |
| 入居決定でお祝い金最大100,000円 | |||
| 保証金 | - | 償却・敷引 | - |
| 住宅保険料 | - | 更新料 | - |
| 保証会社利用 | 必須 | 保証会社名 | - |
| 保証会社費用 | - | 保証会社備考 | 保証会社利用必 総賃料40~50% 月額800円 |
| 契約形態 | - | 契約期間 | - |
| 入居・引渡期間 | 即時 | 現況 | - |
| 契約備考 | インターネット無料☆ エブリィ・ひまわりまで180M☆ 1K 単身者限定 損保【要】 バストイレ別、バルコニー、エアコン、TVインターホン、室内洗濯置、温水洗浄便座、駐輪場、即入居可、最上階、防犯カメラ、IHクッキングヒーター、照明付、2沿線利用可、駅まで平坦、ネット使用料不要、3駅以上利用可、上階無し、全居室8畳以上、プロパンガス、敷金・礼金不要、初期費用カード決済可 | ||
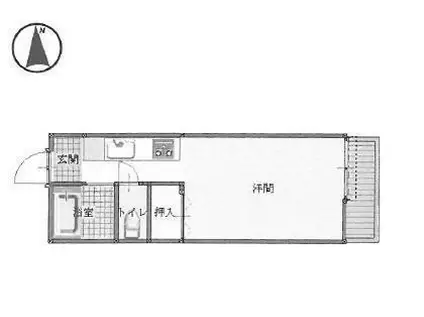
部屋の情報
| 間取り | 1K | 専有面積 | 22.77m2 |
|---|---|---|---|
| 所在階 / 向き | 2階 / 東 | バルコニー面積 | - |
| 水道 / ガス | - | ||
| 設備 | バス・トイレ別、2階以上、テレビドアホン、インターネット対応、エアコン、温水洗浄便座、バルコニー、コンロ:IH、インターネット使用料無料、洗濯機:室内 | ||
| 当社物件ID | 9169958 | ||
建物の情報
| 建物名 | エクセル南本庄 | ||
|---|---|---|---|
| 所在地 | 広島県福山市南本庄 | ||
| 交通 | JR福塩線 備後本庄駅 徒歩12分 JR山陽本線 福山駅 徒歩17分 JR山陽本線 備後赤坂駅 バス乗車時間:10分 最寄りバス停で下車 徒歩4分 | ||
| 階数 | 2階建 | 総戸数 | - |
| 築年月 | 1989年09月 / 築37年 | エレベーター | - |
| 駐車場 | なし | バイク置き場 | - |
| 駐輪場 | あり | 管理人/管理会社 | - |
| 建物種別 | アパート | 建物構造 | 軽量鉄骨造 |
この部屋の取扱い不動産会社
| 会社名 | 佐藤エステート(SUUMO経由) | ||
|---|---|---|---|
| 所在地 | 広島県福山市野上町2-6-6 | 交通 | - |
| 営業時間 | AM10:00~PM6:00 | 定休日 | 火・祝日(土日やってます!) |
| 免許番号 | 広島県知事9656 | 取引態様 | 仲介 |
| 不動産会社管理番号 | 100428730564 | 当社管理番号 | 89 |
| 所属団体 | (公社)広島県宅地建物取引業協会会員 | ||
| 公正取引協議会 | 中国地区不動産公正取引協議会加盟 | ||
| 取扱い物件情報 | 物件詳細へ | ||
※各種情報と現状に差異がある場合は、現状優先となります。問い合わせをすることで、より詳しい条件、情報を確認する事ができます。
提供:佐藤エステート(SUUMO経由)
この物件が気になったら掲載期限まであと8日
エクセル南本庄に条件(家賃・エリア)が近い物件一覧
| 写真 | 家賃 管理費等 | 敷金 礼金 | 間取り 専有面積 | 築年数 | 最寄り駅 所在地 | キープ | 詳細 |
|---|---|---|---|---|---|---|---|
アパート サンライフ多治米(1K/2階) | |||||||
![]() | 3.8万円 2,000円 | 3.8万円 なし | 1K 20.46m2 | 築31年 | 広島県福山市多治米町5丁目 | 詳細を見る | |
アパート ヒューベリオン(2DK/1階) | |||||||
![]() | 4.6万円 2,800円 | なし 5.6万円 | 2DK 45.93m2 | 築16年 | JR福塩線 万能倉駅 徒歩7分 広島県福山市御幸町大字上岩成 | 詳細を見る | |
マンション アビタシオンⅢ(1LDK/1階) | |||||||
![]() | 5.2万円 2,200円 | なし 5.2万円 | 1LDK 47.8m2 | 築19年 | 広島県福山市瀬戸町大字地頭分瀬戸町大字地頭分 | 詳細を見る | |
マンション アルティメイトBUILDING光南 THE TOWER(ワンルーム/6階) | |||||||
![]() | 2.9万円 2,000円 | なし なし | ワンルーム 14.87m2 | 築36年 | JR山陽本線 福山駅 徒歩11分 広島県福山市光南町 | 詳細を見る | |
アパート レオパレスラフィーネ(1K/1階) | |||||||
![]() | 3.8万円 6,500円 | なし 3.8万円 | 1K 23.61m2 | 築20年 | 広島県福山市御幸町大字下岩成御幸町大字下岩成 | 詳細を見る | |
アパート サンライフ中川B(2DK/2階) | |||||||
![]() | 3.8万円 2,000円 | なし なし | 2DK 40.92m2 | 築35年 | 福塩線 備後本庄駅 徒歩6分 広島県福山市本庄町中3丁目 | 詳細を見る | |
アパート シャインガーデン(2LDK/2階) | |||||||
![]() | 5.6万円 2,500円 | なし 5.6万円 | 2LDK 58.21m2 | 築12年 | 山陽本線 松永駅 徒歩16分 広島県福山市神村町 | 詳細を見る | |
アパート ポルテ北吉津III A(2DK/2階) | |||||||
![]() | 3.1万円 4,000円 | なし なし | 2DK 31.88m2 | 築39年 | JR山陽本線 福山駅 徒歩17分 広島県福山市北吉津町 | 詳細を見る | |






/105x80-f1-q70-wp1)

/105x80-f1-q70-wp1)
