賃貸マンション
デラモット浅草エストの賃貸物件情報(1SLDK/4階)
| 家賃 | 管理費等 | 敷金 | 礼金 | 間取り | 専有面積 |
|---|---|---|---|---|---|
| 16.2万円 | 1.5万円 | なし | 32.4万円 | 1SLDK | 45.01m2 |
入居決定でお祝い金最大100,000円
- 保証金
- -
- 償却・敷引
- -
- 築年数
- 築7年
- 所在階
- 4階
- 向き
- 南
Point
★先行申込受付中★複数路線利用可★南東角部屋★各分野に特化したベテランスタッフも常駐★クレジット決済・初期費用の分割可能★その他審査・交渉・契約後のアフターフォロー全てアクアホームズ秋葉原店へ★
提供:(株)ベルテックス(SUUMO経由)

詳細情報 デラモット浅草エスト
物件紹介
デラモット浅草エストはJR常磐線南千住駅から徒歩10分にあり、駅近で通勤通学に便利なマンションです。
このお部屋は2階以上に位置しているので、通行人や周囲の住人からの視線が気になりにくく、防犯面でも安心。建物のエントランスはオートロックがついており、インターホンにはTVモニタもついているため、相手の顔を確認してから来客対応することができます。
人気の南向き・フローリングのお部屋。角部屋でもあるため、周囲の居住者の生活音も気になりにくい場所です。キッチンはシステムキッチン仕様になっていますので、お料理好きの方にもぴったり。バス・トイレは別なので、のんびりお風呂タイムも楽しめるでしょう。また、雨の日でも浴室乾燥機を使えば、お洗濯も問題ありません。
通信設備面では、インターネット接続が可能です。また、BSアンテナ・CSアンテナもありますので、おうち時間も充実するでしょう(別途工事、契約料が必要な場合あり)。
建物にはエレベーターがついているので、重い荷物があっても安心。共用部には宅配ボックスが設定されているので、不在の時にも荷物を受け取ることができます。また、ペット飼育の相談ができますので、あなたの大切な家族の一員も快適に暮らせるか、ぜひ確認してみてください。
このお部屋は2階以上に位置しているので、通行人や周囲の住人からの視線が気になりにくく、防犯面でも安心。建物のエントランスはオートロックがついており、インターホンにはTVモニタもついているため、相手の顔を確認してから来客対応することができます。
人気の南向き・フローリングのお部屋。角部屋でもあるため、周囲の居住者の生活音も気になりにくい場所です。キッチンはシステムキッチン仕様になっていますので、お料理好きの方にもぴったり。バス・トイレは別なので、のんびりお風呂タイムも楽しめるでしょう。また、雨の日でも浴室乾燥機を使えば、お洗濯も問題ありません。
通信設備面では、インターネット接続が可能です。また、BSアンテナ・CSアンテナもありますので、おうち時間も充実するでしょう(別途工事、契約料が必要な場合あり)。
建物にはエレベーターがついているので、重い荷物があっても安心。共用部には宅配ボックスが設定されているので、不在の時にも荷物を受け取ることができます。また、ペット飼育の相談ができますので、あなたの大切な家族の一員も快適に暮らせるか、ぜひ確認してみてください。
お金・契約の情報
※「-」と表示されているものは、実際は料金が発生するものもございます。詳細はお問い合わせください。
| 家賃 | 16.2万円 | 管理費・共益費 | 1.5万円 |
|---|---|---|---|
| 敷金 | なし | 礼金 | 32.4万円 |
| 入居決定でお祝い金最大100,000円 | |||
| 保証金 | - | 償却・敷引 | - |
| 住宅保険料 | - | 更新料 | - |
| 保証会社利用 | 必須 | 保証会社名 | - |
| 保証会社費用 | - | 保証会社備考 | 保証会社利用必 初回保証料:月額総賃料の50% 2年目以降:10000円/年 口座振替手数料:月額330円(税込) |
| 契約形態 | - | 契約期間 | - |
| 入居・引渡期間 | - | 現況 | - |
| 入居可能条件 | ペット相談 | ||
| 契約備考 | 巡回管理/★情報の正確さとメールのレスポンス速度には自信あり★お電話でのお問い合わせでよりスピーディーな対応可能★ご内覧も現地お待合わせ可能★お気軽にお問合せ下さい★ 合計4.6万円(内訳:玄関錠交換代:33000円(税込) 室内抗菌代:13000円) ベルプラス:2200円/月(家財保険・設備トラブル24時間駆付け・騒音近隣トラブルサポート) 1SLDK 二人入居可/子供可/ペット相談 普通借家2年 バストイレ別、バルコニー、エアコン、クロゼット、フローリング、TVインターホン、浴室乾燥機、オートロック、室内洗濯置、陽当り良好、シューズボックス、システムキッチン、南向き、追焚機能浴室、角住戸、温水洗浄便座、脱衣所、エレベーター、洗面所独立、洗面化粧台、駐輪場、宅配ボックス、光ファイバー、外壁タイル張り、2面採光、BS・CS、敷金不要、3口以上コンロ、対面式キッチン、防犯カメラ、ペット相談、照明付、分譲賃貸、オートバス、グリル付、全居室洋室、保証人不要、二人入居相談、バイク置場、全居室フローリング、ガスレンジ付、3面採光、ディンプルキー、24時間換気システム、クロゼット2ヶ所、南面2室、耐震構造、2駅利用可、3沿線以上利用可、駅徒歩10分以内、バス停徒歩3分以内、24時間ゴミ出し可、敷地内ごみ置き場、都市ガス、洗面所にドア、南面バルコニー、玄関収納、礼金2ヶ月、初期費用カード決済可、通風良好 敷金積み増し【ペット飼育の場合敷金1ヶ月(総額)】 入居日:'26年1月中旬 | ||
部屋の情報
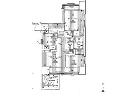
| 間取り | 1SLDK | 専有面積 | 45.01m2 |
|---|---|---|---|
| 所在階 / 向き | 4階 / 南 | バルコニー面積 | - |
| 水道 / ガス | - | ||
| 設備 | バス・トイレ別、2階以上、オートロック、テレビドアホン、宅配ボックス、浴室乾燥機、追い焚き、インターネット対応、システムキッチン、エアコン、エレベーター、温水洗浄便座、南向き、角部屋、バルコニー、フローリング、洗髪洗面化粧台、2口コンロ、コンロ:ガス、CSアンテナ、BSアンテナ、洗濯機:室内 | ||
| 当社物件ID | 159820732 | ||
建物の情報
| 建物名 | デラモット浅草エスト | ||
|---|---|---|---|
| 所在地 | 東京都台東区清川 | ||
| 交通 | 東京メトロ日比谷線 南千住駅 徒歩10分 JR常磐線 南千住駅 徒歩10分 東京メトロ日比谷線 三ノ輪駅 徒歩17分 | ||
| 階数 | 9階建 | 総戸数 | - |
| 築年月 | 2019年07月 / 築7年 | エレベーター | あり |
| 駐車場 | なし | バイク置き場 | あり |
| 駐輪場 | あり | 管理人/管理会社 | - |
| 周辺環境 | その他 まいばすけっと清川2丁目店(スーパー)まで193m その他 ローソンストア100台東清川二丁目店(コンビニ)まで126m その他 セブンイレブン台東石浜店(コンビニ)まで224m その他 くすりの福太郎橋場店(ドラッグストア)まで408m その他 台東区北部区民事務所清川分室(役所)まで84m その他 台東清川郵便局(郵便局)まで153m | ||
| 建物種別 | マンション | 建物構造 | RC(鉄筋コンクリート) |
この部屋の取扱い不動産会社
| 会社名 | (株)カラーズアクアホームズ秋葉原店(SUUMO経由) | ||
|---|---|---|---|
| 所在地 | 東京都千代田区神田和泉町 1-5-6 | 交通 | - |
| 営業時間 | 10:00~19:00 | 定休日 | - |
| 免許番号 | 東京都知事99768 | 取引態様 | 仲介 |
| 不動産会社管理番号 | 100471582758 | 当社管理番号 | 89 |
| 所属団体 | (公社)全日本不動産協会東京都本部会員 | ||
| 公正取引協議会 | (公社)首都圏不動産公正取引協議会加盟 | ||
| 取扱い物件情報 | 物件詳細へ | ||
※各種情報と現状に差異がある場合は、現状優先となります。問い合わせをすることで、より詳しい条件、情報を確認する事ができます。
提供:(株)カラーズアクアホームズ秋葉原店(SUUMO経由)
この物件が気になったら掲載期限まであと9日
デラモット浅草エストに条件(家賃・エリア)が近い物件一覧
| 写真 | 家賃 管理費等 | 敷金 礼金 | 間取り 専有面積 | 築年数 | 最寄り駅 所在地 | キープ | 詳細 |
|---|---|---|---|---|---|---|---|
マンション クレール日本橋(1LDK/12階) | |||||||
![]() | 23.5万円 なし | 23.5万円 23.5万円 | 1LDK 41.06m2 | 築9年 | 東京都新宿線 馬喰横山駅 徒歩2分 総武本線 馬喰町駅 徒歩2分 東京都中央区日本橋馬喰町1丁目 | 詳細を見る | |
マンション パークアクシス上野イースト(1DK/11階) | |||||||
![]() | 13.5万円 1.2万円 | 13.5万円 なし | 1DK 25.2m2 | 築4年 | 東京地下鉄銀座線 稲荷町駅(東京) 徒歩6分 山手線 上野駅 徒歩10分 東京都台東区松が谷2丁目 | 詳細を見る | |
マンション レジディア神田岩本町(ワンルーム/5階) | |||||||
![]() | 10.9万円 1万円 | なし なし | ワンルーム 22.78m2 | 築22年 | 東京都新宿線 岩本町駅 徒歩3分 東京地下鉄日比谷線 秋葉原駅 徒歩5分 中央本線 神田駅(東京) 徒歩7分 東京都千代田区岩本町2丁目 | 詳細を見る | |
マンション バウスフラッツ蔵前(1LDK/9階) | |||||||
![]() | 21.4万円 1.2万円 | 21.4万円 21.4万円 | 1LDK 40.37m2 | 築1年 | 東京都浅草線 蔵前駅 徒歩2分 東京都大江戸線 蔵前駅 徒歩7分 東京都台東区蔵前4丁目 | 詳細を見る | |
マンション アーバンプレミア秋葉原(1K/10階) | |||||||
![]() | 15万円 1万円 | 15万円 なし | 1K 27.34m2 | 築6年 | 東京地下鉄銀座線 末広町駅(東京) 徒歩2分 山手線 秋葉原駅 徒歩10分 東京都千代田区外神田6丁目 | 詳細を見る | |
マンション スペーシア飯田橋2(1K/3階) | |||||||
![]() | 10.4万円 7,000円 | なし なし | 1K 24.39m2 | 築23年 | 東京地下鉄有楽町線 江戸川橋駅 徒歩6分 東京地下鉄東西線 神楽坂駅 徒歩13分 総武・中央緩行線 飯田橋駅 徒歩15分 東京都文京区水道2丁目 | 詳細を見る | |
マンション 銀座レジデンス参番館(1DK/12階) | |||||||
![]() | 14.9万円 1万円 | 15.9万円 15.9万円 | 1DK 41.52m2 | 築23年 | 東京メトロ有楽町線 新富町駅(東京) 徒歩4分 東京メトロ日比谷線 八丁堀駅(東京) 徒歩6分 都営浅草線 宝町駅 徒歩10分 東京都中央区入船 | 詳細を見る | |
マンション パークキューブ神田(1DK/5階) | |||||||
![]() | 16.3万円 1万円 | 16.3万円 16.3万円 | 1DK 32.07m2 | 築21年 | 東京都新宿線 岩本町駅 徒歩3分 中央本線 神田駅(東京) 徒歩3分 山手線 秋葉原駅 徒歩6分 東京都千代田区神田須田町2丁目 | 詳細を見る | |








