賃貸アパート
PRELUDE岡崎公園の賃貸物件情報(1LDK/3階)
| 家賃 | 管理費等 | 敷金 | 礼金 | 間取り | 専有面積 |
|---|---|---|---|---|---|
| 6.55万円 | 7,000円 | なし | なし | 1LDK | 30.01m2 |
入居決定でお祝い金最大100,000円
Point
荷物を注文する時に時間を気にしなくてよくなる宅配ボックスを共用部に備えています。
提供:ハウスコム東海株式会社 新安城店

詳細情報 PRELUDE岡崎公園
物件紹介
PRELUDE岡崎公園は名鉄名古屋本線岡崎公園前駅から徒歩3分にあり、駅近で通勤通学に便利なアパートです。
このお部屋は2階以上に位置しているので、通行人や周囲の住人からの視線が気になりにくく、防犯面でも安心。建物のエントランスはオートロックがついており、インターホンにはTVモニタもついているため、相手の顔を確認してから来客対応することができます。
フローリングのお部屋なのでお掃除もラクラク。キッチンはシステムキッチン仕様になっていますので、お料理好きの方にもぴったり。バス・トイレは別なので、のんびりお風呂タイムも楽しめるでしょう。また、雨の日でも浴室乾燥機を使えば、お洗濯も問題ありません。
通信設備面では、インターネットが無料で使えるので、月々の出費を抑えられるのも魅力です(別途工事等が必要な場合あり)。
共用部には宅配ボックスが設定されているので、不在の時にも荷物を受け取ることができます。また、ペット飼育の相談ができますので、あなたの大切な家族の一員も快適に暮らせるか、ぜひ確認してみてください。
コンビニまで徒歩3分の場所にあり、日用品や食料品のお買い物にも便利です。
このお部屋は2階以上に位置しているので、通行人や周囲の住人からの視線が気になりにくく、防犯面でも安心。建物のエントランスはオートロックがついており、インターホンにはTVモニタもついているため、相手の顔を確認してから来客対応することができます。
フローリングのお部屋なのでお掃除もラクラク。キッチンはシステムキッチン仕様になっていますので、お料理好きの方にもぴったり。バス・トイレは別なので、のんびりお風呂タイムも楽しめるでしょう。また、雨の日でも浴室乾燥機を使えば、お洗濯も問題ありません。
通信設備面では、インターネットが無料で使えるので、月々の出費を抑えられるのも魅力です(別途工事等が必要な場合あり)。
共用部には宅配ボックスが設定されているので、不在の時にも荷物を受け取ることができます。また、ペット飼育の相談ができますので、あなたの大切な家族の一員も快適に暮らせるか、ぜひ確認してみてください。
コンビニまで徒歩3分の場所にあり、日用品や食料品のお買い物にも便利です。
お金・契約の情報
※「-」と表示されているものは、実際は料金が発生するものもございます。詳細はお問い合わせください。
| 家賃 | 6.55万円 | 管理費・共益費 | 7,000円 |
|---|---|---|---|
| 敷金 | なし | 礼金 | なし |
| 入居決定でお祝い金最大100,000円 | |||
| 保証金 | - | 償却・敷引 | - |
| 住宅保険料 | 1円 | 更新料 | - |
| 保証会社利用 | 必須 | 保証会社名 | エポスカード |
| 保証会社費用 | - | 保証会社備考 | 初回保証料:家賃総賃料の60%(月額保証料を含まない) 毎月1.5% |
| 契約形態 | - | 契約期間 | 2年 |
| 入居・引渡期間 | 2026年03月中旬 | 現況 | 未完成 |
| 入居可能条件 | ペット相談 | ||
| 契約備考 | 駐車場空き2台/6600円(税込) 先着順 2台まで ZEH物件 短期解約違約金:1年未満の解約で家賃2ヶ月、1年以上2年未満の解約で家賃1ヶ月 駐輪場:有料 ペット飼育時敷金積み増し料金(償却)有り 月額(町費 250円 LSC 1650円 光TV 550円) 室内清掃費用:65500 その他設備/条件:室内洗濯機置き場、独立洗面台、シューズボックス | ||
部屋の情報
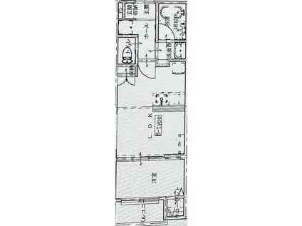
| 間取り | 1LDK | 専有面積 | 30.01m2 |
|---|---|---|---|
| 間取り詳細 | 洋室(3.7帖)、LDK(8.7帖) | ||
| 所在階 / 向き | 3階 / 北 | バルコニー面積 | - |
| 水道 / ガス | 水道【公営】、ガス【都市】 | ||
| 設備 | バス・トイレ別、オートロック、テレビドアホン、宅配ボックス、浴室乾燥機、システムキッチン、エアコン、温水洗浄便座、バルコニー、フローリング、洗髪洗面化粧台、2口コンロ、コンロ:ガス、インターネット使用料無料、シャワー、給湯 | ||
| 当社物件ID | 160263196 | ||
建物の情報
| 建物名 | PRELUDE岡崎公園 | ||
|---|---|---|---|
| 所在地 | 愛知県岡崎市中岡崎町 | ||
| 交通 | 名鉄名古屋本線 岡崎公園前駅 徒歩3分 愛知環状鉄道 中岡崎駅 徒歩4分 | ||
| 階数 | 3階建 | 総戸数 | 12戸 |
| 築年月 | 2026年03月 / 新築 | エレベーター | - |
| 駐車場 | 空有 6,600円/月 | バイク置き場 | - |
| 駐輪場 | あり | 管理人/管理会社 | - |
| 周辺環境 | コンビニ 徒歩3分(218m) 病院 徒歩5分(393m) その他 ドラッグストア その他 公園 その他 銀行 その他 * | ||
| 建物種別 | アパート | 建物構造 | 木造 |
この部屋の取扱い不動産会社
| 会社名 | ハウスコム東海株式会社 新安城店 | ||
|---|---|---|---|
| 所在地 | 愛知県安城市2-13L-KLASSE1階 | 交通 | - |
| 営業時間 | 10:00~18:00 | 定休日 | - |
| 免許番号 | 国土交通大臣(1)第10227号 | 取引態様 | 仲介 |
| 不動産会社管理番号 | HC2-5328242-303-0146 | 当社管理番号 | 468 |
| 所属団体 | 、 | ||
| 取扱い物件情報 | 物件詳細へ | ||
※各種情報と現状に差異がある場合は、現状優先となります。問い合わせをすることで、より詳しい条件、情報を確認する事ができます。
提供:ハウスコム東海株式会社 新安城店
この物件が気になったら掲載期限まであと5日
PRELUDE岡崎公園に条件(家賃・エリア)が近い物件一覧
| 写真 | 家賃 管理費等 | 敷金 礼金 | 間取り 専有面積 | 築年数 | 最寄り駅 所在地 | キープ | 詳細 |
|---|---|---|---|---|---|---|---|
アパート ハイツひまわり(1K/1階) | |||||||
![]() | 4.5万円 3,000円 | 9万円 なし | 1K 27.16m2 | 築18年 | JR東海道本線 幸田駅 徒歩6分 JR東海道本線 三ケ根駅 徒歩34分 JR東海道本線 相見駅 徒歩49分 愛知県額田郡幸田町大字芦谷仲田 | 詳細を見る | |
マンション NEALS YARD A(1K/3階) | |||||||
![]() | 4.8万円 5,000円 | なし なし | 1K 27.5m2 | 築18年 | 名鉄西尾線 西尾駅 徒歩13分 名鉄西尾線 西尾口駅 徒歩15分 名鉄西尾線 桜町前駅 徒歩21分 愛知県西尾市中町 | 詳細を見る | |
マンション レオパレスRX豊田梅坪(1K/3階) | |||||||
![]() | 4.9万円 7,000円 | なし 4.9万円 | 1K 19.04m2 | 築35年 | 名鉄三河線 梅坪駅 徒歩6分 愛知県豊田市東梅坪町10丁目 | 詳細を見る | |
マンション トキワビル(1K/7階) | |||||||
![]() | 4.3万円 4,000円 | なし なし | 1K 25.11m2 | 築27年 | JR飯田線 豊川駅(愛知) 徒歩1分 名鉄豊川線 豊川稲荷駅 徒歩3分 名鉄豊川線 稲荷口駅 徒歩15分 愛知県豊川市豊川栄町 | 詳細を見る | |
アパート GERMER Ⅰ(2LDK/3階) | |||||||
![]() | 5.65万円 2,900円 | なし 6.65万円 | 2LDK 61.6m2 | 築13年 | 名鉄名古屋本線 小田渕駅 徒歩9分 名鉄名古屋本線 伊奈駅 徒歩21分 愛知県豊川市桜町2丁目 | 詳細を見る | |
アパート レオパレス音羽(1K/2階) | |||||||
![]() | 3.9万円 5,000円 | なし 3.9万円 | 1K 20.28m2 | 築27年 | 名鉄名古屋本線 御油駅 徒歩13分 愛知県豊川市御油町一ノ坪 | 詳細を見る | |
アパート CASA MAR GRANDE(2LDK/1階) | |||||||
![]() | 4.8万円 4,000円 | なし なし | 2LDK 63.55m2 | 築17年 | 名鉄西尾線 福地駅 徒歩60分 名鉄三河線 碧南駅 徒歩80分 名鉄西尾線 西尾駅 徒歩80分 愛知県西尾市刈宿町百々 | 詳細を見る | |
アパート ヴィラ・サンライズB棟(ワンルーム/1階) | |||||||
![]() | 5万円 4,500円 | なし 5万円 | ワンルーム 32.05m2 | 築20年 | JR飯田線 三河一宮駅 徒歩11分 JR飯田線 長山駅 徒歩26分 JR飯田線 江島駅 徒歩36分 愛知県豊川市一宮町社 | 詳細を見る | |









