賃貸アパート
メゾン堀切菖蒲園の賃貸物件情報(ワンルーム/2階)
| 家賃 | 管理費等 | 敷金 | 礼金 | 間取り | 専有面積 |
|---|---|---|---|---|---|
| 6万円 | 4,000円 | なし | なし | ワンルーム | 13.02m2 |
入居決定でお祝い金最大100,000円
- 保証金
- -
- 償却・敷引
- -
- 築年数
- 築1年
- 所在階
- 2階
- 向き
- -
Point
初期費用を全額カードで分割払いできます(初回金利手数料無料)/土日祝日営業中/送迎サービス有り /オンライン内見対応可能
提供:ニコニコ賃貸 柏店(株)nkm Living(SUUMO経由)

詳細情報 メゾン堀切菖蒲園
物件紹介
メゾン堀切菖蒲園は京成本線堀切菖蒲園駅から徒歩9分にあり、駅近で通勤通学に便利なアパートです。
このお部屋は2階以上に位置しているので、通行人や周囲の住人からの視線が気になりにくく、防犯面でも安心。インターホンにはTVモニタもついているため、相手の顔を確認してから来客対応することができます。
おしゃれなデザイナーズ物件!フローリングのお部屋なのでお掃除もラクラク。室内には多目的に利用できる人気のロフトもあり、お部屋のアレンジも自在です。キッチンはシステムキッチン仕様になっていますので、お料理好きの方にもぴったり。
通信設備面では、インターネットが無料で使えるので、月々の出費を抑えられるのも魅力です(別途工事等が必要な場合あり)。
共用部には宅配ボックスが設定されているので、不在の時にも荷物を受け取ることができます。
このお部屋は2階以上に位置しているので、通行人や周囲の住人からの視線が気になりにくく、防犯面でも安心。インターホンにはTVモニタもついているため、相手の顔を確認してから来客対応することができます。
おしゃれなデザイナーズ物件!フローリングのお部屋なのでお掃除もラクラク。室内には多目的に利用できる人気のロフトもあり、お部屋のアレンジも自在です。キッチンはシステムキッチン仕様になっていますので、お料理好きの方にもぴったり。
通信設備面では、インターネットが無料で使えるので、月々の出費を抑えられるのも魅力です(別途工事等が必要な場合あり)。
共用部には宅配ボックスが設定されているので、不在の時にも荷物を受け取ることができます。
お金・契約の情報
※「-」と表示されているものは、実際は料金が発生するものもございます。詳細はお問い合わせください。
| 家賃 | 6万円 | 管理費・共益費 | 4,000円 |
|---|---|---|---|
| 敷金 | なし | 礼金 | なし |
| 入居決定でお祝い金最大100,000円 | |||
| 保証金 | - | 償却・敷引 | - |
| 住宅保険料 | - | 更新料 | - |
| 保証会社利用 | 必須 | 保証会社名 | - |
| 保証会社費用 | - | 保証会社備考 | 保証会社利用必 保証人有:30 000円 保証人無:50 000円 1年毎に更新料12 000円 |
| 契約形態 | - | 契約期間 | - |
| 入居・引渡期間 | 即時 | 現況 | - |
| 契約備考 | 巡回管理/初期費用を全額カードで分割払いできます(初回金利手数料無料)/土日祝日営業中/送迎サービス有り /オンライン内見対応可能/短期解約違約金1年未満家賃2か月、1年以上2年未満家賃1ヵ月 合計5.28万円(内訳:IOT設定費用1.65万円24時間サポート1.98万円除菌・消臭代金1.65万円) 更新料 新賃料1.50ヶ月分 室内清掃費用 38500円 町会費 月額300円 ワンルーム 普通借家2年 損保【2万円2年】 エアコン、ガスコンロ対応、フローリング、TVインターホン、室内洗濯置、シューズボックス、システムキッチン、温水洗浄便座、脱衣所、洗面所独立、洗面化粧台、駐輪場、宅配ボックス、光ファイバー、即入居可、礼金不要、最上階、敷金不要、照明付、ロフト、保証人不要、デザイナーズ、2沿線利用可、ネット使用料不要、保証金不要、築2年以内、24時間換気システム、電子キー、電子ロック、トイレ未使用、階段下収納、2駅利用可、3駅以上利用可、敷地内ごみ置き場、シャワールーム、洗面所にドア、室内物干機、敷金・礼金不要、保証会社利用可、IT重説対応物件、初期費用カード決済可 | ||
部屋の情報
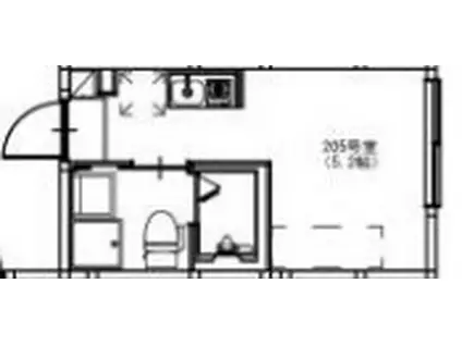
| 間取り | ワンルーム | 専有面積 | 13.02m2 |
|---|---|---|---|
| 所在階 / 向き | 2階 / - | バルコニー面積 | - |
| 水道 / ガス | - | ||
| 設備 | 2階以上、テレビドアホン、宅配ボックス、インターネット対応、システムキッチン、エアコン、温水洗浄便座、フローリング、ロフトあり、洗髪洗面化粧台、コンロ:ガス、デザイナーズ、インターネット使用料無料、洗濯機:室内 | ||
| 当社物件ID | 159238570 | ||
建物の情報
| 建物名 | メゾン堀切菖蒲園 | ||
|---|---|---|---|
| 所在地 | 東京都葛飾区堀切 | ||
| 交通 | 京成本線 堀切菖蒲園駅 徒歩9分 京成本線 お花茶屋駅 徒歩18分 東武伊勢崎線 堀切駅 徒歩22分 | ||
| 階数 | 2階建 | 総戸数 | - |
| 築年月 | 2025年08月 / 築1年 | エレベーター | - |
| 駐車場 | なし | バイク置き場 | - |
| 駐輪場 | あり | 管理人/管理会社 | - |
| 周辺環境 | その他 セブンイレブン 葛飾堀切4丁目店(コンビニ)まで560m その他 まいばすけっと 堀切菖蒲園駅南店(スーパー)まで605m その他 りそな銀行 堀切支店(銀行)まで618m その他 松屋 堀切菖蒲園店(飲食店)まで611m その他 葛飾警察署堀切駅前交番(警察署・交番)まで635m その他 葛飾堀切郵便局(郵便局)まで707m | ||
| 建物種別 | アパート | 建物構造 | 木造 |
この部屋の取扱い不動産会社
| 会社名 | ニコニコ賃貸 柏店(株)nkm Living(SUUMO経由) | ||
|---|---|---|---|
| 所在地 | 千葉県柏市旭町1-10-5 島根ビル502 | 交通 | - |
| 営業時間 | 10時~18時 | 定休日 | 無し |
| 免許番号 | 千葉県知事18953 | 取引態様 | 仲介 |
| 不動産会社管理番号 | 100481519199 | 当社管理番号 | 89 |
| 所属団体 | (公社)全日本不動産協会千葉県本部会員 | ||
| 公正取引協議会 | (公社)首都圏不動産公正取引協議会加盟 | ||
| 取扱い物件情報 | 物件詳細へ | ||
※各種情報と現状に差異がある場合は、現状優先となります。問い合わせをすることで、より詳しい条件、情報を確認する事ができます。
提供:ニコニコ賃貸 柏店(株)nkm Living(SUUMO経由)
この物件が気になったら掲載期限まであと10日
メゾン堀切菖蒲園に条件(家賃・エリア)が近い物件一覧
| 写真 | 家賃 管理費等 | 敷金 礼金 | 間取り 専有面積 | 築年数 | 最寄り駅 所在地 | キープ | 詳細 |
|---|---|---|---|---|---|---|---|
マンション メゾンドサンセール(ワンルーム/2階) | |||||||
![]() | 2.7万円 5,000円 | なし なし | ワンルーム 12.37m2 | 築41年 | JR東海道本線 塚本駅 徒歩5分 JR埼京線 大宮駅(埼玉) 徒歩9分 JR京浜東北線 大宮駅(埼玉) 徒歩9分 阪急宝塚線 十三駅 徒歩17分 JR埼京線 北与野駅 徒歩22分 JR東西線 御幣島駅 徒歩23分 大阪府大阪市淀川区新北野 | 詳細を見る | |
アパート ROBOT HOME 梅島II(1K/2階) | |||||||
![]() | 7.7万円 3,000円 | なし なし | 1K 21.02m2 | 新築 | 東武伊勢崎線 梅島駅 徒歩9分 東武伊勢崎線 西新井駅 徒歩10分 東京都足立区梅島 | 詳細を見る | |
マンション ベルシード綾瀬駅前(1K/8階) | |||||||
![]() | 8.5万円 1.5万円 | なし 8.5万円 | 1K 27.87m2 | 築10年 | 東京メトロ千代田線 綾瀬駅 徒歩3分 JR常磐線 綾瀬駅 徒歩3分 つくばエクスプレス 青井駅 徒歩15分 東京都足立区綾瀬 | 詳細を見る | |
マンション AZEST立石II(1K/3階) | |||||||
![]() | 8.7万円 8,000円 | なし 8.7万円 | 1K 22.8m2 | 築3年 | 京成押上線 京成立石駅 徒歩9分 京成押上線 四ツ木駅 徒歩16分 京成本線 お花茶屋駅 徒歩17分 東京都葛飾区立石 | 詳細を見る | |
アパート ハーモニーテラス東金町II(ワンルーム/2階) | |||||||
![]() | 6.6万円 3,500円 | 6.6万円 6.6万円 | ワンルーム 13.44m2 | 築8年 | JR常磐線 金町駅 徒歩8分 京成金町線 京成金町駅 徒歩10分 北総線 新柴又駅 徒歩35分 東京都葛飾区東金町 | 詳細を見る | |
アパート リブ南花畑3丁目(1K/2階) | |||||||
![]() | 6.3万円 3,000円 | なし なし | 1K 16.01m2 | 築1年 | つくばエクスプレス 六町駅 徒歩11分 東京都足立区南花畑3丁目 | 詳細を見る | |
アパート アルマ西小岩(1K/2階) | |||||||
![]() | 8万円 3,000円 | なし 8万円 | 1K 19.11m2 | 築1年 | 総武・中央緩行線 小岩駅 徒歩11分 東京都江戸川区西小岩3丁目 | 詳細を見る | |
マンション DIPS竹ノ塚駅前(1K/4階) | |||||||
![]() | 9.4万円 1.2万円 | なし なし | 1K 25.5m2 | 築1年 | 東武伊勢崎・大師線 竹ノ塚駅 徒歩3分 東京都足立区西竹の塚2丁目 | 詳細を見る | |








/105x80-f1-q70-wp1)
