賃貸マンション
ルネ門前仲町パークステイツの賃貸物件情報(3LDK/1階)
| 家賃 | 管理費等 | 敷金 | 礼金 | 間取り | 専有面積 |
|---|---|---|---|---|---|
| 22.8万円 | なし | 22.8万円 | 22.8万円 | 3LDK | 79.8m2 |
入居決定でお祝い金最大100,000円
- 保証金
- -
- 償却・敷引
- -
- 築年数
- 築40年
- 所在階
- 1階
- 向き
- 南西
Point
楽器相談可能、臨海小学校・深川第三中学校学区域の3LDK分譲賃貸マンション。緑豊かな24平米の専用庭付きでお子様がいるファミリーにおすすめです。ぜひお問合せ下さいませ。
提供:(株)部屋市場(SUUMO経由)

詳細情報 ルネ門前仲町パークステイツ
物件紹介
ルネ門前仲町パークステイツはJR京葉線越中島駅から徒歩6分にあり、駅近で通勤通学に便利なマンションです。
建物のエントランスはオートロックがついており、インターホンにはTVモニタもついているため、相手の顔を確認してから来客対応することができます。
こちらは楽器相談が可能な物件。楽器演奏をお考えの方はぜひ相談してみてください。人気の南向き・フローリングのお部屋。角部屋でもあるため、周囲の居住者の生活音も気になりにくい場所です。キッチンはシステムキッチン仕様になっていますので、お料理好きの方にもぴったり。また、バス・トイレは別で、のんびりお風呂タイムも楽しめるでしょう。
通信設備面ではCATVに対応しているので、おうち時間も充実するでしょう(別途工事、契約料が必要な場合あり)。
建物にはエレベーターがついているので、重い荷物があっても安心。
建物のエントランスはオートロックがついており、インターホンにはTVモニタもついているため、相手の顔を確認してから来客対応することができます。
こちらは楽器相談が可能な物件。楽器演奏をお考えの方はぜひ相談してみてください。人気の南向き・フローリングのお部屋。角部屋でもあるため、周囲の居住者の生活音も気になりにくい場所です。キッチンはシステムキッチン仕様になっていますので、お料理好きの方にもぴったり。また、バス・トイレは別で、のんびりお風呂タイムも楽しめるでしょう。
通信設備面ではCATVに対応しているので、おうち時間も充実するでしょう(別途工事、契約料が必要な場合あり)。
建物にはエレベーターがついているので、重い荷物があっても安心。
お金・契約の情報
※「-」と表示されているものは、実際は料金が発生するものもございます。詳細はお問い合わせください。
| 家賃 | 22.8万円 | 管理費・共益費 | なし |
|---|---|---|---|
| 敷金 | 22.8万円 | 礼金 | 22.8万円 |
| 入居決定でお祝い金最大100,000円 | |||
| 保証金 | - | 償却・敷引 | - |
| 住宅保険料 | - | 更新料 | - |
| 保証会社利用 | 必須 | 保証会社名 | - |
| 保証会社費用 | - | 保証会社備考 | 保証会社利用必 初回保証料:保証人有/賃料総額の40%、保証人無/賃料総額の60% |
| 契約形態 | 定期借家 | 契約期間 | 2年 |
| 入居・引渡期間 | 即時 | 現況 | - |
| 入居可能条件 | 楽器相談 | ||
| 契約備考 | 退去時室内クリーニング費88000円、エアコンクリーニング費22000円(2台分)は借主様負担。共用部分の付随設備の詳細(空き状況・料金等)は要確認ご入居される方のご内容によって保証会社等の契約条件に変動あり 3LDK 二人入居可/楽器相談 定期借家2年 損保【2.5万円2年】 バストイレ別、バルコニー、ガスコンロ対応、クロゼット、フローリング、シャワー付洗面台、TVインターホン、オートロック、室内洗濯置、シューズボックス、システムキッチン、角住戸、温水洗浄便座、脱衣所、エレベーター、洗面所独立、洗面化粧台、駐輪場、押入、CATV、即入居可、2面採光、3口以上コンロ、防犯カメラ、独立型キッチン、出窓、全居室収納、分譲賃貸、グリル付、保証人不要、東南角住戸、2面バルコニー、クッションフロア、専用庭、エアコン2台、LDK15畳以上、ディンプルキー、駅まで平坦、床下収納、ダブルロックキー、保証金不要、楽器相談、複層ガラス、クロゼット2ヶ所、平坦地、南面リビング、玄関ポーチ、耐火構造、耐震構造、3駅以上利用可、3沿線以上利用可、駅徒歩10分以内、24時間ゴミ出し可、敷地内ごみ置き場、南西向き、リビングの隣和室、和室、都市ガス、IT重説対応物件、初期費用カード決済可 | ||
部屋の情報
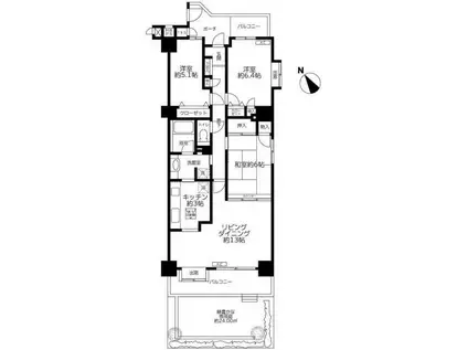
| 間取り | 3LDK | 専有面積 | 79.8m2 |
|---|---|---|---|
| 所在階 / 向き | 1階 / 南西 | バルコニー面積 | - |
| 水道 / ガス | - | ||
| 設備 | バス・トイレ別、オートロック、テレビドアホン、システムキッチン、エアコン、エレベーター、温水洗浄便座、南向き、角部屋、バルコニー、フローリング、床下収納、洗髪洗面化粧台、2口コンロ、コンロ:ガス、CATV、専用庭、洗濯機:室内 | ||
| 当社物件ID | 14258957 | ||
建物の情報
| 建物名 | ルネ門前仲町パークステイツ | ||
|---|---|---|---|
| 所在地 | 東京都江東区越中島 | ||
| 交通 | JR京葉線 越中島駅 徒歩6分 都営大江戸線 門前仲町駅 徒歩7分 東京メトロ有楽町線 月島駅 徒歩14分 | ||
| 階数 | 14階建 | 総戸数 | 467戸 |
| 築年月 | 1986年07月 / 築40年 | エレベーター | あり |
| 駐車場 | なし | バイク置き場 | - |
| 駐輪場 | あり | 管理人/管理会社 | - |
| 周辺環境 | その他 マルエツ 佃店(スーパー)まで1033m その他 セブンイレブン ヤマタネビル店(コンビニ)まで58m その他 くすりの福太郎 門前仲町店(ドラッグストア)まで514m その他 江東区立臨海小学校(小学校)まで530m その他 江東区立深川第三中学校(中学校)まで773m その他 小鳩保育園永代(幼稚園・保育園)まで754m | ||
| 建物種別 | マンション | 建物構造 | SRC(鉄骨鉄筋コンクリート) |
この部屋の取扱い不動産会社
| 会社名 | (株)部屋市場(SUUMO経由) | ||
|---|---|---|---|
| 所在地 | 東京都台東区上野6-5-1 羽山ビル2階 | 交通 | - |
| 営業時間 | 10:00~21:00(水曜日は19:00まで) | 定休日 | 年中無休 |
| 免許番号 | 東京都知事88642 | 取引態様 | 仲介 |
| 不動産会社管理番号 | 100480035842 | 当社管理番号 | 89 |
| 所属団体 | (公社)全日本不動産協会東京都本部会員 | ||
| 公正取引協議会 | (公社)首都圏不動産公正取引協議会加盟 | ||
| 取扱い物件情報 | 物件詳細へ | ||
※各種情報と現状に差異がある場合は、現状優先となります。問い合わせをすることで、より詳しい条件、情報を確認する事ができます。
提供:(株)部屋市場(SUUMO経由)
この物件が気になったら掲載期限まであと11日
ルネ門前仲町パークステイツに条件(家賃・エリア)が近い物件一覧
| 写真 | 家賃 管理費等 | 敷金 礼金 | 間取り 専有面積 | 築年数 | 最寄り駅 所在地 | キープ | 詳細 |
|---|---|---|---|---|---|---|---|
マンション パークアクシス錦糸町ヴェール(1LDK/7階) | |||||||
![]() | 21万円 1.2万円 | 21万円 21万円 | 1LDK 40.06m2 | 築10年 | 総武・中央緩行線 錦糸町駅 徒歩12分 総武本線 錦糸町駅 徒歩12分 東京地下鉄半蔵門線 錦糸町駅 徒歩12分 東京都墨田区緑4丁目 | 詳細を見る | |
マンション サン セジュール(1DK/6階) | |||||||
![]() | 14.5万円 1万円 | なし 14.5万円 | 1DK 35.12m2 | 築19年 | 東京都大江戸線 蔵前駅 徒歩7分 東京都大江戸線 両国駅 徒歩8分 総武・中央緩行線 両国駅 徒歩15分 東京都墨田区本所1丁目 | 詳細を見る | |
マンション ビエラコート日本橋久松町(1LDK/4階) | |||||||
![]() | 22.1万円 1.5万円 | 22.1万円 なし | 1LDK 42.44m2 | 築2年 | 東京地下鉄日比谷線 人形町駅 徒歩5分 東京都浅草線 東日本橋駅 徒歩5分 東京都新宿線 馬喰横山駅 徒歩5分 東京都中央区日本橋久松町 | 詳細を見る | |
マンション ドムス・スタイル森下(1LDK/5階) | |||||||
![]() | 17.2万円 8,000円 | なし 17.2万円 | 1LDK 34.44m2 | 築5年 | 東京都大江戸線 森下駅(東京) 徒歩6分 東京都新宿線 森下駅(東京) 徒歩6分 東京都大江戸線 両国駅 徒歩7分 東京都墨田区立川1丁目 | 詳細を見る | |
アパート 御殿山テラスⅡ(2LDK/1階) | |||||||
![]() | 23.9万円 3,000円 | 23.9万円 なし | 2LDK 57.6m2 | 築2年 | 山手線 大崎駅 徒歩8分 京浜急行電鉄本線 北品川駅 徒歩14分 東京都品川区北品川5丁目 | 詳細を見る | |
マンション カーザ・ブランカ北斎(1LDK/3階) | |||||||
![]() | 16.3万円 1万円 | 8.15万円 24.45万円 | 1LDK 36.55m2 | 築1年 | 東京都大江戸線 両国駅 徒歩8分 総武本線 錦糸町駅 徒歩13分 東京地下鉄半蔵門線 錦糸町駅 徒歩13分 東京都墨田区亀沢3丁目 | 詳細を見る | |
マンション レジディア日本橋人形町II(1LDK/8階) | |||||||
![]() | 23.1万円 2万円 | 23.1万円 23.1万円 | 1LDK 47.41m2 | 築19年 | 都営浅草線 人形町駅 徒歩1分 東京メトロ半蔵門線 水天宮前駅 徒歩6分 東京メトロ日比谷線 小伝馬町駅 徒歩8分 東京都中央区日本橋人形町 | 詳細を見る | |
マンション ドゥーエ西馬込(2LDK/6階) | |||||||
![]() | 22.8万円 1.2万円 | 22.8万円 なし | 2LDK 54.96m2 | 築7年 | 都営浅草線 西馬込駅 徒歩8分 都営浅草線 馬込駅 徒歩16分 東急池上線 長原駅(東京) 徒歩20分 東京都大田区中馬込 | 詳細を見る | |









