賃貸マンション
ライトテラス中野坂上の賃貸物件情報(ワンルーム/3階)
| 家賃 | 管理費等 | 敷金 | 礼金 | 間取り | 専有面積 |
|---|---|---|---|---|---|
| 11.5万円 | 2.5万円 | なし | なし | ワンルーム | 25.14m2 |
入居決定でお祝い金最大100,000円
- 保証金
- -
- 償却・敷引
- -
- 築年数
- 築8年
- 所在階
- 3階
- 向き
- 北東
Point
まずはお問い合わせ!
不動産会社は街のプロ、あなたに合った物件がきっと見つかります。
提供:東急リバブル(株)新宿センター(SUUMO経由)

詳細情報 ライトテラス中野坂上
物件紹介
ライトテラス中野坂上は東京メトロ丸ノ内線中野坂上駅から徒歩8分にあり、駅近で通勤通学に便利なマンションです。
このお部屋は2階以上に位置しているので、通行人や周囲の住人からの視線が気になりにくく、防犯面でも安心。建物のエントランスはオートロックがついており、インターホンにはTVモニタもついているため、相手の顔を確認してから来客対応することができます。
おしゃれなデザイナーズ物件!フローリングのお部屋なのでお掃除もラクラク。キッチンはシステムキッチン仕様になっていますので、お料理好きの方にもぴったり。バス・トイレは別なので、のんびりお風呂タイムも楽しめるでしょう。また、雨の日でも浴室乾燥機を使えば、お洗濯も問題ありません。
通信設備面では、インターネットが無料で使えるので、月々の出費を抑えられるのも魅力です。また、BSアンテナ・CSアンテナもありますので、おうち時間も充実するでしょう(別途工事、BS・CSの契約料等が必要な場合あり)。
共用部には宅配ボックスが設定されているので、不在の時にも荷物を受け取ることができます。
このお部屋は2階以上に位置しているので、通行人や周囲の住人からの視線が気になりにくく、防犯面でも安心。建物のエントランスはオートロックがついており、インターホンにはTVモニタもついているため、相手の顔を確認してから来客対応することができます。
おしゃれなデザイナーズ物件!フローリングのお部屋なのでお掃除もラクラク。キッチンはシステムキッチン仕様になっていますので、お料理好きの方にもぴったり。バス・トイレは別なので、のんびりお風呂タイムも楽しめるでしょう。また、雨の日でも浴室乾燥機を使えば、お洗濯も問題ありません。
通信設備面では、インターネットが無料で使えるので、月々の出費を抑えられるのも魅力です。また、BSアンテナ・CSアンテナもありますので、おうち時間も充実するでしょう(別途工事、BS・CSの契約料等が必要な場合あり)。
共用部には宅配ボックスが設定されているので、不在の時にも荷物を受け取ることができます。
お金・契約の情報
※「-」と表示されているものは、実際は料金が発生するものもございます。詳細はお問い合わせください。
| 家賃 | 11.5万円 | 管理費・共益費 | 2.5万円 |
|---|---|---|---|
| 敷金 | なし | 礼金 | なし |
| 入居決定でお祝い金最大100,000円 | |||
| 保証金 | - | 償却・敷引 | - |
| 住宅保険料 | - | 更新料 | - |
| 保証会社利用 | 必須 | 保証会社名 | - |
| 保証会社費用 | - | 保証会社備考 | 保証会社利用必 エポスカード(RP) 保証料:賃料等の50%(最低2万)、月額保証料:賃料等の1%(更新料無) |
| 契約形態 | - | 契約期間 | - |
| 入居・引渡期間 | - | 現況 | - |
| 契約備考 | 合計8.25万円(内訳:カギ交換代:33000円/クリーニング費用:38500円/エアコン清掃費:11000円) ワンルーム 損保【1.66万円2年】 バストイレ別、エアコン、オートロック、駐輪場、宅配ボックス、礼金不要、敷金不要、バイク置場、デザイナーズ、CS、ネット使用料不要、2駅利用可、3沿線以上利用可、駅徒歩10分以内、BS、敷金・礼金不要 入居日:'26年3月中旬 | ||
部屋の情報
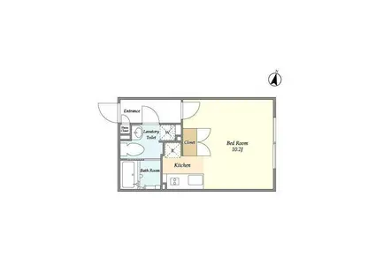
| 間取り | ワンルーム | 専有面積 | 25.14m2 |
|---|---|---|---|
| 所在階 / 向き | 3階 / 北東 | バルコニー面積 | - |
| 水道 / ガス | - | ||
| 設備 | バス・トイレ別、2階以上、オートロック、宅配ボックス、インターネット対応、エアコン、デザイナーズ、CSアンテナ、BSアンテナ、インターネット使用料無料 | ||
| 当社物件ID | 54280969 | ||
建物の情報
| 建物名 | ライトテラス中野坂上 | ||
|---|---|---|---|
| 所在地 | 東京都中野区中央 | ||
| 交通 | 東京メトロ丸ノ内線 中野坂上駅 徒歩8分 都営大江戸線 中野坂上駅 徒歩8分 JR中央線 東中野駅 徒歩8分 | ||
| 階数 | 4階建 | 総戸数 | 23戸 |
| 築年月 | 2018年08月 / 築8年 | エレベーター | - |
| 駐車場 | なし | バイク置き場 | あり |
| 駐輪場 | あり | 管理人/管理会社 | - |
| 建物種別 | マンション | 建物構造 | RC(鉄筋コンクリート) |
この部屋の取扱い不動産会社
| 会社名 | 東急リバブル(株)新宿センター(SUUMO経由) | ||
|---|---|---|---|
| 所在地 | 東京都新宿区西新宿1-6-1 新宿エルタワー1階 | 交通 | - |
| 営業時間 | 10:00~18:00 | 定休日 | 毎週火曜日・水曜日 |
| 免許番号 | 国土交通大臣2611 | 取引態様 | 仲介 |
| 不動産会社管理番号 | 100484792324 | 当社管理番号 | 89 |
| 所属団体 | (一社)不動産流通経営協会会員 | ||
| 公正取引協議会 | (公社)首都圏不動産公正取引協議会加盟 | ||
| 取扱い物件情報 | 物件詳細へ | ||
※各種情報と現状に差異がある場合は、現状優先となります。問い合わせをすることで、より詳しい条件、情報を確認する事ができます。
提供:東急リバブル(株)新宿センター(SUUMO経由)
この物件が気になったら掲載期限まであと10日
ライトテラス中野坂上に条件(家賃・エリア)が近い物件一覧
| 写真 | 家賃 管理費等 | 敷金 礼金 | 間取り 専有面積 | 築年数 | 最寄り駅 所在地 | キープ | 詳細 |
|---|---|---|---|---|---|---|---|
マンション ラ・メゾン長崎XII(1LDK/2階) | |||||||
![]() | 15万円 5,000円 | なし 15万円 | 1LDK 47.27m2 | 築4年 | 西武池袋線 椎名町駅 徒歩4分 東京メトロ有楽町線 要町駅 徒歩7分 都営大江戸線 落合南長崎駅 徒歩15分 東京都豊島区南長崎 | 詳細を見る | |
マンション シーズンフラッツ新大塚(1K/6階) | |||||||
![]() | 14.1万円 1.2万円 | 14.1万円 なし | 1K 26.68m2 | 築1年 | 東京地下鉄丸ノ内線 新大塚駅 徒歩8分 山手線 大塚駅(東京) 徒歩12分 東京都豊島区南大塚2丁目 | 詳細を見る | |
マンション ソシアルケン(ワンルーム/3階) | |||||||
![]() | 7.2万円 なし | なし なし | ワンルーム 22.21m2 | 築40年 | 西武池袋線 椎名町駅 徒歩2分 東京メトロ有楽町線 要町駅 徒歩14分 JR山手線 池袋駅 徒歩15分 東京都豊島区目白 | 詳細を見る | |
マンション リベルタII(1K/4階) | |||||||
![]() | 12万円 なし | 12万円 12万円 | 1K 23.78m2 | 築23年 | JR山手線 恵比寿駅 徒歩8分 東京メトロ日比谷線 広尾駅 徒歩12分 東京メトロ南北線 白金台駅 徒歩18分 東京都渋谷区恵比寿 | 詳細を見る | |
マンション ラティエラ中野新井(1K/2階) | |||||||
![]() | 14.7万円 1万円 | 14.7万円 なし | 1K 25.36m2 | 築1年 | 西武鉄道新宿線 新井薬師前駅 徒歩9分 東京都中野区新井1丁目 | 詳細を見る | |
マンション スペーシア高円寺II(1K/1階) | |||||||
![]() | 8.1万円 1.5万円 | なし なし | 1K 20m2 | 築23年 | 東京メトロ丸ノ内線 方南町駅 徒歩10分 東京メトロ丸ノ内線 東高円寺駅 徒歩13分 東京メトロ丸ノ内線 新高円寺駅 徒歩16分 東京都杉並区堀ノ内 | 詳細を見る | |
マンション ザ・パークハビオ中野富士見町ガーデン(1K/9階) | |||||||
![]() | 13.4万円 1.5万円 | 13.4万円 なし | 1K 25.92m2 | 築3年 | 東京メトロ丸ノ内線 中野富士見町駅 徒歩4分 東京メトロ丸ノ内線 新中野駅 徒歩11分 都営大江戸線 西新宿五丁目駅 徒歩19分 東京都中野区弥生町 | 詳細を見る | |
アパート エステートロイヤル7号棟(2K/2階) | |||||||
![]() | 8.7万円 5,000円 | なし なし | 2K 37.26m2 | 築30年 | 西武池袋線 石神井公園駅 徒歩11分 西武池袋線 練馬高野台駅 徒歩21分 西武池袋線 大泉学園駅 徒歩26分 東京都練馬区三原台 | 詳細を見る | |






/105x80-f1-q70-wp1)


