賃貸マンション
ビレッジハウス幌向1号棟の賃貸物件情報(2LDK/4階)
| 家賃 | 管理費等 | 敷金 | 礼金 | 間取り | 専有面積 |
|---|---|---|---|---|---|
| 2.64万円 | なし | なし | なし | 2LDK | 55.99m2 |
入居決定でお祝い金最大100,000円
- 保証金
- -
- 償却・敷引
- -
- 築年数
- 築40年
- 所在階
- 4階
- 向き
- 南
Point
まずはお問い合わせ!
不動産会社は街のプロ、あなたに合った物件がきっと見つかります。
提供:ビレッジハウス住まい相談センター

詳細情報 ビレッジハウス幌向1号棟
物件紹介
ビレッジハウス幌向1号棟はJR函館本線幌向駅から徒歩22分にあるマンションです。
このお部屋は2階以上に位置しているので通行人や周囲の住人からの視線が気になりにくく、建物のエントランスはオートロックがついているので防犯性が高くなっています。
人気の南向きのお部屋。また、フローリングなのでお掃除もラクラク。バス・トイレ別の仕様で、のんびりお風呂タイムも楽しめます。
ペット飼育の相談ができますので、あなたの大切な家族の一員も快適に暮らせるか、ぜひ確認してみてください。
このお部屋は2階以上に位置しているので通行人や周囲の住人からの視線が気になりにくく、建物のエントランスはオートロックがついているので防犯性が高くなっています。
人気の南向きのお部屋。また、フローリングなのでお掃除もラクラク。バス・トイレ別の仕様で、のんびりお風呂タイムも楽しめます。
ペット飼育の相談ができますので、あなたの大切な家族の一員も快適に暮らせるか、ぜひ確認してみてください。
お金・契約の情報
※「-」と表示されているものは、実際は料金が発生するものもございます。詳細はお問い合わせください。
| 家賃 | 2.64万円 | 管理費・共益費 | なし |
|---|---|---|---|
| 敷金 | なし | 礼金 | なし |
| フリーレント | 1ヶ月 | ||
| 入居決定でお祝い金最大100,000円 | |||
| 保証金 | - | 償却・敷引 | - |
| 住宅保険料 | 1万円(2年) | 更新料 | - |
| 保証会社利用 | - | 保証会社名 | - |
| 保証会社費用 | - | 保証会社備考 | - |
| 契約形態 | - | 契約期間 | - |
| 入居・引渡期間 | - | 現況 | 空室 |
| 入居可能条件 | 2人入居可、高齢者相談、学生可、ペット相談 | ||
| 契約備考 | 契約種類:普通契約、24時間緊急対応、洗面台 | ||
部屋の情報
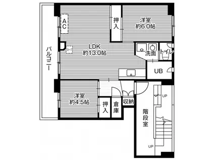
| 間取り | 2LDK | 専有面積 | 55.99m2 |
|---|---|---|---|
| 所在階 / 向き | 4階 / 南 | バルコニー面積 | - |
| 水道 / ガス | - | ||
| 設備 | バス・トイレ別、オートロック、追い焚き、バルコニー、トランクルーム、給湯、洗濯機:室内 | ||
| 当社物件ID | 137490059 | ||
建物の情報
| 建物名 | ビレッジハウス幌向1号棟 | ||
|---|---|---|---|
| 所在地 | 北海道岩見沢市幌向南五条1丁目258-4 | ||
| 交通 | 函館本線 幌向駅 徒歩27分 函館本線 豊幌駅 徒歩60分 函館本線 上幌向駅 徒歩75分 | ||
| 階数 | 5階建 | 総戸数 | - |
| 築年月 | 1986年06月 / 築40年 | エレベーター | - |
| 駐車場 | 空有 2,750円/月 円 | バイク置き場 | - |
| 駐輪場 | - | 管理人/管理会社 | 日勤 |
| 建物種別 | マンション | 建物構造 | RC(鉄筋コンクリート) |
この部屋の取扱い不動産会社
| 会社名 | ビレッジハウス住まい相談センター | ||
|---|---|---|---|
| 所在地 | 愛知県名古屋市中区大須4-10-32 上前津KDビル5階 | 交通 | 名城線「上前津駅」徒歩3分 |
| 営業時間 | 平日:9:00-18:30/土日祝:9:00-18:00 | 定休日 | 年中無休(年末年始を除く) |
| 免許番号 | 東京都知事(2)第100758号 | 取引態様 | 貸主 |
| 不動産会社管理番号 | 00008380705 | 当社管理番号 | 459 |
| 所属団体 | 公益社団法人東京都宅地建物取引業協会会員 日本賃貸住宅管理協会会員 | ||
| 取扱い物件情報 | 物件詳細へ | ||
※各種情報と現状に差異がある場合は、現状優先となります。問い合わせをすることで、より詳しい条件、情報を確認する事ができます。
提供:ビレッジハウス住まい相談センター
この物件が気になったら掲載期限まであと12日
ビレッジハウス幌向1号棟に条件(家賃・エリア)が近い物件一覧
| 写真 | 家賃 管理費等 | 敷金 礼金 | 間取り 専有面積 | 築年数 | 最寄り駅 所在地 | キープ | 詳細 |
|---|---|---|---|---|---|---|---|
アパート グランジュール文京台(1LDK/2階) | |||||||
![]() | 3.4万円 3,500円 | なし なし | 1LDK 35.72m2 | 築19年 | JR函館本線 大麻駅 徒歩8分 北海道江別市文京台東町 | 詳細を見る | |
アパート レオパレス 翔裕(1K/2階) | |||||||
![]() | 3.8万円 4,000円 | なし なし | 1K 23.18m2 | 築18年 | 函館本線 森林公園駅(北海道) 徒歩21分 北海道江別市文京台 | 詳細を見る | |
アパート サンフロンティアタウン(1LDK/1階) | |||||||
![]() | 3.5万円 なし | なし なし | 1LDK 29.16m2 | 築34年 | 北海道岩見沢市八条西21丁目 | 詳細を見る | |
アパート サウスヒル(2LDK/2階) | |||||||
![]() | 3.9万円 1,000円 | なし なし | 2LDK 51.03m2 | 築30年 | 北海道岩見沢市南町八条3丁目 | 詳細を見る | |
アパート コーポ尾田(1K/3階) | |||||||
![]() | 1.9万円 3,000円 | なし なし | 1K 22.68m2 | 築30年 | 函館本線 大麻駅 徒歩6分 北海道江別市文京台東町 | 詳細を見る | |
アパート カレッジハウス若葉NO.3(1DK/1階) | |||||||
![]() | 2.8万円 3,000円 | なし なし | 1DK 26m2 | 築35年 | 函館本線 野幌駅 徒歩19分 北海道江別市野幌若葉町 | 詳細を見る | |
アパート ウエストハイツ(ワンルーム/2階) | |||||||
![]() | 2.5万円 2,000円 | なし なし | ワンルーム 19.87m2 | 築40年 | 函館本線 美唄駅 徒歩13分 北海道美唄市西四条南2丁目 | 詳細を見る | |



/105x80-f1-q70-wp1)


/105x80-f1-q70-wp1)
/105x80-f1-q70-wp1)
