賃貸マンション
プラウドフラット浅草橋Ⅲの賃貸物件情報(1LDK/10階)
| 家賃 | 管理費等 | 敷金 | 礼金 | 間取り | 専有面積 |
|---|---|---|---|---|---|
| 19.8万円 | 1.2万円 | 19.8万円 | なし | 1LDK | 40.53m2 |
入居決定でお祝い金最大100,000円
- 保証金
- -
- 償却・敷引
- -
- 築年数
- 築8年
- 所在階
- 10階
- 向き
- 北
Point
ぜひ一度見ていただきたい、「プラウドフラット浅草橋Ⅲ」です。セキュリティ面は、TVインターホン・オートロックなど充実しているので、防犯対策もばっちりです。前日の残り湯を使用できる追い焚き機能付きです。マンションタイプのお部屋です。浅草橋周辺の賃貸情報に強い当社でなら、きっとあなた好みの素敵なお部屋が
提供:株式会社チアエステート

詳細情報 プラウドフラット浅草橋Ⅲ
物件紹介
プラウドフラット浅草橋Ⅲは総武・中央緩行線浅草橋駅から徒歩2分にあり、駅近で通勤通学に便利なマンションです。
このお部屋は2階以上に位置しているので、通行人や周囲の住人からの視線が気になりにくく、防犯面でも安心。建物のエントランスはオートロックがついており、インターホンにはTVモニタもついているため、相手の顔を確認してから来客対応することができます。
人気の角部屋で周囲の居住者の生活音も気になりにくく、また、フローリングのお部屋なのでお掃除もラクラク。キッチンはシステムキッチン仕様になっていますので、お料理好きの方にもぴったり。バス・トイレは別なので、のんびりお風呂タイムも楽しめるでしょう。また、雨の日でも浴室乾燥機を使えば、お洗濯も問題ありません。
通信設備面では、インターネット接続が可能です。また、BSアンテナ・CSアンテナがありCATVにも対応しているので、おうち時間も充実するでしょう(別途工事、契約料が必要な場合あり)。
建物にはエレベーターがついているので、重い荷物があっても安心。共用部には宅配ボックスが設定されているので、不在の時にも荷物を受け取ることができます。また、ペット飼育の相談ができますので、あなたの大切な家族の一員も快適に暮らせるか、ぜひ確認してみてください。
コンビニまで徒歩3分の場所にあり、日用品や食料品のお買い物にも便利です。
このお部屋は2階以上に位置しているので、通行人や周囲の住人からの視線が気になりにくく、防犯面でも安心。建物のエントランスはオートロックがついており、インターホンにはTVモニタもついているため、相手の顔を確認してから来客対応することができます。
人気の角部屋で周囲の居住者の生活音も気になりにくく、また、フローリングのお部屋なのでお掃除もラクラク。キッチンはシステムキッチン仕様になっていますので、お料理好きの方にもぴったり。バス・トイレは別なので、のんびりお風呂タイムも楽しめるでしょう。また、雨の日でも浴室乾燥機を使えば、お洗濯も問題ありません。
通信設備面では、インターネット接続が可能です。また、BSアンテナ・CSアンテナがありCATVにも対応しているので、おうち時間も充実するでしょう(別途工事、契約料が必要な場合あり)。
建物にはエレベーターがついているので、重い荷物があっても安心。共用部には宅配ボックスが設定されているので、不在の時にも荷物を受け取ることができます。また、ペット飼育の相談ができますので、あなたの大切な家族の一員も快適に暮らせるか、ぜひ確認してみてください。
コンビニまで徒歩3分の場所にあり、日用品や食料品のお買い物にも便利です。
お金・契約の情報
※「-」と表示されているものは、実際は料金が発生するものもございます。詳細はお問い合わせください。
| 家賃 | 19.8万円 | 管理費・共益費 | 1.2万円 |
|---|---|---|---|
| 敷金 | 19.8万円 | 礼金 | なし |
| 入居決定でお祝い金最大100,000円 | |||
| 保証金 | - | 償却・敷引 | - |
| 住宅保険料 | 住宅保険料あり | 更新料 | 19.8万円 |
| 保証会社利用 | 必須 | 保証会社名 | エポスカード |
| 保証会社費用 | - | 保証会社備考 | 【B】賃料総額40%/月額800円【GTN】賃料総額50%/月額2,000円 「法人」利用できません / 最低保証料:15,000円 【GTN】※外国籍 留学生 【キャンパス】初期費用:15,000円 |
| 契約形態 | - | 契約期間 | 2年 |
| 入居・引渡期間 | 即時 | 現況 | 空室 |
| 入居可能条件 | 事務所不可、2人入居可、楽器不可、ペット可 | ||
| 契約備考 | プラウドフラット浅草橋Ⅲ:浅草橋駅にも近くて便利。収納はシューズボックス・クロゼットなど豊富なので、衣類や履き物の整理がしやすく便利です。1LDKのお住まいで快適な暮らしをしませんか。お部屋探しならチアエステート。貴方様のお問い合せを、スタッフ一同お待ちしております。またはをご利用下さい。 | ||
部屋の情報
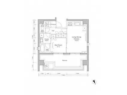
| 間取り | 1LDK | 専有面積 | 40.53m2 |
|---|---|---|---|
| 間取り詳細 | LD(10.7帖)、洋室(4.1帖) | ||
| 所在階 / 向き | 10階 / 北 | バルコニー面積 | - |
| 水道 / ガス | 水道【公営】、ガス【都市】 | ||
| 設備 | バス・トイレ別、オートロック、テレビドアホン、宅配ボックス、浴室乾燥機、追い焚き、光ファイバー対応、システムキッチン、エアコン、エレベーター、温水洗浄便座、角部屋、バルコニー、フローリング、3口コンロ、コンロ:ガス、CATV、CSアンテナ、BSアンテナ、シャワー、給湯、洗濯機:室内 | ||
| 当社物件ID | 28145306 | ||
建物の情報
| 建物名 | プラウドフラット浅草橋Ⅲ | ||
|---|---|---|---|
| 所在地 | 東京都台東区柳橋1丁目 25番2号 | ||
| 交通 | 総武・中央緩行線 浅草橋駅 徒歩2分 東京都浅草線 浅草橋駅 徒歩2分 | ||
| 階数 | 10階建 | 総戸数 | 41戸 |
| 築年月 | 2018年07月 / 築8年 | エレベーター | あり |
| 駐車場 | 空無 | バイク置き場 | あり |
| 駐輪場 | あり | 管理人/管理会社 | 日勤 |
| 周辺環境 | コンビニ 徒歩3分(163m) 販売店 徒歩5分(380m) 病院 徒歩3分(183m) | ||
| 建物種別 | マンション | 建物構造 | RC(鉄筋コンクリート) |
この部屋の取扱い不動産会社
| 会社名 | 株式会社チアエステート | ||
|---|---|---|---|
| 所在地 | 東京都千代田区神田須田町2-6-20 マリアナ神田須田町3F | 交通 | 都営新宿線「岩本町」徒歩1分 |
| 営業時間 | 10:00~19:00 | 定休日 | 不定休 |
| 免許番号 | 東京都知事(1)第106849号 | 取引態様 | 仲介 |
| 不動産会社管理番号 | 4445500 | 当社管理番号 | 461 |
| 取扱い物件情報 | 物件詳細へ | ||
※各種情報と現状に差異がある場合は、現状優先となります。問い合わせをすることで、より詳しい条件、情報を確認する事ができます。
提供:株式会社チアエステート
この物件が気になったら掲載期限まであと4日
プラウドフラット浅草橋Ⅲに条件(家賃・エリア)が近い物件一覧
| 写真 | 家賃 管理費等 | 敷金 礼金 | 間取り 専有面積 | 築年数 | 最寄り駅 所在地 | キープ | 詳細 |
|---|---|---|---|---|---|---|---|
マンション スカイコートパレス押上2(1LDK/5階) | |||||||
![]() | 15万円 1万円 | なし 15万円 | 1LDK 40.27m2 | 築11年 | 東京地下鉄半蔵門線 押上駅 徒歩10分 東武伊勢崎・大師線 曳舟駅 徒歩10分 東京都墨田区向島5丁目 | 詳細を見る | |
マンション サンハイツ浅草(1LDK/4階) | |||||||
![]() | 17万円 1万円 | 17万円 17万円 | 1LDK 48.57m2 | 築22年 | つくばエクスプレス 浅草駅(つくばEXP) 徒歩3分 東京地下鉄銀座線 田原町駅(東京) 徒歩12分 東京地下鉄銀座線 浅草駅(東武・都営・メトロ) 徒歩14分 東京都台東区浅草3丁目 | 詳細を見る | |
マンション ボアビスタ上野御徒町(1DK/5階) | |||||||
![]() | 12.6万円 1.5万円 | 12.6万円 12.6万円 | 1DK 26.5m2 | 築2年 | 東京都大江戸線 新御徒町駅 徒歩4分 東京地下鉄日比谷線 仲御徒町駅 徒歩4分 山手線 御徒町駅 徒歩6分 東京都台東区台東4丁目 | 詳細を見る | |
マンション クラリティア文京湯島(1DK/3階) | |||||||
![]() | 15.9万円 1.5万円 | 15.9万円 なし | 1DK 25.13m2 | 築1年 | 東京地下鉄千代田線 湯島駅 徒歩5分 東京地下鉄銀座線 末広町駅(東京) 徒歩7分 中央本線 御茶ノ水駅 徒歩9分 東京都文京区湯島3丁目 | 詳細を見る | |
マンション ラティエラ上野入谷(1DK/8階) | |||||||
![]() | 12万円 1万円 | 12万円 なし | 1DK 25.11m2 | 築3年 | 東京地下鉄日比谷線 入谷駅(東京) 徒歩4分 山手線 上野駅 徒歩16分 東京都台東区下谷2丁目 | 詳細を見る | |
マンション メゾン根岸(ワンルーム/8階) | |||||||
![]() | 19.5万円 なし | 19.5万円 19.5万円 | ワンルーム 40.55m2 | 築54年 | 山手線 鶯谷駅 徒歩3分 東京地下鉄日比谷線 入谷駅(東京) 徒歩4分 山手線 上野駅 徒歩12分 東京都台東区根岸3丁目 | 詳細を見る | |
マンション ジーグランデ森下(1LDK/7階) | |||||||
![]() | 20.6万円 1万円 | なし なし | 1LDK 44.03m2 | 築1年 | 東京都新宿線 森下駅(東京) 徒歩5分 東京都大江戸線 両国駅 徒歩9分 総武・中央緩行線 両国駅 徒歩9分 東京都墨田区千歳3丁目 | 詳細を見る | |
マンション レジディア文京千石(1DK/12階) | |||||||
![]() | 15.2万円 1万円 | 15.2万円 なし | 1DK 30.2m2 | 築23年 | 東京都三田線 千石駅 徒歩3分 山手線 巣鴨駅 徒歩7分 東京地下鉄南北線 駒込駅 徒歩12分 東京都文京区千石4丁目 | 詳細を見る | |









