賃貸マンション
パークウェル神田イーストの賃貸物件情報(1DK/7階)
| 家賃 | 管理費等 | 敷金 | 礼金 | 間取り | 専有面積 |
|---|---|---|---|---|---|
| 10万円 | 1.5万円 | 10万円 | 10万円 | 1DK | 28.78m2 |
入居決定でお祝い金最大100,000円
- 保証金
- -
- 償却・敷引
- 10万円
- 築年数
- 築25年
- 所在階
- 7階
- 向き
- 南
Point
オンラインにて申込みから契約までのお手続きも可能です。入居日が合わずにお悩みの方、契約金のお見積もりや室内写真のご要望などお気軽にお問い合わせください。初期費用の分割払いも承ります。
提供:(株)エールーム錦糸町店(SUUMO経由)

詳細情報 パークウェル神田イースト
物件紹介
パークウェル神田イーストは東京メトロ日比谷線秋葉原駅から徒歩3分にあり、駅近で通勤通学に便利なマンションです。
このお部屋は2階以上に位置しているので、通行人や周囲の住人からの視線が気になりにくく、防犯面でも安心。建物のエントランスはオートロックがついており、インターホンにはTVモニタもついているため、相手の顔を確認してから来客対応することができます。
人気の南向きのお部屋。また、フローリングなのでお掃除もラクラク。キッチンはシステムキッチン仕様になっていますので、お料理好きの方にもぴったり。バス・トイレは別なので、のんびりお風呂タイムも楽しめるでしょう。また、雨の日でも浴室乾燥機を使えば、お洗濯も問題ありません。
建物にはエレベーターがついているので、重い荷物があっても安心。共用部には宅配ボックスが設定されているので、不在の時にも荷物を受け取ることができます。
このお部屋は2階以上に位置しているので、通行人や周囲の住人からの視線が気になりにくく、防犯面でも安心。建物のエントランスはオートロックがついており、インターホンにはTVモニタもついているため、相手の顔を確認してから来客対応することができます。
人気の南向きのお部屋。また、フローリングなのでお掃除もラクラク。キッチンはシステムキッチン仕様になっていますので、お料理好きの方にもぴったり。バス・トイレは別なので、のんびりお風呂タイムも楽しめるでしょう。また、雨の日でも浴室乾燥機を使えば、お洗濯も問題ありません。
建物にはエレベーターがついているので、重い荷物があっても安心。共用部には宅配ボックスが設定されているので、不在の時にも荷物を受け取ることができます。
お金・契約の情報
※「-」と表示されているものは、実際は料金が発生するものもございます。詳細はお問い合わせください。
| 家賃 | 10万円 | 管理費・共益費 | 1.5万円 |
|---|---|---|---|
| 敷金 | 10万円 | 礼金 | 10万円 |
| 入居決定でお祝い金最大100,000円 | |||
| 保証金 | - | 償却・敷引 | 10万円 |
| 住宅保険料 | - | 更新料 | - |
| 保証会社利用 | 必須 | 保証会社名 | - |
| 保証会社費用 | - | 保証会社備考 | 保証会社利用必 初回保証料 賃料・管理費の50パーセント 1年毎の更新料16 000円 |
| 契約形態 | - | 契約期間 | - |
| 入居・引渡期間 | - | 現況 | - |
| 契約備考 | 【仲介手数料(賃料の0.55ヶ月)対象物件】初期費用の分割・クレジットカード決済可能です!お気軽にご相談下さい。 合計4.07万円(内訳:入居者サポート料2.2万円鍵交換代1.87万円) 更新料 新賃料1.00ヶ月分 1DK 普通借家2年 損保【2万円2年】 バストイレ別、バルコニー、エアコン、ガスコンロ対応、クロゼット、フローリング、シャワー付洗面台、TVインターホン、浴室乾燥機、オートロック、室内洗濯置、シューズボックス、システムキッチン、南向き、脱衣所、エレベーター、洗面所独立、洗面化粧台、2口コンロ、駐輪場、宅配ボックス、出窓、仲手0.55ヶ月、ディンプルキー、保証金不要、2駅利用可、3沿線以上利用可、駅徒歩5分以内、敷地内ごみ置き場、都市ガス 入居日:'26年5月中旬 | ||
部屋の情報
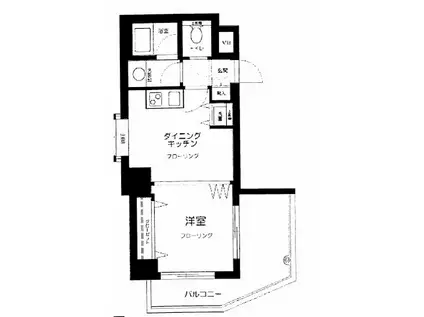
| 間取り | 1DK | 専有面積 | 28.78m2 |
|---|---|---|---|
| 所在階 / 向き | 7階 / 南 | バルコニー面積 | - |
| 水道 / ガス | - | ||
| 設備 | バス・トイレ別、2階以上、オートロック、テレビドアホン、宅配ボックス、浴室乾燥機、システムキッチン、エアコン、エレベーター、南向き、バルコニー、フローリング、洗髪洗面化粧台、2口コンロ、コンロ:ガス、洗濯機:室内 | ||
| 当社物件ID | 23392058 | ||
建物の情報
| 建物名 | パークウェル神田イースト | ||
|---|---|---|---|
| 所在地 | 東京都千代田区岩本町 | ||
| 交通 | 東京メトロ日比谷線 秋葉原駅 徒歩3分 都営新宿線 岩本町駅 徒歩3分 JR山手線 秋葉原駅 徒歩5分 | ||
| 階数 | 10階建 | 総戸数 | 36戸 |
| 築年月 | 2002年02月 / 築25年 | エレベーター | あり |
| 駐車場 | なし | バイク置き場 | - |
| 駐輪場 | あり | 管理人/管理会社 | - |
| 建物種別 | マンション | 建物構造 | RC(鉄筋コンクリート) |
この部屋の取扱い不動産会社
| 会社名 | (株)エールーム錦糸町店(SUUMO経由) | ||
|---|---|---|---|
| 所在地 | 東京都墨田区江東橋4-19-3錦糸町ミハマビル7階 | 交通 | - |
| 営業時間 | 10:00~19:00 | 定休日 | 毎週水曜日(祝日の場合は営業) |
| 免許番号 | 国土交通大臣9710 | 取引態様 | 仲介 |
| 不動産会社管理番号 | 100492642479 | 当社管理番号 | 89 |
| 所属団体 | (公社)東京都宅地建物取引業協会会員 | ||
| 公正取引協議会 | (公社)首都圏不動産公正取引協議会加盟 | ||
| 取扱い物件情報 | 物件詳細へ | ||
※各種情報と現状に差異がある場合は、現状優先となります。問い合わせをすることで、より詳しい条件、情報を確認する事ができます。
提供:(株)エールーム錦糸町店(SUUMO経由)
この物件が気になったら掲載期限まであと12日
パークウェル神田イーストに条件(家賃・エリア)が近い物件一覧
| 写真 | 家賃 管理費等 | 敷金 礼金 | 間取り 専有面積 | 築年数 | 最寄り駅 所在地 | キープ | 詳細 |
|---|---|---|---|---|---|---|---|
マンション ラクラス浅草(1LDK/7階) | |||||||
![]() | 15.7万円 1.2万円 | 15.7万円 15.7万円 | 1LDK 35.01m2 | 築7年 | 東武伊勢崎・大師線 浅草駅(東武・都営・メトロ) 徒歩9分 東京地下鉄銀座線 浅草駅(東武・都営・メトロ) 徒歩11分 東京都浅草線 浅草駅(東武・都営・メトロ) 徒歩14分 東京都台東区浅草7丁目 | 詳細を見る | |
マンション S-RESIDENCE 新御徒町 ウエスト(1K/2階) | |||||||
![]() | 12万円 1.4万円 | なし なし | 1K 25.5m2 | 築8年 | 東京都大江戸線 新御徒町駅 徒歩4分 東京地下鉄日比谷線 仲御徒町駅 徒歩8分 山手線 御徒町駅 徒歩11分 東京都台東区小島1丁目 | 詳細を見る | |
マンション プライムステイ築地(ワンルーム/9階) | |||||||
![]() | 8.2万円 7,000円 | 8.2万円 8.2万円 | ワンルーム 16.92m2 | 築40年 | 東京地下鉄日比谷線 築地駅 徒歩3分 東京地下鉄有楽町線 新富町駅(東京) 徒歩6分 東京都大江戸線 築地市場駅 徒歩9分 東京都中央区築地3丁目 | 詳細を見る | |
マンション BRILLIA IST 浅草橋(1LDK/9階) | |||||||
![]() | 15.6万円 1.5万円 | なし なし | 1LDK 33.2m2 | 築5年 | 総武・中央緩行線 浅草橋駅 徒歩2分 東京都浅草線 浅草橋駅 徒歩4分 総武本線 馬喰町駅 徒歩7分 東京都台東区浅草橋1丁目 | 詳細を見る | |
マンション プレサンスブルーム浅草(1K/5階) | |||||||
![]() | 11.1万円 2万円 | なし なし | 1K 25.8m2 | 築4年 | 東武伊勢崎・大師線 浅草駅(東武・都営・メトロ) 徒歩8分 東京地下鉄銀座線 浅草駅(東武・都営・メトロ) 徒歩8分 東京都浅草線 浅草駅(東武・都営・メトロ) 徒歩8分 東京都台東区浅草6丁目 | 詳細を見る | |
マンション ラング・タワー京橋(1K/4階) | |||||||
![]() | 13.3万円 1.1万円 | なし 13.3万円 | 1K 20.8m2 | 築24年 | 東京メトロ銀座線 京橋駅(東京) 徒歩1分 都営浅草線 宝町駅 徒歩4分 東京メトロ有楽町線 銀座一丁目駅 徒歩8分 東京都中央区京橋 | 詳細を見る | |
マンション パークアクシス東上野(1K/11階) | |||||||
![]() | 13.1万円 1万円 | 13.1万円 13.1万円 | 1K 25.83m2 | 築12年 | 東京地下鉄銀座線 稲荷町駅(東京) 徒歩7分 山手線 上野駅 徒歩10分 つくばエクスプレス 浅草駅(つくばEXP) 徒歩11分 東京都台東区東上野6丁目 | 詳細を見る | |
マンション A LA MAISON LUANA アラメゾンルアナ(1LDK/4階) | |||||||
![]() | 14.8万円 4,000円 | 14.8万円 14.8万円 | 1LDK 33.91m2 | 築3年 | 山手線 鶯谷駅 徒歩3分 東京地下鉄日比谷線 入谷駅(東京) 徒歩7分 東京地下鉄銀座線 上野駅 徒歩14分 東京都台東区根岸3丁目 | 詳細を見る | |









