賃貸マンション
京都市烏丸線 北大路駅 徒歩10分 3階建 築38年の賃貸物件情報(ワンルーム/3階)
| 家賃 | 管理費等 | 敷金 | 礼金 | 間取り | 専有面積 |
|---|---|---|---|---|---|
| 4.2万円 | 2,000円 | なし | 10万円 | ワンルーム | 28.92m2 |
入居決定でお祝い金最大100,000円
Point
北大路駅徒歩圏内 地下鉄徒歩圏商店街に面し生活便利。無料ランドリーあります。
提供:株式会社 京都ライフ 立命館大学前店(賃貸スモッカ経由)

詳細情報 京都市烏丸線 北大路駅 徒歩10分 3階建 築38年
物件紹介
京都市烏丸線北大路駅から徒歩10分にあり、駅近で通勤通学に便利なマンションです。
このお部屋は2階以上に位置しているので、通行人や周囲の住人からの視線が気になりにくく、防犯面でも安心です。
人気の角部屋で周囲の居住者の生活音も気になりにくく、また、フローリングのお部屋なのでお掃除もラクラク。
通信設備面ではBSアンテナがありますので、おうち時間も充実するでしょう(別途工事、契約料が必要な場合あり)。
このお部屋は2階以上に位置しているので、通行人や周囲の住人からの視線が気になりにくく、防犯面でも安心です。
人気の角部屋で周囲の居住者の生活音も気になりにくく、また、フローリングのお部屋なのでお掃除もラクラク。
通信設備面ではBSアンテナがありますので、おうち時間も充実するでしょう(別途工事、契約料が必要な場合あり)。
お金・契約の情報
※「-」と表示されているものは、実際は料金が発生するものもございます。詳細はお問い合わせください。
| 家賃 | 4.2万円 | 管理費・共益費 | 2,000円 |
|---|---|---|---|
| 敷金 | なし | 礼金 | 10万円 |
| 入居決定でお祝い金最大100,000円 | |||
| 保証金 | - | 償却・敷引 | - |
| 住宅保険料 | 住宅保険料あり | 更新料 | - |
| 契約形態 | - | 契約期間 | 2年 |
| 入居・引渡期間 | 即時 | 現況 | 空室 |
| 契約備考 | 地下鉄烏丸線・北大路駅が徒歩圏にあります。商店街にも面し生活便利な大宮通り沿い。各階無料ランドリーあります。 くらしーど24:16,500円 駐輪ステッカー代:250円 更新料:1ヶ月 保証会社:利用必須 初回:月額賃料等の50%、更新時:1.5万円/1年 その他設備/条件:最上階の物件、即入居可 | ||
部屋の情報
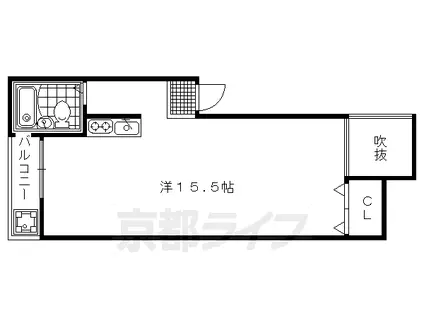
| 間取り | ワンルーム | 専有面積 | 28.92m2 |
|---|---|---|---|
| 間取り詳細 | 洋室(15.5帖) | ||
| 所在階 / 向き | 3階 / 東 | バルコニー面積 | - |
| 水道 / ガス | ガス【都市】 | ||
| 設備 | 2階以上、エアコン、角部屋、バルコニー、フローリング、コンロ:IH、BSアンテナ | ||
| 当社物件ID | 158762716 | ||
建物の情報
| 建物名 | 京都市烏丸線 北大路駅 徒歩10分 3階建 築38年 | ||
|---|---|---|---|
| 所在地 | 京都府京都市北区紫野上門前町 | ||
| 交通 | 京都市烏丸線 北大路駅 徒歩10分 京都市烏丸線 鞍馬口駅 徒歩21分 | ||
| 階数 | 3階建 | 総戸数 | - |
| 築年月 | 1988年03月 / 築38年 | エレベーター | - |
| 駐車場 | - | バイク置き場 | - |
| 駐輪場 | あり | 管理人/管理会社 | - |
| 建物種別 | マンション | 建物構造 | 気泡コン |
この部屋の取扱い不動産会社
| 会社名 | 株式会社 京都ライフ 立命館大学前店(賃貸スモッカ経由) | ||
|---|---|---|---|
| 所在地 | 京都市北区小松原北町26-5 | 交通 | - |
| 営業時間 | - | 定休日 | - |
| 免許番号 | 京都府知事(11)第6353号 | 取引態様 | 仲介 |
| 不動産会社管理番号 | kyotolife_07460-301-14 | 当社管理番号 | 463 |
| 所属団体 | 京都府宅地建物取引業協会\n公益社団法人近畿地区不動産公正取引協議会 | ||
| 公正取引協議会 | 全国宅地建物取引業保証協会 | ||
| 取扱い物件情報 | 物件詳細へ | ||
※各種情報と現状に差異がある場合は、現状優先となります。問い合わせをすることで、より詳しい条件、情報を確認する事ができます。
提供:株式会社 京都ライフ 立命館大学前店(賃貸スモッカ経由)
この物件が気になったら掲載期限まであと6日
京都市烏丸線 北大路駅 徒歩10分 3階建 築38年に条件(家賃・エリア)が近い物件一覧
| 写真 | 家賃 管理費等 | 敷金 礼金 | 間取り 専有面積 | 築年数 | 最寄り駅 所在地 | キープ | 詳細 |
|---|---|---|---|---|---|---|---|
アパート 京福北野線 北野白梅町駅 徒歩10分 築12年(1K/1階) | |||||||
![]() | 5.7万円 3,500円 | なし 5.7万円 | 1K 25.46m2 | 築12年 | 京福北野線 北野白梅町駅 徒歩10分 山陰本線 円町駅 徒歩24分 京都府京都市北区平野東柳町 | 詳細を見る | |
マンション 京都市烏丸線 北大路駅 徒歩10分 築20年(1K/2階) | |||||||
![]() | 6.8万円 6,000円 | 10万円 15万円 | 1K 27.08m2 | 築20年 | 京都市烏丸線 北大路駅 徒歩10分 京都市烏丸線 今出川駅 徒歩11分 京都府京都市上京区竹園町 | 詳細を見る | |
マンション 京福北野線 北野白梅町駅 徒歩12分 築17年(1K/2階) | |||||||
![]() | 6.5万円 7,000円 | なし 6.5万円 | 1K 20.81m2 | 築17年 | 京福北野線 北野白梅町駅 徒歩12分 京都市烏丸線 鞍馬口駅 徒歩33分 京都府京都市北区衣笠大祓町 | 詳細を見る | |
マンション カサミエーヌ紫野(2K/4階) | |||||||
![]() | 5.9万円 3,000円 | なし なし | 2K 31.2m2 | 築39年 | 京都市烏丸線 北大路駅 徒歩20分 京都府京都市北区紫野東舟岡町 | 詳細を見る | |
アパート 京都市烏丸線 今出川駅 徒歩10分 築37年(1K/1階) | |||||||
![]() | 3.9万円 3,000円 | なし なし | 1K 20m2 | 築37年 | 京都市烏丸線 今出川駅 徒歩10分 京都市烏丸線 鞍馬口駅 徒歩10分 京都府京都市上京区藪之下町 | 詳細を見る | |
アパート 近鉄京都線 向島駅 徒歩20分 築29年(ワンルーム/3階) | |||||||
![]() | 3万円 なし | 3万円 なし | ワンルーム 14m2 | 築29年 | 近鉄京都線 向島駅 徒歩20分 京阪電気鉄道宇治線 黄檗駅(京阪) 徒歩22分 京都府宇治市槇島町 | 詳細を見る | |
アパート 京福北野線 北野白梅町駅 徒歩12分 築37年(1K/2階) | |||||||
![]() | 3.6万円 2,000円 | 3.6万円 なし | 1K 21m2 | 築37年 | 京福北野線 北野白梅町駅 徒歩12分 京福北野線 等持院・立命館大学衣笠キャンパス前駅 徒歩12分 京都府京都市北区平野上柳町 | 詳細を見る | |
アパート 京都市烏丸線 北山駅(京都) 徒歩10分 築51年(2DK/1階) | |||||||
![]() | 4.7万円 2,000円 | 4.7万円 4.7万円 | 2DK 31.4m2 | 築51年 | 京都市烏丸線 北山駅(京都) 徒歩10分 京都市烏丸線 松ケ崎駅(京都) 徒歩21分 京都府京都市北区上賀茂狭間町 | 詳細を見る | |









