賃貸マンション
PLENDY浦和別所の賃貸物件情報(3LDK/1階)
| 家賃 | 管理費等 | 敷金 | 礼金 | 間取り | 専有面積 |
|---|---|---|---|---|---|
| 16.5万円 | 1万円 | なし | なし | 3LDK | 84m2 |
入居決定でお祝い金最大100,000円
Point
室内設備は浴室乾燥機・洗面所独立など豊富に揃っており、過ごしやすいお部屋になっております。
提供:ハウス・トゥ・ハウス・ネットサービス(株)南浦和店(SUUMO経由)

詳細情報 PLENDY浦和別所
物件紹介
PLENDY浦和別所はJR埼京線中浦和駅から徒歩10分にあり、駅近で通勤通学に便利なマンションです。
建物のエントランスはオートロックがついており、インターホンにはTVモニタもついているため、相手の顔を確認してから来客対応することができます。
人気の南向き・フローリングのお部屋。室内にはウォークインクローゼットがありますので、たくさんの荷物も効率的に収納ができます。キッチンはシステムキッチン仕様になっていますので、お料理好きの方にもぴったり。バス・トイレは別なので、のんびりお風呂タイムも楽しめるでしょう。また、雨の日でも浴室乾燥機を使えば、お洗濯も問題ありません。
通信設備面では、インターネットが無料で使えるので、月々の出費を抑えられるのも魅力です(別途工事等が必要な場合あり)。
建物にはエレベーターがついているので、重い荷物があっても安心。共用部には宅配ボックスが設定されているので、不在の時にも荷物を受け取ることができます。また、ペット飼育の相談ができますので、あなたの大切な家族の一員も快適に暮らせるか、ぜひ確認してみてください。
コンビニまで徒歩6分の場所にあり、日用品や食料品のお買い物にも便利です。
建物のエントランスはオートロックがついており、インターホンにはTVモニタもついているため、相手の顔を確認してから来客対応することができます。
人気の南向き・フローリングのお部屋。室内にはウォークインクローゼットがありますので、たくさんの荷物も効率的に収納ができます。キッチンはシステムキッチン仕様になっていますので、お料理好きの方にもぴったり。バス・トイレは別なので、のんびりお風呂タイムも楽しめるでしょう。また、雨の日でも浴室乾燥機を使えば、お洗濯も問題ありません。
通信設備面では、インターネットが無料で使えるので、月々の出費を抑えられるのも魅力です(別途工事等が必要な場合あり)。
建物にはエレベーターがついているので、重い荷物があっても安心。共用部には宅配ボックスが設定されているので、不在の時にも荷物を受け取ることができます。また、ペット飼育の相談ができますので、あなたの大切な家族の一員も快適に暮らせるか、ぜひ確認してみてください。
コンビニまで徒歩6分の場所にあり、日用品や食料品のお買い物にも便利です。
お金・契約の情報
※「-」と表示されているものは、実際は料金が発生するものもございます。詳細はお問い合わせください。
| 家賃 | 16.5万円 | 管理費・共益費 | 1万円 |
|---|---|---|---|
| 敷金 | なし | 礼金 | なし |
| 入居決定でお祝い金最大100,000円 | |||
| 保証金 | - | 償却・敷引 | - |
| 住宅保険料 | 1円 | 更新料 | - |
| 保証会社利用 | 必須 | 保証会社名 | - |
| 保証会社費用 | - | 保証会社備考 | 契約時:総賃料の50% 月額1% 以降年間10000円 |
| 契約形態 | - | 契約期間 | 2年 |
| 入居・引渡期間 | 2026年03月中旬 | 現況 | - |
| 入居可能条件 | ペット相談 | ||
| 契約備考 | ペット飼育時敷金積み増し料金(償却)有り 小型犬・中型犬・猫:賃料5000円 複数等、大型犬:賃料10000円 月額(PLENDYサポート 1650円) 鍵交換費用:16500 室内清掃費用:102850 その他設備/条件:室内洗濯機置き場、独立洗面台、クローゼット | ||
部屋の情報
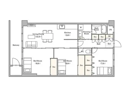
| 間取り | 3LDK | 専有面積 | 84m2 |
|---|---|---|---|
| 間取り詳細 | LDK(15.3帖)、洋室(8帖)、洋室(6帖)、洋室(7帖) | ||
| 所在階 / 向き | 1階 / 南 | バルコニー面積 | - |
| 水道 / ガス | 水道【公営】、ガス【都市】 | ||
| 設備 | バス・トイレ別、テレビドアホン、浴室乾燥機、ウォークインクローゼット、追い焚き、システムキッチン、エアコン、エレベーター、温水洗浄便座、バルコニー、フローリング、3口コンロ、コンロ:ガス、タイル張り | ||
| 当社物件ID | 160537494 | ||
建物の情報
| 建物名 | PLENDY浦和別所 | ||
|---|---|---|---|
| 所在地 | 埼玉県さいたま市南区別所3丁目 | ||
| 交通 | 埼京線 武蔵浦和駅 徒歩12分 埼京線 中浦和駅 徒歩13分 | ||
| 階数 | 5階建 | 総戸数 | - |
| 築年月 | 1992年04月 / 築34年 | エレベーター | あり |
| 駐車場 | 空有 1.54万円/月 | バイク置き場 | - |
| 駐輪場 | あり | 管理人/管理会社 | - |
| 周辺環境 | コンビニ 徒歩6分(463m) 中学校 埼玉大学教育学部附属中学校 徒歩8分(580m) 小学校 さいたま市立岸町小学校 徒歩8分(602m) 病院 徒歩4分(304m) その他 ドラッグストア その他 公園 その他 銀行 その他 * | ||
| 建物種別 | マンション | 建物構造 | RC(鉄筋コンクリート) |
この部屋の取扱い不動産会社
| 会社名 | ハウスコム埼玉株式会社 蕨店 | ||
|---|---|---|---|
| 所在地 | 埼玉県蕨市24-12宅建西口ビル1階 | 交通 | - |
| 営業時間 | 10:00~18:00 | 定休日 | - |
| 免許番号 | 埼玉県知事(1)第24888号 | 取引態様 | 仲介 |
| 不動産会社管理番号 | HC2-5374965-103-0061 | 当社管理番号 | 468 |
| 所属団体 | 、 | ||
| 取扱い物件情報 | 物件詳細へ | ||
※各種情報と現状に差異がある場合は、現状優先となります。問い合わせをすることで、より詳しい条件、情報を確認する事ができます。
提供:ハウスコム埼玉株式会社 蕨店
この物件が気になったら掲載期限まであと5日
PLENDY浦和別所に条件(家賃・エリア)が近い物件一覧
| 写真 | 家賃 管理費等 | 敷金 礼金 | 間取り 専有面積 | 築年数 | 最寄り駅 所在地 | キープ | 詳細 |
|---|---|---|---|---|---|---|---|
マンション 佐藤ビル(2DK/2階) | |||||||
![]() | 11万円 なし | なし 11万円 | 2DK 48.45m2 | 築36年 | 埼京線 南与野駅 徒歩2分 埼玉県さいたま市中央区鈴谷2丁目 | 詳細を見る | |
アパート ルアナ朝霞(2LDK/1階) | |||||||
![]() | 12.7万円 6,000円 | なし 25.4万円 | 2LDK 59.06m2 | 築4年 | 東武東上線 朝霞駅 徒歩15分 東武東上線 朝霞台駅 徒歩22分 東武東上線 和光市駅 徒歩35分 埼玉県朝霞市 | 詳細を見る | |
アパート ELEGANTE SERENO(1LDK/1階) | |||||||
![]() | 10.3万円 4,000円 | なし なし | 1LDK 40.99m2 | 築1年 | JR武蔵野線 越谷レイクタウン駅 徒歩19分 JR武蔵野線 吉川駅 徒歩22分 埼玉県越谷市東町 | 詳細を見る | |
マンション COTTON LIGHTS KAWAGOE(1LDK/2階) | |||||||
![]() | 12万円 6,000円 | なし 12万円 | 1LDK 42.87m2 | 築1年 | 西武新宿線 本川越駅 徒歩3分 JR川越線 川越駅 徒歩8分 東武東上線 川越市駅 徒歩8分 埼玉県川越市新富町 | 詳細を見る | |
アパート ロイヤルパレス II番館(2LDK/2階) | |||||||
![]() | 10.4万円 6,000円 | なし 10.4万円 | 2LDK 52.23m2 | 築12年 | 東武伊勢崎線 春日部駅 徒歩14分 東武野田線 藤の牛島駅 徒歩23分 東武伊勢崎線 一ノ割駅 徒歩26分 埼玉県春日部市粕壁東 | 詳細を見る | |
マンション クラッシィハウス浦和常盤(3LDK/15階) | |||||||
![]() | 21.8万円 1.2万円 | 43.6万円 21.8万円 | 3LDK 70.03m2 | 築16年 | JR京浜東北線 浦和駅 徒歩11分 JR京浜東北線 北浦和駅 徒歩17分 JR埼京線 中浦和駅 徒歩24分 埼玉県さいたま市浦和区常盤 | 詳細を見る | |
マンション コーポエンドレス(3SLDK/1階) | |||||||
![]() | 13.5万円 3,000円 | なし 13.5万円 | 3SLDK 84.06m2 | 築36年 | 埼玉高速鉄道 川口元郷駅 徒歩12分 JR京浜東北線 川口駅 徒歩16分 東京メトロ南北線 赤羽岩淵駅 徒歩22分 埼玉県川口市鳩ヶ谷本町 | 詳細を見る | |
マンション LIME RESIDENCE KAWAGUCHI イースト(1LDK/6階) | |||||||
![]() | 13万円 1万円 | なし なし | 1LDK 32.08m2 | 築1年 | 埼玉高速鉄道 川口元郷駅 徒歩7分 京浜東北・根岸線 川口駅 徒歩15分 埼玉県川口市本町1丁目 | 詳細を見る | |








