賃貸マンション
ウエストSQUAREの賃貸物件情報(2DK/5階)
| 家賃 | 管理費等 | 敷金 | 礼金 | 間取り | 専有面積 |
|---|---|---|---|---|---|
| 7.8万円 | 1万円 | なし | なし | 2DK | 38.45m2 |
入居決定でお祝い金最大100,000円
- 保証金
- -
- 償却・敷引
- -
- 築年数
- 築38年
- 所在階
- 5階
- 向き
- 北
- 交通
- 京都市烏丸線 今出川駅 徒歩17分
京都市烏丸線 丸太町駅(京都市営) 徒歩19分
- 所在地
- 京都府京都市上京区榎町
ウエストSQUARE
[地図を表示]
Point
ロフト付きのファミリー物件 コンビニ・スーパー・商店街近いです。ロフト付きファミリー物件
提供:株式会社 京都ライフ 二条駅前店(賃貸スモッカ経由)

詳細情報 ウエストSQUARE
物件紹介
ウエストSQUAREは京都市烏丸線今出川駅から徒歩17分にあるマンションです。
このお部屋は2階以上に位置しているので通行人や周囲の住人からの視線が気になりにくく、建物のエントランスはオートロックがついているので防犯性が高くなっています。
おしゃれなデザイナーズ物件!人気の角部屋で周囲の居住者の生活音も気になりにくく、また、フローリングのお部屋なのでお掃除もラクラク。室内にはウォークインクローゼットがありますので、たくさんの荷物も効率的に収納ができます。キッチンはシステムキッチン仕様になっていますので、お料理好きの方にもぴったり。また、バス・トイレは別で、のんびりお風呂タイムも楽しめるでしょう。
通信設備面では、インターネット接続が可能です(別途工事、契約料が必要な場合あり)。
建物にはエレベーターがついているので、重い荷物があっても安心。
このお部屋は2階以上に位置しているので通行人や周囲の住人からの視線が気になりにくく、建物のエントランスはオートロックがついているので防犯性が高くなっています。
おしゃれなデザイナーズ物件!人気の角部屋で周囲の居住者の生活音も気になりにくく、また、フローリングのお部屋なのでお掃除もラクラク。室内にはウォークインクローゼットがありますので、たくさんの荷物も効率的に収納ができます。キッチンはシステムキッチン仕様になっていますので、お料理好きの方にもぴったり。また、バス・トイレは別で、のんびりお風呂タイムも楽しめるでしょう。
通信設備面では、インターネット接続が可能です(別途工事、契約料が必要な場合あり)。
建物にはエレベーターがついているので、重い荷物があっても安心。
お金・契約の情報
※「-」と表示されているものは、実際は料金が発生するものもございます。詳細はお問い合わせください。
| 家賃 | 7.8万円 | 管理費・共益費 | 1万円 |
|---|---|---|---|
| 敷金 | なし | 礼金 | なし |
| 入居決定でお祝い金最大100,000円 | |||
| 保証金 | - | 償却・敷引 | - |
| 住宅保険料 | 住宅保険料あり | 更新料 | - |
| 契約形態 | - | 契約期間 | 2年 |
| 入居・引渡期間 | 2026年03月下旬 | 現況 | 賃貸中 |
| 契約備考 | 京都市上京区 西陣エリアのデザイナーズマンションです。嬉しい3点セパレートなど充実の設備。オートロックでセキュリティも安心です。コンビニ、スーパー、ドラッグストアなど近くにあって便利ですよ。光ファイバー対応しています。 スマイルパック:35,000円 口座振替手数料:330円 口座振替登録料:1,100円 更新料:無し 保証会社:利用必須 初回:月額賃料等の50%、更新時:2.2万円/2年 その他設備/条件:最上階の物件 | ||
部屋の情報
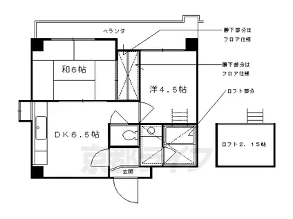
| 間取り | 2DK | 専有面積 | 38.45m2 |
|---|---|---|---|
| 間取り詳細 | 洋室(4.5帖)、和室(6帖)、DK(6.5帖)、その他(2.2帖) | ||
| 所在階 / 向き | 5階 / 北 | バルコニー面積 | - |
| 水道 / ガス | ガス【都市】 | ||
| 設備 | バス・トイレ別、2階以上、オートロック、インターネット対応、システムキッチン、エレベーター、角部屋、バルコニー、フローリング、ロフトあり、デザイナーズ、タイル張り | ||
| 当社物件ID | 6468407 | ||
建物の情報
| 建物名 | ウエストSQUARE | ||
|---|---|---|---|
| 所在地 | 京都府京都市上京区榎町 | ||
| 交通 | 京都市烏丸線 今出川駅 徒歩17分 京都市烏丸線 丸太町駅(京都市営) 徒歩19分 | ||
| 階数 | 5階建 | 総戸数 | - |
| 築年月 | 1988年10月 / 築38年 | エレベーター | あり |
| 駐車場 | - | バイク置き場 | - |
| 駐輪場 | あり | 管理人/管理会社 | - |
| 建物種別 | マンション | 建物構造 | RC(鉄筋コンクリート) |
この部屋の取扱い不動産会社
| 会社名 | 株式会社 京都ライフ 北大路店(賃貸スモッカ経由) | ||
|---|---|---|---|
| 所在地 | 京都市北区小山上総町11 | 交通 | - |
| 営業時間 | - | 定休日 | - |
| 免許番号 | 京都府知事(11)第6353号 | 取引態様 | 仲介 |
| 不動産会社管理番号 | kyotolife_22320-501-22 | 当社管理番号 | 463 |
| 所属団体 | 京都府宅地建物取引業協会\n公益社団法人近畿地区不動産公正取引協議会 | ||
| 公正取引協議会 | 全国宅地建物取引業保証協会 | ||
| 取扱い物件情報 | 物件詳細へ | ||
※各種情報と現状に差異がある場合は、現状優先となります。問い合わせをすることで、より詳しい条件、情報を確認する事ができます。
提供:株式会社 京都ライフ 北大路店(賃貸スモッカ経由)
この物件が気になったら掲載期限まであと6日
ウエストSQUAREに条件(家賃・エリア)が近い物件一覧
| 写真 | 家賃 管理費等 | 敷金 礼金 | 間取り 専有面積 | 築年数 | 最寄り駅 所在地 | キープ | 詳細 |
|---|---|---|---|---|---|---|---|
マンション 京阪電気鉄道宇治線 三室戸駅 徒歩2分 築39年(1LDK/2階) | |||||||
![]() | 6.9万円 7,000円 | なし 6.9万円 | 1LDK 50.35m2 | 築39年 | 京阪電気鉄道宇治線 三室戸駅 徒歩2分 京阪電気鉄道宇治線 宇治駅(京阪) 徒歩5分 京都府宇治市莵道 | 詳細を見る | |
マンション 近鉄京都線 伊勢田駅 徒歩10分 築19年(1K/3階) | |||||||
![]() | 5.9万円 4,600円 | なし 5.9万円 | 1K 30.98m2 | 築19年 | 近鉄京都線 伊勢田駅 徒歩10分 近鉄京都線 大久保駅(京都) 徒歩19分 京都府宇治市伊勢田町新中ノ荒 | 詳細を見る | |
アパート 阪急電鉄京都線 西山天王山駅 徒歩10分 築1年(1LDK/1階) | |||||||
![]() | 8.1万円 5,000円 | なし 12.15万円 | 1LDK 35.96m2 | 築1年 | 阪急電鉄京都線 西山天王山駅 徒歩10分 東海道本線 長岡京駅 徒歩22分 京都府長岡京市調子1丁目 | 詳細を見る | |
マンション 京都市烏丸線 今出川駅 徒歩18分 築4年(1K/1階) | |||||||
![]() | 5.9万円 8,000円 | なし 11.8万円 | 1K 22.36m2 | 築4年 | 京都市烏丸線 今出川駅 徒歩18分 京福北野線 北野白梅町駅 徒歩19分 京都府京都市上京区有馬町 | 詳細を見る | |
アパート 近鉄京都線 大久保駅(京都) 徒歩10分 新築(1LDK/1階) | |||||||
![]() | 9.05万円 5,500円 | なし 12万円 | 1LDK 35.06m2 | 新築 | 近鉄京都線 大久保駅(京都) 徒歩10分 近鉄京都線 久津川駅 徒歩14分 京都府宇治市大久保町 | 詳細を見る | |
マンション 近鉄京都線 小倉駅(京都) 徒歩2分 築37年(1LDK/6階) | |||||||
![]() | 6.5万円 6,000円 | 6.5万円 13万円 | 1LDK 36m2 | 築37年 | 近鉄京都線 小倉駅(京都) 徒歩2分 奈良線 JR小倉駅 徒歩7分 京都府宇治市小倉町 | 詳細を見る | |
一戸建て 奈良線 黄檗駅(JR) 徒歩4分 築33年(4LDK) | |||||||
![]() | 9.8万円 なし | なし 9.8万円 | 4LDK 126.99m2 | 築33年 | 奈良線 黄檗駅(JR) 徒歩4分 京阪電気鉄道宇治線 黄檗駅(京阪) 徒歩5分 京阪電気鉄道宇治線 三室戸駅 徒歩25分 京都府宇治市五ケ庄新開 | 詳細を見る | |
マンション 京阪電気鉄道宇治線 木幡駅(京阪) 徒歩2分 築35年(2LDK/3階) | |||||||
![]() | 6.5万円 7,600円 | なし 6.5万円 | 2LDK 51m2 | 築35年 | 京阪電気鉄道宇治線 木幡駅(京阪) 徒歩2分 奈良線 木幡駅(JR) 徒歩4分 京都府宇治市木幡西中 | 詳細を見る | |









