賃貸マンション
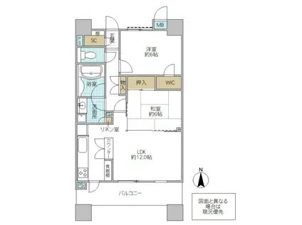
サンクレイドル水戸セレンティールの賃貸物件情報(2LDK/9階)
| 家賃 | 管理費等 | 敷金 | 礼金 | 間取り | 専有面積 |
|---|---|---|---|---|---|
| 11.5万円 | なし | 23万円 | 11.5万円 | 2LDK | 52.38m2 |
入居決定でお祝い金最大100,000円
Point
まずはお問い合わせ!
不動産会社は街のプロ、あなたに合った物件がきっと見つかります。
提供:香陵住販(株)駅南支店(SUUMO経由)

詳細情報 サンクレイドル水戸セレンティール
物件紹介
サンクレイドル水戸セレンティールはJR常磐線水戸駅から徒歩8分にあり、駅近で通勤通学に便利なマンションです。
このお部屋は2階以上に位置しているので、通行人や周囲の住人からの視線が気になりにくく、防犯面でも安心。建物のエントランスはオートロックがついており、インターホンにはTVモニタもついているため、相手の顔を確認してから来客対応することができます。
人気の南向き・フローリングのお部屋。室内にはウォークインクローゼットがありますので、たくさんの荷物も効率的に収納ができます。キッチンはシステムキッチン仕様になっていますので、お料理好きの方にもぴったり。また、バス・トイレは別で、のんびりお風呂タイムも楽しめるでしょう。
床暖房があり、冬も足元から暖かく快適に過ごすことができます。建物にはエレベーターがついているので、重い荷物があっても安心。共用部には宅配ボックスが設定されているので、不在の時にも荷物を受け取ることができます。また、ペット飼育の相談ができますので、あなたの大切な家族の一員も快適に暮らせるか、ぜひ確認してみてください。
このお部屋は2階以上に位置しているので、通行人や周囲の住人からの視線が気になりにくく、防犯面でも安心。建物のエントランスはオートロックがついており、インターホンにはTVモニタもついているため、相手の顔を確認してから来客対応することができます。
人気の南向き・フローリングのお部屋。室内にはウォークインクローゼットがありますので、たくさんの荷物も効率的に収納ができます。キッチンはシステムキッチン仕様になっていますので、お料理好きの方にもぴったり。また、バス・トイレは別で、のんびりお風呂タイムも楽しめるでしょう。
床暖房があり、冬も足元から暖かく快適に過ごすことができます。建物にはエレベーターがついているので、重い荷物があっても安心。共用部には宅配ボックスが設定されているので、不在の時にも荷物を受け取ることができます。また、ペット飼育の相談ができますので、あなたの大切な家族の一員も快適に暮らせるか、ぜひ確認してみてください。
お金・契約の情報
※「-」と表示されているものは、実際は料金が発生するものもございます。詳細はお問い合わせください。
| 家賃 | 11.5万円 | 管理費・共益費 | なし |
|---|---|---|---|
| 敷金 | 23万円 | 礼金 | 11.5万円 |
| 入居決定でお祝い金最大100,000円 | |||
| 保証金 | - | 償却・敷引 | - |
| 住宅保険料 | - | 更新料 | - |
| 契約形態 | - | 契約期間 | - |
| 入居・引渡期間 | 相談 | 現況 | - |
| 入居可能条件 | ペット相談 | ||
| 契約備考 | 水戸駅南口まで550m/ファミリーマートまで250m/保証会社利用必須 ペット可(小型犬・猫いずれか1匹):敷金1ヶ月増 畳の表替え予定(退去時入居者請求)/張替えは入居申し込みいただいてから行います(襖の張替えは任意) 設備外:照明器具(4基)・床暖房・食洗機・物干竿(2本)・洋室冷暖房(1基) 2LDK 二人入居可/ペット相談/事務所利用不可 損保【2万円2年】 バストイレ別、バルコニー、エアコン、ガスコンロ対応、クロゼット、シャワー付洗面台、TVインターホン、オートロック、室内洗濯置、シューズボックス、システムキッチン、南向き、追焚機能浴室、温水洗浄便座、エレベーター、洗面所独立、洗面化粧台、駐輪場、宅配ボックス、3口以上コンロ、ペット相談、分譲賃貸、二人入居相談、駅徒歩10分以内、敷地内ごみ置き場、都市ガス | ||
部屋の情報
| 間取り | 2LDK | 専有面積 | 52.38m2 |
|---|---|---|---|
| 所在階 / 向き | 9階 / 南 | バルコニー面積 | - |
| 水道 / ガス | - | ||
| 設備 | バス・トイレ別、2階以上、オートロック、テレビドアホン、宅配ボックス、追い焚き、システムキッチン、エアコン、エレベーター、温水洗浄便座、南向き、バルコニー、洗髪洗面化粧台、2口コンロ、コンロ:ガス、洗濯機:室内 | ||
| 当社物件ID | 159350914 | ||
建物の情報
| 建物名 | サンクレイドル水戸セレンティール | ||
|---|---|---|---|
| 所在地 | 茨城県水戸市城南 | ||
| 交通 | JR常磐線 水戸駅 徒歩8分 | ||
| 階数 | 地下1地上13階建 | 総戸数 | 72戸 |
| 築年月 | 2007年08月 / 築19年 | エレベーター | あり |
| 駐車場 | なし | バイク置き場 | - |
| 駐輪場 | あり | 管理人/管理会社 | - |
| 周辺環境 | その他 セブンイレブン(コンビニ)まで150m その他 水戸駅南口(その他)まで550m その他 ファミリーマート(その他)まで250m その他 ドラッグストア(その他)まで750m その他 クリーニング店(その他)まで600m その他 コインランドリー(その他)まで600m | ||
| 建物種別 | マンション | 建物構造 | RC(鉄筋コンクリート) |
この部屋の取扱い不動産会社
| 会社名 | 香陵住販(株)赤塚駅前支店(SUUMO経由) | ||
|---|---|---|---|
| 所在地 | 茨城県水戸市姫子2-352-28 | 交通 | - |
| 営業時間 | 9:30~18:00 | 定休日 | 水曜日 |
| 免許番号 | 国土交通大臣7026 | 取引態様 | 仲介 |
| 不動産会社管理番号 | 100454585611 | 当社管理番号 | 89 |
| 所属団体 | (公社)茨城県宅地建物取引業協会会員 | ||
| 公正取引協議会 | (公社)首都圏不動産公正取引協議会加盟 | ||
| 取扱い物件情報 | 物件詳細へ | ||
※各種情報と現状に差異がある場合は、現状優先となります。問い合わせをすることで、より詳しい条件、情報を確認する事ができます。
提供:香陵住販(株)赤塚駅前支店(SUUMO経由)
この物件が気になったら掲載期限まであと10日
サンクレイドル水戸セレンティールに条件(家賃・エリア)が近い物件一覧
| 写真 | 家賃 管理費等 | 敷金 礼金 | 間取り 専有面積 | 築年数 | 最寄り駅 所在地 | キープ | 詳細 |
|---|---|---|---|---|---|---|---|
アパート クレイプマートル・51 A(2LDK/2階) | |||||||
![]() | 6.9万円 5,000円 | なし 6.9万円 | 2LDK 65.5m2 | 築14年 | 茨城県水戸市東前町 | 詳細を見る | |
アパート マノワール A棟(3LDK/1階) | |||||||
![]() | 9.5万円 3,500円 | なし 9.5万円 | 3LDK 92.28m2 | 築26年 | ひたちなか海浜鉄道 金上駅 徒歩39分 JR常磐線 勝田駅 徒歩45分 茨城県ひたちなか市大字中根 | 詳細を見る | |
マンション スカイヒルズ元吉田(3LDK/2階) | |||||||
![]() | 7万円 なし | なし なし | 3LDK 70.38m2 | 築26年 | JR常磐線 水戸駅 徒歩38分 茨城県水戸市元吉田町 | 詳細を見る | |
アパート 平須スクエア(1LDK/1階) | |||||||
![]() | 16万円 4,300円 | 16万円 16万円 | 1LDK 72.61m2 | 築1年 | 茨城県水戸市平須町 | 詳細を見る | |
アパート グラシオッソ Ⅱ(2LDK/2階) | |||||||
![]() | 7.65万円 2,800円 | なし 10.65万円 | 2LDK 58.6m2 | 新築 | 水郡線 中菅谷駅 徒歩22分 茨城県那珂市菅谷 | 詳細を見る | |
マンション VINGT ADEL(3LDK/3階) | |||||||
![]() | 7万円 5,000円 | なし なし | 3LDK 71.61m2 | 築28年 | 茨城県水戸市末広町 | 詳細を見る | |
マンション グランスクエア赤塚(3DK/5階) | |||||||
![]() | 8.4万円 7,000円 | 16.8万円 なし | 3DK 66.07m2 | 築23年 | 茨城県水戸市河和田 | 詳細を見る | |








