賃貸マンション
エンクレスト吉塚駅前IIの賃貸物件情報(1LDK/7階)
| 家賃 | 管理費等 | 敷金 | 礼金 | 間取り | 専有面積 |
|---|---|---|---|---|---|
| 9.2万円 | なし | なし | 18.4万円 | 1LDK | 33.52m2 |
入居決定でお祝い金最大100,000円
- 保証金
- -
- 償却・敷引
- -
- 築年数
- 築18年
- 所在階
- 7階
- 向き
- 東
Point
☆JR鹿児島本線『吉塚駅』徒歩3分のインターネット無料マンション☆博多へのアクセス環境も良好!!スーパーサニー・パピヨンプラザなど充実の生活環境♪♪エアコン新品です♪
提供:(株)えんコーポレーション(SUUMO経由)

詳細情報 エンクレスト吉塚駅前II
物件紹介
エンクレスト吉塚駅前IIはJR鹿児島本線吉塚駅から徒歩3分にあり、駅近で通勤通学に便利なマンションです。
このお部屋は2階以上に位置しているので、通行人や周囲の住人からの視線が気になりにくく、防犯面でも安心。建物のエントランスはオートロックがついており、インターホンにはTVモニタもついているため、相手の顔を確認してから来客対応することができます。
おしゃれなデザイナーズ物件!人気の角部屋で周囲の居住者の生活音も気になりにくく、また、フローリングのお部屋なのでお掃除もラクラク。キッチンはシステムキッチン仕様になっていますので、お料理好きの方にもぴったり。また、バス・トイレは別で、のんびりお風呂タイムも楽しめるでしょう。
通信設備面では、インターネットが無料で使えるので、月々の出費を抑えられるのも魅力です。また、BSアンテナ・CSアンテナもありますので、おうち時間も充実するでしょう(別途工事、BS・CSの契約料等が必要な場合あり)。
建物にはエレベーターがついているので、重い荷物があっても安心。共用部には宅配ボックスが設定されているので、不在の時にも荷物を受け取ることができます。
このお部屋は2階以上に位置しているので、通行人や周囲の住人からの視線が気になりにくく、防犯面でも安心。建物のエントランスはオートロックがついており、インターホンにはTVモニタもついているため、相手の顔を確認してから来客対応することができます。
おしゃれなデザイナーズ物件!人気の角部屋で周囲の居住者の生活音も気になりにくく、また、フローリングのお部屋なのでお掃除もラクラク。キッチンはシステムキッチン仕様になっていますので、お料理好きの方にもぴったり。また、バス・トイレは別で、のんびりお風呂タイムも楽しめるでしょう。
通信設備面では、インターネットが無料で使えるので、月々の出費を抑えられるのも魅力です。また、BSアンテナ・CSアンテナもありますので、おうち時間も充実するでしょう(別途工事、BS・CSの契約料等が必要な場合あり)。
建物にはエレベーターがついているので、重い荷物があっても安心。共用部には宅配ボックスが設定されているので、不在の時にも荷物を受け取ることができます。
お金・契約の情報
※「-」と表示されているものは、実際は料金が発生するものもございます。詳細はお問い合わせください。
| 家賃 | 9.2万円 | 管理費・共益費 | なし |
|---|---|---|---|
| 敷金 | なし | 礼金 | 18.4万円 |
| 入居決定でお祝い金最大100,000円 | |||
| 保証金 | - | 償却・敷引 | - |
| 住宅保険料 | - | 更新料 | - |
| 契約形態 | - | 契約期間 | - |
| 入居・引渡期間 | 相談 | 現況 | - |
| 契約備考 | 通勤管理/弊社は福岡県内の全ての物件取り扱っております。単身様からファミリー様、法人契約、テナント出店、売買物件のご紹介等、不動産の事なら全てお任せください!!全ての方に満足して頂きますよう、精一杯サポート致します!!よろしくお願い致します(^^)/ 1LDK 二人入居可/事務所利用不可 普通借家2年 損保【要】 バストイレ別、バルコニー、エアコン、ガスコンロ対応、クロゼット、フローリング、TVインターホン、オートロック、室内洗濯置、シューズボックス、システムキッチン、角住戸、温水洗浄便座、脱衣所、エレベーター、洗面所独立、洗面化粧台、2口コンロ、宅配ボックス、BS・CS、防犯カメラ、独立型キッチン、全居室フローリング、デザイナーズ、2沿線利用可、ネット使用料不要、24時間換気システム、2駅利用可、3駅以上利用可、駅前、駅徒歩5分以内、駅徒歩10分以内、敷地内ごみ置き場、当社管理物件、プロパンガス、高速ネット対応 | ||
部屋の情報
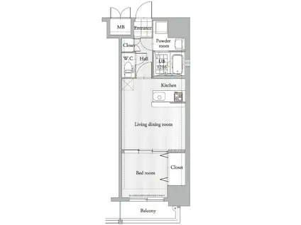
| 間取り | 1LDK | 専有面積 | 33.52m2 |
|---|---|---|---|
| 所在階 / 向き | 7階 / 東 | バルコニー面積 | - |
| 水道 / ガス | - | ||
| 設備 | バス・トイレ別、2階以上、オートロック、テレビドアホン、宅配ボックス、インターネット対応、システムキッチン、エアコン、エレベーター、温水洗浄便座、角部屋、バルコニー、フローリング、洗髪洗面化粧台、2口コンロ、コンロ:ガス、デザイナーズ、CSアンテナ、BSアンテナ、インターネット使用料無料、洗濯機:室内 | ||
| 当社物件ID | 20626706 | ||
建物の情報
| 建物名 | エンクレスト吉塚駅前II | ||
|---|---|---|---|
| 所在地 | 福岡県福岡市東区馬出 | ||
| 交通 | JR鹿児島本線 吉塚駅 徒歩3分 地下鉄箱崎線 馬出九大病院前駅 徒歩8分 地下鉄箱崎線 千代県庁口駅 徒歩15分 | ||
| 階数 | 12階建 | 総戸数 | 66戸 |
| 築年月 | 2009年03月 / 築18年 | エレベーター | あり |
| 駐車場 | なし | バイク置き場 | - |
| 駐輪場 | - | 管理人/管理会社 | - |
| 周辺環境 | その他 ローソン(コンビニ)まで213m | ||
| 建物種別 | マンション | 建物構造 | RC(鉄筋コンクリート) |
この部屋の取扱い不動産会社
| 会社名 | (株)えんコーポレーション(SUUMO経由) | ||
|---|---|---|---|
| 所在地 | 福岡県福岡市中央区天神2-7-21 天神プライム12階 | 交通 | - |
| 営業時間 | 10:00~17:00 | 定休日 | 無 |
| 免許番号 | 福岡県知事18110 | 取引態様 | 仲介 |
| 不動産会社管理番号 | 100492411412 | 当社管理番号 | 89 |
| 所属団体 | (公社)福岡県宅地建物取引業協会会員 | ||
| 公正取引協議会 | (一社)九州不動産公正取引協議会加盟 | ||
| 取扱い物件情報 | 物件詳細へ | ||
※各種情報と現状に差異がある場合は、現状優先となります。問い合わせをすることで、より詳しい条件、情報を確認する事ができます。
提供:(株)えんコーポレーション(SUUMO経由)
この物件が気になったら掲載期限まであと12日
エンクレスト吉塚駅前IIに条件(家賃・エリア)が近い物件一覧
| 写真 | 家賃 管理費等 | 敷金 礼金 | 間取り 専有面積 | 築年数 | 最寄り駅 所在地 | キープ | 詳細 |
|---|---|---|---|---|---|---|---|
マンション クレアールガーデンズ春日(3LDK/2階) | |||||||
![]() | 12万円 なし | 12万円 24万円 | 3LDK 85.39m2 | 築26年 | 博多南線 博多南駅 徒歩27分 鹿児島本線 春日駅(福岡) 徒歩32分 鹿児島本線 南福岡駅 徒歩37分 福岡県春日市昇町6丁目 | 詳細を見る | |
マンション サンバード春日(2LDK/5階) | |||||||
![]() | 7.9万円 1,000円 | なし 7.9万円 | 2LDK 60m2 | 築40年 | 西鉄天神大牟田線 白木原駅 徒歩14分 鹿児島本線 大野城駅 徒歩16分 鹿児島本線 春日駅(福岡) 徒歩19分 福岡県春日市春日公園3丁目 | 詳細を見る | |
アパート D-ROOM平田台4丁目(2LDK/1階) | |||||||
![]() | 10.1万円 5,000円 | なし 20.2万円 | 2LDK 56.4m2 | 新築 | 鹿児島本線 大野城駅 徒歩25分 鹿児島本線 水城駅 徒歩27分 西鉄天神大牟田線 下大利駅 徒歩28分 福岡県春日市平田台4丁目 | 詳細を見る | |
アパート エコロジースクエア須玖南(2LDK/1階) | |||||||
![]() | 7.1万円 3,800円 | なし 10.65万円 | 2LDK 59.81m2 | 築17年 | 西鉄天神大牟田線 井尻駅 徒歩19分 鹿児島本線 笹原駅 徒歩23分 鹿児島本線 南福岡駅 徒歩24分 福岡県春日市須玖南3丁目 | 詳細を見る | |
マンション 第20シティコート春日(2LDK/4階) | |||||||
![]() | 6.6万円 3,000円 | なし なし | 2LDK 60.45m2 | 築44年 | 鹿児島本線 春日駅(福岡) 徒歩10分 鹿児島本線 南福岡駅 徒歩13分 西鉄天神大牟田線 春日原駅 徒歩17分 福岡県春日市宝町2丁目 | 詳細を見る | |
マンション LIFEFIELD春日公園前(1LDK/5階) | |||||||
![]() | 7.4万円 4,000円 | なし なし | 1LDK 36.9m2 | 築6年 | 鹿児島本線 春日駅(福岡) 徒歩18分 西鉄天神大牟田線 春日原駅 徒歩22分 鹿児島本線 大野城駅 徒歩25分 福岡県春日市原町2丁目 | 詳細を見る | |
マンション 鹿児島本線 南福岡駅 徒歩17分 築38年(3LDK/2階) | |||||||
![]() | 6.5万円 5,000円 | なし 13万円 | 3LDK 73.34m2 | 築38年 | 鹿児島本線 南福岡駅 徒歩17分 鹿児島本線 春日駅(福岡) 徒歩19分 福岡県春日市 | 詳細を見る | |
マンション S-RESIDENCE中呉服(1LDK/2階) | |||||||
| 11.5万円 4,000円 | なし 11.5万円 | 1LDK 39.32m2 | 築4年 | 福岡市箱崎線 呉服町駅(福岡) 徒歩5分 福岡市箱崎線 千代県庁口駅 徒歩6分 福岡市空港線 中洲川端駅 徒歩11分 福岡県福岡市博多区中呉服町8-10 | 詳細を見る | ||








