賃貸マンション
ダイアパレス高麗本通1304号の賃貸物件情報(3LDK/13階)
| 家賃 | 管理費等 | 敷金 | 礼金 | 間取り | 専有面積 |
|---|---|---|---|---|---|
| 13万円 | 3,000円 | 26万円 | 13万円 | 3LDK | 72.85m2 |
入居決定でお祝い金最大100,000円
- 保証金
- -
- 償却・敷引
- -
- 築年数
- 築24年
- 所在階
- 13階
- 向き
- 南
Point
分譲賃貸になります。駐車場は機械式タイプで高さ制限があります。
提供:(株)川商ハウス本店(SUUMO経由)

詳細情報 ダイアパレス高麗本通1304号
物件紹介
ダイアパレス高麗本通1304号は九州新幹線鹿児島中央駅から徒歩10分にあり、駅近で通勤通学に便利なマンションです。
このお部屋は2階以上に位置しているので、通行人や周囲の住人からの視線が気になりにくく、防犯面でも安心。建物のエントランスはオートロックがついており、インターホンにはTVモニタもついているため、相手の顔を確認してから来客対応することができます。
人気の南向きのお部屋。また、フローリングなのでお掃除もラクラク。キッチンはシステムキッチン仕様になっていますので、お料理好きの方にもぴったり。バス・トイレは別なので、のんびりお風呂タイムも楽しめるでしょう。また、雨の日でも浴室乾燥機を使えば、お洗濯も問題ありません。
建物にはエレベーターがついているので、重い荷物があっても安心。共用部には宅配ボックスが設定されているので、不在の時にも荷物を受け取ることができます。また、ペット飼育の相談ができますので、あなたの大切な家族の一員も快適に暮らせるか、ぜひ確認してみてください。
このお部屋は2階以上に位置しているので、通行人や周囲の住人からの視線が気になりにくく、防犯面でも安心。建物のエントランスはオートロックがついており、インターホンにはTVモニタもついているため、相手の顔を確認してから来客対応することができます。
人気の南向きのお部屋。また、フローリングなのでお掃除もラクラク。キッチンはシステムキッチン仕様になっていますので、お料理好きの方にもぴったり。バス・トイレは別なので、のんびりお風呂タイムも楽しめるでしょう。また、雨の日でも浴室乾燥機を使えば、お洗濯も問題ありません。
建物にはエレベーターがついているので、重い荷物があっても安心。共用部には宅配ボックスが設定されているので、不在の時にも荷物を受け取ることができます。また、ペット飼育の相談ができますので、あなたの大切な家族の一員も快適に暮らせるか、ぜひ確認してみてください。
お金・契約の情報
※「-」と表示されているものは、実際は料金が発生するものもございます。詳細はお問い合わせください。
| 家賃 | 13万円 | 管理費・共益費 | 3,000円 |
|---|---|---|---|
| 敷金 | 26万円 | 礼金 | 13万円 |
| 入居決定でお祝い金最大100,000円 | |||
| 保証金 | - | 償却・敷引 | - |
| 住宅保険料 | - | 更新料 | - |
| 契約形態 | - | 契約期間 | - |
| 入居・引渡期間 | 相談 | 現況 | - |
| 入居可能条件 | ペット相談 | ||
| 契約備考 | 家賃保証会社契約必須、別途保証料が必要です。条件は要相談 タイミング等により条件が変動する可能性がありますので、詳しくはお問い合わせ下さい。 合計0.11万円(内訳:火災保険料(月額)1150円) 3LDK ペット相談 損保【要】 バストイレ別、バルコニー、エアコン、ガスコンロ対応、フローリング、TVインターホン、浴室乾燥機、オートロック、室内洗濯置、シューズボックス、システムキッチン、南向き、追焚機能浴室、温水洗浄便座、脱衣所、エレベーター、洗面所独立、洗面化粧台、駐輪場、宅配ボックス、外壁タイル張り、3口以上コンロ、対面式キッチン、防犯カメラ、ペット相談、分譲賃貸、バイク置場、2沿線利用可、LDK15畳以上、敷金2ヶ月、眺望良好、一部フローリング、耐火構造、始発駅、バス2路線、駅徒歩10分以内、バス停徒歩3分以内、高層階、敷地内ごみ置き場、和室、都市ガス、玄関収納、IT重説対応物件 敷金積み増し【ペット飼育の場合敷金3ヶ月(総額)】 | ||
部屋の情報
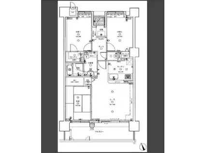
| 間取り | 3LDK | 専有面積 | 72.85m2 |
|---|---|---|---|
| 所在階 / 向き | 13階 / 南 | バルコニー面積 | - |
| 水道 / ガス | - | ||
| 設備 | バス・トイレ別、2階以上、オートロック、テレビドアホン、宅配ボックス、浴室乾燥機、追い焚き、システムキッチン、エアコン、エレベーター、温水洗浄便座、南向き、バルコニー、フローリング、洗髪洗面化粧台、2口コンロ、コンロ:ガス、洗濯機:室内 | ||
| 当社物件ID | 160463641 | ||
建物の情報
| 建物名 | ダイアパレス高麗本通1304号 | ||
|---|---|---|---|
| 所在地 | 鹿児島県鹿児島市高麗町 | ||
| 交通 | 九州新幹線 鹿児島中央駅 徒歩10分 JR指宿枕崎線 鹿児島中央駅 徒歩10分 | ||
| 階数 | 14階建 | 総戸数 | 1戸 |
| 築年月 | 2002年03月 / 築24年 | エレベーター | あり |
| 駐車場 | 空有 12000円/機械式駐 | バイク置き場 | あり |
| 駐輪場 | あり | 管理人/管理会社 | - |
| 周辺環境 | その他 ファミリーマート(コンビニ)まで300m その他 荒田小学校(小学校)まで614m その他 甲南中学校(中学校)まで358m その他 アミュプラザ(スーパー)まで980m その他 ドラック11(ドラッグストア)まで950m その他 アプライド(ショッピングセンター)まで1000m | ||
| 建物種別 | マンション | 建物構造 | SRC(鉄骨鉄筋コンクリート) |
この部屋の取扱い不動産会社
| 会社名 | (株)川商ハウス本店(SUUMO経由) | ||
|---|---|---|---|
| 所在地 | 鹿児島県鹿児島市新屋敷町 1-7 | 交通 | - |
| 営業時間 | 9:30~17:30 | 定休日 | 毎週水曜日 |
| 免許番号 | 鹿児島県知事483 | 取引態様 | 仲介 |
| 不動産会社管理番号 | 100490111191 | 当社管理番号 | 89 |
| 所属団体 | (公社)鹿児島県宅地建物取引業協会会員 | ||
| 公正取引協議会 | (一社)九州不動産公正取引協議会加盟 | ||
| 取扱い物件情報 | 物件詳細へ | ||
※各種情報と現状に差異がある場合は、現状優先となります。問い合わせをすることで、より詳しい条件、情報を確認する事ができます。
提供:(株)川商ハウス本店(SUUMO経由)
この物件が気になったら掲載期限まであと10日
ダイアパレス高麗本通1304号に条件(家賃・エリア)が近い物件一覧
| 写真 | 家賃 管理費等 | 敷金 礼金 | 間取り 専有面積 | 築年数 | 最寄り駅 所在地 | キープ | 詳細 |
|---|---|---|---|---|---|---|---|
マンション フォレストテラス(1LDK/7階) | |||||||
![]() | 8.5万円 5,000円 | 12.75万円 8.5万円 | 1LDK 36.27m2 | 新築 | 鹿児島市電谷山線 甲東中学校前駅 徒歩5分 鹿児島市電唐湊線 天文館通駅 徒歩6分 鹿児島県鹿児島市樋之口町 | 詳細を見る | |
マンション グリーンライフ鴨池(2LDK/1階) | |||||||
![]() | 8.5万円 なし | 17万円 なし | 2LDK 70.39m2 | 築35年 | 鹿児島市電谷山線 鴨池駅 徒歩3分 JR指宿枕崎線 郡元駅(JR) 徒歩9分 鹿児島県鹿児島市鴨池 | 詳細を見る | |
アパート シャーメゾン日之出(2LDK/2階) | |||||||
![]() | 13.4万円 8,000円 | なし 21.3万円 | 2LDK 65.5m2 | 築3年 | 鹿児島市電谷山線 二軒茶屋駅(鹿児島) 徒歩6分 鹿児島市電谷山線 宇宿一丁目駅 徒歩9分 鹿児島県鹿児島市日之出町 | 詳細を見る | |
マンション LANDMARK NISHIDAHONDORI(2LDK/8階) | |||||||
![]() | 15.1万円 4,000円 | 23.25万円 なし | 2LDK 67.97m2 | 築5年 | 鹿児島市唐湊線 高見橋駅 徒歩5分 鹿児島県鹿児島市西田1丁目 | 詳細を見る | |
マンション セレーノ鴨池(2LDK/3階) | |||||||
![]() | 15.7万円 5,000円 | 31.4万円 なし | 2LDK 66.11m2 | 新築 | 鹿児島市電谷山線 鴨池駅 徒歩1分 鹿児島県鹿児島市鴨池 | 詳細を見る | |
マンション シャーメゾン ブロート(2LDK/2階) | |||||||
![]() | 12.45万円 7,500円 | なし 13.2万円 | 2LDK 64.12m2 | 築1年 | 鹿児島市電唐湊線 工学部前駅 徒歩26分 鹿児島市電唐湊線 唐湊駅 徒歩27分 鹿児島市電唐湊線 神田駅(交通局前) 徒歩28分 鹿児島県鹿児島市紫原 | 詳細を見る | |
マンション メゾン・クロシェト(2LDK/5階) | |||||||
![]() | 7.9万円 2,500円 | 15.8万円 なし | 2LDK 65.12m2 | 築19年 | 鹿児島市電谷山線 二軒茶屋駅(鹿児島) 徒歩3分 JR指宿枕崎線 宇宿駅 徒歩7分 鹿児島県鹿児島市宇宿 | 詳細を見る | |
マンション アッサン川路(2LDK/4階) | |||||||
![]() | 8.6万円 3,000円 | 17.2万円 なし | 2LDK 61.4m2 | 築31年 | 鹿児島市電唐湊線 中郡駅(鹿児島) 徒歩4分 鹿児島市電谷山線 鴨池駅 徒歩5分 鹿児島県鹿児島市鴨池 | 詳細を見る | |









