賃貸マンション
ビレッジハウスつるみ1号棟の賃貸物件情報(3DK/3階)
| 家賃 | 管理費等 | 敷金 | 礼金 | 間取り | 専有面積 |
|---|---|---|---|---|---|
| 4.58万円 | なし | なし | なし | 3DK | 53.08m2 |
入居決定でお祝い金最大100,000円
- 保証金
- -
- 償却・敷引
- -
- 築年数
- 築31年
- 所在階
- 3階
- 向き
- 南
Point
まずはお問い合わせ!
不動産会社は街のプロ、あなたに合った物件がきっと見つかります。
提供:ビレッジハウス住まい相談センター

詳細情報 ビレッジハウスつるみ1号棟
物件紹介
ビレッジハウスつるみ1号棟は山陰本線八鹿駅から徒歩37分にあるマンションです。
このお部屋は2階以上に位置しているので、通行人や周囲の住人からの視線が気になりにくく、防犯面でも安心。インターホンにはTVモニタもついているため、相手の顔を確認してから来客対応することができます。
人気の南向きのお部屋。角部屋でもあるため、周囲の居住者の生活音も気になりにくい場所です。バス・トイレ別の仕様で、のんびりお風呂タイムも楽しめます。
このお部屋は2階以上に位置しているので、通行人や周囲の住人からの視線が気になりにくく、防犯面でも安心。インターホンにはTVモニタもついているため、相手の顔を確認してから来客対応することができます。
人気の南向きのお部屋。角部屋でもあるため、周囲の居住者の生活音も気になりにくい場所です。バス・トイレ別の仕様で、のんびりお風呂タイムも楽しめます。
お金・契約の情報
※「-」と表示されているものは、実際は料金が発生するものもございます。詳細はお問い合わせください。
| 家賃 | 4.58万円 | 管理費・共益費 | なし |
|---|---|---|---|
| 敷金 | なし | 礼金 | なし |
| フリーレント | 1ヶ月 | ||
| 入居決定でお祝い金最大100,000円 | |||
| 保証金 | - | 償却・敷引 | - |
| 住宅保険料 | 1万円(2年) | 更新料 | - |
| 保証会社利用 | - | 保証会社名 | - |
| 保証会社費用 | - | 保証会社備考 | - |
| 契約形態 | - | 契約期間 | - |
| 入居・引渡期間 | - | 現況 | 空室 |
| 入居可能条件 | 2人入居可、学生可 | ||
| 契約備考 | 契約種類:普通契約、24時間緊急対応、ウォシュレット、ウォームレット、洗面台 | ||
部屋の情報
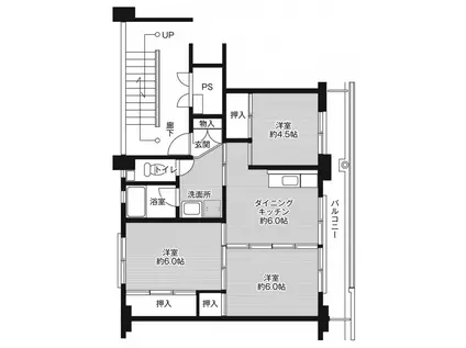
| 間取り | 3DK | 専有面積 | 53.08m2 |
|---|---|---|---|
| 所在階 / 向き | 3階 / 南 | バルコニー面積 | - |
| 水道 / ガス | - | ||
| 設備 | バス・トイレ別、テレビドアホン、追い焚き、エアコン、角部屋、バルコニー、2口コンロ、給湯、洗濯機:室内 | ||
| 当社物件ID | 29915500 | ||
建物の情報
| 建物名 | ビレッジハウスつるみ1号棟 | ||
|---|---|---|---|
| 所在地 | 兵庫県養父市八鹿町伊佐327-2 | ||
| 交通 | 山陰本線 八鹿駅 徒歩37分 山陰本線 江原駅 徒歩66分 山陰本線 国府駅(兵庫) 徒歩99分 | ||
| 階数 | 5階建 | 総戸数 | - |
| 築年月 | 1995年05月 / 築31年 | エレベーター | - |
| 駐車場 | 空有 円 | バイク置き場 | - |
| 駐輪場 | - | 管理人/管理会社 | 日勤 |
| 建物種別 | マンション | 建物構造 | RC(鉄筋コンクリート) |
この部屋の取扱い不動産会社
| 会社名 | ビレッジハウス住まい相談センター | ||
|---|---|---|---|
| 所在地 | 愛知県名古屋市中区大須4-10-32 上前津KDビル5階 | 交通 | 名城線「上前津駅」徒歩3分 |
| 営業時間 | 平日:9:00-18:30/土日祝:9:00-18:00 | 定休日 | 年中無休(年末年始を除く) |
| 免許番号 | 東京都知事(2)第100758号 | 取引態様 | 貸主 |
| 不動産会社管理番号 | 00013891991 | 当社管理番号 | 459 |
| 所属団体 | 公益社団法人東京都宅地建物取引業協会会員 日本賃貸住宅管理協会会員 | ||
| 取扱い物件情報 | 物件詳細へ | ||
※各種情報と現状に差異がある場合は、現状優先となります。問い合わせをすることで、より詳しい条件、情報を確認する事ができます。
提供:ビレッジハウス住まい相談センター
この物件が気になったら掲載期限まであと13日
ビレッジハウスつるみ1号棟に条件(家賃・エリア)が近い物件一覧
| 写真 | 家賃 管理費等 | 敷金 礼金 | 間取り 専有面積 | 築年数 | 最寄り駅 所在地 | キープ | 詳細 |
|---|---|---|---|---|---|---|---|
アパート ベルグランデヤサカ(2LDK/1階) | |||||||
![]() | 6.35万円 2,200円 | なし なし | 2LDK 60.86m2 | 築20年 | 兵庫県豊岡市弥栄町 | 詳細を見る | |
アパート フィーデルブリーゼI(2LDK/1階) | |||||||
![]() | 5.6万円 2,300円 | なし 5.6万円 | 2LDK 57.17m2 | 築18年 | 兵庫県豊岡市出石町町分 | 詳細を見る | |
アパート N3-コンドミニアム(2LDK/2階) | |||||||
![]() | 5.45万円 2,300円 | なし 5.45万円 | 2LDK 60.95m2 | 築19年 | 兵庫県豊岡市伏 | 詳細を見る | |
アパート メゾンフランC(1LDK/1階) | |||||||
![]() | 5.2万円 2,300円 | なし 5.2万円 | 1LDK 50.09m2 | 築14年 | JR山陰本線 江原駅 徒歩24分 兵庫県豊岡市日高町土居 | 詳細を見る | |
アパート ハイツオリーブ(2DK/1階) | |||||||
![]() | 3.5万円 なし | 5万円 5万円 | 2DK 34m2 | 築37年 | JR姫新線 播磨新宮駅 徒歩137分 兵庫県宍粟市山崎町段 | 詳細を見る | |
アパート メゾン・シャトンI(1LDK/1階) | |||||||
![]() | 6.75万円 4,000円 | なし 6.75万円 | 1LDK 47.81m2 | 新築 | 兵庫県朝来市和田山町法興寺 | 詳細を見る | |
アパート サウスERN COURT(ワンルーム/2階) | |||||||
![]() | 6.4万円 6,350円 | 6.4万円 5万円 | ワンルーム 26.7m2 | 築1年 | JR山陰本線 城崎温泉駅 徒歩5分 兵庫県豊岡市城崎町湯島 | 詳細を見る | |
マンション ユーミー和田山(3LDK/2階) | |||||||
![]() | 5.9万円 なし | なし なし | 3LDK 62.42m2 | 築28年 | JR山陰本線 和田山駅 徒歩20分 兵庫県朝来市和田山町枚田岡 | 詳細を見る | |









