賃貸マンション
シュエットの賃貸物件情報(1LDK/1階)
| 家賃 | 管理費等 | 敷金 | 礼金 | 間取り | 専有面積 |
|---|---|---|---|---|---|
| 6.5万円 | 5,000円 | 6.5万円 | 6.5万円 | 1LDK | 50.16m2 |
入居決定でお祝い金最大100,000円
- 保証金
- -
- 償却・敷引
- -
- 築年数
- 築13年
- 所在階
- 1階
- 向き
- 北
- 交通
- つくばエクスプレス 万博記念公園駅(茨城) 徒歩25分
つくばエクスプレス 研究学園駅 徒歩36分
つくばエクスプレス つくば駅 徒歩68分
- 所在地
- 茨城県つくば市島名
シュエット
[地図を表示]
Point
豊富な物件情報と知識を最新の情報でお伝え致します♪黄色い看板が目印のアパートマンション館へ☆
提供:アパートマンション館(株)守谷支店(SUUMO経由)

詳細情報 シュエット
物件紹介
シュエットはつくばエクスプレス万博記念公園駅から徒歩25分にあるマンションです。
建物のエントランスはオートロックがついており、インターホンにはTVモニタもついているため、相手の顔を確認してから来客対応することができます。
フローリングのお部屋なのでお掃除もラクラク。室内には人気のウォークインクローゼットがありますので、たくさんの荷物も効率的に収納ができます。バス・トイレ別の仕様で、のんびりお風呂タイムも楽しめます。
通信設備面ではBSアンテナがありますので、おうち時間も充実するでしょう(別途工事、契約料が必要な場合あり)。
建物のエントランスはオートロックがついており、インターホンにはTVモニタもついているため、相手の顔を確認してから来客対応することができます。
フローリングのお部屋なのでお掃除もラクラク。室内には人気のウォークインクローゼットがありますので、たくさんの荷物も効率的に収納ができます。バス・トイレ別の仕様で、のんびりお風呂タイムも楽しめます。
通信設備面ではBSアンテナがありますので、おうち時間も充実するでしょう(別途工事、契約料が必要な場合あり)。
お金・契約の情報
※「-」と表示されているものは、実際は料金が発生するものもございます。詳細はお問い合わせください。
| 家賃 | 6.5万円 | 管理費・共益費 | 5,000円 |
|---|---|---|---|
| 敷金 | 6.5万円 | 礼金 | 6.5万円 |
| 入居決定でお祝い金最大100,000円 | |||
| 保証金 | - | 償却・敷引 | - |
| 住宅保険料 | - | 更新料 | - |
| 保証会社利用 | 必須 | 保証会社名 | - |
| 保証会社費用 | - | 保証会社備考 | 保証会社利用必 初回保証料 月額総家賃の30% 月次更新料1.0% 最低保証料15 000円 |
| 契約形態 | - | 契約期間 | - |
| 入居・引渡期間 | 相談 | 現況 | - |
| 契約備考 | 合計2.2万円(内訳:鍵交換代2.2万円) 更新料 新賃料1.00ヶ月分 リブネス安心サポート 月額880円 1LDK 二人入居可/子供可 普通借家2年 損保【2.2万円2年】 バストイレ別、バルコニー、エアコン、ガスコンロ対応、クロゼット、フローリング、シャワー付洗面台、TVインターホン、オートロック、室内洗濯置、シューズボックス、追焚機能浴室、温水洗浄便座、脱衣所、洗面所独立、洗面化粧台、対面式キッチン、全居室収納、全居室洋室、保証人不要、敷金1ヶ月、全居室フローリング、浴室1坪以上、敷地内ごみ置き場、プロパンガス、洗面所にドア、ワイドバルコニー、室内物干機、ウォークスルークロゼット、玄関収納、BS、年内入居可、年度内入居可、礼金1ヶ月、保証会社利用可、通風良好 | ||
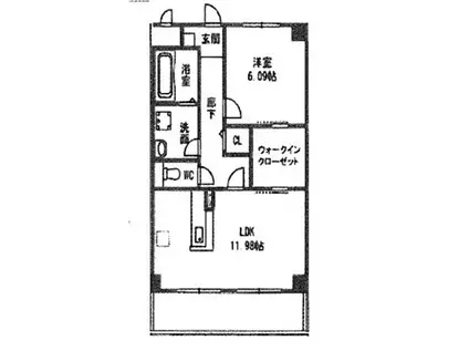
部屋の情報
| 間取り | 1LDK | 専有面積 | 50.16m2 |
|---|---|---|---|
| 所在階 / 向き | 1階 / 北 | バルコニー面積 | - |
| 水道 / ガス | - | ||
| 設備 | バス・トイレ別、オートロック、テレビドアホン、ウォークインクローゼット、追い焚き、エアコン、温水洗浄便座、バルコニー、フローリング、洗髪洗面化粧台、コンロ:ガス、BSアンテナ、洗濯機:室内 | ||
| 当社物件ID | 101348627 | ||
建物の情報
| 建物名 | シュエット | ||
|---|---|---|---|
| 所在地 | 茨城県つくば市島名 | ||
| 交通 | つくばエクスプレス 万博記念公園駅(茨城) 徒歩25分 つくばエクスプレス 研究学園駅 徒歩36分 つくばエクスプレス つくば駅 徒歩68分 | ||
| 階数 | 3階建 | 総戸数 | - |
| 築年月 | 2013年12月 / 築13年 | エレベーター | - |
| 駐車場 | 空有 3300円 | バイク置き場 | - |
| 駐輪場 | - | 管理人/管理会社 | - |
| 周辺環境 | その他 みどりの保育園(幼稚園・保育園)まで3900m その他 つくば市立 島名小学校(小学校)まで1547m その他 つくば市立 谷田部小学校(小学校)まで4372m その他 幸楽苑(万博記念公園駅前)(飲食店)まで1425m その他 ココス TXみどりの店(飲食店)まで3837m その他 マクドナルド 354つくば上横場店(飲食店)まで5122m | ||
| 建物種別 | マンション | 建物構造 | RC(鉄筋コンクリート) |
この部屋の取扱い不動産会社
| 会社名 | アパートマンション館(株)守谷支店(SUUMO経由) | ||
|---|---|---|---|
| 所在地 | 茨城県守谷市大柏 1005-71 | 交通 | - |
| 営業時間 | 9時半~18時半 土日祝10時~19時 | 定休日 | 水曜日 |
| 免許番号 | 国土交通大臣5966 | 取引態様 | 仲介 |
| 不動産会社管理番号 | 100489907297 | 当社管理番号 | 89 |
| 所属団体 | (公社)全日本不動産協会茨城県本部会員 | ||
| 公正取引協議会 | (公社)首都圏不動産公正取引協議会加盟 | ||
| 取扱い物件情報 | 物件詳細へ | ||
※各種情報と現状に差異がある場合は、現状優先となります。問い合わせをすることで、より詳しい条件、情報を確認する事ができます。
提供:アパートマンション館(株)守谷支店(SUUMO経由)
この物件が気になったら掲載期限まであと11日
シュエットに条件(家賃・エリア)が近い物件一覧
| 写真 | 家賃 管理費等 | 敷金 礼金 | 間取り 専有面積 | 築年数 | 最寄り駅 所在地 | キープ | 詳細 |
|---|---|---|---|---|---|---|---|
アパート リコルド(1K/2階) | |||||||
![]() | 5.7万円 3,500円 | なし 5.7万円 | 1K 30.32m2 | 築5年 | JR常磐線 土浦駅 徒歩24分 茨城県土浦市木田余 | 詳細を見る | |
アパート アウローラ(1LDK/1階) | |||||||
![]() | 6.6万円 5,000円 | なし なし | 1LDK 42.79m2 | 築1年 | 茨城県土浦市東真鍋町 | 詳細を見る | |
アパート レオネクストふじみ(1LDK/1階) | |||||||
![]() | 5.9万円 4,500円 | なし 5.9万円 | 1LDK 44.85m2 | 築14年 | つくばエクスプレス みらい平駅 徒歩21分 茨城県つくばみらい市 | 詳細を見る | |
アパート リヴィエールプレメゾン(2DK/1階) | |||||||
![]() | 5.4万円 なし | なし なし | 2DK 48m2 | 築24年 | 関東鉄道常総線 玉村駅 徒歩19分 関東鉄道常総線 石下駅 徒歩23分 関東鉄道常総線 下妻駅 徒歩82分 茨城県常総市本石下 | 詳細を見る | |
アパート フォレストハウス(2LDK/2階) | |||||||
![]() | 5.25万円 3,000円 | なし 5.25万円 | 2LDK 58.86m2 | 築18年 | 関東鉄道常総線 宗道駅 徒歩8分 茨城県下妻市宗道 | 詳細を見る | |
アパート 春日ホワイトコーポⅡ(1K/1階) | |||||||
![]() | 5万円 6,000円 | なし 5万円 | 1K 19.87m2 | 築44年 | つくばエクスプレス つくば駅 徒歩25分 つくばエクスプレス 研究学園駅 徒歩27分 茨城県つくば市春日3丁目 | 詳細を見る | |
アパート パルム弐番館(1LDK/1階) | |||||||
![]() | 4.7万円 2,000円 | 4.7万円 なし | 1LDK 40m2 | 築27年 | JR常磐線 ひたち野うしく駅 徒歩5分 茨城県牛久市ひたち野東 | 詳細を見る | |
アパート ホワイトウイングA(2DK/1階) | |||||||
![]() | 4.55万円 2,500円 | なし なし | 2DK 44.67m2 | 築21年 | 関東鉄道竜ヶ崎線 竜ケ崎駅 徒歩65分 茨城県龍ケ崎市白羽3丁目 | 詳細を見る | |




/105x80-f1-q70-wp1)




