賃貸アパート
アビタス関屋の賃貸物件情報(1K/1階)
| 家賃 | 管理費等 | 敷金 | 礼金 | 間取り | 専有面積 |
|---|---|---|---|---|---|
| 3万円 | なし | なし | 3万円 | 1K | 18.5m2 |
入居決定でお祝い金最大100,000円
Point
お部屋探しは【アパマンショップ明石通店】にお任せください!
提供:アパマンショップ小針店

詳細情報 アビタス関屋
物件紹介
アビタス関屋は越後線関屋駅から徒歩4分にあり、駅近で通勤通学に便利なアパートです。
このお部屋のインターホンにはTVモニタがついているため、相手の顔を確認してから来客対応することができます。
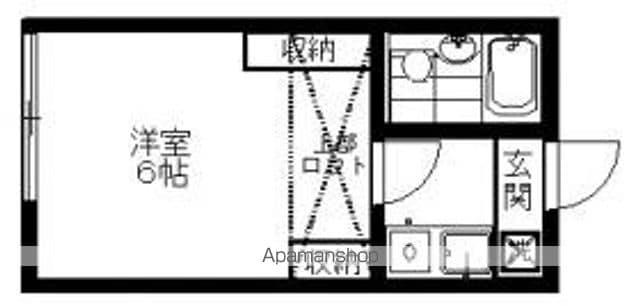
人気の南向き・フローリングのお部屋。室内には多目的に利用できるロフトもあり、お部屋のアレンジも自在です。キッチンはシステムキッチン仕様になっていますので、お料理好きの方にもぴったり。また、浴室乾燥機付きで、雨の日でもお洗濯は問題ありません。
通信設備面では、インターネット接続が可能です(別途工事、契約料が必要な場合あり)。
このお部屋のインターホンにはTVモニタがついているため、相手の顔を確認してから来客対応することができます。
人気の南向き・フローリングのお部屋。室内には多目的に利用できるロフトもあり、お部屋のアレンジも自在です。キッチンはシステムキッチン仕様になっていますので、お料理好きの方にもぴったり。また、浴室乾燥機付きで、雨の日でもお洗濯は問題ありません。
通信設備面では、インターネット接続が可能です(別途工事、契約料が必要な場合あり)。
お金・契約の情報
※「-」と表示されているものは、実際は料金が発生するものもございます。詳細はお問い合わせください。
| 家賃 | 3万円 | 管理費・共益費 | なし |
|---|---|---|---|
| 敷金 | なし | 礼金 | 3万円 |
| 入居決定でお祝い金最大100,000円 | |||
| 保証金 | - | 償却・敷引 | - |
| 住宅保険料 | 750円(2年) | 更新料 | - |
| 保証会社利用 | 必須 | 保証会社名 | エポス |
| 保証会社費用 | - | 保証会社備考 | 保証料:初回:60%(下限:15000円),月次:1.5%(下限:300円),更新:なし |
| 契約形態 | - | 契約期間 | 2年 |
| 入居・引渡期間 | 相談 | 現況 | - |
| 契約備考 | 単身者限定 LSC(課税対象) 1540円/室内消毒料(課税対象) 17050円 | ||
部屋の情報
| 間取り | 1K | 専有面積 | 18.5m2 |
|---|---|---|---|
| 間取り詳細 | 洋室(6帖) | ||
| 所在階 / 向き | 1階 / 南西 | バルコニー面積 | - |
| 水道 / ガス | ガス【都市】 | ||
| 設備 | テレビドアホン、浴室乾燥機、インターネット対応、システムキッチン、フローリング、ロフトあり、コンロ:IH、シャワー、給湯、洗濯機:室内 | ||
| 当社物件ID | 30694801 | ||
建物の情報
| 建物名 | アビタス関屋 | ||
|---|---|---|---|
| 所在地 | 新潟県新潟市中央区関屋大川前2丁目 | ||
| 交通 | 白新線 新潟駅 徒歩58分 | ||
| 階数 | 2階建 | 総戸数 | - |
| 築年月 | 1984年03月 / 築43年 | エレベーター | - |
| 駐車場 | - | バイク置き場 | - |
| 駐輪場 | - | 管理人/管理会社 | - |
| 周辺環境 | その他 関屋駅 徒歩5分(321m) その他 原信関屋店 徒歩7分(493m) その他 清水フードセンター関屋店 徒歩17分(1309m) その他 白山駅 徒歩22分(1708m) その他 上所駅 徒歩43分(3393m) その他 新潟駅 徒歩63分(4990m) | ||
| 建物種別 | アパート | 建物構造 | 木造 |
この部屋の取扱い不動産会社
| 会社名 | アパマンショップ新潟東店 | ||
|---|---|---|---|
| 所在地 | 新潟県新潟市東区牡丹山4丁目 1−34 | 交通 | - |
| 営業時間 | 09:00〜18:00(日・祝 10:00〜17:00) | 定休日 | 水曜日 |
| 免許番号 | 新潟県知事(8)3660 | 取引態様 | 仲介 |
| 不動産会社管理番号 | 69477467 | 当社管理番号 | 4 |
| 所属団体 | (公社)新潟県宅地建物取引業協会 | ||
| 公正取引協議会 | (公社) 首都圏不動産公正取引協議会加盟 | ||
| 取扱い物件情報 | 物件詳細へ | ||
※各種情報と現状に差異がある場合は、現状優先となります。問い合わせをすることで、より詳しい条件、情報を確認する事ができます。
提供:アパマンショップ新潟東店
この物件が気になったら掲載期限まであと13日
アビタス関屋に条件(家賃・エリア)が近い物件一覧
| 写真 | 家賃 管理費等 | 敷金 礼金 | 間取り 専有面積 | 築年数 | 最寄り駅 所在地 | キープ | 詳細 |
|---|---|---|---|---|---|---|---|
マンション リバティープラザ東堀I(1K/4階) | |||||||
![]() | 3万円 なし | 3万円 3万円 | 1K 31.02m2 | 築36年 | JR信越本線 新潟駅 徒歩37分 新潟県新潟市中央区 | 詳細を見る | |
アパート レオパレスEARLGREY(1K/1階) | |||||||
![]() | 4万円 4,000円 | なし なし | 1K 19.87m2 | 築21年 | 新潟県新潟市中央区 | 詳細を見る | |
アパート レオパレスイヴ(1K/1階) | |||||||
![]() | 4.8万円 4,000円 | なし なし | 1K 23.61m2 | 築18年 | 新潟県長岡市脇野町 | 詳細を見る | |
アパート マノワール・ヴェールI(2DK/1階) | |||||||
![]() | 4.2万円 2,200円 | なし なし | 2DK 44.34m2 | 築29年 | JR磐越西線 北五泉駅 徒歩2分 JR磐越西線 五泉駅 徒歩22分 新潟県五泉市白山 | 詳細を見る | |
アパート ノーブルカノン(1K/2階) | |||||||
![]() | 4.5万円 2,300円 | なし なし | 1K 31.26m2 | 築23年 | JR信越本線 越後石山駅 徒歩23分 JR白新線 新潟駅 徒歩38分 JR信越本線 新潟駅 徒歩38分 新潟県新潟市中央区高志 | 詳細を見る | |
マンション 関分ビル(3DK/3階) | |||||||
![]() | 4.2万円 2,000円 | 4.2万円 4.2万円 | 3DK 54.38m2 | 築52年 | JR越後線 関屋駅(新潟) 徒歩9分 JR越後線 青山駅(新潟) 徒歩18分 JR越後線 白山駅(新潟) 徒歩29分 新潟県新潟市中央区文京町 | 詳細を見る | |
アパート サンメゾン堀割(1K/2階) | |||||||
![]() | 3.5万円 なし | 3.5万円 なし | 1K 25.23m2 | 築36年 | JR越後線 関屋駅(新潟) 徒歩10分 JR越後線 青山駅(新潟) 徒歩15分 JR越後線 白山駅(新潟) 徒歩31分 新潟県新潟市中央区堀割町 | 詳細を見る | |
アパート ハイツ八潮(1K/1階) | |||||||
![]() | 3.5万円 なし | 3.5万円 3.5万円 | 1K 28m2 | 築39年 | JR越後線 白山駅(新潟) 徒歩14分 JR越後線 関屋駅(新潟) 徒歩29分 JR越後線 新潟駅 徒歩43分 新潟県新潟市中央区 | 詳細を見る | |


/105x80-f1-q70-wp1)





