賃貸マンション
GENOVIA世田谷砧IIの賃貸物件情報(1LDK/2階)
| 家賃 | 管理費等 | 敷金 | 礼金 | 間取り | 専有面積 |
|---|---|---|---|---|---|
| 16.1万円 | 1.5万円 | なし | なし | 1LDK | 34.22m2 |
入居決定でお祝い金最大100,000円
Point
まずはお問い合わせ!
不動産会社は街のプロ、あなたに合った物件がきっと見つかります。
提供:クラウドエステート 支店(株)BLAST MADE(SUUMO経由)

詳細情報 GENOVIA世田谷砧II
物件紹介
GENOVIA世田谷砧IIは小田急線祖師ケ谷大蔵駅から徒歩10分にあり、駅近で通勤通学に便利なマンションです。
このお部屋は2階以上に位置しているので、通行人や周囲の住人からの視線が気になりにくく、防犯面でも安心。建物のエントランスはオートロックがついており、インターホンにはTVモニタもついているため、相手の顔を確認してから来客対応することができます。
フローリングのお部屋なのでお掃除もラクラク。キッチンはシステムキッチン仕様になっていますので、お料理好きの方にもぴったり。バス・トイレは別なので、のんびりお風呂タイムも楽しめるでしょう。また、雨の日でも浴室乾燥機を使えば、お洗濯も問題ありません。
通信設備面では、インターネットが無料で使えるので、月々の出費を抑えられるのも魅力です。また、BSアンテナ・CSアンテナもありますので、おうち時間も充実するでしょう(別途工事、BS・CSの契約料等が必要な場合あり)。
建物にはエレベーターがついているので、重い荷物があっても安心。共用部には宅配ボックスが設定されているので、不在の時にも荷物を受け取ることができます。また、ペット飼育の相談ができますので、あなたの大切な家族の一員も快適に暮らせるか、ぜひ確認してみてください。
このお部屋は2階以上に位置しているので、通行人や周囲の住人からの視線が気になりにくく、防犯面でも安心。建物のエントランスはオートロックがついており、インターホンにはTVモニタもついているため、相手の顔を確認してから来客対応することができます。
フローリングのお部屋なのでお掃除もラクラク。キッチンはシステムキッチン仕様になっていますので、お料理好きの方にもぴったり。バス・トイレは別なので、のんびりお風呂タイムも楽しめるでしょう。また、雨の日でも浴室乾燥機を使えば、お洗濯も問題ありません。
通信設備面では、インターネットが無料で使えるので、月々の出費を抑えられるのも魅力です。また、BSアンテナ・CSアンテナもありますので、おうち時間も充実するでしょう(別途工事、BS・CSの契約料等が必要な場合あり)。
建物にはエレベーターがついているので、重い荷物があっても安心。共用部には宅配ボックスが設定されているので、不在の時にも荷物を受け取ることができます。また、ペット飼育の相談ができますので、あなたの大切な家族の一員も快適に暮らせるか、ぜひ確認してみてください。
お金・契約の情報
※「-」と表示されているものは、実際は料金が発生するものもございます。詳細はお問い合わせください。
| 家賃 | 16.1万円 | 管理費・共益費 | 1.5万円 |
|---|---|---|---|
| 敷金 | なし | 礼金 | なし |
| フリーレント | あり | ||
| 入居決定でお祝い金最大100,000円 | |||
| 保証金 | - | 償却・敷引 | - |
| 住宅保険料 | - | 更新料 | - |
| 保証会社利用 | 必須 | 保証会社名 | - |
| 保証会社費用 | - | 保証会社備考 | 保証会社利用必 一番手「RBI」初回保証料:40%(ペット飼育時60%) 外国籍:100%+外国籍サポート年間10 800円 (※審査により変更有・要確認) 外国籍家賃:クレカQR決済可(既存の保証料+2%/月) ★RBI安心サポート: 家賃保証月額料金+家財保険+家賃引落手数料+mamorocca →全て付帯して2 700円/月(税込) |
| 契約形態 | - | 契約期間 | - |
| 入居・引渡期間 | - | 現況 | - |
| 入居可能条件 | ペット相談 | ||
| 契約備考 | ◇仲介手数料最大無料【TEL】◇■賢くリーズナブルに引越しされたい方はクラウドエステートへ!!■入居費用のクレジットカード決済・分割もご利用可能です。■LINEでのやり取りをご希望の際は、当社HPより公式LINEを追加いただきご連絡頂いても対応は可能でございます。※写真は同物件の別部屋の場合もございます。 合計3.28万円(内訳:契約事務手数料1.1万円消臭抗菌サービス1.1万円外国籍サポートプラン1.08万円) 更新料 新賃料1.00ヶ月分 室内清掃費用 38500円 1LDK 二人入居可/子供可/ペット相談/フリーレント1ヶ月 普通借家2年 損保【要】 バストイレ別、エアコン、ガスコンロ対応、クロゼット、フローリング、TVインターホン、浴室乾燥機、オートロック、室内洗濯置、陽当り良好、シューズボックス、システムキッチン、追焚機能浴室、温水洗浄便座、脱衣所、エレベーター、洗面所独立、洗面化粧台、2口コンロ、駐輪場、宅配ボックス、礼金不要、2面採光、敷金不要、防犯カメラ、ペット相談、照明付、保証人不要、仲介手数料不要、2沿線利用可、ディンプルキー、CS、ネット専用回線、ネット使用料不要、キッチンに窓、フリーレント、眺望良好、ダブルロックキー、保証金不要、ルーフバルコニー、築2年以内、24時間換気システム、人感照明センサー、耐火構造、2駅利用可、駅徒歩10分以内、24時間ゴミ出し可、敷地内ごみ置き場、セキュリティ会社加入済、都市ガス、洗面所にドア、ダウンライト、BS、敷金・礼金不要、保証会社利用可、IT重説対応物件、通風良好 入居日:'26年1月中旬 | ||
部屋の情報
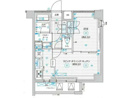
| 間取り | 1LDK | 専有面積 | 34.22m2 |
|---|---|---|---|
| 所在階 / 向き | 2階 / 東 | バルコニー面積 | 4m2 |
| 水道 / ガス | - | ||
| 設備 | バス・トイレ別、2階以上、オートロック、テレビドアホン、宅配ボックス、浴室乾燥機、追い焚き、インターネット対応、システムキッチン、エアコン、エレベーター、温水洗浄便座、バルコニー、フローリング、洗髪洗面化粧台、2口コンロ、コンロ:ガス、CSアンテナ、BSアンテナ、インターネット使用料無料、洗濯機:室内 | ||
| 当社物件ID | 160129698 | ||
建物の情報
| 建物名 | GENOVIA世田谷砧II | ||
|---|---|---|---|
| 所在地 | 東京都世田谷区砧 | ||
| 交通 | 小田急線 祖師ケ谷大蔵駅 徒歩10分 小田急線 成城学園前駅 徒歩18分 | ||
| 階数 | 5階建 | 総戸数 | 42戸 |
| 築年月 | 2025年10月 / 築1年 | エレベーター | あり |
| 駐車場 | なし | バイク置き場 | - |
| 駐輪場 | あり | 管理人/管理会社 | - |
| 周辺環境 | その他 ローソン 世田谷砧五丁目店(コンビニ)まで223m その他 砧五丁目小緑地(公園)まで323m その他 ココカラファイン 砧世田谷通り店(ドラッグストア)まで345m その他 成城警察署大蔵二丁目交番(警察署・交番)まで507m その他 まいばすけっと 砧店(スーパー)まで517m その他 三峯神社(その他)まで585m | ||
| 建物種別 | マンション | 建物構造 | RC(鉄筋コンクリート) |
この部屋の取扱い不動産会社
| 会社名 | クラウドエステート 支店(株)BLAST MADE(SUUMO経由) | ||
|---|---|---|---|
| 所在地 | 東京都渋谷区道玄坂1-22-8-9階 | 交通 | - |
| 営業時間 | 10時~19時 | 定休日 | なし |
| 免許番号 | 国土交通大臣10577 | 取引態様 | 仲介 |
| 不動産会社管理番号 | 100480422841 | 当社管理番号 | 89 |
| 所属団体 | (公社)東京都宅地建物取引業協会会員 | ||
| 公正取引協議会 | (公社)首都圏不動産公正取引協議会加盟 | ||
| 取扱い物件情報 | 物件詳細へ | ||
※各種情報と現状に差異がある場合は、現状優先となります。問い合わせをすることで、より詳しい条件、情報を確認する事ができます。
提供:クラウドエステート 支店(株)BLAST MADE(SUUMO経由)
この物件が気になったら掲載期限まであと10日
GENOVIA世田谷砧IIに条件(家賃・エリア)が近い物件一覧
| 写真 | 家賃 管理費等 | 敷金 礼金 | 間取り 専有面積 | 築年数 | 最寄り駅 所在地 | キープ | 詳細 |
|---|---|---|---|---|---|---|---|
アパート SEED SAVE PETIRASU Ⅲ(1LDK/1階) | |||||||
![]() | 11.5万円 1万円 | 23万円 11.5万円 | 1LDK 35.83m2 | 新築 | 東京モノレール羽田 昭和島駅 徒歩12分 京浜急行電鉄本線 大森町駅 徒歩18分 東京都大田区大森東5丁目 | 詳細を見る | |
マンション ラティエラ大森(1K/4階) | |||||||
![]() | 10.7万円 1万円 | 10.7万円 10.7万円 | 1K 25.01m2 | 築8年 | 京浜急行電鉄本線 平和島駅 徒歩7分 東京都大田区大森西2丁目 | 詳細を見る | |
マンション ラティエラ大鳥居(1K/12階) | |||||||
![]() | 12.3万円 1万円 | 12.3万円 12.3万円 | 1K 26.29m2 | 築4年 | 京浜急行電鉄空港線 大鳥居駅 徒歩6分 東京都大田区萩中3丁目 | 詳細を見る | |
マンション セジョリ鵜の木(1DK/1階) | |||||||
![]() | 10.5万円 1.5万円 | なし なし | 1DK 25.83m2 | 築4年 | 東急多摩川線 鵜の木駅 徒歩7分 東急多摩川線 沼部駅 徒歩11分 東急池上線 久が原駅 徒歩13分 東京都大田区鵜の木 | 詳細を見る | |
アパート フォレスタ世田谷(2LDK/2階) | |||||||
![]() | 18.5万円 1,000円 | 18.5万円 なし | 2LDK 47.7m2 | 築55年 | 東急池上線 雪が谷大塚駅 徒歩6分 東急東横線 田園調布駅 徒歩16分 東急目黒線 多摩川駅 徒歩16分 東京都世田谷区東玉川 | 詳細を見る | |
マンション ジェノヴィア蒲田3スカイガーデン(1K/4階) | |||||||
![]() | 12万円 1.5万円 | なし なし | 1K 25.41m2 | 築5年 | 京浜急行電鉄本線 京急蒲田駅 徒歩6分 京浜急行電鉄空港線 糀谷駅 徒歩10分 京浜東北・根岸線 蒲田駅 徒歩15分 東京都大田区南蒲田2丁目 | 詳細を見る | |
マンション アルファコート東六郷(1K/3階) | |||||||
![]() | 11.5万円 1万円 | 11.5万円 なし | 1K 25.72m2 | 築4年 | 京急本線 雑色駅 徒歩8分 京急空港線 糀谷駅 徒歩15分 京急空港線 京急蒲田駅 徒歩19分 東京都大田区東六郷 | 詳細を見る | |
マンション ESTRUTH MAGOME(1K/1階) | |||||||
![]() | 12.8万円 1万円 | なし なし | 1K 25.96m2 | 築1年 | 東京都浅草線 馬込駅 徒歩6分 東京都大田区南馬込1丁目 | 詳細を見る | |








