賃貸アパート
ベルメゾン星陵台の賃貸物件情報(2LDK/1階)
| 家賃 | 管理費等 | 敷金 | 礼金 | 間取り | 専有面積 |
|---|---|---|---|---|---|
| 11.4万円 | 9,000円 | 7.2万円 | 22.8万円 | 2LDK | 66.7m2 |
入居決定でお祝い金最大100,000円
- 保証金
- -
- 償却・敷引
- -
- 築年数
- 新築
- 所在階
- 1階
- 向き
- 南
Point
太陽光発電の電力を使用できるので、電気代節約。ZEH-Mとは年間のエネルギー量収支をプラスマイナスゼロに近づける住宅です。
提供:ミニミニFC垂水店シティネット(株)(SUUMO経由)

詳細情報 ベルメゾン星陵台
物件紹介
ベルメゾン星陵台は山陽電鉄本線霞ケ丘駅から徒歩17分にあるアパートです。
このお部屋のインターホンにはTVモニタがついているため、相手の顔を確認してから来客対応することができます。
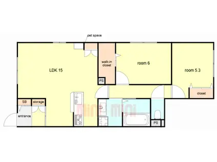
人気の南向き・フローリングのお部屋。角部屋でもあるため、周囲の居住者の生活音も気になりにくい場所です。室内にはウォークインクローゼットがありますので、たくさんの荷物も効率的に収納ができます。キッチンはシステムキッチン仕様になっていますので、お料理好きの方にもぴったり。バス・トイレは別なので、のんびりお風呂タイムも楽しめるでしょう。また、雨の日でも浴室乾燥機を使えば、お洗濯も問題ありません。
通信設備面では、インターネットが無料で使えるので、月々の出費を抑えられるのも魅力です。また、BSアンテナがありCATVにも対応しているので、おうち時間も充実するでしょう(別途工事、BS・CATVの契約料等が必要な場合あり)。
共用部には宅配ボックスが設定されているので、不在の時にも荷物を受け取ることができます。また、ペット飼育の相談ができますので、あなたの大切な家族の一員も快適に暮らせるか、ぜひ確認してみてください。
このお部屋のインターホンにはTVモニタがついているため、相手の顔を確認してから来客対応することができます。
人気の南向き・フローリングのお部屋。角部屋でもあるため、周囲の居住者の生活音も気になりにくい場所です。室内にはウォークインクローゼットがありますので、たくさんの荷物も効率的に収納ができます。キッチンはシステムキッチン仕様になっていますので、お料理好きの方にもぴったり。バス・トイレは別なので、のんびりお風呂タイムも楽しめるでしょう。また、雨の日でも浴室乾燥機を使えば、お洗濯も問題ありません。
通信設備面では、インターネットが無料で使えるので、月々の出費を抑えられるのも魅力です。また、BSアンテナがありCATVにも対応しているので、おうち時間も充実するでしょう(別途工事、BS・CATVの契約料等が必要な場合あり)。
共用部には宅配ボックスが設定されているので、不在の時にも荷物を受け取ることができます。また、ペット飼育の相談ができますので、あなたの大切な家族の一員も快適に暮らせるか、ぜひ確認してみてください。
お金・契約の情報
※「-」と表示されているものは、実際は料金が発生するものもございます。詳細はお問い合わせください。
| 家賃 | 11.4万円 | 管理費・共益費 | 9,000円 |
|---|---|---|---|
| 敷金 | 7.2万円 | 礼金 | 22.8万円 |
| 入居決定でお祝い金最大100,000円 | |||
| 保証金 | - | 償却・敷引 | - |
| 住宅保険料 | - | 更新料 | - |
| 保証会社利用 | 必須 | 保証会社名 | - |
| 保証会社費用 | - | 保証会社備考 | 保証会社利用必 旭化成不動産レジデンス株式会社(旭化成)利用必須 初回保証料:総賃料50%・更新2万円/2年 |
| 契約形態 | - | 契約期間 | - |
| 入居・引渡期間 | - | 現況 | - |
| 入居可能条件 | ペット相談 | ||
| 契約備考 | クリーニング費71500円/退去時更新料0.5ヵ月駐車場セット契約マイコンシェル(2年毎):18000円/初回子供可※楽器,原付,バイク不可 ※駐輪各戸2台まで(駐輪シール要) 省エネルギー性能表示(BELS)における評価取得物件(2025年12月10日認証取得) 2LDK 二人入居可/ペット相談 損保【2.04万円2年】 バストイレ別、エアコン、フローリング、TVインターホン、浴室乾燥機、室内洗濯置、シューズボックス、システムキッチン、追焚機能浴室、角住戸、温水洗浄便座、洗面所独立、駐輪場、宅配ボックス、CATV、3口以上コンロ、対面式キッチン、ペット相談、全居室洋室、ウォークインクロゼット、二人入居相談、2沿線利用可、ネット使用料不要、床下収納、雨戸、複層ガラス、2駅利用可、3駅以上利用可、敷地内ごみ置き場、都市ガス、シャッター、BS、IT重説対応物件、初期費用カード決済可 入居日:'26年7月上旬 | ||
部屋の情報
| 間取り | 2LDK | 専有面積 | 66.7m2 |
|---|---|---|---|
| 所在階 / 向き | 1階 / 南 | バルコニー面積 | - |
| 水道 / ガス | - | ||
| 設備 | バス・トイレ別、テレビドアホン、宅配ボックス、浴室乾燥機、ウォークインクローゼット、追い焚き、インターネット対応、システムキッチン、エアコン、温水洗浄便座、南向き、角部屋、フローリング、床下収納、洗髪洗面化粧台、2口コンロ、CATV、BSアンテナ、インターネット使用料無料、洗濯機:室内 | ||
| 当社物件ID | 160532294 | ||
建物の情報
| 建物名 | ベルメゾン星陵台 | ||
|---|---|---|---|
| 所在地 | 兵庫県神戸市垂水区星陵台 | ||
| 交通 | 山陽電鉄本線 霞ケ丘駅(兵庫) 徒歩17分 JR山陽本線 舞子駅 徒歩19分 山陽電鉄本線 舞子公園駅 徒歩21分 | ||
| 階数 | 2階建 | 総戸数 | 4戸 |
| 築年月 | 2026年07月 / 新築 | エレベーター | - |
| 駐車場 | 空有 16500円 | バイク置き場 | - |
| 駐輪場 | あり | 管理人/管理会社 | - |
| 周辺環境 | その他 神戸市立東舞子小学校(小学校)まで661m その他 コープミニ東舞子(スーパー)まで586m | ||
| 建物種別 | アパート | 建物構造 | 気泡コン |
この部屋の取扱い不動産会社
| 会社名 | ミニミニFC兵庫店シティネット(株)(SUUMO経由) | ||
|---|---|---|---|
| 所在地 | 兵庫県神戸市兵庫区塚本通7-1-24 | 交通 | - |
| 営業時間 | 10:00~18:00 | 定休日 | - |
| 免許番号 | 兵庫県知事10417 | 取引態様 | 仲介 |
| 不動産会社管理番号 | 100492721568 | 当社管理番号 | 89 |
| 所属団体 | (公社)全日本不動産協会兵庫県本部会員 | ||
| 公正取引協議会 | (公社)近畿地区不動産公正取引協議会加盟 | ||
| 取扱い物件情報 | 物件詳細へ | ||
※各種情報と現状に差異がある場合は、現状優先となります。問い合わせをすることで、より詳しい条件、情報を確認する事ができます。
提供:ミニミニFC兵庫店シティネット(株)(SUUMO経由)
この物件が気になったら掲載期限まであと11日
ベルメゾン星陵台に条件(家賃・エリア)が近い物件一覧
| 写真 | 家賃 管理費等 | 敷金 礼金 | 間取り 専有面積 | 築年数 | 最寄り駅 所在地 | キープ | 詳細 |
|---|---|---|---|---|---|---|---|
一戸建て 神戸電鉄粟生線 三木上の丸駅 徒歩2分 築53年(2DK) | |||||||
![]() | 7万円 なし | なし 14万円 | 2DK 52.99m2 | 築53年 | 神戸電鉄粟生線 三木上の丸駅 徒歩2分 神戸電鉄粟生線 三木駅(神戸電鉄) 徒歩12分 神戸電鉄粟生線 恵比須駅 徒歩14分 兵庫県三木市上の丸町 | 詳細を見る | |
マンション シーサイドパストラル林崎II(2LDK/1階) | |||||||
![]() | 8.6万円 6,000円 | なし 20万円 | 2LDK 67.12m2 | 築29年 | 山陽電気鉄道本線 林崎松江海岸駅 徒歩3分 山陽電気鉄道本線 西新町駅 徒歩23分 山陽本線 西明石駅 徒歩30分 兵庫県明石市林崎町3丁目 | 詳細を見る | |
アパート グランドールⅠ(2LDK/2階) | |||||||
![]() | 8.9万円 3,000円 | なし 8.9万円 | 2LDK 56.48m2 | 築1年 | 神戸電鉄粟生線 広野ゴルフ場前駅 徒歩10分 兵庫県三木市志染町東自由が丘1丁目 | 詳細を見る | |
アパート ガーデンハウス・KⅤ(1K/1階) | |||||||
![]() | 7.4万円 3,500円 | なし 7.4万円 | 1K 33.2m2 | 新築 | 東海道・山陽新幹線 西明石駅 徒歩8分 山陽本線 西明石駅 徒歩8分 山陽電気鉄道本線 藤江駅 徒歩16分 兵庫県明石市西明石西町2丁目 | 詳細を見る | |
アパート LA MAISON林崎(2LDK/1階) | |||||||
![]() | 12.6万円 7,000円 | 3万円 25.2万円 | 2LDK 58.93m2 | 築1年 | 山陽電気鉄道本線 林崎松江海岸駅 徒歩9分 山陽電気鉄道本線 西新町駅 徒歩12分 兵庫県明石市林崎1 | 詳細を見る | |
アパート D-ROOM高丘(3LDK/2階) | |||||||
![]() | 11万円 6,600円 | 3万円 25万円 | 3LDK 64.88m2 | 築4年 | 兵庫県明石市大久保町高丘7丁目 | 詳細を見る | |
アパート ヒカルサ稲美天満Ⅱ(1LDK/1階) | |||||||
![]() | 7.65万円 3,900円 | なし 7.65万円 | 1LDK 44.7m2 | 築1年 | 兵庫県加古郡稲美町六分一 | 詳細を見る | |
アパート ヒカルサ稲美天満Ⅰ(1LDK/1階) | |||||||
![]() | 7.55万円 3,900円 | なし 7.55万円 | 1LDK 44.7m2 | 築1年 | 兵庫県加古郡稲美町六分一 | 詳細を見る | |








