賃貸アパート
KEIAI RESIDENCE 東大宮IIの賃貸物件情報(1LDK/1階)
| 家賃 | 管理費等 | 敷金 | 礼金 | 間取り | 専有面積 |
|---|---|---|---|---|---|
| 7.5万円 | 3,500円 | なし | 7.5万円 | 1LDK | 27.32m2 |
入居決定でお祝い金最大100,000円
- 保証金
- -
- 償却・敷引
- -
- 築年数
- 新築
- 所在階
- 1階
- 向き
- -
Point
【クレジットカードのご利用と、クレジットカードでの分割払い可能】【家具・家電付きプラン有り】入居日のご相談や、初期費用の概算など、当物件のお困り事や、気になる点はお問合せください。
提供:レインボーホーム 虹久昇コレクション(有)大宮店(SUUMO経由)

詳細情報 KEIAI RESIDENCE 東大宮II
物件紹介
KEIAI RESIDENCE 東大宮IIはJR宇都宮線東大宮駅から徒歩10分にあり、駅近で通勤通学に便利なアパートです。
建物のエントランスはオートロックがついており、インターホンにはTVモニタもついているため、相手の顔を確認してから来客対応することができます。
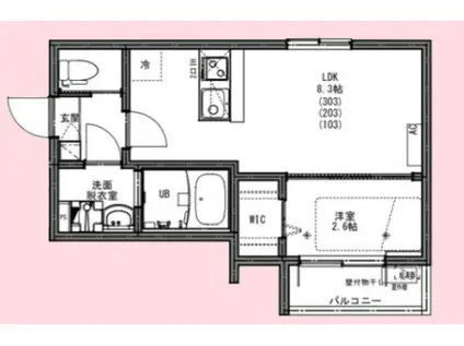
人気の角部屋で周囲の居住者の生活音も気になりにくく、また、フローリングのお部屋なのでお掃除もラクラク。室内にはウォークインクローゼットがありますので、たくさんの荷物も効率的に収納ができます。キッチンはシステムキッチン仕様になっていますので、お料理好きの方にもぴったり。バス・トイレは別なので、のんびりお風呂タイムも楽しめるでしょう。また、雨の日でも浴室乾燥機を使えば、お洗濯も問題ありません。
通信設備面では、インターネットが無料で使えるので、月々の出費を抑えられるのも魅力です。また、BSアンテナ・CSアンテナがありCATVにも対応しているので、おうち時間も充実するでしょう(別途工事、BS・CS・CATVの契約料等が必要な場合あり)。
共用部には宅配ボックスが設定されているので、不在の時にも荷物を受け取ることができます。
建物のエントランスはオートロックがついており、インターホンにはTVモニタもついているため、相手の顔を確認してから来客対応することができます。
人気の角部屋で周囲の居住者の生活音も気になりにくく、また、フローリングのお部屋なのでお掃除もラクラク。室内にはウォークインクローゼットがありますので、たくさんの荷物も効率的に収納ができます。キッチンはシステムキッチン仕様になっていますので、お料理好きの方にもぴったり。バス・トイレは別なので、のんびりお風呂タイムも楽しめるでしょう。また、雨の日でも浴室乾燥機を使えば、お洗濯も問題ありません。
通信設備面では、インターネットが無料で使えるので、月々の出費を抑えられるのも魅力です。また、BSアンテナ・CSアンテナがありCATVにも対応しているので、おうち時間も充実するでしょう(別途工事、BS・CS・CATVの契約料等が必要な場合あり)。
共用部には宅配ボックスが設定されているので、不在の時にも荷物を受け取ることができます。
お金・契約の情報
※「-」と表示されているものは、実際は料金が発生するものもございます。詳細はお問い合わせください。
| 家賃 | 7.5万円 | 管理費・共益費 | 3,500円 |
|---|---|---|---|
| 敷金 | なし | 礼金 | 7.5万円 |
| 入居決定でお祝い金最大100,000円 | |||
| 保証金 | - | 償却・敷引 | - |
| 住宅保険料 | - | 更新料 | - |
| 保証会社利用 | 必須 | 保証会社名 | - |
| 保証会社費用 | - | 保証会社備考 | 保証会社利用必 初回保証料:総賃料の50%。月額保証料:900円 |
| 契約形態 | - | 契約期間 | - |
| 入居・引渡期間 | - | 現況 | - |
| 契約備考 | 仲介手数料(賃料の1.10ヵ月)の50%OFF対象物件。★迅速に対応可能な電話でのお問い合わせがおススメです。(担当者直通)★メール問い合わせの際は、電話番号を記載して頂きますと、弊社から電話でご案内差し上げます。短期違約金有(半年未満で賃料2ヶ月、1年未満で賃料1ヶ月) 合計4.4万円(内訳:契約事務手数料1.65万円鍵交換代2.75万円) 更新料 賃料1.00ヶ月分 室内清掃費用 55000円 月額会費 月額2750円 1LDK 普通借家2年 損保【要】 バストイレ別、バルコニー、エアコン、フローリング、TVインターホン、浴室乾燥機、オートロック、室内洗濯置、シューズボックス、システムキッチン、角住戸、温水洗浄便座、脱衣所、洗面所独立、2口コンロ、宅配ボックス、CATV、BS・CS、敷金不要、対面式キッチン、IHクッキングヒーター、ウォークインクロゼット、保証人不要、CS、ネット専用回線、ネット使用料不要、浴室未使用、トイレ未使用、敷地内ごみ置き場、キッチン未使用、BS、保証会社利用可、IT重説対応物件、初期費用カード決済可 入居日:'26年3月下旬 | ||
部屋の情報
| 間取り | 1LDK | 専有面積 | 27.32m2 |
|---|---|---|---|
| 所在階 / 向き | 1階 / - | バルコニー面積 | - |
| 水道 / ガス | - | ||
| 設備 | バス・トイレ別、オートロック、テレビドアホン、宅配ボックス、浴室乾燥機、ウォークインクローゼット、インターネット対応、システムキッチン、エアコン、温水洗浄便座、角部屋、バルコニー、フローリング、洗髪洗面化粧台、2口コンロ、コンロ:IH、CATV、CSアンテナ、BSアンテナ、インターネット使用料無料、洗濯機:室内 | ||
| 当社物件ID | 160105265 | ||
建物の情報
| 建物名 | KEIAI RESIDENCE 東大宮II | ||
|---|---|---|---|
| 所在地 | 埼玉県さいたま市見沼区東大宮 | ||
| 交通 | JR宇都宮線 東大宮駅 徒歩10分 東武野田線 大和田駅(埼玉) バス乗車時間:15分 最寄りバス停で下車 徒歩6分 東武野田線 七里駅 車で10分 | ||
| 階数 | 3階建 | 総戸数 | - |
| 築年月 | 2026年03月 / 新築 | エレベーター | - |
| 駐車場 | 近隣 200m7700円 | バイク置き場 | - |
| 駐輪場 | - | 管理人/管理会社 | - |
| 周辺環境 | その他 七里駅(その他)まで2641m その他 芝浦工業大学 大宮キャンパス(大学・短大)まで655m その他 人間総合科学大学 蓮田キャンパス(大学・短大)まで3125m その他 ロジャース大成店(スーパー)まで5300m その他 ニトリ 岩槻店(その他)まで5363m その他 イオン大宮店(ショッピングセンター)まで5942m | ||
| 建物種別 | アパート | 建物構造 | 木造 |
この部屋の取扱い不動産会社
| 会社名 | レインボーホーム 虹久昇コレクション(有)大宮店(SUUMO経由) | ||
|---|---|---|---|
| 所在地 | 埼玉県さいたま市大宮区大門町2-86 田原ビル3階 | 交通 | - |
| 営業時間 | 9:30-17:30 | 定休日 | 水曜日 |
| 免許番号 | 国土交通大臣10313 | 取引態様 | 仲介 |
| 不動産会社管理番号 | 100479681658 | 当社管理番号 | 89 |
| 所属団体 | (公社)埼玉県宅地建物取引業協会会員 | ||
| 公正取引協議会 | (公社)首都圏不動産公正取引協議会加盟 | ||
| 取扱い物件情報 | 物件詳細へ | ||
※各種情報と現状に差異がある場合は、現状優先となります。問い合わせをすることで、より詳しい条件、情報を確認する事ができます。
提供:レインボーホーム 虹久昇コレクション(有)大宮店(SUUMO経由)
この物件が気になったら掲載期限まであと11日
KEIAI RESIDENCE 東大宮IIに条件(家賃・エリア)が近い物件一覧
| 写真 | 家賃 管理費等 | 敷金 礼金 | 間取り 専有面積 | 築年数 | 最寄り駅 所在地 | キープ | 詳細 |
|---|---|---|---|---|---|---|---|
アパート CALME川越(1K/2階) | |||||||
![]() | 4.9万円 8,000円 | なし なし | 1K 20.5m2 | 新築 | 西武鉄道新宿線 南大塚駅 徒歩14分 埼玉県川越市 | 詳細を見る | |
アパート ジーメゾン川越南大塚グランディール(1LDK/3階) | |||||||
![]() | 6.8万円 5,000円 | なし 6.8万円 | 1LDK 32.04m2 | 築1年 | 西武鉄道新宿線 南大塚駅 徒歩13分 埼玉県川越市 | 詳細を見る | |
マンション シャトーサンワ(3DK/3階) | |||||||
![]() | 6.8万円 3,000円 | なし 6.8万円 | 3DK 54.23m2 | 築33年 | 西武鉄道新宿線 南大塚駅 徒歩1分 西武鉄道新宿線 新狭山駅 徒歩35分 川越線 西川越駅 徒歩64分 埼玉県川越市南台2丁目 | 詳細を見る | |
アパート KIRSCHE(1DK/1階) | |||||||
![]() | 7.2万円 6,000円 | なし 7.2万円 | 1DK 27.8m2 | 築3年 | 西武鉄道新宿線 南大塚駅 徒歩3分 埼玉県川越市南台2丁目 | 詳細を見る | |
アパート コスモプラザB(2DK/2階) | |||||||
![]() | 4.9万円 なし | なし なし | 2DK 34.7m2 | 築38年 | 西武鉄道新宿線 南大塚駅 徒歩18分 東武鉄道東上線 川越駅 徒歩20分 東武鉄道東上線 川越市駅 徒歩27分 埼玉県川越市広栄町 | 詳細を見る | |
アパート ノーススターガーデン(2LDK/3階) | |||||||
![]() | 10.75万円 3,900円 | なし 10.75万円 | 2LDK 71.07m2 | 新築 | 西武鉄道新宿線 南大塚駅 徒歩23分 川越線 川越駅 徒歩39分 東武鉄道東上線 新河岸駅 徒歩43分 埼玉県川越市中台南1丁目 | 詳細を見る | |
マンション THE GARLANDS(1K/3階) | |||||||
![]() | 7.5万円 5,000円 | なし なし | 1K 21.99m2 | 築1年 | 京浜東北・根岸線 西川口駅 徒歩7分 京浜東北・根岸線 川口駅 徒歩22分 京浜東北・根岸線 蕨駅 徒歩32分 埼玉県川口市西川口4丁目 | 詳細を見る | |
アパート ドルチェテラス川越南大塚(1DK/3階) | |||||||
![]() | 6.6万円 3,000円 | なし 6.6万円 | 1DK 26.48m2 | 新築 | 西武鉄道新宿線 南大塚駅 徒歩4分 西武鉄道新宿線 新狭山駅 徒歩37分 東武鉄道東上線 川越駅 徒歩42分 埼玉県川越市 | 詳細を見る | |









