賃貸マンション
アーバングレイスの賃貸物件情報(2LDK/2階)
| 家賃 | 管理費等 | 敷金 | 礼金 | 間取り | 専有面積 |
|---|---|---|---|---|---|
| 31.6万円 | 8,000円 | 31.6万円 | なし | 2LDK | 81.48m2 |
入居決定でお祝い金最大100,000円
Point
セキュリティ面は、オートロック・TVインターホンなど充実しているので、防犯対策もばっちりです。
提供:(株)リライフ飯田橋店(SUUMO経由)

詳細情報 アーバングレイス
物件紹介
アーバングレイスは都営大江戸線牛込柳町駅から徒歩3分にあり、駅近で通勤通学に便利なマンションです。
このお部屋は2階以上に位置しているので、通行人や周囲の住人からの視線が気になりにくく、防犯面でも安心。建物のエントランスはオートロックがついており、インターホンにはTVモニタもついているため、相手の顔を確認してから来客対応することができます。
人気の南向き・フローリングのお部屋。角部屋でもあるため、周囲の居住者の生活音も気になりにくい場所です。室内にはウォークインクローゼットがありますので、たくさんの荷物も効率的に収納ができます。キッチンはシステムキッチン仕様になっていますので、お料理好きの方にもぴったり。バス・トイレは別なので、のんびりお風呂タイムも楽しめるでしょう。また、雨の日でも浴室乾燥機を使えば、お洗濯も問題ありません。
通信設備面では、インターネットが無料で使えるので、月々の出費を抑えられるのも魅力です。また、BSアンテナ・CSアンテナがありCATVにも対応しているので、おうち時間も充実するでしょう(別途工事、BS・CS・CATVの契約料等が必要な場合あり)。
共用部には宅配ボックスが設定されているので、不在の時にも荷物を受け取ることができます。
このお部屋は2階以上に位置しているので、通行人や周囲の住人からの視線が気になりにくく、防犯面でも安心。建物のエントランスはオートロックがついており、インターホンにはTVモニタもついているため、相手の顔を確認してから来客対応することができます。
人気の南向き・フローリングのお部屋。角部屋でもあるため、周囲の居住者の生活音も気になりにくい場所です。室内にはウォークインクローゼットがありますので、たくさんの荷物も効率的に収納ができます。キッチンはシステムキッチン仕様になっていますので、お料理好きの方にもぴったり。バス・トイレは別なので、のんびりお風呂タイムも楽しめるでしょう。また、雨の日でも浴室乾燥機を使えば、お洗濯も問題ありません。
通信設備面では、インターネットが無料で使えるので、月々の出費を抑えられるのも魅力です。また、BSアンテナ・CSアンテナがありCATVにも対応しているので、おうち時間も充実するでしょう(別途工事、BS・CS・CATVの契約料等が必要な場合あり)。
共用部には宅配ボックスが設定されているので、不在の時にも荷物を受け取ることができます。
お金・契約の情報
※「-」と表示されているものは、実際は料金が発生するものもございます。詳細はお問い合わせください。
| 家賃 | 31.6万円 | 管理費・共益費 | 8,000円 |
|---|---|---|---|
| 敷金 | 31.6万円 | 礼金 | なし |
| 入居決定でお祝い金最大100,000円 | |||
| 保証金 | - | 償却・敷引 | - |
| 住宅保険料 | 1円 | 更新料 | - |
| 保証会社利用 | 必須 | 保証会社名 | - |
| 保証会社費用 | - | 保証会社備考 | 初回:月額支払総額の50%月次:月額支払総額の1.5% |
| 契約形態 | - | 契約期間 | 2年 |
| 入居・引渡期間 | 即時 | 現況 | - |
| 入居可能条件 | 2人入居可 | ||
| 契約備考 | 火災保険要加入 1年以内の解約(家賃・共益費の1ヶ月分) 鍵交換費用:22000 その他設備/条件:室内洗濯機置き場、独立洗面台、食器洗い乾燥機、防犯カメラ、クローゼット、シューズボックス | ||
部屋の情報
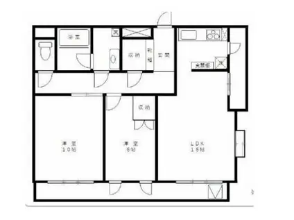
| 間取り | 2LDK | 専有面積 | 81.48m2 |
|---|---|---|---|
| 所在階 / 向き | 2階 / 南東 | バルコニー面積 | - |
| 水道 / ガス | ガス【都市】 | ||
| 設備 | バス・トイレ別、オートロック、テレビドアホン、宅配ボックス、浴室乾燥機、追い焚き、システムキッチン、エアコン、温水洗浄便座、角部屋、バルコニー、フローリング、3口コンロ、コンロ:ガス、シャワー、タイル張り | ||
| 当社物件ID | 21655676 | ||
建物の情報
| 建物名 | アーバングレイス | ||
|---|---|---|---|
| 所在地 | 東京都新宿区原町1丁目 | ||
| 交通 | 東京都大江戸線 牛込柳町駅 徒歩4分 東京都大江戸線 若松河田駅 徒歩9分 | ||
| 階数 | 3階建 | 総戸数 | 16戸 |
| 築年月 | 1990年01月 / 築37年 | エレベーター | - |
| 駐車場 | 空無 | バイク置き場 | - |
| 駐輪場 | あり | 管理人/管理会社 | - |
| 周辺環境 | その他 ドラッグストア その他 公園 その他 銀行 その他 * | ||
| 建物種別 | マンション | 建物構造 | RC(鉄筋コンクリート) |
この部屋の取扱い不動産会社
| 会社名 | ハウスコム東東京株式会社 新宿店 | ||
|---|---|---|---|
| 所在地 | 東京都新宿区36-2新宿キリンビル3階 | 交通 | - |
| 営業時間 | 10:00~18:00 | 定休日 | 水曜定休 |
| 免許番号 | 東京都知事(1)第108283号 | 取引態様 | 仲介 |
| 不動産会社管理番号 | HC4-5121078-0201-0231 | 当社管理番号 | 468 |
| 所属団体 | 、 | ||
| 取扱い物件情報 | 物件詳細へ | ||
※各種情報と現状に差異がある場合は、現状優先となります。問い合わせをすることで、より詳しい条件、情報を確認する事ができます。
提供:ハウスコム東東京株式会社 新宿店
この物件が気になったら掲載期限まであと5日
アーバングレイスに条件(家賃・エリア)が近い物件一覧
| 写真 | 家賃 管理費等 | 敷金 礼金 | 間取り 専有面積 | 築年数 | 最寄り駅 所在地 | キープ | 詳細 |
|---|---|---|---|---|---|---|---|
マンション ザ・パークハウス東京(1LDK/3階) | |||||||
![]() | 25.7万円 5,000円 | なし 25.7万円 | 1LDK 42.1m2 | 築1年 | 都営新宿線 新宿三丁目駅 徒歩3分 都営大江戸線 東新宿駅 徒歩7分 東京メトロ丸ノ内線 新宿御苑前駅 徒歩11分 東京都新宿区新宿 | 詳細を見る | |
マンション オーフンレシテンシア麻布六本木(1LDK/7階) | |||||||
![]() | 27.5万円 1.5万円 | 27.5万円 27.5万円 | 1LDK 40.43m2 | 築8年 | 東京メトロ南北線 六本木一丁目駅 徒歩5分 東京メトロ日比谷線 六本木駅 徒歩7分 東京メトロ南北線 麻布十番駅 徒歩9分 東京都港区六本木 | 詳細を見る | |
マンション 新神楽坂ハウス 409(2DK/4階) | |||||||
![]() | 19.5万円 5,000円 | 39万円 39万円 | 2DK 50.49m2 | 築44年 | 東京メトロ有楽町線 飯田橋駅 徒歩8分 東京メトロ東西線 神楽坂駅 徒歩10分 都営大江戸線 牛込神楽坂駅 徒歩10分 東京都新宿区新小川町 | 詳細を見る | |
マンション 朝日江戸川橋マンション(1LDK/9階) | |||||||
![]() | 20万円 なし | 20万円 20万円 | 1LDK 46.72m2 | 築44年 | 東京メトロ有楽町線 江戸川橋駅 徒歩1分 東京メトロ東西線 神楽坂駅 徒歩9分 東京メトロ丸ノ内線 茗荷谷駅 徒歩18分 東京都文京区関口 | 詳細を見る | |
マンション オープンレジデンシア南青山ウエストテラス(2LDK/5階) | |||||||
![]() | 48万円 1.5万円 | 48万円 48万円 | 2LDK 76.15m2 | 築13年 | 東京メトロ銀座線 外苑前駅 徒歩3分 東京メトロ銀座線 青山一丁目駅 徒歩7分 東京都港区南青山 | 詳細を見る | |
マンション レジディアタワー上池袋(1LDK/5階) | |||||||
![]() | 19.5万円 2万円 | 19.5万円 なし | 1LDK 44.09m2 | 築17年 | JR山手線 大塚駅(東京) 徒歩9分 東武東上線 北池袋駅 徒歩11分 都営三田線 西巣鴨駅 徒歩14分 東京都豊島区上池袋 | 詳細を見る | |
マンション クレストコート中野富士見町(1LDK/8階) | |||||||
![]() | 21万円 1.5万円 | 21万円 なし | 1LDK 34.75m2 | 築1年 | 東京メトロ丸ノ内線 中野富士見町駅 徒歩1分 東京メトロ丸ノ内線 中野新橋駅 徒歩9分 東京メトロ丸ノ内線 新中野駅 徒歩11分 東京都中野区弥生町 | 詳細を見る | |







