賃貸マンション
ジュエルコート熊谷IIの賃貸物件情報(3LDK/11階)
| 家賃 | 管理費等 | 敷金 | 礼金 | 間取り | 専有面積 |
|---|---|---|---|---|---|
| 15万円 | 8,000円 | 30万円 | 15万円 | 3LDK | 68.2m2 |
入居決定でお祝い金最大100,000円
- 保証金
- -
- 償却・敷引
- -
- 築年数
- 築13年
- 所在階
- 11階
- 向き
- 南
Point
宅配ボックスは時間を問わず荷物を受け取ることができるので、自宅に不在でも再配達依頼をする必要がなくなります。セキュリティ面は、オートロック・TVインターホンなど充実しているので安心して生活できます。
提供:(株)埼玉住宅情報センター(SUUMO経由)

詳細情報 ジュエルコート熊谷II
物件紹介
ジュエルコート熊谷IIはJR高崎線熊谷駅から徒歩2分にあり、駅近で通勤通学に便利なマンションです。
このお部屋は2階以上に位置しているので、通行人や周囲の住人からの視線が気になりにくく、防犯面でも安心。建物のエントランスはオートロックがついており、インターホンにはTVモニタもついているため、相手の顔を確認してから来客対応することができます。
人気の南向き・フローリングのお部屋。角部屋でもあるため、周囲の居住者の生活音も気になりにくい場所です。キッチンはシステムキッチン仕様になっていますので、お料理好きの方にもぴったり。バス・トイレは別なので、のんびりお風呂タイムも楽しめるでしょう。また、雨の日でも浴室乾燥機を使えば、お洗濯も問題ありません。
通信設備面では、インターネット接続が可能です(別途工事、契約料が必要な場合あり)。
建物にはエレベーターがついているので、重い荷物があっても安心。共用部には宅配ボックスが設定されているので、不在の時にも荷物を受け取ることができます。
このお部屋は2階以上に位置しているので、通行人や周囲の住人からの視線が気になりにくく、防犯面でも安心。建物のエントランスはオートロックがついており、インターホンにはTVモニタもついているため、相手の顔を確認してから来客対応することができます。
人気の南向き・フローリングのお部屋。角部屋でもあるため、周囲の居住者の生活音も気になりにくい場所です。キッチンはシステムキッチン仕様になっていますので、お料理好きの方にもぴったり。バス・トイレは別なので、のんびりお風呂タイムも楽しめるでしょう。また、雨の日でも浴室乾燥機を使えば、お洗濯も問題ありません。
通信設備面では、インターネット接続が可能です(別途工事、契約料が必要な場合あり)。
建物にはエレベーターがついているので、重い荷物があっても安心。共用部には宅配ボックスが設定されているので、不在の時にも荷物を受け取ることができます。
お金・契約の情報
※「-」と表示されているものは、実際は料金が発生するものもございます。詳細はお問い合わせください。
| 家賃 | 15万円 | 管理費・共益費 | 8,000円 |
|---|---|---|---|
| 敷金 | 30万円 | 礼金 | 15万円 |
| 入居決定でお祝い金最大100,000円 | |||
| 保証金 | - | 償却・敷引 | - |
| 住宅保険料 | - | 更新料 | - |
| 保証会社利用 | 必須 | 保証会社名 | 日本賃貸保証 |
| 保証会社費用 | - | 保証会社備考 | 日本賃貸保証利用必 初回保証料は総額家賃の50%(2年目から毎年10 000円) |
| 契約形態 | - | 契約期間 | - |
| 入居・引渡期間 | - | 現況 | - |
| 契約備考 | 合計7.9万円(内訳:初回保証料7.9万円) 更新料 新賃料1.00ヶ月分 3LDK 二人入居可/子供可/事務所利用不可 普通借家2年 損保【1.8万円2年】 バストイレ別、バルコニー、エアコン、ガスコンロ対応、クロゼット、フローリング、シャワー付洗面台、TVインターホン、浴室乾燥機、オートロック、室内洗濯置、陽当り良好、システムキッチン、南向き、追焚機能浴室、角住戸、温水洗浄便座、脱衣所、エレベーター、洗面所独立、洗面化粧台、駐輪場、宅配ボックス、光ファイバー、外壁タイル張り、2面採光、3口以上コンロ、防犯カメラ、グリル付、単身者相談、仲介手数料不要、二人入居相談、2沿線利用可、ディンプルキー、駅まで平坦、眺望良好、ダブルロックキー、24時間換気システム、複層ガラス、クロゼット3ヶ所、花火大会鑑賞、駅前、駅徒歩5分以内、バス停徒歩3分以内、敷地内ごみ置き場、当社管理物件、都市ガス、洗面所にドア、玄関収納、年内入居可、年度内入居可、保証会社利用可、通風良好 入居日:'26年3月下旬 | ||
部屋の情報
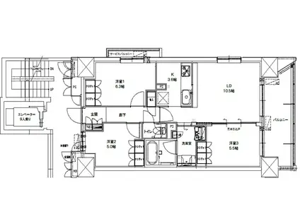
| 間取り | 3LDK | 専有面積 | 68.2m2 |
|---|---|---|---|
| 所在階 / 向き | 11階 / 南 | バルコニー面積 | - |
| 水道 / ガス | - | ||
| 設備 | バス・トイレ別、2階以上、オートロック、テレビドアホン、宅配ボックス、浴室乾燥機、追い焚き、インターネット対応、システムキッチン、エアコン、エレベーター、温水洗浄便座、南向き、角部屋、バルコニー、フローリング、洗髪洗面化粧台、2口コンロ、コンロ:ガス、洗濯機:室内 | ||
| 当社物件ID | 160539257 | ||
建物の情報
| 建物名 | ジュエルコート熊谷II | ||
|---|---|---|---|
| 所在地 | 埼玉県熊谷市筑波 | ||
| 交通 | JR高崎線 熊谷駅 徒歩2分 上越新幹線 熊谷駅 徒歩2分 JR高崎線 籠原駅 徒歩84分 | ||
| 階数 | 15階建 | 総戸数 | - |
| 築年月 | 2014年02月 / 築13年 | エレベーター | あり |
| 駐車場 | なし | バイク置き場 | - |
| 駐輪場 | あり | 管理人/管理会社 | - |
| 周辺環境 | その他 ベルク熊谷銀座店(スーパー)まで857m その他 AZ熊谷(ショッピングセンター)まで201m その他 ティアラ21(ショッピングセンター)まで308m その他 荒川公園(公園)まで571m その他 ローソン・熊谷駅北口店(コンビニ)まで84m その他 荻野耳鼻咽喉科医院(病院)まで187m | ||
| 建物種別 | マンション | 建物構造 | RC(鉄筋コンクリート) |
この部屋の取扱い不動産会社
| 会社名 | (株)埼玉住宅情報センター(SUUMO経由) | ||
|---|---|---|---|
| 所在地 | 埼玉県熊谷市筑波2-66-1 | 交通 | - |
| 営業時間 | AM9:00~PM6:00 | 定休日 | 日曜日・水曜日 |
| 免許番号 | 埼玉県知事9814 | 取引態様 | 貸主 |
| 不動産会社管理番号 | 100492817422 | 当社管理番号 | 89 |
| 所属団体 | (公社)埼玉県宅地建物取引業協会会員 | ||
| 公正取引協議会 | (公社)首都圏不動産公正取引協議会加盟 | ||
| 取扱い物件情報 | 物件詳細へ | ||
※各種情報と現状に差異がある場合は、現状優先となります。問い合わせをすることで、より詳しい条件、情報を確認する事ができます。
提供:(株)埼玉住宅情報センター(SUUMO経由)
この物件が気になったら掲載期限まであと11日
ジュエルコート熊谷IIに条件(家賃・エリア)が近い物件一覧
| 写真 | 家賃 管理費等 | 敷金 礼金 | 間取り 専有面積 | 築年数 | 最寄り駅 所在地 | キープ | 詳細 |
|---|---|---|---|---|---|---|---|
アパート APLⅢ(1LDK/4階) | |||||||
![]() | 9.5万円 7,000円 | 9.5万円 9.5万円 | 1LDK 43.51m2 | 築4年 | 高崎線 熊谷駅 徒歩10分 埼玉県熊谷市曙町2丁目 | 詳細を見る | |
アパート サングレイス(2LDK/3階) | |||||||
![]() | 9.3万円 2,300円 | なし 9.3万円 | 2LDK 58.13m2 | 築1年 | 秩父鉄道 石原駅(埼玉) 徒歩33分 埼玉県熊谷市円光 | 詳細を見る | |
一戸建て 高崎線 北本駅 徒歩29分 築2年(4LDK) | |||||||
![]() | 13万円 なし | 13万円 13万円 | 4LDK 103.68m2 | 築2年 | 高崎線 北本駅 徒歩29分 埼玉県鴻巣市松原1丁目 | 詳細を見る | |
一戸建て 高崎線 籠原駅 徒歩69分 築10年(3LDK) | |||||||
![]() | 10.8万円 なし | 21.6万円 10.8万円 | 3LDK 108.47m2 | 築10年 | 高崎線 籠原駅 徒歩69分 埼玉県熊谷市弥藤吾 | 詳細を見る | |
アパート D-ROOMあずま町B(2LDK/2階) | |||||||
![]() | 9.5万円 5,000円 | なし なし | 2LDK 59.04m2 | 築13年 | 東武東上線 高坂駅 徒歩14分 埼玉県東松山市あずま町 | 詳細を見る | |
マンション メゾン筑波嶺(3LDK/6階) | |||||||
![]() | 11.5万円 なし | なし なし | 3LDK 89.1m2 | 築37年 | JR高崎線 熊谷駅 徒歩7分 秩父鉄道 上熊谷駅 徒歩17分 秩父鉄道 石原駅(埼玉) 徒歩30分 埼玉県熊谷市銀座 | 詳細を見る | |
マンション 木造マンション 断熱等級7(2LDK/1階) | |||||||
![]() | 11.9万円 4,000円 | なし 11.9万円 | 2LDK 65.83m2 | 築1年 | 東武東上線 高坂駅 徒歩5分 東武東上線 東松山駅 徒歩46分 東武東上線 北坂戸駅 徒歩51分 埼玉県東松山市 | 詳細を見る | |








