賃貸マンション
Tガーデンスクエアの賃貸物件情報(2LDK/8階)
| 家賃 | 管理費等 | 敷金 | 礼金 | 間取り | 専有面積 |
|---|---|---|---|---|---|
| 17.8万円 | 1万円 | 17.8万円 | 17.8万円 | 2LDK | 69.94m2 |
入居決定でお祝い金最大100,000円
Point
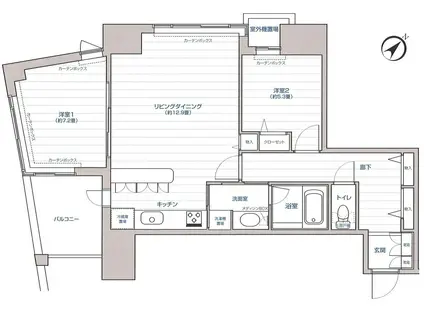
船堀駅徒歩2分のデザイナーズマンション 69.94平米2LDK 無料のトランクルーム付き 室内収納もたっぷり
提供:トキビル不動産 陽光産業(株)(SUUMO経由)

詳細情報 Tガーデンスクエア
物件紹介
Tガーデンスクエアは都営新宿線船堀駅から徒歩2分にあり、駅近で通勤通学に便利なマンションです。
このお部屋は2階以上に位置しているので、通行人や周囲の住人からの視線が気になりにくく、防犯面でも安心。建物のエントランスはオートロックがついており、インターホンにはTVモニタもついているため、相手の顔を確認してから来客対応することができます。
人気の南向き・フローリングのお部屋。角部屋でもあるため、周囲の居住者の生活音も気になりにくい場所です。キッチンはシステムキッチン仕様になっていますので、お料理好きの方にもぴったり。バス・トイレは別なので、のんびりお風呂タイムも楽しめるでしょう。また、雨の日でも浴室乾燥機を使えば、お洗濯も問題ありません。
建物にはエレベーターがついているので、重い荷物があっても安心。共用部には宅配ボックスが設定されているので、不在の時にも荷物を受け取ることができます。
このお部屋は2階以上に位置しているので、通行人や周囲の住人からの視線が気になりにくく、防犯面でも安心。建物のエントランスはオートロックがついており、インターホンにはTVモニタもついているため、相手の顔を確認してから来客対応することができます。
人気の南向き・フローリングのお部屋。角部屋でもあるため、周囲の居住者の生活音も気になりにくい場所です。キッチンはシステムキッチン仕様になっていますので、お料理好きの方にもぴったり。バス・トイレは別なので、のんびりお風呂タイムも楽しめるでしょう。また、雨の日でも浴室乾燥機を使えば、お洗濯も問題ありません。
建物にはエレベーターがついているので、重い荷物があっても安心。共用部には宅配ボックスが設定されているので、不在の時にも荷物を受け取ることができます。
お金・契約の情報
※「-」と表示されているものは、実際は料金が発生するものもございます。詳細はお問い合わせください。
| 家賃 | 17.8万円 | 管理費・共益費 | 1万円 |
|---|---|---|---|
| 敷金 | 17.8万円 | 礼金 | 17.8万円 |
| 入居決定でお祝い金最大100,000円 | |||
| 保証金 | - | 償却・敷引 | - |
| 住宅保険料 | - | 更新料 | - |
| 保証会社利用 | 必須 | 保証会社名 | - |
| 保証会社費用 | - | 保証会社備考 | 保証会社利用必 Casa初回保証料50%年間保証料10000円 |
| 契約形態 | - | 契約期間 | - |
| 入居・引渡期間 | 相談 | 現況 | - |
| 契約備考 | 巡回管理/更新料1ヶ月更新事務手数料0.5ヶ月 2LDK 単身者可/二人入居可 普通借家2年 損保【要】 バストイレ別、バルコニー、エアコン、クロゼット、フローリング、TVインターホン、浴室乾燥機、オートロック、室内洗濯置、陽当り良好、シューズボックス、システムキッチン、追焚機能浴室、角住戸、温水洗浄便座、エレベーター、洗面所独立、駐輪場、宅配ボックス、2面採光、防犯カメラ、オートバス、全居室洋室、全居室フローリング、駅まで平坦、エレベーター2基、駅徒歩5分以内、駅徒歩10分以内、24時間ゴミ出し可、敷地内ごみ置き場、当社管理物件、LDK12畳以上、都市ガス、初期費用カード決済可 | ||
部屋の情報
| 間取り | 2LDK | 専有面積 | 69.94m2 |
|---|---|---|---|
| 所在階 / 向き | 8階 / 南西 | バルコニー面積 | - |
| 水道 / ガス | - | ||
| 設備 | バス・トイレ別、2階以上、オートロック、テレビドアホン、宅配ボックス、浴室乾燥機、追い焚き、システムキッチン、エアコン、エレベーター、温水洗浄便座、南向き、角部屋、バルコニー、フローリング、洗髪洗面化粧台、洗濯機:室内 | ||
| 当社物件ID | 11405233 | ||
建物の情報
| 建物名 | Tガーデンスクエア | ||
|---|---|---|---|
| 所在地 | 東京都江戸川区船堀 | ||
| 交通 | 都営新宿線 船堀駅 徒歩2分 | ||
| 階数 | 地下1地上14階建 | 総戸数 | - |
| 築年月 | 2004年01月 / 築22年 | エレベーター | あり |
| 駐車場 | 空有 29700円 | バイク置き場 | - |
| 駐輪場 | あり | 管理人/管理会社 | - |
| 周辺環境 | その他 いなげや江戸川船堀店(スーパー)まで307m その他 どらっぐぱぱす船堀店(ドラッグストア)まで327m その他 セブンイレブン江戸川船堀3丁目店(コンビニ)まで57m その他 マックスバリュエクスプレス船堀駅前店(スーパー)まで234m その他 ヤマイチ船堀店(スーパー)まで320m その他 ローソン江戸川船堀三丁目店(コンビニ)まで132m | ||
| 建物種別 | マンション | 建物構造 | RC(鉄筋コンクリート) |
この部屋の取扱い不動産会社
| 会社名 | トキビル不動産 陽光産業(株)(SUUMO経由) | ||
|---|---|---|---|
| 所在地 | 東京都江戸川区船堀3-5-7 TOKIビル1階 | 交通 | - |
| 営業時間 | 10:00~18:00 | 定休日 | 水曜日 |
| 免許番号 | 東京都知事71875 | 取引態様 | 仲介 |
| 不動産会社管理番号 | 100480132218 | 当社管理番号 | 89 |
| 所属団体 | (公社)東京都宅地建物取引業協会会員 | ||
| 公正取引協議会 | (公社)首都圏不動産公正取引協議会加盟 | ||
| 取扱い物件情報 | 物件詳細へ | ||
※各種情報と現状に差異がある場合は、現状優先となります。問い合わせをすることで、より詳しい条件、情報を確認する事ができます。
提供:トキビル不動産 陽光産業(株)(SUUMO経由)
この物件が気になったら掲載期限まであと11日
Tガーデンスクエアに条件(家賃・エリア)が近い物件一覧
| 写真 | 家賃 管理費等 | 敷金 礼金 | 間取り 専有面積 | 築年数 | 最寄り駅 所在地 | キープ | 詳細 |
|---|---|---|---|---|---|---|---|
マンション GRAN PASEO菊川II(1LDK/6階) | |||||||
![]() | 19.2万円 1万円 | なし なし | 1LDK 40.75m2 | 築4年 | 都営新宿線 菊川駅(東京) 徒歩2分 東京メトロ半蔵門線 錦糸町駅 徒歩17分 JR総武線 錦糸町駅 徒歩17分 東京都墨田区立川 | 詳細を見る | |
マンション ガーラプレイス錦糸町(1K/8階) | |||||||
![]() | 11万円 2万円 | 11万円 なし | 1K 24.44m2 | 築19年 | 総武・中央緩行線 錦糸町駅 徒歩6分 東京地下鉄半蔵門線 錦糸町駅 徒歩7分 東京都大江戸線 両国駅 徒歩15分 東京都墨田区錦糸1丁目 | 詳細を見る | |
マンション レガリス清澄白河ブロッサム(1K/8階) | |||||||
![]() | 12万円 1万円 | 12万円 12万円 | 1K 25.63m2 | 築11年 | 東京地下鉄半蔵門線 清澄白河駅 徒歩4分 東京地下鉄東西線 門前仲町駅 徒歩8分 東京都大江戸線 門前仲町駅 徒歩8分 東京都江東区清澄2丁目 | 詳細を見る | |
マンション ステージグランデ錦糸町2(1K/9階) | |||||||
![]() | 12.5万円 1万円 | なし なし | 1K 25.81m2 | 築5年 | 総武・中央緩行線 錦糸町駅 徒歩9分 東京都新宿線 菊川駅(東京) 徒歩11分 東京都大江戸線 両国駅 徒歩11分 東京都墨田区緑4丁目 | 詳細を見る | |
マンション プラウドフラット菊川(1K/1階) | |||||||
![]() | 11.4万円 1万円 | 11.4万円 11.4万円 | 1K 25.19m2 | 築6年 | 都営新宿線 菊川駅(東京) 徒歩5分 東京メトロ半蔵門線 住吉駅(東京) 徒歩11分 都営新宿線 森下駅(東京) 徒歩14分 東京都墨田区立川 | 詳細を見る | |
マンション VILLA VICINA(1LDK/1階) | |||||||
![]() | 14.2万円 4,000円 | 14.2万円 28.4万円 | 1LDK 44.5m2 | 築18年 | 総武・中央緩行線 錦糸町駅 徒歩13分 東京地下鉄半蔵門線 錦糸町駅 徒歩13分 東京都浅草線 本所吾妻橋駅 徒歩15分 東京都墨田区亀沢3丁目 | 詳細を見る | |
マンション パークアクシス錦糸町ヴェール(1LDK/7階) | |||||||
![]() | 21万円 1.2万円 | 21万円 21万円 | 1LDK 40.06m2 | 築10年 | 総武・中央緩行線 錦糸町駅 徒歩12分 総武本線 錦糸町駅 徒歩12分 東京地下鉄半蔵門線 錦糸町駅 徒歩12分 東京都墨田区緑4丁目 | 詳細を見る | |
マンション HF八広レジデンス(1DK/8階) | |||||||
![]() | 12.1万円 6,000円 | 12.1万円 12.1万円 | 1DK 25.21m2 | 築6年 | 京成電鉄押上線 八広駅 徒歩9分 京成電鉄押上線 京成曳舟駅 徒歩14分 東武伊勢崎・大師線 東向島駅 徒歩19分 東京都墨田区八広4丁目 | 詳細を見る | |









