賃貸マンション
CALM COURTの賃貸物件情報(2LDK/2階)
| 家賃 | 管理費等 | 敷金 | 礼金 | 間取り | 専有面積 |
|---|---|---|---|---|---|
| 8万円 | 4,000円 | なし | なし | 2LDK | 68.4m2 |
入居決定でお祝い金最大100,000円
- 保証金
- -
- 償却・敷引
- -
- 築年数
- 築40年
- 所在階
- 2階
- 向き
- 南西
Point
JR瀬田駅徒歩15分の2LDKマンション!南西向きで日当たり良好♪洋室は各室と廊下でわかれているためプライバシーを確保しやすいです☆大津市のお部屋探しは「賃貸館オンラインショップ」にお任せ下さい!
提供:みらいえ住宅(株)(SUUMO経由)

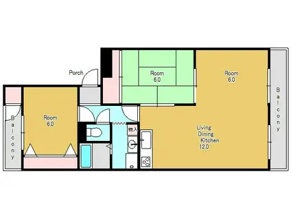
詳細情報 CALM COURT
物件紹介
CALM COURTはJR東海道本線瀬田駅から徒歩15分にあるマンションです。
このお部屋は2階以上に位置しているので、通行人や周囲の住人からの視線が気になりにくく、防犯面でも安心。インターホンにはTVモニタもついているため、相手の顔を確認してから来客対応することができます。
人気の南向きのお部屋。また、フローリングなのでお掃除もラクラク。キッチンはシステムキッチン仕様になっていますので、お料理好きの方にもぴったり。また、バス・トイレは別で、のんびりお風呂タイムも楽しめるでしょう。
通信設備面では、インターネットが無料で使えるので、月々の出費を抑えられるのも魅力です。また、BSアンテナもありますので、おうち時間も充実するでしょう(別途工事、BSの契約料等が必要な場合あり)。
このお部屋は2階以上に位置しているので、通行人や周囲の住人からの視線が気になりにくく、防犯面でも安心。インターホンにはTVモニタもついているため、相手の顔を確認してから来客対応することができます。
人気の南向きのお部屋。また、フローリングなのでお掃除もラクラク。キッチンはシステムキッチン仕様になっていますので、お料理好きの方にもぴったり。また、バス・トイレは別で、のんびりお風呂タイムも楽しめるでしょう。
通信設備面では、インターネットが無料で使えるので、月々の出費を抑えられるのも魅力です。また、BSアンテナもありますので、おうち時間も充実するでしょう(別途工事、BSの契約料等が必要な場合あり)。
お金・契約の情報
※「-」と表示されているものは、実際は料金が発生するものもございます。詳細はお問い合わせください。
| 家賃 | 8万円 | 管理費・共益費 | 4,000円 |
|---|---|---|---|
| 敷金 | なし | 礼金 | なし |
| 入居決定でお祝い金最大100,000円 | |||
| 保証金 | - | 償却・敷引 | - |
| 住宅保険料 | - | 更新料 | - |
| 保証会社利用 | 必須 | 保証会社名 | リクルートフォレントインシュア |
| 保証会社費用 | - | 保証会社備考 | オリコフォレントインシュア利用必 初回保証料:総賃料の30% 月額保証料:総賃料の1.5% |
| 契約形態 | - | 契約期間 | - |
| 入居・引渡期間 | 相談 | 現況 | - |
| 契約備考 | JR瀬田駅バス3分大将軍一丁目北停歩1分 合計6.93万円(内訳:インターネット接続料:5500円 シリンダー交換費:19800円 ハウスクリーニング費:44000円) 口座振替手数料:330円/月 更新事務手数料:16500円 2LDK 損保【要】 バストイレ別、バルコニー、エアコン、ガスコンロ対応、クロゼット、フローリング、TVインターホン、室内洗濯置、陽当り良好、システムキッチン、温水洗浄便座、脱衣所、洗面所独立、洗面化粧台、駐輪場、押入、礼金不要、敷金不要、3口以上コンロ、全居室収納、グリル付、保証人不要、2面バルコニー、ネット使用料不要、バス停徒歩3分以内、敷地内ごみ置き場、南西向き、LDK18畳以上、リビングの隣和室、和室、2ドア1ルーム、全居室6畳以上、オープンキッチン、都市ガス、南面バルコニー、BS、敷金・礼金不要、IT重説対応物件、初期費用カード決済可 | ||
部屋の情報
| 間取り | 2LDK | 専有面積 | 68.4m2 |
|---|---|---|---|
| 所在階 / 向き | 2階 / 南西 | バルコニー面積 | - |
| 水道 / ガス | - | ||
| 設備 | バス・トイレ別、2階以上、テレビドアホン、インターネット対応、システムキッチン、エアコン、温水洗浄便座、南向き、バルコニー、フローリング、洗髪洗面化粧台、2口コンロ、コンロ:ガス、BSアンテナ、インターネット使用料無料、洗濯機:室内 | ||
| 当社物件ID | 160677845 | ||
建物の情報
| 建物名 | CALM COURT | ||
|---|---|---|---|
| 所在地 | 滋賀県大津市大将軍 | ||
| 交通 | JR東海道本線 瀬田駅(滋賀) 徒歩15分 JR東海道本線 南草津駅 徒歩41分 JR東海道本線 石山駅 徒歩46分 | ||
| 階数 | 4階建 | 総戸数 | 24戸 |
| 築年月 | 1986年04月 / 築40年 | エレベーター | - |
| 駐車場 | 空有 5500円 | バイク置き場 | - |
| 駐輪場 | あり | 管理人/管理会社 | - |
| 周辺環境 | その他 イオンモール草津(ショッピングセンター)まで1113m その他 アル・プラザ瀬田(スーパー)まで1265m その他 ファミリーマート大津大将軍店(コンビニ)まで344m その他 V・drug大将軍店(ドラッグストア)まで256m その他 エディオン大津店(ホームセンター)まで480m その他 滋賀銀行大津市場代理店(銀行)まで1384m | ||
| 建物種別 | マンション | 建物構造 | RC(鉄筋コンクリート) |
この部屋の取扱い不動産会社
| 会社名 | 賃貸館オンラインショップ滋賀不動産管理(株)(SUUMO経由) | ||
|---|---|---|---|
| 所在地 | 滋賀県草津市野路5-12-13 | 交通 | - |
| 営業時間 | 10:00~18:00 | 定休日 | 水曜日 |
| 免許番号 | 滋賀県知事3861 | 取引態様 | 仲介 |
| 不動産会社管理番号 | 100498344227 | 当社管理番号 | 89 |
| 所属団体 | (公社)全日本不動産協会滋賀県本部会員 | ||
| 公正取引協議会 | (公社)近畿地区不動産公正取引協議会加盟 | ||
| 取扱い物件情報 | 物件詳細へ | ||
※各種情報と現状に差異がある場合は、現状優先となります。問い合わせをすることで、より詳しい条件、情報を確認する事ができます。
提供:賃貸館オンラインショップ滋賀不動産管理(株)(SUUMO経由)
この物件が気になったら掲載期限まであと10日
CALM COURTに条件(家賃・エリア)が近い物件一覧
| 写真 | 家賃 管理費等 | 敷金 礼金 | 間取り 専有面積 | 築年数 | 最寄り駅 所在地 | キープ | 詳細 |
|---|---|---|---|---|---|---|---|
マンション ロベルメゾン(2DK/2階) | |||||||
![]() | 6.9万円 8,000円 | 20万円 なし | 2DK 45.36m2 | 築26年 | 草津線 手原駅 徒歩13分 東海道本線 栗東駅 徒歩38分 草津線 石部駅 徒歩67分 滋賀県栗東市 | 詳細を見る | |
マンション ヴィラ梅ノ井(3DK/5階) | |||||||
![]() | 6.8万円 4,500円 | なし 6.8万円 | 3DK 56.07m2 | 築22年 | 近江鉄道本線 水口城南駅 徒歩3分 近江鉄道本線 水口石橋駅 徒歩13分 滋賀県甲賀市水口町的場 | 詳細を見る | |
アパート バンブー ニン A(1LDK/1階) | |||||||
![]() | 6.95万円 5,200円 | なし 6.95万円 | 1LDK 50.01m2 | 築2年 | JR草津線 甲賀駅 徒歩12分 滋賀県甲賀市甲賀町大原中 | 詳細を見る | |
アパート SYS大将軍(2LDK/3階) | |||||||
![]() | 11.55万円 5,000円 | なし 11.55万円 | 2LDK 56.92m2 | 新築 | 東海道本線 瀬田駅(滋賀) 徒歩13分 東海道本線 南草津駅 徒歩32分 滋賀県大津市大将軍2丁目 | 詳細を見る | |
一戸建て 湖西線 マキノ駅 徒歩31分 築77年(5DK) | |||||||
![]() | 4.8万円 なし | なし 4.8万円 | 5DK 37.19m2 | 築77年 | 湖西線 マキノ駅 徒歩31分 湖西線 近江中庄駅 徒歩60分 湖西線 近江今津駅 徒歩99分 滋賀県高島市マキノ町下開田 | 詳細を見る | |
アパート エテルノ(1LDK/1階) | |||||||
![]() | 5.5万円 4,100円 | なし 7万円 | 1LDK 37.13m2 | 築13年 | 湖西線 比叡山坂本駅 徒歩9分 滋賀県大津市下阪本5丁目 | 詳細を見る | |
アパート レオパレススワンコートⅡ(1K/3階) | |||||||
![]() | 6万円 7,000円 | なし 6万円 | 1K 19.87m2 | 築20年 | 東海道本線 瀬田駅(滋賀) 徒歩15分 東海道本線 南草津駅 徒歩30分 滋賀県大津市月輪3丁目 | 詳細を見る | |
アパート フロントパークこうかⅡ(2LDK/2階) | |||||||
![]() | 5.5万円 3,300円 | なし なし | 2LDK 51.67m2 | 築22年 | 草津線 甲南駅 徒歩15分 滋賀県甲賀市甲南町新治 | 詳細を見る | |






/105x80-f1-q70-wp1)
/105x80-f1-q70-wp1)