賃貸マンション
京福北野線 北野白梅町駅 徒歩15分 5階建 築27年の賃貸物件情報(3DK/3階)
| 家賃 | 管理費等 | 敷金 | 礼金 | 間取り | 専有面積 |
|---|---|---|---|---|---|
| 9.55万円 | 1万円 | 9.55万円 | 9.55万円 | 3DK | 65.02m2 |
入居決定でお祝い金最大100,000円
Point
金閣学区のファミリー物件 北区金閣学区の3DK。ファミリー物件です。
提供:株式会社 京都ライフ 北山店(賃貸スモッカ経由)

詳細情報 京福北野線 北野白梅町駅 徒歩15分 5階建 築27年
物件紹介
京福北野線北野白梅町駅から徒歩15分にあるマンションです。
このお部屋は2階以上に位置しているので、通行人や周囲の住人からの視線が気になりにくく、防犯面でも安心です。
フローリングのお部屋なのでお掃除もラクラク。バス・トイレ別の仕様で、のんびりお風呂タイムも楽しめます。
通信設備面ではBSアンテナがありますので、おうち時間も充実するでしょう(別途工事、契約料が必要な場合あり)。
建物にはエレベーターがついているので、重い荷物があっても安心。
このお部屋は2階以上に位置しているので、通行人や周囲の住人からの視線が気になりにくく、防犯面でも安心です。
フローリングのお部屋なのでお掃除もラクラク。バス・トイレ別の仕様で、のんびりお風呂タイムも楽しめます。
通信設備面ではBSアンテナがありますので、おうち時間も充実するでしょう(別途工事、契約料が必要な場合あり)。
建物にはエレベーターがついているので、重い荷物があっても安心。
お金・契約の情報
※「-」と表示されているものは、実際は料金が発生するものもございます。詳細はお問い合わせください。
| 家賃 | 9.55万円 | 管理費・共益費 | 1万円 |
|---|---|---|---|
| 敷金 | 9.55万円 | 礼金 | 9.55万円 |
| 入居決定でお祝い金最大100,000円 | |||
| 保証金 | - | 償却・敷引 | - |
| 住宅保険料 | 住宅保険料あり | 更新料 | - |
| 契約形態 | - | 契約期間 | 2年 |
| 入居・引渡期間 | 即時 | 現況 | 空室 |
| 契約備考 | 北区金閣学区の3DKファミリーマンションの募集です。周辺は閑静な住宅地でスーパーやコンビニ等生活便利です。3DKと部屋数が有るので子供部屋の確保も可能。京都市北区でのお部屋探しは京都ライフにご相談ください。 更新料:15,000円 保証会社:利用必須 初回:月額賃料等の25%、更新時:1万円/1年 その他設備/条件:即入居可 | ||
部屋の情報
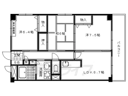
| 間取り | 3DK | 専有面積 | 65.02m2 |
|---|---|---|---|
| 間取り詳細 | 洋室(6.4帖)、和室(6帖)、洋室(7.5帖)、DK(8.7帖) | ||
| 所在階 / 向き | 3階 / 東 | バルコニー面積 | - |
| 水道 / ガス | ガス【都市】 | ||
| 設備 | バス・トイレ別、2階以上、エレベーター、バルコニー、フローリング、BSアンテナ、洗濯機:室内 | ||
| 当社物件ID | 160293702 | ||
建物の情報
| 建物名 | 京福北野線 北野白梅町駅 徒歩15分 5階建 築27年 | ||
|---|---|---|---|
| 所在地 | 京都府京都市北区衣笠街道町 | ||
| 交通 | 京福北野線 北野白梅町駅 徒歩15分 山陰本線 円町駅 徒歩30分 | ||
| 階数 | 5階建 | 総戸数 | - |
| 築年月 | 1999年12月 / 築27年 | エレベーター | あり |
| 駐車場 | - | バイク置き場 | - |
| 駐輪場 | あり | 管理人/管理会社 | - |
| 建物種別 | マンション | 建物構造 | RC(鉄筋コンクリート) |
この部屋の取扱い不動産会社
| 会社名 | 株式会社 京都ライフ 北山店(賃貸スモッカ経由) | ||
|---|---|---|---|
| 所在地 | 京都市北区上賀茂岩ヶ垣内町98-2 | 交通 | - |
| 営業時間 | - | 定休日 | - |
| 免許番号 | 京都府知事(11)第6353号 | 取引態様 | 仲介 |
| 不動産会社管理番号 | kyotolife_28988-304-13 | 当社管理番号 | 463 |
| 所属団体 | 京都府宅地建物取引業協会\n公益社団法人近畿地区不動産公正取引協議会 | ||
| 公正取引協議会 | 全国宅地建物取引業保証協会 | ||
| 取扱い物件情報 | 物件詳細へ | ||
※各種情報と現状に差異がある場合は、現状優先となります。問い合わせをすることで、より詳しい条件、情報を確認する事ができます。
提供:株式会社 京都ライフ 北山店(賃貸スモッカ経由)
この物件が気になったら掲載期限まであと6日
京福北野線 北野白梅町駅 徒歩15分 5階建 築27年に条件(家賃・エリア)が近い物件一覧
| 写真 | 家賃 管理費等 | 敷金 礼金 | 間取り 専有面積 | 築年数 | 最寄り駅 所在地 | キープ | 詳細 |
|---|---|---|---|---|---|---|---|
アパート 京都市烏丸線 北山駅(京都) 徒歩20分 築49年(2DK/1階) | |||||||
![]() | 5.9万円 なし | 5.9万円 5.9万円 | 2DK 25m2 | 築49年 | 京都市烏丸線 北山駅(京都) 徒歩20分 京都市烏丸線 北大路駅 徒歩28分 京都府京都市北区大宮南田尻町 | 詳細を見る | |
アパート 京都市烏丸線 北大路駅 徒歩29分 築1年(2LDK/3階) | |||||||
![]() | 11.7万円 8,000円 | なし 11.7万円 | 2LDK 64.58m2 | 築1年 | 京都市烏丸線 北大路駅 徒歩29分 京都市烏丸線 北山駅(京都) 徒歩32分 京都府京都市北区大宮北箱ノ井町 | 詳細を見る | |
マンション 京都市烏丸線 今出川駅 徒歩15分 築28年(3LDK/2階) | |||||||
![]() | 13万円 9,000円 | 13万円 なし | 3LDK 71.06m2 | 築28年 | 京都市烏丸線 今出川駅 徒歩15分 京福北野線 北野白梅町駅 徒歩19分 京都府京都市上京区鏡石町 | 詳細を見る | |
アパート ヒカルサ京都大宮中林II(1K/2階) | |||||||
![]() | 7.95万円 5,000円 | なし 7.95万円 | 1K 28.07m2 | 新築 | 地下鉄烏丸線 北大路駅 徒歩26分 地下鉄烏丸線 北山駅(京都) 徒歩27分 京都府京都市北区大宮中林町 | 詳細を見る | |
アパート 京都市烏丸線 北山駅(京都) 徒歩9分 新築(1LDK/3階) | |||||||
![]() | 11.4万円 5,000円 | なし 22.8万円 | 1LDK 39.85m2 | 新築 | 京都市烏丸線 北山駅(京都) 徒歩9分 京都市烏丸線 北大路駅 徒歩22分 京都府京都市北区上賀茂畔勝町 | 詳細を見る | |
アパート 阪急電鉄京都線 東向日駅 徒歩10分 築23年(1K/2階) | |||||||
![]() | 7.1万円 5,000円 | なし 7.1万円 | 1K 19.87m2 | 築23年 | 阪急電鉄京都線 東向日駅 徒歩10分 東海道本線 向日町駅 徒歩17分 京都府向日市寺戸町北前田 | 詳細を見る | |
アパート 奈良線 木幡駅(JR) 徒歩14分 築22年(1K/2階) | |||||||
![]() | 6.1万円 7,000円 | なし 6.1万円 | 1K 19.87m2 | 築22年 | 奈良線 木幡駅(JR) 徒歩14分 京阪電気鉄道宇治線 黄檗駅(京阪) 徒歩19分 京都府宇治市木幡 | 詳細を見る | |
マンション フェルスフェステ(2LDK/3階) | |||||||
![]() | 12.8万円 8,500円 | 12.8万円 25.6万円 | 2LDK 62.79m2 | 築12年 | 東海道本線 長岡京駅 徒歩8分 阪急電鉄京都線 長岡天神駅 徒歩19分 京都府長岡京市神足垣外ケ内 | 詳細を見る | |









