賃貸マンション
ハイツ山ノ井の賃貸物件情報(3LDK/2階)
| 家賃 | 管理費等 | 敷金 | 礼金 | 間取り | 専有面積 |
|---|---|---|---|---|---|
| 5.5万円 | なし | なし | なし | 3LDK | 60m2 |
入居決定でお祝い金最大100,000円
Point
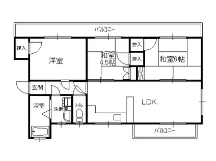
■3LDK ■専有面積:約60m2 ■南海本線「樽井駅」徒歩10分
提供:(株)ファミリーハウス(SUUMO経由)

詳細情報 ハイツ山ノ井
物件紹介
ハイツ山ノ井は南海本線樽井駅から徒歩8分にあり、駅近で通勤通学に便利なマンションです。
このお部屋は2階以上に位置しているので、通行人や周囲の住人からの視線が気になりにくく、防犯面でも安心です。
人気の南向き・フローリングのお部屋。角部屋でもあるため、周囲の居住者の生活音も気になりにくい場所です。バス・トイレ別の仕様で、のんびりお風呂タイムも楽しめます。
ペット飼育の相談ができますので、あなたの大切な家族の一員も快適に暮らせるか、ぜひ確認してみてください。
このお部屋は2階以上に位置しているので、通行人や周囲の住人からの視線が気になりにくく、防犯面でも安心です。
人気の南向き・フローリングのお部屋。角部屋でもあるため、周囲の居住者の生活音も気になりにくい場所です。バス・トイレ別の仕様で、のんびりお風呂タイムも楽しめます。
ペット飼育の相談ができますので、あなたの大切な家族の一員も快適に暮らせるか、ぜひ確認してみてください。
お金・契約の情報
※「-」と表示されているものは、実際は料金が発生するものもございます。詳細はお問い合わせください。
| 家賃 | 5.5万円 | 管理費・共益費 | なし |
|---|---|---|---|
| 敷金 | なし | 礼金 | なし |
| 入居決定でお祝い金最大100,000円 | |||
| 保証金 | - | 償却・敷引 | - |
| 住宅保険料 | - | 更新料 | - |
| 保証会社利用 | 必須 | 保証会社名 | 日本セーフティー |
| 保証会社費用 | - | 保証会社備考 | 日本セーフティー利用必 初回保証料 : 賃料総額の60%、更新料 : 10000円(1年) |
| 契約形態 | - | 契約期間 | - |
| 入居・引渡期間 | 即時 | 現況 | - |
| 入居可能条件 | ペット相談 | ||
| 契約備考 | 合計1.1万円(内訳:玄関鍵交換代11000円) 3LDK ペット相談 損保【2万円2年】 バストイレ別、バルコニー、フローリング、シューズボックス、南向き、角住戸、洗面所独立、即入居可、ペット相談、2面バルコニー、キッチンに窓、四方角部屋、駅徒歩10分以内、LDK12畳以上、プロパンガス | ||
部屋の情報
| 間取り | 3LDK | 専有面積 | 60m2 |
|---|---|---|---|
| 所在階 / 向き | 2階 / 南 | バルコニー面積 | - |
| 水道 / ガス | - | ||
| 設備 | バス・トイレ別、2階以上、南向き、角部屋、バルコニー、フローリング、洗髪洗面化粧台 | ||
| 当社物件ID | 29739469 | ||
建物の情報
| 建物名 | ハイツ山ノ井 | ||
|---|---|---|---|
| 所在地 | 大阪府泉南市樽井 | ||
| 交通 | 南海本線 樽井駅 徒歩8分 JR阪和線 和泉砂川駅 徒歩33分 南海本線 尾崎駅 徒歩34分 | ||
| 階数 | 3階建 | 総戸数 | 6戸 |
| 築年月 | 1989年01月 / 築38年 | エレベーター | - |
| 駐車場 | 空有 5000円 | バイク置き場 | - |
| 駐輪場 | - | 管理人/管理会社 | - |
| 周辺環境 | その他 イオンりんくう泉南店(スーパー)まで1984m その他 キリン堂樽井店(ドラッグストア)まで459m その他 ローソン泉南樽井三丁目店(コンビニ)まで681m その他 泉南市役所(役所)まで1623m その他 泉南市立樽井小学校(小学校)まで643m その他 泉南市立泉南中学校(中学校)まで1552m | ||
| 建物種別 | マンション | 建物構造 | 鉄骨造 |
この部屋の取扱い不動産会社
| 会社名 | (株)ファミリーハウス(SUUMO経由) | ||
|---|---|---|---|
| 所在地 | 大阪府泉南市樽井2-1-9 | 交通 | - |
| 営業時間 | 午前10時~午後7時 | 定休日 | 火・水曜日 |
| 免許番号 | 大阪府知事41329 | 取引態様 | 仲介 |
| 不動産会社管理番号 | 100491852876 | 当社管理番号 | 89 |
| 所属団体 | (公社)全日本不動産協会大阪府本部会員 | ||
| 公正取引協議会 | (公社)近畿地区不動産公正取引協議会加盟 | ||
| 取扱い物件情報 | 物件詳細へ | ||
※各種情報と現状に差異がある場合は、現状優先となります。問い合わせをすることで、より詳しい条件、情報を確認する事ができます。
提供:(株)ファミリーハウス(SUUMO経由)
この物件が気になったら掲載期限まであと5日
ハイツ山ノ井に条件(家賃・エリア)が近い物件一覧
| 写真 | 家賃 管理費等 | 敷金 礼金 | 間取り 専有面積 | 築年数 | 最寄り駅 所在地 | キープ | 詳細 |
|---|---|---|---|---|---|---|---|
アパート プチメゾンRINKU(1LDK/1階) | |||||||
![]() | 5.9万円 なし | なし 5.9万円 | 1LDK 37.26m2 | 築1年 | 南海電鉄南海本線 尾崎駅 徒歩19分 南海電鉄南海本線 樽井駅 徒歩24分 南海電鉄南海本線 鳥取ノ荘駅 徒歩31分 大阪府泉南市男里4丁目 | 詳細を見る | |
アパート セジュールZENZO B棟(1K/2階) | |||||||
![]() | 5.9万円 3,000円 | なし なし | 1K 23.59m2 | 築28年 | 阪和線 日根野駅 徒歩5分 関西空港線 日根野駅 徒歩5分 阪和線 長滝駅 徒歩23分 大阪府泉佐野市日根野 | 詳細を見る | |
アパート プレミアムスイート泉佐野(1LDK/1階) | |||||||
![]() | 7.4万円 5,000円 | なし なし | 1LDK 50.39m2 | 築3年 | 南海電鉄南海本線 鶴原駅 徒歩1分 南海電鉄南海本線 二色浜駅 徒歩17分 南海電鉄南海本線 井原里駅 徒歩19分 大阪府泉佐野市鶴原 | 詳細を見る | |
アパート クレイノグランメゾンアオイ(1K/1階) | |||||||
![]() | 6.5万円 5,000円 | なし 6.5万円 | 1K 26.08m2 | 築9年 | 阪和線 日根野駅 徒歩18分 南海電鉄南海本線 泉佐野駅 徒歩24分 阪和線 熊取駅 徒歩32分 大阪府泉佐野市葵町2丁目 | 詳細を見る | |
アパート ソレイユB棟(2LDK/2階) | |||||||
![]() | 6.1万円 4,000円 | 6.1万円 なし | 2LDK 52.98m2 | 築19年 | 阪和線 長滝駅 徒歩22分 阪和線 日根野駅 徒歩28分 阪和線 新家駅 徒歩47分 大阪府泉佐野市上之郷 | 詳細を見る | |
マンション レオパレスクレール(1K/1階) | |||||||
![]() | 4.9万円 7,000円 | なし 4.9万円 | 1K 23.18m2 | 築25年 | 南海電鉄南海本線 泉佐野駅 徒歩15分 阪和線 日根野駅 徒歩25分 関西空港線 りんくうタウン駅 徒歩32分 大阪府泉佐野市中町1丁目 | 詳細を見る | |
一戸建て 南海電鉄南海本線 泉佐野駅 徒歩20分 築49年(4DK) | |||||||
![]() | 6.3万円 なし | なし 6.3万円 | 4DK 64.8m2 | 築49年 | 南海電鉄南海本線 泉佐野駅 徒歩20分 阪和線 日根野駅 徒歩21分 南海電鉄南海本線 羽倉崎駅 徒歩30分 大阪府泉佐野市葵町2丁目 | 詳細を見る | |
アパート レオパレスWINGK(1K/2階) | |||||||
![]() | 5.3万円 7,000円 | なし 5.3万円 | 1K 19.8m2 | 築28年 | 南海電鉄南海本線 羽倉崎駅 徒歩12分 関西空港線 りんくうタウン駅 徒歩26分 南海電鉄南海本線 泉佐野駅 徒歩27分 大阪府泉佐野市新安松2丁目 | 詳細を見る | |









