賃貸アパート
レオパレスコンフォートの賃貸物件情報(1K/2階)
| 家賃 | 管理費等 | 敷金 | 礼金 | 間取り | 専有面積 |
|---|---|---|---|---|---|
| 4.8万円 | 4,500円 | なし | なし | 1K | 23.18m2 |
入居決定でお祝い金最大100,000円
Point
まずはお問い合わせ!
不動産会社は街のプロ、あなたに合った物件がきっと見つかります。
提供:ハウスコム関東株式会社 水戸駅前店

詳細情報 レオパレスコンフォート
物件紹介
レオパレスコンフォートは常磐線小木津駅から徒歩14分にあるアパートです。
このお部屋は2階以上に位置しているので、通行人や周囲の住人からの視線が気になりにくく、防犯面でも安心です。
バス・トイレ別の仕様で、のんびりお風呂タイムも楽しめます。
通信設備面では、インターネット接続が可能です(別途工事、契約料が必要な場合あり)。
このお部屋は2階以上に位置しているので、通行人や周囲の住人からの視線が気になりにくく、防犯面でも安心です。
バス・トイレ別の仕様で、のんびりお風呂タイムも楽しめます。
通信設備面では、インターネット接続が可能です(別途工事、契約料が必要な場合あり)。
お金・契約の情報
※「-」と表示されているものは、実際は料金が発生するものもございます。詳細はお問い合わせください。
| 家賃 | 4.8万円 | 管理費・共益費 | 4,500円 |
|---|---|---|---|
| 敷金 | なし | 礼金 | なし |
| 入居決定でお祝い金最大100,000円 | |||
| 保証金 | - | 償却・敷引 | - |
| 住宅保険料 | 1円 | 更新料 | - |
| その他費用 | 抗菌施工(任意):2.376万円 | ||
| 保証会社利用 | 必須 | 保証会社名 | - |
| 保証会社費用 | - | 保証会社備考 | 保証料:63590円(契約内容により100〜120%で変動有)※記載金額は120%の場合 |
| 契約形態 | - | 契約期間 | - |
| 入居・引渡期間 | 即時 | 現況 | - |
| 契約備考 | 月額(環境維持費 550円) 鍵交換費用:16500 室内清掃費用:41800 その他設備/条件:室内洗濯機置き場 | ||
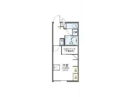
部屋の情報
| 間取り | 1K | 専有面積 | 23.18m2 |
|---|---|---|---|
| 所在階 / 向き | 2階 / - | バルコニー面積 | - |
| 水道 / ガス | - | ||
| 設備 | バス・トイレ別、光ファイバー対応、エアコン、温水洗浄便座、コンロ:電気 | ||
| 当社物件ID | 4272311 | ||
建物の情報
| 建物名 | レオパレスコンフォート | ||
|---|---|---|---|
| 所在地 | 茨城県日立市田尻町4丁目 | ||
| 交通 | 常磐線 小木津駅 徒歩14分 | ||
| 階数 | 2階建 | 総戸数 | 10戸 |
| 築年月 | 2002年01月 / 築25年 | エレベーター | - |
| 駐車場 | 空有 4,950円/月 | バイク置き場 | - |
| 駐輪場 | - | 管理人/管理会社 | - |
| 周辺環境 | その他 ドラッグストア その他 公園 その他 銀行 その他 * | ||
| 建物種別 | アパート | 建物構造 | 木造 |
この部屋の取扱い不動産会社
| 会社名 | ハウスコム関東株式会社 水戸駅前店 | ||
|---|---|---|---|
| 所在地 | 茨城県水戸市1-3ステーションフロント水戸1階 | 交通 | - |
| 営業時間 | 10:00~18:00 | 定休日 | - |
| 免許番号 | 国土交通大臣(1)第10263号 | 取引態様 | 仲介 |
| 不動産会社管理番号 | HC5-2368303-205-0214 | 当社管理番号 | 468 |
| 所属団体 | 一般社団法人全国住宅産業協会/公益社団法人首都圏不動産公正取引協議会/公益財団法人日本賃貸住宅管理協会、 | ||
| 取扱い物件情報 | 物件詳細へ | ||
※各種情報と現状に差異がある場合は、現状優先となります。問い合わせをすることで、より詳しい条件、情報を確認する事ができます。
提供:ハウスコム関東株式会社 水戸駅前店
この物件が気になったら掲載期限まであと5日
レオパレスコンフォートに条件(家賃・エリア)が近い物件一覧
| 写真 | 家賃 管理費等 | 敷金 礼金 | 間取り 専有面積 | 築年数 | 最寄り駅 所在地 | キープ | 詳細 |
|---|---|---|---|---|---|---|---|
マンション グリーンプラトーB棟(1LDK/4階) | |||||||
![]() | 3.3万円 なし | 3.3万円 なし | 1LDK 40.5m2 | 築46年 | JR常磐線 日立駅 徒歩21分 JR常磐線 小木津駅 徒歩59分 JR常磐線 常陸多賀駅 徒歩86分 茨城県日立市本宮町 | 詳細を見る | |
アパート アルバピアヌーラ(2DK/1階) | |||||||
![]() | 4.5万円 2,200円 | 4.5万円 なし | 2DK 42.77m2 | 築24年 | JR水郡線 中菅谷駅 徒歩8分 茨城県那珂市菅谷 | 詳細を見る | |
アパート アークヒル(3DK/3階) | |||||||
![]() | 5.9万円 3,000円 | なし なし | 3DK 56.45m2 | 築27年 | JR常磐線 常陸多賀駅 徒歩23分 JR常磐線 大甕駅 徒歩57分 JR常磐線 日立駅 徒歩87分 茨城県日立市大久保町 | 詳細を見る | |
アパート サウスプラザ(1LDK/3階) | |||||||
![]() | 6.5万円 4,500円 | なし 3.25万円 | 1LDK 45.04m2 | 築17年 | JR水郡線 中菅谷駅 徒歩20分 JR水郡線 上菅谷駅 徒歩21分 JR水郡線 下菅谷駅 徒歩33分 茨城県那珂市竹ノ内 | 詳細を見る | |
アパート 川原内ハイツB(2DK/2階) | |||||||
![]() | 3.9万円 なし | 3.9万円 なし | 2DK 34.7m2 | 築43年 | JR常磐線 常陸多賀駅 徒歩22分 茨城県日立市金沢町 | 詳細を見る | |
アパート ARIETTA I(1LDK/1階) | |||||||
![]() | 5.3万円 1,800円 | なし 7.3万円 | 1LDK 45.39m2 | 築15年 | 茨城県日立市大沼町 | 詳細を見る | |
マンション 常豊共同ビル(3LDK/1階) | |||||||
![]() | 6.9万円 なし | 6.9万円 なし | 3LDK 62.27m2 | 築37年 | JR水郡線 常陸太田駅 徒歩10分 JR水郡線 谷河原駅 徒歩15分 JR水郡線 河合駅 徒歩32分 茨城県常陸太田市山下町 | 詳細を見る | |
アパート ハニーハイム(2DK/2階) | |||||||
![]() | 5万円 2,000円 | 5万円 なし | 2DK 40.92m2 | 築22年 | JR水郡線 中菅谷駅 徒歩6分 JR水郡線 下菅谷駅 徒歩13分 JR水郡線 上菅谷駅 徒歩25分 茨城県那珂市菅谷 | 詳細を見る | |









