賃貸アパート
LA PROVENCE DU GOTANNO 参番館の賃貸物件情報(ワンルーム/2階)
| 家賃 | 管理費等 | 敷金 | 礼金 | 間取り | 専有面積 |
|---|---|---|---|---|---|
| 5.7万円 | 6,000円 | なし | なし | ワンルーム | 16.4m2 |
入居決定でお祝い金最大100,000円
- 保証金
- -
- 償却・敷引
- -
- 築年数
- 築8年
- 所在階
- 2階
- 向き
- 北
Point
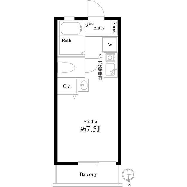
収納はクロゼット・シューズボックスなどが備え付けられているので、衣類や日用品の収納に重宝します。
提供:アパマンショップ西新井店

詳細情報 LA PROVENCE DU GOTANNO 参番館
物件紹介
LA PROVENCE DU GOTANNO 参番館は東武伊勢崎・大師線五反野駅から徒歩7分にあり、駅近で通勤通学に便利なアパートです。
このお部屋は2階以上に位置しているので、通行人や周囲の住人からの視線が気になりにくく、防犯面でも安心。建物のエントランスはオートロックがついており、インターホンにはTVモニタもついているため、相手の顔を確認してから来客対応することができます。
フローリングのお部屋なのでお掃除もラクラク。キッチンはシステムキッチン仕様になっていますので、お料理好きの方にもぴったり。バス・トイレは別なので、のんびりお風呂タイムも楽しめるでしょう。また、雨の日でも浴室乾燥機を使えば、お洗濯も問題ありません。
通信設備面では、インターネット接続が可能です(別途工事、契約料が必要な場合あり)。
床暖房があり、冬も足元から暖かく快適に過ごすことができます。共用部には宅配ボックスが設定されているので、不在の時にも荷物を受け取ることができます。また、ペット飼育の相談ができますので、あなたの大切な家族の一員も快適に暮らせるか、ぜひ確認してみてください。
このお部屋は2階以上に位置しているので、通行人や周囲の住人からの視線が気になりにくく、防犯面でも安心。建物のエントランスはオートロックがついており、インターホンにはTVモニタもついているため、相手の顔を確認してから来客対応することができます。
フローリングのお部屋なのでお掃除もラクラク。キッチンはシステムキッチン仕様になっていますので、お料理好きの方にもぴったり。バス・トイレは別なので、のんびりお風呂タイムも楽しめるでしょう。また、雨の日でも浴室乾燥機を使えば、お洗濯も問題ありません。
通信設備面では、インターネット接続が可能です(別途工事、契約料が必要な場合あり)。
床暖房があり、冬も足元から暖かく快適に過ごすことができます。共用部には宅配ボックスが設定されているので、不在の時にも荷物を受け取ることができます。また、ペット飼育の相談ができますので、あなたの大切な家族の一員も快適に暮らせるか、ぜひ確認してみてください。
お金・契約の情報
※「-」と表示されているものは、実際は料金が発生するものもございます。詳細はお問い合わせください。
| 家賃 | 5.7万円 | 管理費・共益費 | 6,000円 |
|---|---|---|---|
| 敷金 | なし | 礼金 | なし |
| 入居決定でお祝い金最大100,000円 | |||
| 保証金 | - | 償却・敷引 | - |
| 住宅保険料 | 1円 | 更新料 | - |
| 保証会社利用 | 必須 | 保証会社名 | - |
| 保証会社費用 | - | 保証会社備考 | 初回保証料:賃料総額50% |
| 契約形態 | - | 契約期間 | 2年 |
| 入居・引渡期間 | 2026年01月 | 現況 | - |
| 入居可能条件 | ペット相談 | ||
| 契約備考 | 短期解約違約金 鍵交換費用:22000 その他設備/条件:室内洗濯機置き場、防犯カメラ、クローゼット、シューズボックス | ||
部屋の情報
| 間取り | ワンルーム | 専有面積 | 16.4m2 |
|---|---|---|---|
| 間取り詳細 | 洋室(7.5帖) | ||
| 所在階 / 向き | 2階 / 北 | バルコニー面積 | - |
| 水道 / ガス | ガス【都市】 | ||
| 設備 | バス・トイレ別、オートロック、テレビドアホン、宅配ボックス、浴室乾燥機、追い焚き、光ファイバー対応、システムキッチン、エアコン、温水洗浄便座、バルコニー、フローリング、洗髪洗面化粧台、コンロ:IH、シャワー、冷蔵庫あり、1口コンロ | ||
| 当社物件ID | 26660212 | ||
建物の情報
| 建物名 | LA PROVENCE DU GOTANNO 参番館 | ||
|---|---|---|---|
| 所在地 | 東京都足立区中央本町2丁目 | ||
| 交通 | 東武伊勢崎・大師線 五反野駅 徒歩8分 東武伊勢崎・大師線 梅島駅 徒歩14分 | ||
| 階数 | 3階建 | 総戸数 | - |
| 築年月 | 2018年03月 / 築8年 | エレベーター | - |
| 駐車場 | - | バイク置き場 | - |
| 駐輪場 | あり | 管理人/管理会社 | - |
| 周辺環境 | 販売店 徒歩9分(665m) その他 ドラッグストア その他 公園 その他 銀行 その他 * | ||
| 建物種別 | アパート | 建物構造 | 木造 |
この部屋の取扱い不動産会社
| 会社名 | ハウスコム東東京株式会社 押上店 | ||
|---|---|---|---|
| 所在地 | 東京都墨田区16-2三橋ビル1階 | 交通 | - |
| 営業時間 | 10:00~18:00 | 定休日 | 水曜定休 |
| 免許番号 | 東京都知事(1)第108283号 | 取引態様 | 仲介 |
| 不動産会社管理番号 | HC2-717034-203-0072 | 当社管理番号 | 468 |
| 所属団体 | 、 | ||
| 取扱い物件情報 | 物件詳細へ | ||
※各種情報と現状に差異がある場合は、現状優先となります。問い合わせをすることで、より詳しい条件、情報を確認する事ができます。
提供:ハウスコム東東京株式会社 押上店
この物件が気になったら掲載期限まであと4日
LA PROVENCE DU GOTANNO 参番館に条件(家賃・エリア)が近い物件一覧
| 写真 | 家賃 管理費等 | 敷金 礼金 | 間取り 専有面積 | 築年数 | 最寄り駅 所在地 | キープ | 詳細 |
|---|---|---|---|---|---|---|---|
マンション カーサ シンセラ オグ(1K/3階) | |||||||
![]() | 9万円 5,000円 | 9万円 9万円 | 1K 26.87m2 | 築4年 | 高崎線 尾久駅 徒歩6分 山手線 田端駅 徒歩15分 東京都荒川区西尾久4丁目 | 詳細を見る | |
マンション アクア スイート 日暮里(1K/5階) | |||||||
![]() | 9万円 1万円 | 9万円 9万円 | 1K 26.02m2 | 築18年 | 常磐線 三河島駅 徒歩5分 東京地下鉄千代田線 西日暮里駅 徒歩8分 山手線 日暮里駅 徒歩9分 東京都荒川区西日暮里1丁目 | 詳細を見る | |
マンション プラシア北千住(1K/14階) | |||||||
![]() | 8.3万円 9,000円 | 8.3万円 なし | 1K 20.88m2 | 築10年 | 京成電鉄本線 千住大橋駅 徒歩6分 東京地下鉄日比谷線 北千住駅 徒歩8分 東京都足立区千住宮元町 | 詳細を見る | |
マンション スカイコート両国(ワンルーム/6階) | |||||||
![]() | 6.5万円 5,000円 | 6.5万円 6.5万円 | ワンルーム 16.91m2 | 築37年 | 東京都大江戸線 両国駅 徒歩7分 東京都浅草線 蔵前駅 徒歩8分 総武・中央緩行線 両国駅 徒歩11分 東京都墨田区本所1丁目 | 詳細を見る | |
マンション パラドール両国(1K/2階) | |||||||
![]() | 8.3万円 6,000円 | 8.3万円 8.3万円 | 1K 21.67m2 | 築20年 | 東京都新宿線 森下駅(東京) 徒歩7分 東京都大江戸線 両国駅 徒歩7分 総武・中央緩行線 錦糸町駅 徒歩19分 東京都墨田区緑1丁目 | 詳細を見る | |
マンション スカイコート押上(1K/3階) | |||||||
![]() | 8.85万円 6,500円 | 8.85万円 8.85万円 | 1K 20m2 | 築20年 | 東京地下鉄半蔵門線 押上駅 徒歩5分 東京都浅草線 押上駅 徒歩7分 東武伊勢崎・大師線 曳舟駅 徒歩15分 東京都墨田区業平5丁目 | 詳細を見る | |
マンション 千歳プラザ(ワンルーム/7階) | |||||||
![]() | 7.3万円 5,000円 | 7.3万円 なし | ワンルーム 20.72m2 | 築34年 | 東京都大江戸線 森下駅(東京) 徒歩4分 東京都新宿線 森下駅(東京) 徒歩4分 総武・中央緩行線 両国駅 徒歩10分 東京都墨田区千歳3丁目 | 詳細を見る | |
マンション ウインベル錦糸町第3(ワンルーム/10階) | |||||||
![]() | 7.1万円 5,000円 | 7.1万円 なし | ワンルーム 18.38m2 | 築34年 | 東京都大江戸線 両国駅 徒歩12分 総武・中央緩行線 錦糸町駅 徒歩15分 東京都墨田区石原3丁目 | 詳細を見る | |








