賃貸マンション
パークアベニュー川口の賃貸物件情報(2SLDK/2階)
| 家賃 | 管理費等 | 敷金 | 礼金 | 間取り | 専有面積 |
|---|---|---|---|---|---|
| 20万円 | なし | 20万円 | 20万円 | 2SLDK | 72.36m2 |
入居決定でお祝い金最大100,000円
Point
創業45年東京・神奈川・埼玉・千葉、直営140店舗のネットワークでお部屋探しをサポートするタウンハウジング
提供:(株)タウンハウジング埼玉 川口店(SUUMO経由)

詳細情報 パークアベニュー川口
物件紹介
パークアベニュー川口はJR京浜東北線川口駅から徒歩8分にあり、駅近で通勤通学に便利なマンションです。
このお部屋は2階以上に位置しているので、通行人や周囲の住人からの視線が気になりにくく、防犯面でも安心。建物のエントランスはオートロックがついており、インターホンにはTVモニタもついているため、相手の顔を確認してから来客対応することができます。
人気の南向きのお部屋。室内にはウォークインクローゼットがありますので、たくさんの荷物も効率的に収納ができます。キッチンはシステムキッチン仕様になっていますので、お料理好きの方にもぴったり。バス・トイレは別なので、のんびりお風呂タイムも楽しめるでしょう。また、雨の日でも浴室乾燥機を使えば、お洗濯も問題ありません。
通信設備面ではBSアンテナ・CSアンテナがあり、CATVにも対応しているので、おうち時間も充実するでしょう(別途工事、契約料が必要な場合あり)。
床暖房があり、冬も足元から暖かく快適に過ごすことができます。建物にはエレベーターがついているので、重い荷物があっても安心。共用部には宅配ボックスが設定されているので、不在の時にも荷物を受け取ることができます。
このお部屋は2階以上に位置しているので、通行人や周囲の住人からの視線が気になりにくく、防犯面でも安心。建物のエントランスはオートロックがついており、インターホンにはTVモニタもついているため、相手の顔を確認してから来客対応することができます。
人気の南向きのお部屋。室内にはウォークインクローゼットがありますので、たくさんの荷物も効率的に収納ができます。キッチンはシステムキッチン仕様になっていますので、お料理好きの方にもぴったり。バス・トイレは別なので、のんびりお風呂タイムも楽しめるでしょう。また、雨の日でも浴室乾燥機を使えば、お洗濯も問題ありません。
通信設備面ではBSアンテナ・CSアンテナがあり、CATVにも対応しているので、おうち時間も充実するでしょう(別途工事、契約料が必要な場合あり)。
床暖房があり、冬も足元から暖かく快適に過ごすことができます。建物にはエレベーターがついているので、重い荷物があっても安心。共用部には宅配ボックスが設定されているので、不在の時にも荷物を受け取ることができます。
お金・契約の情報
※「-」と表示されているものは、実際は料金が発生するものもございます。詳細はお問い合わせください。
| 家賃 | 20万円 | 管理費・共益費 | なし |
|---|---|---|---|
| 敷金 | 20万円 | 礼金 | 20万円 |
| 入居決定でお祝い金最大100,000円 | |||
| 保証金 | - | 償却・敷引 | - |
| 住宅保険料 | - | 更新料 | - |
| 保証会社利用 | 必須 | 保証会社名 | - |
| 保証会社費用 | - | 保証会社備考 | 保証会社利用必 保証人代行会社:「その他」賃貸保証料:「0.5ヶ月」保証人代行詳細:「初回保証料 月額総支払額の50%、月額保証料 1000円 or 年間保証料 10000円」 |
| 契約形態 | - | 契約期間 | - |
| 入居・引渡期間 | 相談 | 現況 | - |
| 契約備考 | 駐輪場料金/月:300円■借主負担:退去時清掃費:95,515円(税込)、CATV・インターネット別途契約時、安心サポート月770円(税込)■保証会社利用必須(保証料:初回賃料等の50%、賃料収納月以降1,000円/) 更新料新賃料(ヶ月):1.00ヶ月 2SLDK 普通借家2年 損保【1.3万円1年】 バストイレ別、バルコニー、エアコン、ガスコンロ対応、TVインターホン、浴室乾燥機、オートロック、室内洗濯置、シューズボックス、システムキッチン、南向き、追焚機能浴室、温水洗浄便座、エレベーター、洗面所独立、駐輪場、宅配ボックス、CATV、BS・CS、照明付、分譲賃貸、ウォークインクロゼット、敷金1ヶ月、床暖房、保証金不要、礼金1ヶ月 | ||
部屋の情報
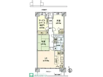
| 間取り | 2SLDK | 専有面積 | 72.36m2 |
|---|---|---|---|
| 所在階 / 向き | 2階 / 南 | バルコニー面積 | - |
| 水道 / ガス | - | ||
| 設備 | バス・トイレ別、2階以上、オートロック、テレビドアホン、宅配ボックス、浴室乾燥機、ウォークインクローゼット、追い焚き、システムキッチン、エアコン、エレベーター、温水洗浄便座、南向き、バルコニー、洗髪洗面化粧台、床暖房、コンロ:ガス、CATV、CSアンテナ、BSアンテナ、洗濯機:室内 | ||
| 当社物件ID | 8263437 | ||
建物の情報
| 建物名 | パークアベニュー川口 | ||
|---|---|---|---|
| 所在地 | 埼玉県川口市川口 | ||
| 交通 | JR京浜東北線 川口駅 徒歩8分 埼玉高速鉄道 川口元郷駅 徒歩23分 | ||
| 階数 | 地下1地上15階建 | 総戸数 | - |
| 築年月 | 2000年01月 / 築27年 | エレベーター | あり |
| 駐車場 | 空有 16000円 | バイク置き場 | - |
| 駐輪場 | あり | 管理人/管理会社 | - |
| 周辺環境 | その他 スーパー(スーパー)まで350m その他 ドラッグストア(ドラッグストア)まで300m その他 川口西公園(公園)まで180m その他 川口市立西スポーツセンター(その他)まで600m その他 コモディイイダ川口リプレ店(その他)まで350m その他 トモズ薬局 川口店(その他)まで300m | ||
| 建物種別 | マンション | 建物構造 | SRC(鉄骨鉄筋コンクリート) |
この部屋の取扱い不動産会社
| 会社名 | (株)タウンハウジング埼玉 川口店(SUUMO経由) | ||
|---|---|---|---|
| 所在地 | 埼玉県川口市栄町3-8-11 アウルビル1階 | 交通 | - |
| 営業時間 | AM10:00~PM7:00 | 定休日 | 水曜日 |
| 免許番号 | 国土交通大臣9925 | 取引態様 | 仲介 |
| 不動産会社管理番号 | 100502458063 | 当社管理番号 | 89 |
| 所属団体 | (公社)埼玉県宅地建物取引業協会会員 | ||
| 公正取引協議会 | (公社)首都圏不動産公正取引協議会加盟 | ||
| 取扱い物件情報 | 物件詳細へ | ||
※各種情報と現状に差異がある場合は、現状優先となります。問い合わせをすることで、より詳しい条件、情報を確認する事ができます。
提供:(株)タウンハウジング埼玉 川口店(SUUMO経由)
この物件が気になったら掲載期限まであと11日
パークアベニュー川口に条件(家賃・エリア)が近い物件一覧
| 写真 | 家賃 管理費等 | 敷金 礼金 | 間取り 専有面積 | 築年数 | 最寄り駅 所在地 | キープ | 詳細 |
|---|---|---|---|---|---|---|---|
マンション GRAND ETE(1LDK/2階) | |||||||
![]() | 14.9万円 8,000円 | 14.9万円 なし | 1LDK 49.63m2 | 築1年 | JR京浜東北線 大宮駅(埼玉) 徒歩29分 埼玉新都市交通伊奈線 鉄道博物館駅 徒歩31分 東武野田線 北大宮駅 徒歩33分 埼玉県さいたま市大宮区三橋 | 詳細を見る | |
マンション シティテラス越谷レイクタウン(3LDK/8階) | |||||||
![]() | 17.2万円 1万円 | なし 17.2万円 | 3LDK 70.2m2 | 築10年 | JR武蔵野線 越谷レイクタウン駅 徒歩7分 埼玉県越谷市レイクタウン | 詳細を見る | |
マンション ペイサージュ カリテ(2LDK/2階) | |||||||
![]() | 13.2万円 1万円 | なし 26.4万円 | 2LDK 55.34m2 | 新築 | JR川越線 日進駅(埼玉) 徒歩4分 JR高崎線 宮原駅 徒歩17分 埼玉新都市交通伊奈線 加茂宮駅 徒歩21分 埼玉県さいたま市北区日進町 | 詳細を見る | |
マンション クオリスタ エムズ(2LDK/1階) | |||||||
![]() | 17.7万円 1万円 | なし 35.4万円 | 2LDK 66.28m2 | 築2年 | JR京浜東北線 蕨駅 徒歩15分 JR京浜東北線 西川口駅 徒歩16分 埼玉県蕨市塚越 | 詳細を見る | |
マンション ウィズプラス浦和美園ウエストC棟(2LDK/2階) | |||||||
![]() | 17.5万円 1.6万円 | なし なし | 2LDK 75.98m2 | 築3年 | 埼玉高速鉄道 浦和美園駅 徒歩8分 JR武蔵野線 東川口駅 徒歩43分 埼玉高速鉄道 東川口駅 徒歩43分 埼玉県さいたま市緑区美園 | 詳細を見る | |
マンション SHMプロエコレット(1LDK/1階) | |||||||
![]() | 12万円 1万円 | なし なし | 1LDK 44.97m2 | 築4年 | JR京浜東北線 西川口駅 徒歩11分 JR京浜東北線 蕨駅 徒歩13分 JR埼京線 戸田公園駅 徒歩37分 埼玉県蕨市南町 | 詳細を見る | |







