賃貸マンション
ダイイチフレア川崎の賃貸物件情報(1LDK/10階)
| 家賃 | 管理費等 | 敷金 | 礼金 | 間取り | 専有面積 |
|---|---|---|---|---|---|
| 14.8万円 | 7,000円 | 14.8万円 | 14.8万円 | 1LDK | 37.1m2 |
入居決定でお祝い金最大100,000円
- 保証金
- -
- 償却・敷引
- -
- 築年数
- 築14年
- 所在階
- 10階
- 向き
- 南東
Point
◆「法人契約可」◆「クレジッドカード支払い可」◆「初期費用の分割・相談」◆「内覧希望」◆「急ぎの入居」◆「法人契約」◆「保証人不要」◆「入居条件の相談」◆等、何でもお気軽にご相談下さい。
提供:(株)みらい不動産(SUUMO経由)

詳細情報 ダイイチフレア川崎
物件紹介
ダイイチフレア川崎は京急本線京急川崎駅から徒歩2分にあり、駅近で通勤通学に便利なマンションです。
このお部屋は2階以上に位置しているので、通行人や周囲の住人からの視線が気になりにくく、防犯面でも安心。建物のエントランスはオートロックがついており、インターホンにはTVモニタもついているため、相手の顔を確認してから来客対応することができます。
人気の南向きのお部屋。また、フローリングなのでお掃除もラクラク。キッチンはシステムキッチン仕様になっていますので、お料理好きの方にもぴったり。バス・トイレは別なので、のんびりお風呂タイムも楽しめるでしょう。また、雨の日でも浴室乾燥機を使えば、お洗濯も問題ありません。
通信設備面では、インターネット接続が可能です。また、BSアンテナ・CSアンテナもありますので、おうち時間も充実するでしょう(別途工事、契約料が必要な場合あり)。
建物にはエレベーターがついているので、重い荷物があっても安心。共用部には宅配ボックスが設定されているので、不在の時にも荷物を受け取ることができます。
このお部屋は2階以上に位置しているので、通行人や周囲の住人からの視線が気になりにくく、防犯面でも安心。建物のエントランスはオートロックがついており、インターホンにはTVモニタもついているため、相手の顔を確認してから来客対応することができます。
人気の南向きのお部屋。また、フローリングなのでお掃除もラクラク。キッチンはシステムキッチン仕様になっていますので、お料理好きの方にもぴったり。バス・トイレは別なので、のんびりお風呂タイムも楽しめるでしょう。また、雨の日でも浴室乾燥機を使えば、お洗濯も問題ありません。
通信設備面では、インターネット接続が可能です。また、BSアンテナ・CSアンテナもありますので、おうち時間も充実するでしょう(別途工事、契約料が必要な場合あり)。
建物にはエレベーターがついているので、重い荷物があっても安心。共用部には宅配ボックスが設定されているので、不在の時にも荷物を受け取ることができます。
お金・契約の情報
※「-」と表示されているものは、実際は料金が発生するものもございます。詳細はお問い合わせください。
| 家賃 | 14.8万円 | 管理費・共益費 | 7,000円 |
|---|---|---|---|
| 敷金 | 14.8万円 | 礼金 | 14.8万円 |
| 入居決定でお祝い金最大100,000円 | |||
| 保証金 | - | 償却・敷引 | - |
| 住宅保険料 | - | 更新料 | - |
| 保証会社利用 | 必須 | 保証会社名 | - |
| 保証会社費用 | - | 保証会社備考 | 保証会社利用必 初回保証料:賃料等の40%、月次:総賃料1%、更新料1% |
| 契約形態 | - | 契約期間 | - |
| 入居・引渡期間 | 相談 | 現況 | - |
| 契約備考 | 巡回管理/◆駐車場:22000円/月(敷1ヶ月・仲手1ヶ月)◆バイク:3300円/月◆駐輪場:無料(全て要空き確認) 合計2.2万円(内訳:鍵交換代2.2万円) 1LDK 二人入居可 普通借家2年 損保【2.15万円2年】 バストイレ別、バルコニー、エアコン、ガスコンロ対応、クロゼット、フローリング、シャワー付洗面台、TVインターホン、浴室乾燥機、オートロック、室内洗濯置、シューズボックス、システムキッチン、追焚機能浴室、温水洗浄便座、エレベーター、洗面所独立、洗面化粧台、駐輪場、宅配ボックス、光ファイバー、外壁タイル張り、3口以上コンロ、防犯カメラ、グリル付、保証人不要、バイク置場、24時間緊急通報システム、全居室フローリング、ディンプルキー、CS、ダブルロックキー、24時間換気システム、平坦地、3駅以上利用可、3沿線以上利用可、駅徒歩5分以内、敷地内ごみ置き場、東南向き、都市ガス、BS、保証会社利用可、IT重説対応物件、初期費用カード決済可、通風良好 | ||
部屋の情報
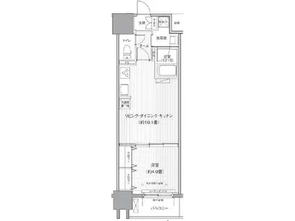
| 間取り | 1LDK | 専有面積 | 37.1m2 |
|---|---|---|---|
| 所在階 / 向き | 10階 / 南東 | バルコニー面積 | - |
| 水道 / ガス | - | ||
| 設備 | バス・トイレ別、2階以上、オートロック、テレビドアホン、宅配ボックス、浴室乾燥機、追い焚き、インターネット対応、システムキッチン、エアコン、エレベーター、温水洗浄便座、南向き、バルコニー、フローリング、洗髪洗面化粧台、2口コンロ、コンロ:ガス、CSアンテナ、BSアンテナ、洗濯機:室内 | ||
| 当社物件ID | 7243056 | ||
建物の情報
| 建物名 | ダイイチフレア川崎 | ||
|---|---|---|---|
| 所在地 | 神奈川県川崎市川崎区砂子 | ||
| 交通 | 京急本線 京急川崎駅 徒歩2分 JR京浜東北線 川崎駅 徒歩5分 京急大師線 港町駅 徒歩15分 | ||
| 階数 | 15階建 | 総戸数 | - |
| 築年月 | 2013年01月 / 築14年 | エレベーター | あり |
| 駐車場 | なし | バイク置き場 | あり |
| 駐輪場 | あり | 管理人/管理会社 | - |
| 周辺環境 | その他 京急ストア「川崎店」(スーパー)まで166m その他 オーケーストア川崎本町店(スーパー)まで659m その他 川崎DICE(ダイス)(ショッピングセンター)まで88m その他 川崎モアーズ(KAWASAKI MORE’S)(ショッピングセンター)まで269m その他 ローソンストア100川崎南幸2丁目店(その他)まで1035m その他 セブンイレブン「川崎砂子1丁目店」(コンビニ)まで55m | ||
| 建物種別 | マンション | 建物構造 | SRC(鉄骨鉄筋コンクリート) |
この部屋の取扱い不動産会社
| 会社名 | (株)エリア・エステート川崎店(SUUMO経由) | ||
|---|---|---|---|
| 所在地 | 神奈川県川崎市川崎区駅前本町 15-5 十五番館6-A | 交通 | - |
| 営業時間 | 10:00~19:00 | 定休日 | 年中無休 |
| 免許番号 | 神奈川県知事27321 | 取引態様 | 仲介 |
| 不動産会社管理番号 | 100480561051 | 当社管理番号 | 89 |
| 所属団体 | (公社)神奈川県宅地建物取引業協会会員 | ||
| 公正取引協議会 | (公社)首都圏不動産公正取引協議会加盟 | ||
| 取扱い物件情報 | 物件詳細へ | ||
※各種情報と現状に差異がある場合は、現状優先となります。問い合わせをすることで、より詳しい条件、情報を確認する事ができます。
提供:(株)エリア・エステート川崎店(SUUMO経由)
この物件が気になったら掲載期限まであと10日
ダイイチフレア川崎に条件(家賃・エリア)が近い物件一覧
| 写真 | 家賃 管理費等 | 敷金 礼金 | 間取り 専有面積 | 築年数 | 最寄り駅 所在地 | キープ | 詳細 |
|---|---|---|---|---|---|---|---|
マンション ZOOM横浜関内(1K/5階) | |||||||
![]() | 10.2万円 7,000円 | 10.2万円 10.2万円 | 1K 24.81m2 | 築5年 | JR京浜東北線 関内駅 徒歩3分 ブルーライン 伊勢佐木長者町駅 徒歩5分 JR京浜東北線 石川町駅 徒歩11分 神奈川県横浜市中区不老町 | 詳細を見る | |
アパート エマーブルN(2DK/2階) | |||||||
![]() | 9.3万円 2,500円 | 9.3万円 なし | 2DK 48.4m2 | 築25年 | ブルーライン 新羽駅 徒歩4分 ブルーライン 北新横浜駅 徒歩14分 東急東横線 大倉山駅(神奈川) 徒歩29分 神奈川県横浜市港北区新羽町 | 詳細を見る | |
マンション グランカーサ横濱石川町(1LDK/3階) | |||||||
![]() | 15.4万円 8,000円 | 15.4万円 15.4万円 | 1LDK 35.95m2 | 築3年 | ブルーライン 伊勢佐木長者町駅 徒歩7分 JR京浜東北線 石川町駅 徒歩10分 JR京浜東北線 関内駅 徒歩12分 神奈川県横浜市中区長者町 | 詳細を見る | |
マンション ライムライト松風台3(4LDK/3階) | |||||||
![]() | 22.9万円 なし | 22.9万円 22.9万円 | 4LDK 91.8m2 | 築29年 | 東急田園都市線 青葉台駅 徒歩8分 東急田園都市線 田奈駅 徒歩21分 東急田園都市線 藤が丘駅(神奈川) 徒歩23分 神奈川県横浜市青葉区松風台 | 詳細を見る | |
マンション ルーナクレシェンテカワサキ(ワンルーム/4階) | |||||||
![]() | 9万円 8,000円 | 9万円 なし | ワンルーム 20.1m2 | 築3年 | 京急本線 京急川崎駅 徒歩7分 JR京浜東北線 川崎駅 徒歩10分 京急大師線 港町駅 徒歩11分 神奈川県川崎市川崎区本町 | 詳細を見る | |
マンション SYFORME KAWASAKI-IKEDA(2K/2階) | |||||||
![]() | 10.3万円 1万円 | 10.3万円 10.3万円 | 2K 25.52m2 | 新築 | 南武線 八丁畷駅 徒歩6分 京浜急行電鉄本線 八丁畷駅 徒歩6分 神奈川県川崎市川崎区池田1丁目 | 詳細を見る | |
マンション クレヴィア横浜沢渡(3LDK/3階) | |||||||
![]() | 23.5万円 1.5万円 | 23.5万円 なし | 3LDK 66.65m2 | 築1年 | ブルーライン 横浜駅 徒歩15分 JR横須賀線 横浜駅 徒歩16分 相鉄本線 横浜駅 徒歩16分 神奈川県横浜市神奈川区沢渡 | 詳細を見る | |







