賃貸マンション
ソルナクレイシア下北沢の賃貸物件情報(2DK/2階)
| 家賃 | 管理費等 | 敷金 | 礼金 | 間取り | 専有面積 |
|---|---|---|---|---|---|
| 19.1万円 | 1.5万円 | なし | 38.2万円 | 2DK | 45.16m2 |
入居決定でお祝い金最大100,000円
- 保証金
- -
- 償却・敷引
- -
- 築年数
- 築1年
- 所在階
- 2階
- 向き
- 北東
Point
まずはお問い合わせ!
不動産会社は街のプロ、あなたに合った物件がきっと見つかります。
提供:(株)リアルビジョン渋谷桜丘支店(SUUMO経由)

詳細情報 ソルナクレイシア下北沢
物件紹介
ソルナクレイシア下北沢は小田急線下北沢駅から徒歩6分にあり、駅近で通勤通学に便利なマンションです。
このお部屋は2階以上に位置しているので、通行人や周囲の住人からの視線が気になりにくく、防犯面でも安心です。
人気の角部屋で周囲の居住者の生活音も気になりにくく、また、フローリングのお部屋なのでお掃除もラクラク。キッチンはシステムキッチン仕様になっていますので、お料理好きの方にもぴったり。バス・トイレは別なので、のんびりお風呂タイムも楽しめるでしょう。また、雨の日でも浴室乾燥機を使えば、お洗濯も問題ありません。
通信設備面では、インターネットが無料で使えるので、月々の出費を抑えられるのも魅力です。また、BSアンテナ・CSアンテナもありますので、おうち時間も充実するでしょう(別途工事、BS・CSの契約料等が必要な場合あり)。
このお部屋は2階以上に位置しているので、通行人や周囲の住人からの視線が気になりにくく、防犯面でも安心です。
人気の角部屋で周囲の居住者の生活音も気になりにくく、また、フローリングのお部屋なのでお掃除もラクラク。キッチンはシステムキッチン仕様になっていますので、お料理好きの方にもぴったり。バス・トイレは別なので、のんびりお風呂タイムも楽しめるでしょう。また、雨の日でも浴室乾燥機を使えば、お洗濯も問題ありません。
通信設備面では、インターネットが無料で使えるので、月々の出費を抑えられるのも魅力です。また、BSアンテナ・CSアンテナもありますので、おうち時間も充実するでしょう(別途工事、BS・CSの契約料等が必要な場合あり)。
お金・契約の情報
※「-」と表示されているものは、実際は料金が発生するものもございます。詳細はお問い合わせください。
| 家賃 | 19.1万円 | 管理費・共益費 | 1.5万円 |
|---|---|---|---|
| 敷金 | なし | 礼金 | 38.2万円 |
| 入居決定でお祝い金最大100,000円 | |||
| 保証金 | - | 償却・敷引 | - |
| 住宅保険料 | - | 更新料 | - |
| 保証会社利用 | 必須 | 保証会社名 | 全保連 |
| 保証会社費用 | - | 保証会社備考 | 全保連利用必 初回保証料:総賃料の60%、年間保証料:13000円、口座振替手数料:330円 |
| 契約形態 | - | 契約期間 | - |
| 入居・引渡期間 | 即時 | 現況 | - |
| 契約備考 | 巡回管理/※365日以内の解約の場合は賃料(管理費込)1か月相当の違約金有 ※駐輪スペースなし 退去時ハウスクリーニング費用:77000円 2DK 損保【2万円2年】 バストイレ別、バルコニー、エアコン、クロゼット、フローリング、浴室乾燥機、シューズボックス、システムキッチン、追焚機能浴室、角住戸、温水洗浄便座、洗面所独立、2口コンロ、即入居可、最上階、BS・CS、敷金不要、IHクッキングヒーター、オートバス、全居室洋室、保証人不要、2沿線利用可、メゾネット、ネット使用料不要、ダブルロックキー、3駅以上利用可、駅徒歩10分以内、都市ガス、IT重説対応物件 | ||
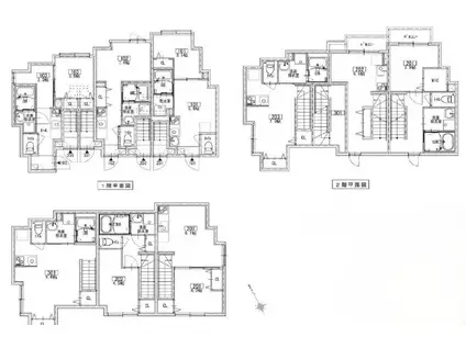
部屋の情報
| 間取り | 2DK | 専有面積 | 45.16m2 |
|---|---|---|---|
| 所在階 / 向き | 2階 / 北東 | バルコニー面積 | - |
| 水道 / ガス | - | ||
| 設備 | バス・トイレ別、2階以上、浴室乾燥機、追い焚き、インターネット対応、システムキッチン、エアコン、温水洗浄便座、角部屋、バルコニー、フローリング、洗髪洗面化粧台、2口コンロ、コンロ:IH、CSアンテナ、BSアンテナ、インターネット使用料無料 | ||
| 当社物件ID | 160408278 | ||
建物の情報
| 建物名 | ソルナクレイシア下北沢 | ||
|---|---|---|---|
| 所在地 | 東京都世田谷区北沢 | ||
| 交通 | 小田急線 下北沢駅 徒歩6分 小田急線 東北沢駅 徒歩9分 京王井の頭線 新代田駅 徒歩12分 | ||
| 階数 | 3階建 | 総戸数 | - |
| 築年月 | 2026年01月 / 築1年 | エレベーター | - |
| 駐車場 | なし | バイク置き場 | - |
| 駐輪場 | - | 管理人/管理会社 | - |
| 周辺環境 | その他 まいばすけっと下北沢駅北店(スーパー)まで313m その他 カルディコーヒーファーム下北沢店(スーパー)まで387m その他 ローソン下北沢成徳前店(コンビニ)まで162m その他 ローソン北沢店(コンビニ)まで144m その他 ミネドラッグ下北沢南店(ドラッグストア)まで620m その他 世田谷北沢郵便局(郵便局)まで190m | ||
| 建物種別 | マンション | 建物構造 | 鉄骨造 |
この部屋の取扱い不動産会社
| 会社名 | (株)リアルビジョン青山支店(SUUMO経由) | ||
|---|---|---|---|
| 所在地 | 東京都渋谷区渋谷2-9-11 インテリックス青山通りビル1階 | 交通 | - |
| 営業時間 | 10:00~19:00 | 定休日 | 定休日無し |
| 免許番号 | 東京都知事86601 | 取引態様 | 仲介 |
| 不動産会社管理番号 | 100488523835 | 当社管理番号 | 89 |
| 所属団体 | (公社)東京都宅地建物取引業協会会員 | ||
| 公正取引協議会 | (公社)首都圏不動産公正取引協議会加盟 | ||
| 取扱い物件情報 | 物件詳細へ | ||
※各種情報と現状に差異がある場合は、現状優先となります。問い合わせをすることで、より詳しい条件、情報を確認する事ができます。
提供:(株)リアルビジョン青山支店(SUUMO経由)
この物件が気になったら掲載期限まであと10日
ソルナクレイシア下北沢に条件(家賃・エリア)が近い物件一覧
| 写真 | 家賃 管理費等 | 敷金 礼金 | 間取り 専有面積 | 築年数 | 最寄り駅 所在地 | キープ | 詳細 |
|---|---|---|---|---|---|---|---|
タウンハウス 大田菜園長屋(2LDK) | |||||||
![]() | 15.9万円 5,000円 | 15.9万円 7.95万円 | 2LDK 52.17m2 | 築10年 | 京浜急行電鉄本線 雑色駅 徒歩8分 京浜急行電鉄本線 六郷土手駅 徒歩13分 東京都大田区東六郷3丁目 | 詳細を見る | |
アパート ビレッジひの木B棟(1LDK/2階) | |||||||
![]() | 13.6万円 2,000円 | 13.6万円 なし | 1LDK 39.66m2 | 築31年 | 京急本線 梅屋敷駅(東京) 徒歩7分 京急本線 京急蒲田駅 徒歩9分 JR京浜東北線 蒲田駅 徒歩14分 東京都大田区蒲田 | 詳細を見る | |
アパート フォレスタ世田谷(2LDK/2階) | |||||||
![]() | 18万円 1,000円 | 18万円 なし | 2LDK 47.7m2 | 築55年 | 東急池上線 雪が谷大塚駅 徒歩6分 東急東横線 田園調布駅 徒歩16分 東急目黒線 多摩川駅 徒歩16分 東京都世田谷区東玉川 | 詳細を見る | |
マンション 本間ビル(3LDK/4階) | |||||||
![]() | 18万円 5,000円 | 18万円 18万円 | 3LDK 75m2 | 築47年 | 京浜急行電鉄本線 京急蒲田駅 徒歩5分 京浜急行電鉄空港線 糀谷駅 徒歩10分 東京都大田区南蒲田1丁目 | 詳細を見る | |
マンション メゾンドボナール(1DK/4階) | |||||||
![]() | 12万円 3,000円 | 12万円 なし | 1DK 32.48m2 | 築29年 | 京浜東北・根岸線 蒲田駅 徒歩10分 京浜急行電鉄本線 京急蒲田駅 徒歩10分 東京都大田区蒲田3丁目 | 詳細を見る | |
アパート タカマルハイム(1LDK/1階) | |||||||
![]() | 11.5万円 3,000円 | 11.5万円 11.5万円 | 1LDK 34m2 | 築11年 | 東急多摩川線 武蔵新田駅 徒歩8分 東急多摩川線 下丸子駅 徒歩9分 東京都大田区下丸子2丁目 | 詳細を見る | |






